Homepage Blank Wv Tax Exempt Form
Outline

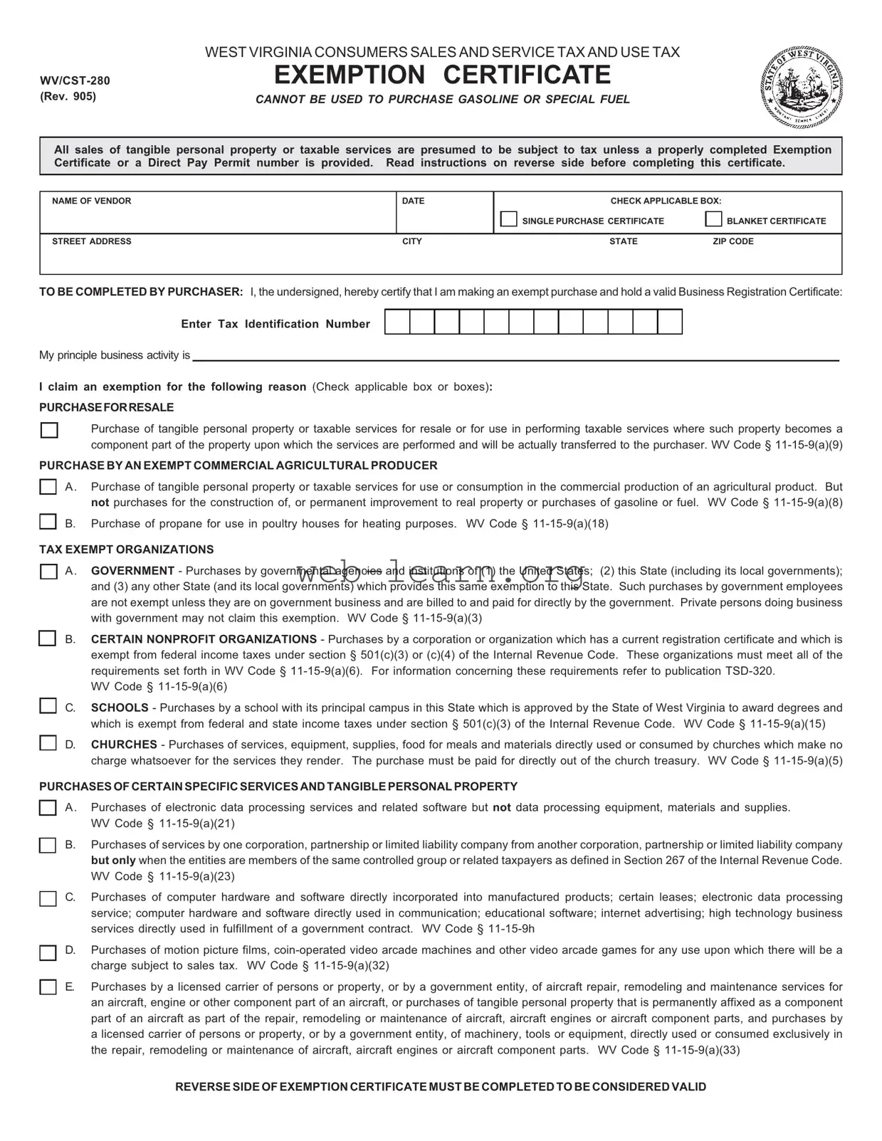
The West Virginia Consumers Sales and Service Tax and Use Tax Exemption Certificate (WV/CST-280) serves as a crucial document for individuals and organizations looking to make tax-exempt purchases in the state. This form is essential for businesses that hold a valid Business Registration Certificate and wish to claim exemptions for various purchases, including tangible personal property and taxable services. It is important to note that this certificate cannot be used for gasoline or special fuel purchases. The form allows purchasers to indicate whether they are making a single purchase or a blanket certificate for multiple transactions. Key exemptions include purchases for resale, those made by exempt commercial agricultural producers, and acquisitions by tax-exempt organizations such as government agencies, schools, and certain nonprofit organizations. Additionally, the form outlines specific services and property types that qualify for exemption, ensuring that users understand the scope of eligible purchases. Proper completion of the form is mandatory, as any errors or omissions can lead to penalties or interest charges. Understanding and adhering to the guidelines outlined in the WV/CST-280 is vital for both vendors and purchasers to avoid tax liabilities and ensure compliance with state regulations.

Sample - Wv Tax Exempt Form

 

WEST VIRGINIA CONSUMERS SALES AND SERVICE TAX AND USE TAX

WV/CST-280

EXEMPTION CERTIFICATE

(Rev. 905)

CANNOT BE USED TO PURCHASE GASOLINE OR SPECIAL FUEL

All sales of tangible personal property or taxable services are presumed to be subject to tax unless a properly completed Exemption Certificate or a Direct Pay Permit number is provided. Read instructions on reverse side before completing this certificate.

NAME OF VENDOR

DATE

CHECK APPLICABLE BOX:

SINGLE PURCHASE CERTIFICATE

BLANKET CERTIFICATE

STREET ADDRESS

CITY

STATE

ZIP CODE

TO BE COMPLETED BY PURCHASER: I, the undersigned, hereby certify that I am making an exempt purchase and hold a valid Business Registration Certificate:

Enter Tax Identification Number

My principle business activity is

I claim an exemption for the following reason (Check applicable box or boxes):

PURCHASEFORRESALE

Purchase of tangible personal property or taxable services for resale or for use in performing taxable services where such property becomes a component part of the property upon which the services are performed and will be actually transferred to the purchaser. WV Code § 11-15-9(a)(9)

PURCHASE BY AN EXEMPT COMMERCIAL AGRICULTURAL PRODUCER

A. Purchase of tangible personal property or taxable services for use or consumption in the commercial production of an agricultural product. But not purchases for the construction of, or permanent improvement to real property or purchases of gasoline or fuel. WV Code § 11-15-9(a)(8)

B. Purchase of propane for use in poultry houses for heating purposes. WV Code § 11-15-9(a)(18)

TAX EXEMPT ORGANIZATIONS

A. GOVERNMENT - Purchases by governmental agencies and institutions of (1) the United States; (2) this State (including its local governments); and (3) any other State (and its local governments) which provides this same exemption to this State. Such purchases by government employees are not exempt unless they are on government business and are billed to and paid for directly by the government. Private persons doing business with government may not claim this exemption. WV Code § 11-15-9(a)(3)

B. CERTAIN NONPROFIT ORGANIZATIONS - Purchases by a corporation or organization which has a current registration certificate and which is exempt from federal income taxes under section § 501(c)(3) or (c)(4) of the Internal Revenue Code. These organizations must meet all of the requirements set forth in WV Code § 11-15-9(a)(6). For information concerning these requirements refer to publication TSD-320.

WV Code § 11-15-9(a)(6)

C. SCHOOLS - Purchases by a school with its principal campus in this State which is approved by the State of West Virginia to award degrees and which is exempt from federal and state income taxes under section § 501(c)(3) of the Internal Revenue Code. WV Code § 11-15-9(a)(15)

D. CHURCHES - Purchases of services, equipment, supplies, food for meals and materials directly used or consumed by churches which make no charge whatsoever for the services they render. The purchase must be paid for directly out of the church treasury. WV Code § 11-15-9(a)(5)

PURCHASES OF CERTAIN SPECIFIC SERVICES AND TANGIBLE PERSONAL PROPERTY

A. Purchases of electronic data processing services and related software but not data processing equipment, materials and supplies. WV Code § 11-15-9(a)(21)

B. Purchases of services by one corporation, partnership or limited liability company from another corporation, partnership or limited liability company but only when the entities are members of the same controlled group or related taxpayers as defined in Section 267 of the Internal Revenue Code. WV Code § 11-15-9(a)(23)

C. Purchases of computer hardware and software directly incorporated into manufactured products; certain leases; electronic data processing service; computer hardware and software directly used in communication; educational software; internet advertising; high technology business services directly used in fulfillment of a government contract. WV Code § 11-15-9h

D. Purchases of motion picture films, coin-operated video arcade machines and other video arcade games for any use upon which there will be a charge subject to sales tax. WV Code § 11-15-9(a)(32)

E. Purchases by a licensed carrier of persons or property, or by a government entity, of aircraft repair, remodeling and maintenance services for an aircraft, engine or other component part of an aircraft, or purchases of tangible personal property that is permanently affixed as a component part of an aircraft as part of the repair, remodeling or maintenance of aircraft, aircraft engines or aircraft component parts, and purchases by a licensed carrier of persons or property, or by a government entity, of machinery, tools or equipment, directly used or consumed exclusively in the repair, remodeling or maintenance of aircraft, aircraft engines or aircraft component parts. WV Code § 11-15-9(a)(33)

REVERSE SIDE OF EXEMPTION CERTIFICATE MUST BE COMPLETED TO BE CONSIDERED VALID

I understand that this certificate may not be used to make tax free purchases of items or services which are not for an exempt purpose and that I will pay the Consumers Sales or Use Tax on tangible personal property or services purchased pursuant to this certificate and subsequently used or consumed in a taxable manner. In addition, I understand that I will be liable for the tax due, plus substantial penalties and interest, for any erroneous or false use of this certificate.

NAME OF PURCHASER

STREET ADDRESS

 

 

 

 

SIGNATURE OF OWNER, PARTNER, OFFICER OF CORPORATION, ETC.

CITY

 

 

 

 

TITLE

STATE

ZIP CODE

 

 

 

GENERALINSTRUCTIONS

An Exemption Certificate may be used only to claim exemption from tax upon a purchase of tangible personal property or services which will be used for an exempt purpose as stated on the front of this form.

ApurchasermayfileablanketExemptionCertificatewiththevendortocoveradditionalpurchasesofthesamegeneraltypeofproperty or service. However, each subsequent sales slip or purchase invoice evidencing a transaction covered by a blanket Exemption Certificate must show the purchaser’s name, address and Business Registration Certificate Number for purposes of certification.

INSTRUCTIONSFORPURCHASER

To purchase tangible personal property or services tax exempt, you must possess a valid Business Registration Certificate and you must properly complete this Exemption Certificate and present it to your supplier. To be properly completed, all entries on this Exemption Certificate must be filled in.

Your Business Registration Certificate (and any duplicates) may be suspended or revoked if you or someone acting on your behalf willfully issues this certificate for the purpose of making a tax exempt purchase of tangible personal property and/or services that is not used in a tax exempt manner (as stated on the front of this form).

When property or services are purchased tax exempt with an Exemption Certificate, but later used or consumed in a non exempt manner, the purchaser must pay Sales or Use Tax on the purchase price.

The willful issuance of a false or fraudulent Exemption Certificate with the intent to evade Sales or Use Tax is a misdemeanor.

Your misuse of this Certificate with intent to evade the Sales or Use Tax shall also result in your being subject to:

A penalty of fifty percent of the tax that would have been due

had there not been a misuse of such certificate.

This is in addition to any other penalty imposed by the Law.

In the event you make false or fraudulent use of this Certificate with intent to evade the tax, you may be assessed for the tax at any time subsequent to such use.

INSTRUCTIONSFORVENDOR

At the time the property is sold or the service is rendered, you must obtain from your customer this Certificate, properly completed, (or a Direct Pay Permit number issued by the West Virginia Department of Tax and Revenue), or the sale will be deemed a taxable sale, unless the property or service sold is exempt per se from Sales Tax. Your failure to collect tax on such taxable sale will make you personally liable for the tax, plus penalties and interest.

Additionalinformationmayberequiredtosubstantiatethatthesalewasforexemptpurposes. InorderforthisCertificatetobeproperly completed, it must be issued by a purchaser who has a valid Business Registration Certificate and must have all entries completed by the purchaser.

A timely received certificate which contains a material deficiency will be considered satisfactory if such deficiency is subsequently corrected.

You must keep this certificate for at least three years after the due date of the last return to which it relates, or the date when such return was filed, if later.

You must maintain a reasonable method of associating a particular exempt sale to a customer with the Exemption Certificate you have on file for such customer.

INSTRUCTIONSFORVENDORANDPURCHASER

If you, as vendor or as a purchaser, engage in any business activity in West Virginia without possessing a valid Business Registration Certificate (and you do not clearly qualify for an exemption), you shall be subject to a penalty in an amount not exceeding $100 for the first day on which such sales or purchases are made, plus an amount not exceeding $100 for each subsequent day on which such sales or purchases are made.

Please begin using this Certificate immediately.

Form Information

Fact Name Description
Purpose of the Form The WV/CST-280 Exemption Certificate is used to claim exemption from Consumers Sales and Service Tax and Use Tax for specific purchases. It cannot be used for gasoline or special fuel purchases.
Eligibility Requirements To use this certificate, the purchaser must hold a valid Business Registration Certificate and must complete the form accurately. This ensures that the exemption applies only to eligible purchases.
Governing Laws The exemptions are governed by West Virginia Code § 11-15-9, which outlines various categories of exempt purchases, including those for resale, agricultural production, and non-profit organizations.
Validity Conditions The certificate must be properly completed, and the reverse side must also be filled out. Misuse of the certificate can result in penalties, including substantial fines and interest on unpaid taxes.

Detailed Guide for Filling Out Wv Tax Exempt

Filling out the West Virginia Tax Exempt form requires careful attention to detail. Ensure that all necessary information is provided accurately to avoid any issues with tax compliance. After completing the form, present it to your vendor to make tax-exempt purchases.

  1. Obtain the WV Tax Exempt form (WV/CST-280 Exemption Certificate).
  2. Enter the name of the vendor in the designated field.
  3. Fill in the date on which you are completing the form.
  4. Check the appropriate box for either a single purchase certificate or a blanket certificate.
  5. Provide the street address, city, state, and ZIP code of the vendor.
  6. As the purchaser, certify that you are making an exempt purchase by signing your name.
  7. Enter your valid Business Registration Certificate number.
  8. Describe your principal business activity in the provided space.
  9. Select the reason for claiming the exemption by checking the applicable box or boxes.
  10. Complete the reverse side of the form, ensuring all required information is filled out.
  11. Sign the form, including your title, and provide your street address, city, state, and ZIP code.

Obtain Answers on Wv Tax Exempt

  1. What is the purpose of the WV Tax Exempt form?

    The WV Tax Exempt form, also known as the Consumers Sales and Service Tax and Use Tax Exemption Certificate (WV/CST-280), is used to claim exemption from sales tax on certain purchases of tangible personal property or taxable services. It is important to ensure that the purchases qualify for exemption as outlined in the form.

  2. Who can use the WV Tax Exempt form?

    This form can be used by individuals or organizations that hold a valid Business Registration Certificate and are making purchases for exempt purposes. This includes businesses purchasing items for resale, exempt commercial agricultural producers, government agencies, certain nonprofit organizations, schools, and churches.

  3. What types of purchases are exempt?

    Exempt purchases include:

    • Items purchased for resale.
    • Tangible personal property or services used in commercial agricultural production.
    • Purchases made by government entities and certain nonprofit organizations.
    • Specific services such as electronic data processing services and related software.
  4. What information is required to complete the form?

    The form must include the name and address of the vendor, the date of purchase, and the purchaser's name, address, and Business Registration Certificate number. Additionally, the purchaser must indicate the reason for the exemption by checking the appropriate boxes on the form.

  5. What happens if the form is not completed properly?

    If the form is not completed correctly, it may be deemed invalid, which means the purchase could be subject to sales tax. Vendors are required to collect tax on sales unless they have a properly completed exemption certificate or a Direct Pay Permit number.

  6. Can the form be used for multiple purchases?

    Yes, a blanket exemption certificate can be filed with the vendor to cover additional purchases of the same general type of property or service. However, each sales slip or purchase invoice must still show the purchaser’s name, address, and Business Registration Certificate number.

  7. What are the consequences of misusing the form?

    Misuse of the exemption certificate can lead to significant penalties. If a purchaser uses the certificate for non-exempt purposes, they may be liable for the tax due, along with penalties and interest. Willfully issuing a false certificate is considered a misdemeanor.

  8. How long must vendors keep the exemption certificate on file?

    Vendors are required to retain the exemption certificate for at least three years after the due date of the last return to which it relates, or the date when such return was filed, if later. This ensures proper documentation in case of an audit.

Common mistakes

Filling out the West Virginia Tax Exempt form can be straightforward, but many make common mistakes that can lead to complications. One frequent error is failing to check the appropriate box for the type of certificate being requested. Whether it’s a single purchase or a blanket certificate, selecting the wrong option can invalidate the form.

Another mistake is neglecting to provide a valid Business Registration Certificate number. This number is essential for verifying that the purchaser is eligible for tax exemption. Without it, the form may be rejected, and the purchaser could be liable for taxes.

Many individuals also forget to specify the reason for the exemption. The form requires purchasers to check applicable boxes that justify the tax-exempt status. Failing to do so can lead to confusion and potential tax liabilities.

Inaccurate or incomplete entries can also cause issues. All fields on the form must be filled out completely. Leaving out any information, such as the name of the vendor or the purchaser's address, can render the certificate invalid.

Some people overlook the importance of signing the form. A signature is not just a formality; it confirms that the purchaser understands the implications of the exemption. Without a signature, the certificate may be deemed incomplete.

Another common pitfall is misunderstanding the types of purchases that qualify for exemption. Some purchasers mistakenly believe that all items are exempt, but this is not the case. For example, gasoline and special fuel purchases do not qualify, and this must be clearly understood.

Additionally, purchasers often forget to complete the reverse side of the exemption certificate. This side contains crucial information that must be filled out for the certificate to be considered valid.

Miscommunication between the vendor and purchaser can also lead to mistakes. Vendors must ensure they are collecting the correct documentation from purchasers. If the vendor does not verify the certificate, they may be held liable for unpaid taxes.

Finally, some individuals fail to keep copies of their completed exemption certificates. Maintaining records is vital for both purchasers and vendors. This documentation can be essential in case of audits or disputes regarding tax-exempt purchases.

By being aware of these common mistakes, individuals can better navigate the process of filling out the West Virginia Tax Exempt form and ensure compliance with tax regulations.

Documents used along the form

The West Virginia Tax Exempt form, known as the WV/CST-280 Exemption Certificate, is essential for individuals and organizations seeking to make tax-exempt purchases. Alongside this form, several other documents are commonly utilized to ensure compliance with tax regulations. Each of these documents serves a specific purpose in the process of claiming exemptions and maintaining proper records. Below is a list of documents frequently associated with the WV Tax Exempt form.

  • Business Registration Certificate: This certificate proves that a business is registered with the state and is necessary for claiming tax exemptions. It must be valid and current.
  • Direct Pay Permit: This permit allows businesses to pay sales tax directly to the state rather than to the vendor at the time of purchase, facilitating tax-exempt transactions.
  • Exemption Certificate for Nonprofit Organizations: Nonprofits must present this certificate to claim exemptions on purchases related to their exempt purposes, ensuring compliance with IRS regulations.
  • Government Purchase Orders: Government entities use these orders to document purchases made under tax-exempt status, ensuring that all transactions are properly recorded.
  • Sales Tax Exemption Application: This application is submitted to the state to obtain an exemption certificate, outlining the reasons for the exemption and the type of organization seeking it.
  • Invoices with Exemption Claims: Vendors should maintain copies of invoices that clearly indicate tax-exempt purchases, providing proof of the transaction and the basis for the exemption.
  • Records of Tax-Exempt Purchases: Both vendors and purchasers must keep detailed records of tax-exempt purchases, including the exemption certificate and related documentation, for at least three years.
  • IRS Form 990: Nonprofit organizations often file this form, which provides financial information and is necessary for maintaining tax-exempt status under federal law.
  • State Tax Exemption Guidelines: These guidelines provide information on the types of purchases eligible for tax exemption, helping organizations understand their rights and responsibilities.
  • Vendor Compliance Certificates: Vendors may require compliance certificates from purchasers to confirm that they are eligible to make tax-exempt purchases under state law.

Understanding and properly utilizing these documents can help individuals and organizations navigate the complexities of tax exemptions in West Virginia. It is crucial to ensure that all forms are completed accurately and maintained for compliance purposes.

Similar forms

  • Sales Tax Exemption Certificate: Similar to the WV Tax Exempt form, this document is used across various states to certify that a purchase is exempt from sales tax. It requires the purchaser to provide their tax identification number and the reason for the exemption, just like the WV form.
  • IRS Form 990: Nonprofit organizations often file this form to report their financial information. It demonstrates their tax-exempt status under section 501(c)(3) or 501(c)(4) of the Internal Revenue Code, similar to how the WV Tax Exempt form verifies the purchaser's exempt status.
  • Direct Pay Permit: This document allows businesses to make tax-exempt purchases by paying the tax directly to the state instead of the vendor. Like the WV Tax Exempt form, it requires a valid registration number and is meant for specific types of purchases.
  • Nonprofit Organization Exemption Letter: This letter, issued by the IRS, confirms an organization’s tax-exempt status. It serves a similar purpose to the WV form by verifying that the organization is eligible for tax exemptions when making purchases.
  • State-Specific Exemption Certificates: Many states have their own exemption certificates for specific types of purchases, such as agricultural or educational materials. These documents function similarly to the WV Tax Exempt form by outlining eligible exemptions and requiring proper completion.
  • Form ST-5 (Massachusetts Sales Tax Exempt Form): This form is used in Massachusetts for tax-exempt purchases. Like the WV form, it requires the purchaser to indicate the reason for the exemption and to provide identification details.
  • Form ST-3 (New York Resale Certificate): In New York, this certificate allows businesses to purchase goods without paying sales tax if the items will be resold. It is akin to the WV Tax Exempt form, as both require the purchaser to declare their intent and provide necessary identification.
  • Certificate of Exemption (California): This certificate allows certain organizations in California to make tax-exempt purchases. Similar to the WV form, it requires information about the organization and the nature of the exempt purchase.

Dos and Don'ts

When filling out the WV Tax Exempt form, there are important dos and don'ts to keep in mind. Following these guidelines can help ensure a smooth process.

  • Do read the instructions carefully before completing the form.
  • Do ensure all sections are filled out completely, including your name, address, and Business Registration Certificate number.
  • Do check the applicable box for the type of exemption you are claiming.
  • Do sign the form to validate your claim.
  • Don't use the form for purchases of gasoline or special fuel.
  • Don't submit the form without a valid Business Registration Certificate.
  • Don't forget to complete the reverse side of the certificate; it is required for validity.

By adhering to these guidelines, you can avoid potential issues and ensure that your tax-exempt purchases are processed correctly.

Misconceptions

Misconceptions about the West Virginia Tax Exempt form can lead to confusion for both vendors and purchasers. Below are seven common misunderstandings, along with clarifications for each.

  • Tax Exempt Form Can Be Used for Any Purchase: Many believe that the exemption certificate allows tax-free purchases for all items. In reality, it can only be used for specific exempt purposes as stated on the form.
  • Only Nonprofits Can Use the Exemption: Some think only nonprofit organizations qualify for tax exemptions. However, businesses and certain government entities also qualify if they meet specific criteria.
  • Gasoline Purchases Are Tax Exempt: A common misconception is that the exemption certificate can be used to purchase gasoline. This is incorrect; the form explicitly states that it cannot be used for gasoline or special fuel.
  • All Vendors Must Accept the Exemption Certificate: It is assumed that all vendors are required to accept the exemption certificate. Vendors must ensure that the certificate is properly completed and valid before accepting it.
  • Blanket Certificates Are Always Valid: Some believe that blanket exemption certificates cover all future purchases without limitations. While they can simplify the process, each purchase must still be properly documented.
  • Completing the Form Is Optional: There is a misconception that filling out the form is not necessary for tax exemption. In fact, the form must be completely filled out to be considered valid.
  • Misuse of the Certificate Has No Consequences: Many think that misusing the exemption certificate will not lead to penalties. However, there are significant penalties for issuing a false or fraudulent certificate.

Understanding these misconceptions can help ensure compliance with tax regulations and avoid unnecessary penalties.

Key takeaways

Filling out and using the West Virginia Tax Exempt form (WV/CST-280) is essential for making certain purchases without incurring sales tax. Here are key takeaways regarding the process:

  • Eligibility for Exemption: The form can only be used for purchases that are explicitly exempt, such as items for resale or purchases by exempt organizations.
  • Proper Completion: All sections of the form must be filled out completely. Incomplete forms may not be accepted.
  • Business Registration Certificate: A valid Business Registration Certificate is required to qualify for tax exemption. This certificate must be referenced on the form.
  • Types of Exempt Purchases: Exemptions apply to various categories, including purchases by government entities, nonprofit organizations, and certain agricultural producers.
  • Blanket Certificates: A blanket exemption certificate can be filed for multiple purchases of the same type, but each transaction must still be documented properly.
  • Consequences of Misuse: Misusing the exemption certificate can lead to penalties, including fines and interest on unpaid taxes.
  • Vendor Responsibilities: Vendors must collect the completed certificate at the time of sale to avoid liability for unpaid taxes.
  • Record Keeping: Vendors are required to retain the exemption certificate for at least three years after the last tax return due date to substantiate exempt sales.

Understanding these points can help ensure compliance and avoid potential tax liabilities when using the WV Tax Exempt form.