
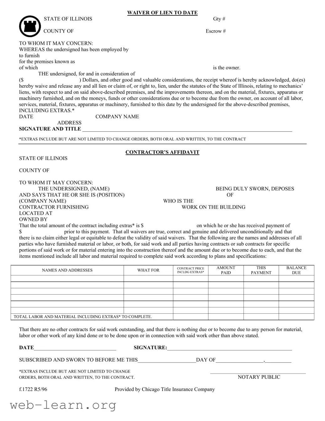
WAIVER OF LIEN TO DATE
S STATE OF ILLINOIS Gty #
COUNTY OF Escrow #
TO WHOM IT MAY CONCERN:
WHEREAS the undersigned has been employed by
to furnish
for the premises known as
of which is the owner.
THE undersigned, for and in consideration of
($ ) Dollars, and other good and valuable considerations, the receipt whereof is hereby acknowledged, do(es)
hereby waive and release any and all lien or claim of, or right to, lien, under the statutes of the State of Illinois, relating to mechanics’
liens, with respect to and on said above-described premises, and the improvements thereon, and on the material, fixtures, apparatus or
machinery furnished, and on the moneys, funds or other considerations due or to become due from the owner, on account of all labor,
services, material, fixtures, apparatus or machinery, furnished to this date by the undersigned for the above-described premises,
INCLUDING EXTRAS.*
DATE COMPANY NAME
ADDRESS
SIGNATURE AND TITLE _______________________________________________________________________________
*EXTRAS INCLUDE BUT ARE NOT LIMITED TO CHANGE ORDERS, BOTH ORAL AND WRITTEN, TO THE CONTRACT
CONTRACTOR’S AFFIDAVIT
STATE OF ILLINOIS
COUNTY OF
TO WHOM IT MAY CONCERN:
THE UNDERSIGNED, (NAME) BEING DULY SWORN, DEPOSES
AND SAYS THAT HE OR SHE IS (POSITION) OF
(COMPANY NAME) WHO IS THE
CONTRACTOR FURNISHING WORK ON THE BUILDING
LOCATED AT
OWNED BY
That the total amount of the contract including extras* is $ on which he or she has received payment of
$ prior to this payment. That all waivers are true, correct and genuine and delivered unconditionally and that
there is no claim either legal or equitable to defeat the validity of said waivers. That the following are the names and addresses of all
parties who have furnished material or labor, or both, for said work and all parties having contracts or sub contracts for specific
portions of said work or for material entering into the construction thereof and the amount due or to become due to each, and that the
items mentioned include all labor and material required to complete said work according to plans and specifications:
NAMES AND ADDRESSES WHAT FOR
CONTRACT PRICE
INCLDG EXTRAS*
AMOUNT
PAID
THIS
PAYMENT
BALANCE
DUE
TOTAL LABOR AND MATERIAL INCLUDING EXTRAS* TO COMPLETE.
That there are no other contracts for said work outstanding, and that there is nothing due or to become due to any person for material,
labor or other work of any kind done or to be done upon or in connection with said work other than above stated.
DATE_______________________________ SIGNATURE:_______________________________________________
SUBSCRIBED AND SWORN TO BEFORE ME THIS______________________DAY OF__________________,__________
*EXTRAS INCLUDE BUT ARE NOT LIMITED TO CHANGE _____________________________________________
ORDERS, BOTH ORAL AND WRITTEN, TO THE CONTRACT. NOTARY PUBLIC
f.1722 R5/96 Provided by Chicago Title Insurance Company