Homepage Blank Texas Pwd 1238 Form
Outline

The Texas PWD 1238 form plays a crucial role for individuals who have purchased or acquired a boat or motor, but find themselves in a unique situation where the title is still in the name of a previous owner. This form is designed for applicants who are not licensed marine dealers and who have obtained a written bill of sale from the seller. To successfully complete this form, applicants must ensure that they have the necessary documentation, including a signed title from the owner on record or a signed statement indicating no financial interest. Additionally, the form requires a clear progression of ownership to be established through the provided documentation. It is important to note that this request for titling exemption can only be submitted if the previous owners cannot be reached or have refused to title the asset as mandated by Texas law. The information collected through this form is not only vital for processing ownership but also for the collection of sales tax and enforcement of state regulations. Proper completion and submission of the PWD 1238 form is essential for a smooth transition of ownership and compliance with state requirements.

Sample - Texas Pwd 1238 Form

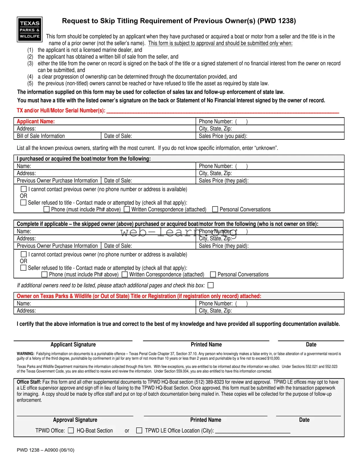
Request to Skip Titling Requirement of Previous Owner(s) (PWD 1238)

This form should be completed by an applicant when they have purchased or acquired a boat or motor from a seller and the title is in the name of a prior owner (not the seller’s name). This form is subject to approval and should be submitted only when:

(1)the applicant is not a licensed marine dealer, and

(2)the applicant has obtained a written bill of sale from the seller, and

(3)either the title from the owner on record is signed on the back of the title or a signed statement of no financial interest from the owner on record can be submitted, and

(4)a clear progression of ownership can be determined through the documentation provided, and

(5)the previous (non-titled) owners cannot be reached or have refused to title the asset as required by state law.

The information supplied on this form may be used for collection of sales tax and follow-up enforcement of state law.

You must have a title with the listed owner’s signature on the back or Statement of No Financial Interest signed by the owner of record.

TX and/or Hull/Motor Serial Number(s): _______________________________________________________________________________________

Applicant Name:

 

Phone Number: (

)

Address:

 

City, State, Zip:

 

Bill of Sale Information

Date of Sale:

Sales Price (you paid):

List all the known previous owners, starting with the most current. If you do not know specific information, enter “unknown”.

I purchased or acquired the boat/motor from the following:

Name:

 

Phone Number: (

)

Address:

 

City, State, Zip:

 

Previous Owner Purchase Information

Date of Sale:

Sales Price (they paid):

I cannot contact previous owner (no phone number or address is available)

 

 

 

OR

 

 

 

 

Seller refused to title - Contact made or attempted by (check all that apply):

 

 

 

Phone (must include Ph# above)

Written Correspondence (attached)

Personal Conversations

Complete if applicable – the skipped owner (above) purchased or acquired boat/motor from the following (who is not owner on title):

Name:

 

Phone Number: (

)

Address:

 

City, State, Zip:

 

Previous Owner Purchase Information

Date of Sale:

Sales Price (they paid):

I cannot contact previous owner (no phone number or address is available)

 

 

 

OR

 

 

 

 

Seller refused to title - Contact made or attempted by (check all that apply):

 

 

 

Phone (must include Ph# above)

Written Correspondence (attached)

Personal Conversations

If additional owners need to be listed, please attach additional pages and check this box:

Owner on Texas Parks & Wildlife (or Out of State) Title or Registration (if registration only record) attached:

Name:

Phone Number: (

)

Address:

City, State, Zip:

 

I certify that the above information is true and correct to the best of my knowledge and have provided all supporting documentation available.

Applicant Signature

Printed Name

Date

WARNING: Falsifying information on documents is a punishable offence – Texas Penal Code Chapter 37, Section 37.10. Any person who knowingly makes a false entry in, or false alteration of a governmental record is guilty of a felony of the third degree, punishable by confinement in jail for any term of not more than 10 years or less than 2 years and punishable by a fine not to exceed $10,000.

Texas Parks and Wildlife Department maintains the information collected through this form. With few exceptions, you are entitled to be informed about the information we collect. Under Sections 552.021 and 552.023 of the Texas Government Code, you are also entitled to receive and review the information. Under Section 559.004, you are also entitled to have this information corrected.

Office Staff: Fax this form and all other supplemental documents to TPWD HQ-Boat section (512) 389-8323 for review and approval. TPWD LE offices may opt to have a LE office supervisor approve and sign off in lieu of faxing to the TPWD HQ-Boat Section. Once approved, this form must be submitted with the transaction paperwork for imaging. A copy should be made by office staff and put on top of batch documentation being mailed in. These copies will be collected for the purpose of follow-up enforcement.

Approval Signature

TPWD Office:

HQ-Boat Section

or

 

 

 

 

 

 

Printed Name

 

 

Date

 

 

 

 

 

 

TPWD LE Office Location (City): ____________________________

 

PWD 1238 – A0900 (06/10)

Form Information

Fact Name Details
Form Purpose The Texas PWD 1238 form allows applicants to request a waiver for the titling requirement when the title is in the name of a previous owner.
Eligibility Criteria Applicants must not be licensed marine dealers, must have a written bill of sale, and must provide a signed title or a Statement of No Financial Interest.
Ownership Verification Documentation must establish a clear progression of ownership to validate the request.
Previous Owner Contact Applicants must demonstrate that previous owners cannot be reached or have refused to title the asset.
Sales Tax Implications The information provided may be used for sales tax collection and enforcement of state law.
Signature Requirement A signature from the owner of record is necessary on the title or the Statement of No Financial Interest.
Legal Consequences Falsifying information on this form is a felony under Texas Penal Code Chapter 37, Section 37.10.
Document Submission Fax the completed form and all supporting documents to the Texas Parks and Wildlife Department for review and approval.
Governing Law This form is governed by Texas law, specifically the Texas Government Code Sections 552.021, 552.023, and 559.004.

Detailed Guide for Filling Out Texas Pwd 1238

After gathering all necessary documentation, the next step is to fill out the Texas PWD 1238 form accurately. Completing this form is essential for ensuring that the titling requirements are met when acquiring a boat or motor from a previous owner. Follow the steps below to fill out the form correctly.

  1. Obtain the Texas PWD 1238 form from the Texas Parks and Wildlife Department website or your local office.
  2. Fill in the TX and/or Hull/Motor Serial Number(s) at the top of the form.
  3. Provide your Applicant Name, Phone Number, and Address including City, State, Zip.
  4. Enter the Date of Sale and Sales Price of the boat or motor you purchased.
  5. List all known previous owners, starting with the most current. If information is unknown, write “unknown.” Include their Name, Phone Number, Address, and City, State, Zip.
  6. For each previous owner, provide their Date of Sale and Sales Price if available.
  7. Indicate whether you can contact the previous owner. Check the appropriate box for either no phone number or address available or seller refused to title. Include details of any attempts to contact them.
  8. If applicable, complete the section for the skipped owner by providing their Name, Phone Number, Address, and City, State, Zip.
  9. Repeat the previous steps for any additional owners, attaching extra pages if necessary.
  10. Attach any relevant documentation, such as the Owner on Texas Parks & Wildlife Title or Registration.
  11. Sign the form, certifying that all information is true and correct to the best of your knowledge.
  12. Print your name and date your signature.

After completing the form, it should be faxed along with all supporting documents to the TPWD HQ-Boat section for review and approval. Ensure a copy is made for your records and placed on top of the batch documentation being mailed in. This process is critical for the subsequent approval and imaging of the transaction paperwork.

Obtain Answers on Texas Pwd 1238

  1. What is the purpose of the Texas PWD 1238 form?

    The Texas PWD 1238 form, also known as the Request to Skip Titling Requirement of Previous Owner(s), is used by individuals who have purchased a boat or motor but find that the title is still in the name of a prior owner. This form allows applicants to request an exemption from the usual titling requirements under specific conditions. It is important to note that this form is subject to approval by the Texas Parks and Wildlife Department (TPWD).

  2. Who should complete the PWD 1238 form?

    This form should be completed by anyone who has acquired a boat or motor from a seller who is not a licensed marine dealer. The applicant must also have a written bill of sale from the seller and must be able to provide documentation showing a clear progression of ownership. Additionally, the previous owners must either be unreachable or have refused to title the asset as required by state law.

  3. What documentation is required to submit with the PWD 1238 form?

    When submitting the PWD 1238 form, you must include:

    • A signed title from the owner on record or a signed Statement of No Financial Interest.
    • A written bill of sale from the seller.
    • Any available documentation that shows the progression of ownership.
    • Contact attempts made to reach previous owners, such as phone calls or written correspondence.
  4. What happens after I submit the PWD 1238 form?

    Once you submit the PWD 1238 form along with all required documentation, the TPWD will review your request. If approved, the form must be included with your transaction paperwork for imaging. It is advisable to keep a copy of the submitted form and documentation for your records. The TPWD may also follow up for enforcement purposes based on the information provided.

  5. What are the consequences of providing false information on the PWD 1238 form?

    Providing false information on the PWD 1238 form is a serious offense. Under Texas Penal Code Chapter 37, Section 37.10, individuals who knowingly make false entries in governmental records can be charged with a felony. This may result in imprisonment for up to ten years and/or a fine not exceeding $10,000. It is essential to ensure that all information submitted is accurate and truthful.

Common mistakes

When filling out the Texas PWD 1238 form, many applicants make common mistakes that can delay the approval process or even lead to rejection. One frequent error is failing to provide a complete and accurate bill of sale. The bill of sale must be written and signed by the seller. Without it, the application cannot proceed.

Another mistake involves not including the signature of the previous owner on the title. The form requires that either the title is signed on the back or a signed statement of no financial interest is submitted. Omitting this crucial detail can result in the form being returned.

Some applicants neglect to provide a clear progression of ownership. The form asks for a list of all known previous owners, starting with the most current. If this information is incomplete or inaccurate, it can raise questions about the legitimacy of the ownership transfer.

Additionally, many people fail to check off the appropriate boxes regarding attempts to contact previous owners. It’s essential to indicate whether contact was made by phone, written correspondence, or personal conversations. This information helps demonstrate the applicant’s effort to reach out to previous owners.

Another common oversight is not including the required contact information for both the applicant and the previous owners. Missing phone numbers or addresses can create complications in verifying ownership and contacting individuals involved in the transaction.

Applicants sometimes forget to attach necessary documentation. If additional owners need to be listed, it’s crucial to include extra pages and check the corresponding box on the form. Failing to do so may lead to delays or requests for further information.

Moreover, some individuals do not understand the importance of accuracy. Providing false information, even unintentionally, can lead to serious legal consequences. It’s vital to ensure that all information is truthful and complete to avoid potential penalties.

Another mistake is not reviewing the form before submission. A simple review can catch errors or omissions that could delay processing. Taking the time to double-check all entries can save time and frustration later.

Lastly, applicants may overlook the submission process. The form must be faxed to the appropriate TPWD office for review and approval. Not following the correct submission guidelines can result in unnecessary delays.

By being aware of these common mistakes, applicants can improve their chances of successfully completing the Texas PWD 1238 form and avoid potential setbacks in the titling process.

Documents used along the form

When dealing with the Texas PWD 1238 form, several other documents may also be required or beneficial for a smooth transaction. Each of these documents serves a specific purpose in the process of acquiring a boat or motor. Below is a list of commonly used forms and documents.

  • Bill of Sale: This document serves as proof of purchase and details the transaction between the buyer and seller. It includes information such as the sale date, price, and descriptions of the boat or motor.
  • Title Transfer Application: Required when transferring ownership of a boat or motor, this application is submitted to the Texas Parks and Wildlife Department to officially record the new owner.
  • Statement of No Financial Interest: This form is used when the previous owner cannot be contacted or refuses to title the asset. It confirms that the previous owner has no financial claim on the boat or motor.
  • Previous Owner's Title: If available, a copy of the previous owner's title can help establish a clear chain of ownership and simplify the titling process.
  • Affidavit of Ownership: This sworn statement can be used to declare ownership when traditional documentation is not available, providing additional legal backing to the claim.
  • Identification Documents: A government-issued ID or driver's license may be required to verify the identity of the applicant and ensure the legitimacy of the transaction.
  • Inspection Report: If applicable, this document verifies that the boat or motor meets safety and registration standards, which can be crucial for the approval process.
  • Sales Tax Receipt: Proof of sales tax payment may be necessary to finalize the transaction and ensure compliance with state tax laws.
  • Correspondence Records: Any written communication with previous owners or sellers can be helpful in demonstrating attempts to reach out and clarify ownership issues.

Gathering these documents can streamline the process and help avoid potential complications. Ensure that all information is accurate and complete to facilitate a successful transaction.

Similar forms

The Texas PWD 1238 form, which allows applicants to skip the titling requirement of previous owners under specific conditions, shares similarities with several other documents. Each of these documents serves a unique purpose in the realm of ownership transfer and vehicle registration. Below is a list of six documents that are comparable to the Texas PWD 1238 form:

  • Bill of Sale: This document serves as proof of purchase and includes details such as the buyer's and seller's information, the item sold, and the sale price. Like the PWD 1238, it is essential for establishing a clear transfer of ownership.
  • Application for Title: This form is used to request a new title for a vehicle or boat. It requires information about the current owner and the previous owner, similar to the PWD 1238, which also seeks to clarify ownership history.
  • Affidavit of Heirship: In cases where ownership is transferred through inheritance, this document verifies the rightful heir's claim to the property. Both the affidavit and the PWD 1238 require proof of ownership history and the inability to contact previous owners.
  • Power of Attorney: This document allows one person to act on behalf of another in legal matters. If a previous owner cannot be reached, a power of attorney may help facilitate the transfer process, akin to the provisions outlined in the PWD 1238.
  • Statement of No Financial Interest: This statement is used when the owner on record claims no financial stake in the property. It is a critical component of the PWD 1238, as it can be submitted to support the request to skip titling requirements.
  • Transfer of Ownership Form: This document is often required for transferring ownership of vehicles or boats. It captures details about both the seller and the buyer, paralleling the PWD 1238 in its function to document ownership transitions.

Dos and Don'ts

When filling out the Texas PWD 1238 form, it is important to follow specific guidelines to ensure accurate submission. Below is a list of things to do and avoid during the process.

  • Do provide all required information, including your name, contact details, and the details of the boat or motor.
  • Do include a signed bill of sale from the seller to validate your purchase.
  • Do ensure that the title has the previous owner’s signature on the back or include a Statement of No Financial Interest.
  • Do check that all known previous owners are listed, starting with the most current.
  • Don't submit the form without a clear progression of ownership through the documentation.
  • Don't provide false information, as this is considered a punishable offense under Texas law.
  • Don't forget to attach any additional pages if you have more previous owners to list.
  • Don't fail to contact previous owners if possible; document all attempts to reach them.

Misconceptions

Here are six common misconceptions about the Texas PWD 1238 form, along with clarifications to help you understand its purpose and requirements.

  • Misconception 1: The PWD 1238 form can be used by anyone.
  • This form is specifically for applicants who are not licensed marine dealers. It is designed for individuals who have purchased a boat or motor from a seller, and the title is still in the name of a previous owner.

  • Misconception 2: You don’t need a bill of sale to submit the PWD 1238 form.
  • A written bill of sale from the seller is a necessary requirement. This document serves as proof of the transaction and helps establish a clear ownership history.

  • Misconception 3: The form can be submitted without any signature from the previous owner.
  • The title must either have the previous owner's signature on the back or include a signed statement of no financial interest. Without this, the form cannot be processed.

  • Misconception 4: You can submit the form even if you cannot trace the ownership history.
  • A clear progression of ownership must be established through the documentation you provide. If this cannot be done, the form will likely be rejected.

  • Misconception 5: The PWD 1238 form is only for boats.
  • This form applies to both boats and motors. If you acquire either of these items and face title issues, the form is relevant.

  • Misconception 6: Once the form is submitted, you don’t need to follow up.
  • After submission, you should keep track of the approval process. The Texas Parks and Wildlife Department may require additional information or documentation before finalizing your request.

Key takeaways

When filling out the Texas PWD 1238 form, there are several important points to keep in mind. This form is used to request a waiver of the titling requirement for a boat or motor when the title is still in the name of a previous owner.

  • Eligibility Criteria: Only non-licensed marine dealers may complete this form. Ensure you meet this requirement before proceeding.
  • Bill of Sale: You must obtain a written bill of sale from the seller. This document is essential for your application.
  • Owner's Signature: The title must either be signed on the back by the owner on record or include a signed Statement of No Financial Interest.
  • Documented Ownership: You need to provide a clear progression of ownership. This can be established through the documentation you submit.
  • Contact Attempts: If previous owners cannot be reached, document your attempts to contact them. This can include phone calls, written correspondence, or personal conversations.
  • Additional Owners: If there are more previous owners to list, attach additional pages and indicate this on the form.
  • Legal Implications: Be aware that falsifying information on this form is a serious offense under Texas law. It can lead to severe penalties.
  • Submission Process: After completing the form, fax it along with all supporting documents to the Texas Parks and Wildlife Department's Boat Section for review.
  • Keep Copies: Make copies of the completed form and all documents submitted. These copies should be kept on top of the batch documentation being mailed for follow-up enforcement purposes.

Following these guidelines will help ensure a smoother process when using the Texas PWD 1238 form. Accurate and complete information is crucial for approval.