Homepage Blank Texas P 5 Form
Outline

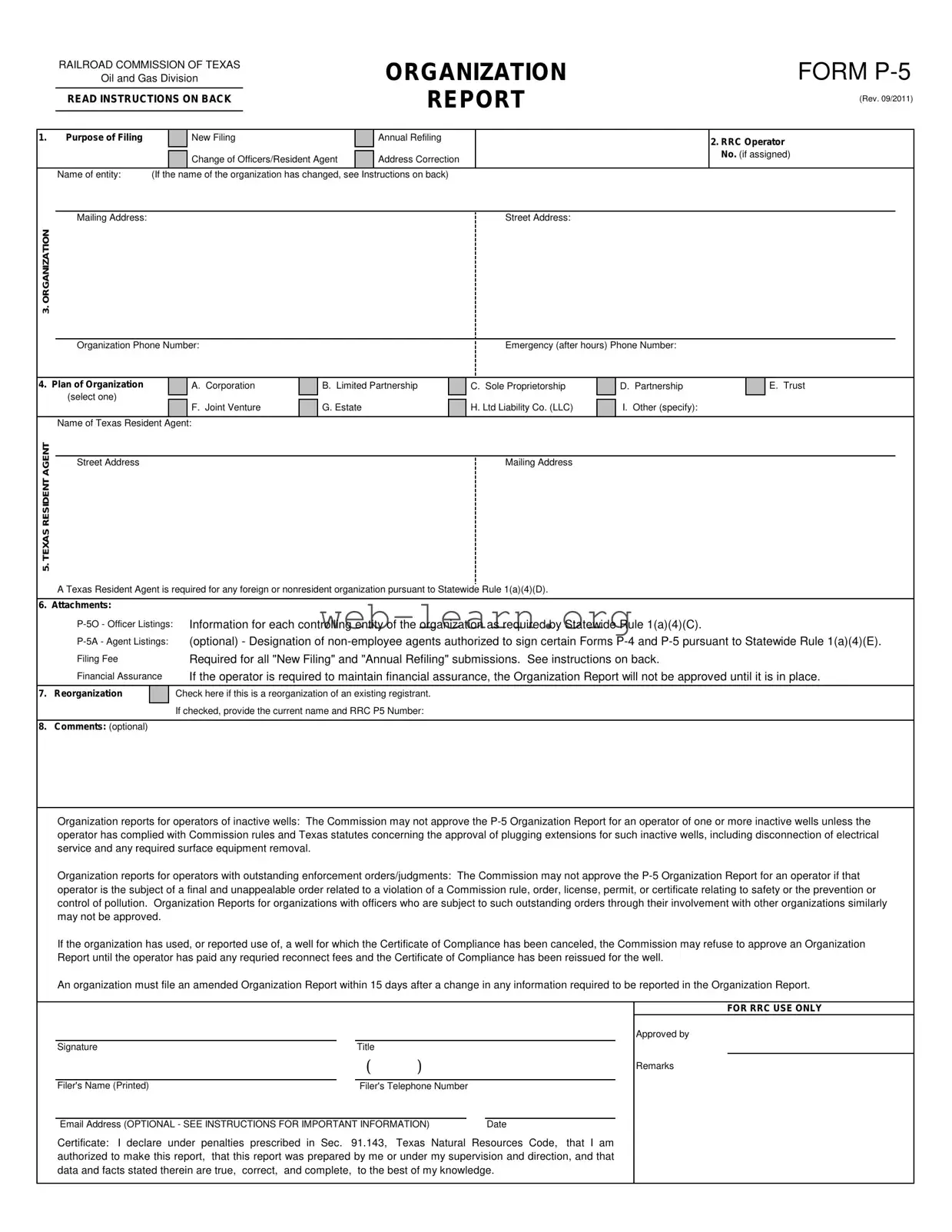
The Texas P-5 form is an essential document utilized by entities operating within the jurisdiction of the Railroad Commission of Texas, specifically in the Oil and Gas Division. This form serves multiple purposes, including the initial filing of an organization report, annual renewals, and updates regarding changes in organizational structure or contact information. It captures critical details such as the name of the entity, mailing address, and phone numbers, ensuring that the Commission has accurate and up-to-date information. Additionally, the P-5 form requires the designation of a Texas resident agent, particularly for foreign or non-resident organizations, to comply with state regulations. The form also includes sections for reporting changes in officers or agents, which must be updated promptly to maintain compliance. Furthermore, the P-5 form mandates the submission of supporting documents, such as officer listings and agent designations, and outlines the financial assurance requirements that may apply to certain operators. By ensuring that all necessary information is accurately reported and updated, organizations can facilitate smoother operations and compliance with state regulations.

Sample - Texas P 5 Form

RAILROAD COMMISSION OF TEXAS

Oil and Gas Division

READ INSTRUCTIONS ON BACK

ORGANIZATION

FORM P-5

REPORT

(Rev. 09/2011)

 

1.

 

Purpose of Filing

 

 

 

New Filing

 

 

 

Annual Refiling

 

 

 

 

2. RRC Operator

 

 

 

 

 

 

Change of Officers/Resident Agent

 

Address Correction

 

 

 

 

No. (if assigned)

 

 

 

 

 

 

 

 

 

 

 

 

 

 

 

 

 

 

 

 

 

 

 

 

 

 

 

 

Name of entity:

(If the name of the organization has changed, see Instructions on back)

 

 

 

 

 

 

 

 

 

 

 

 

 

 

 

 

 

 

 

 

 

 

 

 

 

 

 

 

 

 

Mailing Address:

 

 

 

 

 

 

 

 

 

 

Street Address:

 

 

 

 

 

 

3. ORGANIZATION

 

 

 

 

 

 

 

 

 

 

 

 

 

 

 

 

 

 

 

 

 

 

 

 

 

 

 

 

 

 

 

 

 

 

 

Organization Phone Number:

 

 

 

 

 

 

Emergency (after hours) Phone Number:

 

 

 

 

 

 

 

 

 

 

 

 

 

 

 

 

 

 

 

 

 

 

 

 

4.

Plan of Organization

 

 

 

A. Corporation

 

B. Limited Partnership

 

C. Sole Proprietorship

 

D. Partnership

 

 

E. Trust

 

 

(select one)

 

 

 

F. Joint Venture

 

G. Estate

 

 

H. Ltd Liability Co. (LLC)

 

I. Other (specify):

 

 

 

 

 

 

 

 

 

 

 

 

 

 

 

 

 

 

 

 

Name of Texas Resident Agent:

 

 

 

 

 

 

 

 

 

 

 

 

 

5. TEXAS RESIDENT AGENT

 

 

 

 

 

 

 

 

 

 

 

 

 

 

 

 

 

 

 

 

Street Address

 

 

 

 

 

 

 

 

 

 

Mailing Address

 

 

 

 

 

 

 

 

 

 

 

 

 

 

 

 

 

 

 

 

 

 

 

 

 

 

 

A Texas Resident Agent is required for any foreign or nonresident organization pursuant to Statewide Rule 1(a)(4)(D).

 

 

 

 

 

 

 

 

 

 

 

 

 

 

 

 

 

 

 

 

 

 

 

 

 

6.

Attachments:

 

 

 

 

 

 

 

 

 

 

 

 

 

 

 

 

 

 

 

P-5O - Officer Listings:

 

Information for each controlling entity of the organization as required by Statewide Rule 1(a)(4)(C).

 

 

 

 

 

 

P-5A - Agent Listings:

 

(optional) - Designation of non-employee agents authorized to sign certain Forms P-4 and P-5 pursuant to Statewide Rule 1(a)(4)(E).

 

 

Filing Fee

 

 

 

Required for all "New Filing" and "Annual Refiling" submissions. See instructions on back.

 

 

 

 

 

 

Financial Assurance

 

If the operator is required to maintain financial assurance, the Organization Report will not be approved until it is in place.

 

 

 

 

 

 

 

 

 

 

 

 

 

 

 

 

 

 

 

 

7.

Reorganization

 

 

Check here if this is a reorganization of an existing registrant.

 

 

 

 

 

 

 

 

 

 

 

 

 

If checked, provide the current name and RRC P5 Number:

 

 

 

 

 

 

 

 

 

 

 

 

 

 

 

 

 

 

 

 

 

 

 

 

 

 

 

8.

Comments: (optional)

 

 

 

 

 

 

 

 

 

 

 

 

 

 

 

 

 

Organization reports for operators of inactive wells: The Commission may not approve the P-5 Organization Report for an operator of one or more inactive wells unless the operator has complied with Commission rules and Texas statutes concerning the approval of plugging extensions for such inactive wells, including disconnection of electrical service and any required surface equipment removal.

Organization reports for operators with outstanding enforcement orders/judgments: The Commission may not approve the P-5 Organization Report for an operator if that operator is the subject of a final and unappealable order related to a violation of a Commission rule, order, license, permit, or certificate relating to safety or the prevention or control of pollution. Organization Reports for organizations with officers who are subject to such outstanding orders through their involvement with other organizations similarly may not be approved.

If the organization has used, or reported use of, a well for which the Certificate of Compliance has been canceled, the Commission may refuse to approve an Organization Report until the operator has paid any requried reconnect fees and the Certificate of Compliance has been reissued for the well.

An organization must file an amended Organization Report within 15 days after a change in any information required to be reported in the Organization Report.

SignatureTitle

 

(

)

 

 

Filer's Name (Printed)

 

Filer's Telephone Number

 

 

 

 

 

Email Address (OPTIONAL - SEE INSTRUCTIONS FOR IMPORTANT INFORMATION)

Date

Certificate: I declare under penalties prescribed in Sec. 91.143, Texas Natural Resources Code, that I am authorized to make this report, that this report was prepared by me or under my supervision and direction, and that data and facts stated therein are true, correct, and complete, to the best of my knowledge.

FOR RRC USE ONLY

Approved by

Remarks

INSTRUCTIONS

Organization Report (Form P-5)

REFERENCES: Oil & Gas Statewide Rules 1 (Organization Report; Retention of Records; Notice Requirements), 14 (Plugging), 15 (Inactive Wells and Surface Equipment Requirements), and 78 (Fees, Performance Bonds and Alternate Forms of Financial Security Required To Be Filed); and Pipeline Safety Statewide Rule 58 (Organization Report). The Railroad Commission’s rules may be found on our website at http://www.rrc.state.tx.us/rules/rule.php.

WHO MUST FILE FORM P-5: Any entity performing operations within the jurisdiction of the Commission’s Oil & Gas Division in accordance with Oil and Gas Statewide Rule 1; and each gas and/or liquids company and each master meter operator performing operations within the jurisdiction of the Commission’s Safety Division in accordance with Pipeline Safety Statewide Rule 58. (Master meter operators filing solely as required by the Safety Division, see “Special Instructions For Master Metered System Operators” section below.)

WHEN TO FILE FORM P-5:

INITIAL FILING – Your initial Organization Report must be filed prior to beginning operations within the Commission’s jurisdiction.

RENEWAL FILINGS – Your Organization Report must be refiled annually. The Commission will notify you before your refiling date by mailing you computer-generated Organization Report forms pre-printed with the information currently shown on your Organization Report record. Review the information carefully, update as needed, and then sign and submit the Organization Report renewal to the Commission.

CHANGES - If any information provided on your organization report changes, you must submit a revised organization report within fifteen (15) days of the change, except as noted below:

ADDRESS CHANGES - If the only change is to the organization’s address or telephone number, then you may update that information by sending a signed letter to the P-5 Financial Assurance Unit. No other information may be updated by letter. ORGANIZATION NAME CHANGE – If the name of the organization has changed (due to reorganization or change in the form of business), you must file a new Organization Report in the new name and obtain a new operator number. A new filing submitted for this purpose should reference the prior name by entering that information in Item No. 7.

SPECIFIC ITEMS ON FORM P-5

No. 1: Check the proper block to show the purpose of filing. More than one block may be checked.

No. 2: Your permanent RRC operator number is assigned after the initial filing of your P-5. Your operator number will be required on most reports and forms you file with the Commission.

No. 3: “Name of Entity”: For new filings, enter the full name of your organization. If you are required to register with the Texas Secretary of State, your name shown in Box 3 on the Organization Report should exactly match your name as shown on your Secretary of State registration, including punctuation. (Due to space limitations, the Commission may abbreviate your name for entry into Commission systems.)

No. 4: Check the appropriate plan of organization on all filings. Select only one plan of organization.

No. 5: If you are a foreign or non-resident organization (i.e., your organization is located outside of the State of Texas as indicated by the street address in No. 3), you must designate and maintain a Texas resident agent within the state. A Texas Resident Agent with an address different from that of the organization may also be designated as an alternative to providing separate addresses for the officers on Form P-5O (Organization Report Officer Listing).

No. 7: If you have reorganized and changed your organization name, check the box and provide the previous name and operator number.

SPECIAL INSTRUCTIONS FOR MASTER METERED SYSTEM OPERATORS: If the operation of one or more master metered systems is the only activity for which the Organization Report is being filed, then you should note that in Item No. 8 (Remarks), and observe the following requirements:

The required filing fee for New Filings and Annual Renewals is $225.00.

No financial assurance is required for master meter operators.

The Organization Report must be filed in the name of the legal entity operating the master meter.

The system manager(s) must be identified among the officers on Form P-5O.

A listing of all systems for which the filing entity is responsible must be attached to the Organization Report filing.

FILING FEE: Except as noted above, the filing fee for a New Filing (the initial Organization Report filed by an entity) is $300.00. The filing fee for an Annual Renewal of an entity’s Organization Report will be based on the activities in which the organization is engaged, and may be up to $1,350.00. See Rule 78. (There is no filing fee for an Organization Report filed solely to update officers, agents and/or addresses.)

FINANCIAL ASSURANCE: Most Commission regulated activities, including the operation of wells and pipelines, will require the operator to file and maintain some form of financial assurance (such as a bond, letter of credit, or cash deposit) in varying amounts. If the filing operator is required to maintain financial assurance, any renewal documentation for the financial assurance must be on file for the period covered by the P-5 Organization Report (plus any additional period following expiration of the Organization Report that may be required by your financial assurance documents) before the Organization Report renewal can be approved and processed.

EMAIL ADDRESS: YOU ARE NOT REQUIRED TO PROVIDE AN EMAIL ADDRESS when completing and filing this form. Please be aware that information provided to any governmental body may be subject to disclosure pursuant to the Texas Public Information Act or other applicable federal or state legislation. IF YOU PROVIDE AN EMAIL ADDRESS, YOU AFFIRMATIVELY CONSENT TO THE RELEASE OF THAT EMAIL ADDRESS TO THIRD PARTIES. Other departments within the Railroad Commission also may use the email address you provide to communicate with you.

Mail to: Railroad Commission of Texas

P-5 Financial Assurance Unit

P O Box 12967

Austin, Texas 78711-2967

RAILROAD COMMISSION OF TEXAS

Oil and Gas Division

ORGANIZATION REPORT

FORM P-5O

OFFICER LISTING

(Rev. 09/2011)

 

(File as attachment to Form P-5 Organization Report)

Page ____ of ____

1.Current operator name exactly as shown on P-5 Organization Report

2.RRC Operator No. (if assigned)

PURSUANT TO Oil & Gas Statewide Rule 1(a)(4)(C), information must be provided "for each officer, director, general partner, owner of more than 25% ownership interest, or trustee (hereinafter controlling entity) of the organization."

Instructions:

Attach as many sheets as are needed to identify all required officers.

Full Legal Name: The entity's or individual's full legal name. Please do not use initials.

ID Number: If the filing organization is a Sole Proprietorship (i.e., an individual), you must provide the owner's social security number. Otherwise, you may

provide (at your choice) the officer's social security number, driver's license number, or Texas State Identification number. (Note: The Railroad Commission considers such ID numbers to be confidential information.)

Addresses: You must provide an address for each officer that is different from the address for the organization UNLESS: 1) you have shown a Texas Resident Agent on your Organization Report, and that agent has an address different from that of the organization; or 2) the organization is being operated out of the officer's home.

If an entity is identified as an officer on this form, you must also identify each officer of that entity.

3. OFFICERS

Full Legal Name:

 

 

Title:

 

 

 

 

 

 

Street Address:

 

Check here if operating out of this officer's home.

Mailing Address (if different from Street Address)

 

 

Driver’s Lic.

 

State ID

 

Social Security No.

State (if not SSN):

Number:

 

 

 

 

 

 

 

 

 

 

 

Full Legal Name:

 

 

 

 

 

 

Title:

 

 

 

 

 

 

 

 

 

 

 

Street Address:

 

 

Check here if operating out of this officer's home.

Mailing Address (if different from Street Address)

 

 

Driver’s Lic.

 

State ID

 

Social Security No.

State (if not SSN):

Number:

 

 

 

 

 

 

 

 

 

 

 

Full Legal Name:

 

 

 

 

 

 

Title:

 

 

 

 

 

 

 

 

 

 

 

Street Address:

 

 

Check here if operating out of this officer's home.

Mailing Address (if different from Street Address)

 

 

Driver’s Lic.

 

State ID

 

Social Security No.

State (if not SSN):

Number:

 

 

 

 

 

 

 

 

 

Full Legal Name:

 

 

 

 

 

Title:

Street Address:

Check here if operating out of this officer's home.

Mailing Address (if different from Street Address)

Driver’s Lic.

State ID

 

Social Security No.

State (if not SSN):

Number:

 

 

 

 

RAILROAD COMMISSION OF TEXAS

Oil and Gas Division

ORGANIZATION REPORT

FORM P-5A

NON-EMPLOYEE AGENT LISTING

(Rev. 09/2011)

1.Current operator name exactly as shown on P-5 Organization Report

2.RRC Operator No. (if assigned)

PURSUANT TO Oil & Gas Statewide Rule 1(a)(4)(E), the organization must provide the name of any non-employee agent that the organization authorizes to act for the organization in signing Oil and Gas Division certificates of compliance which initially designate the operator or change the designation of the operator. Organizations may designate non-employee agents to execute subsequent organization reports. That designation shall be authorized by the organization

and not by a non-employee agent.

Instructions:

DO NOT USE THIS FORM TO DESIGNATE A TEXAS RESIDENT AGENT. (Your Texas Resident Agent is identified on Form P-5 to which this is attached.) This Form P-5A must ONLY be used if you have designated a non-employee agent with authority to sign operator-change Forms P-4 and/or P-5 renewals. If you have not designated any non-employee agents for that purpose, then you should not file Form P-5A.

THIS FORM MAY BE FILED AT ANY TIME. If a change in an organization's representation has occurred, a revised Non-Employee Agent Listing may be filed at any time to update the commission’s records.

IF ANY NON-EMPLOYEE AGENTS LISTED ON THIS FORM ARE NOT CURRENTLY DESIGNATED ON YOUR ORGANIZATION REPORT RECORD, THEN THIS FORM P-5A MUST BE SIGNED BY A DULY AUTHORIZED COMPANY OFFICER OR EMPLOYEE. (If no changes have been made to the information on this form and it is being filed in connection with the annual renewal of the organization's P-5, then a previously designated non-employee agent listed below may sign it.)

3. DESIGNATED NON-EMPLOYEE AGENTS (authorized to file operator-change Forms P-4 and renewal Forms P-5.)

EMAIL ADDRESS: YOU ARE NOT REQUIRED TO PROVIDE AN EMAIL ADDRESS when completing and filing this form. Please be aware that information provided to any governmental body may be subject to disclosure pursuant to the Texas Public Information Act or other applicable federal or state legislation. IF YOU PROVIDE AN EMAIL ADDRESS, YOU AFFIRMATIVELY CONSENT TO THE RELEASE OF THAT EMAIL ADDRESS TO THIRD PARTIES. Other departments within the Railroad Commission also may use the email address you provide to communicate with you.

Agent's Name:

Street Address:

Mailing Address (if different from Street Address)

Agent's Name:

Street Address:

Mailing Address (if different from Street Address)

Agent's Name:

Street Address:

Mailing Address (if different from Street Address)

Agent's Name:

Street Address:

Mailing Address (if different from Street Address)

Signature

 

Title

 

 

 

 

(

)

 

 

 

 

 

 

 

Filer's Name (Printed)

 

Filer's Telephone Number

 

 

 

 

 

 

Email Address (OPTIONAL - SEE INSTRUCTIONS FOR IMPORTANT INFORMATION)

 

Date

Certificate: I declare under penalties prescribed in Sec. 91.143, Texas Natural Resources Code, that I am authorized to make this report, that this report was prepared by me or under my supervision and direction, and that data and facts stated therein are true, correct, and complete, to the best of my knowledge.

FOR RRC USE ONLY

Approved by

Remarks

Form Information

Fact Name Details
Purpose of Filing The P-5 form is used for new filings, annual refilings, and changes in organization details.
Who Must File Any entity performing operations within the Railroad Commission's Oil & Gas Division jurisdiction is required to file this form.
Filing Fee A fee of $300 is required for new filings, while annual renewals may cost up to $1,350, depending on activities.
Texas Resident Agent Foreign organizations must designate a Texas resident agent as per Statewide Rule 1(a)(4)(D).
Financial Assurance Operators must maintain financial assurance for the organization report to be approved.
Annual Renewal The P-5 form must be refiled annually, with the Commission providing a pre-printed form for convenience.
Change Notification Any changes in information must be reported within 15 days, ensuring compliance with regulations.
Inactive Wells Approval of the P-5 report may be denied for operators of inactive wells unless compliance with plugging rules is met.
Officers Listing Form P-5O must be attached to provide information about controlling entities within the organization.
Compliance Declaration Filing includes a declaration under penalties of perjury, ensuring accuracy and truthfulness of the information provided.

Detailed Guide for Filling Out Texas P 5

Filling out the Texas P-5 form is an important step for organizations operating within the jurisdiction of the Railroad Commission of Texas. This form collects essential information about your organization, including its structure, contact details, and any necessary attachments. Completing this form accurately ensures compliance with state regulations and helps maintain your operational status.

  1. Identify the Purpose of Filing: Check the appropriate box for "New Filing," "Annual Refiling," or any other relevant options.
  2. Enter Your Organization's Information: Fill in the name of your entity and its mailing address. If applicable, include the assigned RRC operator number.
  3. Provide Contact Details: Include your organization’s phone number and an emergency contact number.
  4. Select Your Plan of Organization: Choose one option from the list provided, such as Corporation, Sole Proprietorship, or Limited Partnership.
  5. Designate a Texas Resident Agent: If applicable, enter the name and address of your Texas resident agent. This is required for foreign or non-resident organizations.
  6. Review Attachment Requirements: Determine if you need to attach Form P-5O for officer listings and Form P-5A for non-employee agents.
  7. Check for Reorganization: If this filing represents a reorganization, check the box and provide the current name and RRC P-5 number.
  8. Add Comments: Optionally, include any additional comments relevant to your filing.
  9. Sign and Date the Form: The authorized filer must print their name, title, and contact information. Sign and date the form to certify its accuracy.

After completing the form, make sure to review all information for accuracy. Submit the form along with any required fees to the Railroad Commission of Texas. This will help ensure that your organization remains compliant and operational within the state's regulations.

Obtain Answers on Texas P 5

  1. What is the purpose of the Texas P-5 form?

    The Texas P-5 form, also known as the Organization Report, is used by entities operating within the jurisdiction of the Railroad Commission of Texas. This form serves multiple purposes, including initial filings, annual renewals, and updates related to changes in organization structure, officers, or addresses. It is essential for compliance with state regulations governing oil and gas operations.

  2. Who is required to file the P-5 form?

    Any entity performing operations regulated by the Railroad Commission's Oil and Gas Division must file the P-5 form. This includes gas and liquids companies, as well as master meter operators. If your organization is located outside of Texas, you must designate a Texas resident agent when filing.

  3. When should the P-5 form be filed?

    The P-5 form must be filed before beginning operations within the Commission’s jurisdiction. Annual renewals are required each year, and the Commission will send a reminder prior to the due date. If there are any changes to the information provided, a revised form must be submitted within 15 days of the change.

  4. What happens if there are changes to my organization?

    If there are changes in any information reported on the P-5 form, such as the organization’s address or officers, an amended Organization Report must be submitted. For address changes, a signed letter can be sent instead. If the organization name changes, a new P-5 form must be filed.

  5. Are there any fees associated with filing the P-5 form?

    Yes, there are filing fees associated with the P-5 form. The fee for a new filing is $300, while annual renewals can vary based on the organization's activities, potentially reaching up to $1,350. There is no fee for updating officers, agents, or addresses.

  6. What is financial assurance, and how does it relate to the P-5 form?

    Financial assurance is a requirement for operators to maintain a bond, letter of credit, or cash deposit to ensure compliance with regulations. If an operator is required to maintain financial assurance, the P-5 Organization Report cannot be approved until the necessary documentation is in place. This is crucial for protecting public safety and environmental standards.

Common mistakes

Filling out the Texas P-5 form can be a straightforward process, but many make critical mistakes that can delay approval. One common error is failing to select the correct purpose of filing. It’s essential to check the appropriate box for "New Filing" or "Annual Refiling." If you check more than one box, the form may be rejected.

Another frequent mistake involves the name of the entity. Ensure that the name matches exactly with what is registered with the Texas Secretary of State. Any discrepancies can lead to complications. Additionally, many applicants overlook the need for a Texas Resident Agent if they are a foreign or non-resident organization. This requirement is crucial and should not be ignored.

Incomplete contact information is also a major issue. All fields, including mailing and street addresses, must be filled out completely. Missing or incorrect phone numbers can hinder communication and delay processing. Furthermore, individuals often forget to provide an emergency contact number, which is essential for urgent situations.

When it comes to the plan of organization, selecting more than one option is a common pitfall. You must choose only one plan, whether it be a corporation, partnership, or sole proprietorship. This specificity is vital for proper classification. Failing to do so may result in the form being returned for correction.

Another mistake involves not attaching necessary documents. If you are required to submit a P-5O Officer Listing or a P-5A Non-Employee Agent Listing, ensure these are included. Missing attachments can delay the review process significantly.

Lastly, many forget to sign and date the form. A missing signature can render the entire submission invalid. Always double-check that the form is signed by an authorized individual and that the date is current.

By avoiding these common mistakes, you can streamline the filing process and minimize delays. Take the time to review your submission carefully before sending it to the Railroad Commission of Texas.

Documents used along the form

The Texas P-5 form is an essential document for organizations operating within the jurisdiction of the Railroad Commission of Texas. Alongside the P-5, several other forms and documents may be required to ensure compliance with state regulations. Here’s a brief overview of these related documents.

  • P-5O - Officer Listings: This form provides detailed information about each officer, director, or controlling entity of the organization. It ensures that the Railroad Commission has accurate records of individuals involved in the organization.
  • P-5A - Non-Employee Agent Listing: This document designates non-employee agents authorized to sign certain forms on behalf of the organization. It is used when an organization wishes to authorize individuals who are not employees to act on its behalf.
  • P-4 - Application for Permit: This application is required for organizations seeking to obtain a permit for drilling or operating a well. It includes details about the proposed operation and the entity responsible for it.
  • Financial Assurance Documents: These documents demonstrate that an operator has the necessary financial backing, such as bonds or letters of credit, to cover potential liabilities associated with their operations.
  • Certificate of Compliance: This certificate confirms that an operator is in compliance with all applicable rules and regulations. It is often required for certain filings and permits.
  • Annual Financial Reports: Organizations may be required to submit annual financial statements to demonstrate their financial health and compliance with regulatory requirements.
  • Plugging Extensions: If an operator needs additional time to plug a well, they must file for a plugging extension. This document outlines the reasons for the extension request.
  • Inactive Well Reports: Operators of inactive wells must submit reports detailing the status and plans for those wells, ensuring compliance with state regulations.
  • Enforcement Order Responses: If an organization is subject to an enforcement order, they must respond with documentation outlining how they plan to address the violations.
  • Change of Address Notification: If an organization changes its address, a notification must be submitted to update the records with the Railroad Commission.

Each of these documents plays a critical role in maintaining compliance with Texas regulations for oil and gas operations. Properly completing and submitting these forms helps ensure smooth operations and adherence to state laws.

Similar forms

The Texas P-5 form is an essential document for organizations operating within the jurisdiction of the Railroad Commission of Texas. Several other forms share similarities with the P-5, serving various purposes in the regulatory framework. Below is a list of nine documents that are similar to the Texas P-5 form, along with a brief explanation of how they relate to it.

  • Form P-4: This form is used for designating an operator for oil and gas wells. Like the P-5, it requires details about the organization and its representatives but focuses specifically on the operator's designation.
  • Form P-5O: This is the Officer Listing form that must be attached to the P-5. It collects information about the organization's controlling entities, similar to how the P-5 gathers organizational details.
  • Form P-5A: This form is for listing non-employee agents authorized to sign specific forms. It complements the P-5 by allowing organizations to designate individuals who can act on their behalf.
  • Form P-1: This is the Application for a Permit to Drill. It shares the requirement for organizational information, ensuring that the operator is properly registered before drilling activities begin.
  • Form P-15: This form is used for reporting the completion of wells. Like the P-5, it requires detailed information about the organization and its operations, emphasizing compliance with regulatory standards.
  • Form P-16: This is the Application for a Permit to Inject. It requires similar organizational details as the P-5, particularly when the injection involves oil and gas operations.
  • Form P-17: This form is for the application to plug a well. It also necessitates organizational information, ensuring that the entity responsible for the plugging is properly identified.
  • Form W-1: The Application for a Well Permit requires details about the organization, similar to the P-5, but is specifically focused on well operations.
  • Form G-1: This is the Gas Well Registration form. It parallels the P-5 in that it collects information about the organization operating the gas well, ensuring compliance with state regulations.

Each of these forms plays a crucial role in the regulatory landscape, ensuring that organizations maintain transparency and compliance with the Railroad Commission's standards.

Dos and Don'ts

When filling out the Texas P-5 form, it is essential to follow specific guidelines to ensure accuracy and compliance. Below is a list of things you should and shouldn't do during this process.

  • Do check the appropriate box to indicate the purpose of your filing.
  • Do ensure that the name of your entity matches exactly with your registration with the Texas Secretary of State.
  • Do provide a Texas Resident Agent if your organization is based outside of Texas.
  • Do submit any required attachments, such as officer listings and agent listings, as specified in the instructions.
  • Do update the form within 15 days if there are any changes to your organization’s information.
  • Don't leave any sections of the form blank; provide complete information for all required fields.
  • Don't forget to sign and date the form before submission to validate your report.
  • Don't use initials or abbreviations for names; always provide full legal names.

By adhering to these guidelines, you can help ensure that your submission is processed smoothly and efficiently.

Misconceptions

  • Misconception 1: The Texas P-5 form is only for new operators.
  • This is not true. While the form is required for new filings, it must also be submitted annually for existing operators. Annual refiling ensures that the Railroad Commission has up-to-date information about the organization.

  • Misconception 2: Only large companies need to file the P-5 form.
  • In reality, any entity performing operations within the jurisdiction of the Commission's Oil & Gas Division is required to file the P-5 form, regardless of size. This includes small businesses and sole proprietorships.

  • Misconception 3: A Texas Resident Agent is optional for foreign organizations.
  • This is incorrect. A Texas Resident Agent is mandatory for any foreign or non-resident organization. This requirement ensures that there is a designated representative within Texas to receive legal documents.

  • Misconception 4: The P-5 form can be submitted without any attachments.
  • Attachments are often necessary. For instance, the P-5O form for officer listings must accompany the P-5 form to provide details about controlling entities within the organization.

  • Misconception 5: There are no fees associated with filing the P-5 form.
  • Filing fees do apply. New filings and annual renewals incur fees, which can vary based on the organization's activities. It is essential to check the current fee structure before submission.

  • Misconception 6: Changes to the organization do not require immediate updates to the P-5 form.
  • This is misleading. If there are changes to any information provided in the Organization Report, an amended report must be filed within 15 days to keep the records accurate and compliant.

  • Misconception 7: Email addresses are mandatory on the P-5 form.
  • This is false. Providing an email address is optional. However, if included, it may be subject to public disclosure under the Texas Public Information Act.

Key takeaways

  • Understand the Purpose: The Texas P-5 form is primarily used for filing organization reports with the Railroad Commission of Texas. This includes new filings, annual refilings, and changes to existing information.
  • Identify Your Organization: Clearly state the name of your entity. If there has been a name change, ensure that it matches your registration with the Texas Secretary of State.
  • Choose the Correct Filing Type: When completing the form, check the appropriate box to indicate whether it is a new filing, an annual refiling, or a change of officers or addresses.
  • Designate a Texas Resident Agent: If your organization is foreign or non-resident, you must appoint a Texas resident agent. This agent will act on behalf of your organization within the state.
  • Provide Accurate Contact Information: Include both a regular and an emergency phone number for your organization. This ensures that the Commission can reach you when necessary.
  • Attachments Matter: Be prepared to include additional forms like the P-5O for officer listings and the P-5A for non-employee agents, if applicable.
  • Be Aware of Filing Fees: A filing fee is required for new submissions and annual renewals. Familiarize yourself with the fee structure to avoid surprises.
  • Timely Updates are Crucial: If any information changes, submit an amended report within 15 days. This includes changes to your address, officers, or organization name.
  • Compliance is Key: Ensure that your organization complies with all relevant rules and regulations. Non-compliance may lead to the rejection of your P-5 report.