Homepage Blank Texas Homestead Exemption Form
Outline

The Texas Homestead Exemption form is an essential tool for homeowners seeking to reduce their property tax burden. This application allows eligible individuals to claim various exemptions on their primary residence, provided they meet specific criteria outlined in the Texas Tax Code. To begin, applicants must specify the tax year for which they are requesting an exemption and confirm their ownership status of the property. The form requires detailed information about the property, including its address and legal description, as well as the names and ownership percentages of all property owners. It is important to submit the completed application between January 1 and April 30 for timely processing. However, there are provisions for those aged 65 and older or individuals with disabilities, allowing them to apply within a year of qualifying. The form also emphasizes the need for supporting documentation, such as a driver’s license and proof of residency, to validate the claims made. Failure to provide complete information can result in denial of the application. Understanding these aspects is crucial for homeowners looking to benefit from the financial relief offered by the homestead exemption.

Sample - Texas Homestead Exemption Form

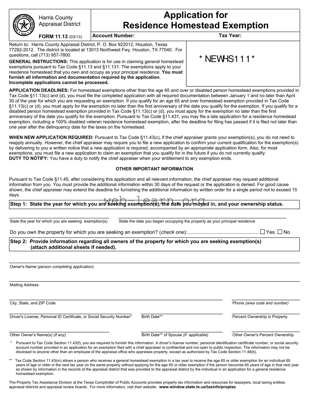
Harris County

 

Application for

Appraisal District

Residence Homestead Exemption

 

 

 

 

 

 

 

FORM 11.13 (03/13)

Account Number:

 

Tax Year:

 

 

 

Return to: Harris County Appraisal District, P. O. Box 922012, Houston, Texas

 

77292-2012. The district is located at 13013 Northwest Fwy, Houston, TX 77040. For

 

questions, call (713) 957-7800.

 

 

* NEWHS1 1 1 *

GENERAL INSTRUCTIONS: This application is for use in claiming general homestead

 

exemptions pursuant to Tax Code §11.13 and §11.131. The exemptions apply to your

 

residence homestead that you own and occupy as your principal residence. You must

 

furnish all information and documentation required by the application.

 

 

Incomplete applications cannot be processed.

 

 

 

 

 

 

APPLICATION DEADLINES: For homestead exemptions other than the age 65 and over or disabled person homestead exemptions provided in Tax Code §11.13(c) and (d), you must file the completed application with all required documentation between January 1 and no later than April 30 of the year for which you are requesting an exemption. If you qualify for an age 65 and over homestead exemption provided in Tax Code §11.13(c) or (d), you must apply for the exemption no later than the first anniversary of the date you qualify for the exemption. If you qualify for a disabled person homestead exemption provided in Tax Code §11.13(c) or (d), you must apply for the exemption no later than the first anniversary of the date you qualify for the exemption. Pursuant to Tax Code §11.431, you may file a late application for a residence homestead exemption, including a 100% disabled veteran residence homestead exemption, after the deadline for filing has passed if it is filed not later than one year after the delinquency date for the taxes on the homestead.

WHEN NEW APPLICATION REQUIRED: Pursuant to Tax Code §11.43(c), if the chief appraiser grants your exemption(s), you do not need to reapply annually. However, the chief appraiser may require you to file a new application to confirm your current qualification for the exemption(s) by delivering to you a written notice that a new application is required, accompanied by an appropriate application form. Also, for most exemptions, you must file a new application to claim an exemption that you qualify for in the future if you do not currently qualify.

DUTY TO NOTIFY: You have a duty to notify the chief appraiser when your entitlement to any exemption ends.

OTHER IMPORTANT INFORMATION

Pursuant to Tax Code §11.45, after considering this application and all relevant information, the chief appraiser may request additional information from you. You must provide the additional information within 30 days of the request or the application is denied. For good cause shown, the chief appraiser may extend the deadline for furnishing the additional information by written order for a single period not to exceed 15 days.

Step 1: State the year for which you are seeking exemption(s), the date you moved in, and your ownership status.

State the year for which you are seeking exemption(s)

State the date you began occupying the property as your principal residence

 

 

Do you own the property for which you are seeking an exemption? (check one):

Yes

No

Step 2: Provide information regarding all owners of the property for which you are seeking exemption(s) (attach additional sheets if needed).

Owner's Name (person completing application)

Mailing Address

City, State, and ZIP Code

 

 

 

Phone (area code and number)

 

 

 

 

 

 

Driver's License, Personal ID Certificate, or Social Security Number*

 

Birth Date**

 

Percent Ownership in Property

 

 

 

 

 

 

Other Owner's Name(s) (if any)

 

Birth Date** of Spouse (if applicable)

 

Other Owner's Percent Ownership

*Pursuant to Tax Code Section 11.43(f), you are required to furnish this information. A driver’s license number, personal identification certificate number, or social security account number provided in an application for an exemption filed with a chief appraiser is confidential and not open to public inspection. The information may not be disclosed to anyone other than an employee of the appraisal office who appraises property, except as authorized by Tax Code Section 11.48(b).

**Tax Code Section 11.43(m) allows a person who receives a general homestead exemption in a tax year to receive the age 65 or older exemption for an individual 65 years of age or older in the next tax year on the same property without applying for the age 65 or older exemption if the person becomes 65 years of age in that next year as shown by information in the records of the appraisal district that was provided to the appraisal district by the individual in an application for a general residence homestead exemption.

The Property Tax Assistance Division at the Texas Comptroller of Public Accounts provides property tax information and resources for taxpayers, local taxing entities, appraisal districts and appraisal review boards. For more information, visit their website: www.window.state.tx.us/taxinfo/proptax

Step 3: Describe the property for which you are seeking exemption(s).

Street Address, City, State, and ZIP Code

 

 

 

 

 

 

 

 

 

 

Legal Description (if known)

 

Appraisal District Account Number (if known)

Number of acres (not to exceed 20) used for residential occupancy of the structure:

 

 

 

 

(Note: the structure and the land and improvements must have identical ownership)

 

acres

For a MANUFACTURED HOME, state the make, model and identification number

 

 

 

 

 

Step 4: Identify exemptions that apply to you and state whether you are transferring a tax ceiling.

Brief descriptions of qualifications for the exemptions listed are provided under each listing; however, to obtain complete information, you should consult the Tax Code. For assistance, you may contact your appraisal district or the Comptroller’s Property Tax Assistance Division. If your appraisal district has not provided with this application a list of taxing units served by the appraisal district with all residential homestead exemptions each taxing unit offers, you may call the appraisal district to determine what homestead exemptions are offered by your taxing units.

GENERAL RESIDENCE HOMESTEAD EXEMPTION (Tax Code §11.13): You may qualify for this exemption if for the current year and, if

filing a late application, for the year for which you are seeking an exemption: (1) you owned this property on January 1; (2) you occupied it as your principal residence on January 1; and (3) you and your spouse do not claim a residence homestead exemption on any other property.

DISABLED PERSON EXEMPTION (Tax Code §11.13(c), (d)): You may qualify for this exemption if you are under a disability for purposes of payment of disability insurance benefits under Federal Old-Age, Survivors, and Disability Insurance. You can’t receive an age 65 or older exemption if you receive this exemption.

AGE 65 OR OLDER EXEMPTION (Tax Code §11.13(c), (d)): You may qualify for this exemption if you are 65 years of age or older. You cannot receive a disability exemption if you receive this exemption.

SURVIVING SPOUSE OF INDIVIDUAL WHO QUALIFIED FOR AGE 65 OR OLDER EXEMPTION UNDER TAX CODE

§11.13(d) (Tax Code §11.13(q)): You may qualify for this exemption if: (1) your deceased spouse died in a year in which he or she qualified for the exemption under Tax Code §11.13(d); (2) you were 55 years of age or older when your deceased spouse died; and (3) the property was your residence homestead when your deceased spouse died and remains your residence homestead. You can’t receive this exemption if you receive an exemption under Tax Code §11.13(d).

Name of Deceased Spouse

Date of Death

100% DISABLED VETERANS EXEMPTION (Tax Code §11.131): You may qualify for this exemption if you are a disabled veteran who

receives from the United States Department of Veterans Affairs or its successor: (1) 100 percent disability compensation due to a service-connected disability; and (2) a rating of 100 percent disabled or individual unemployability. If you qualify for a 100% disabled veteran’s exemption after January 1 of a tax year that begins on or after January 1, 2012, you may receive the exemption for the applicable portion of that tax year immediately on qualification for the exemption.

SURVIVING SPOUSE OF DISABLED VETERAN WHO RECEIVED THE 100% DISABLED VETERAN’S EXEMPTION (Tax Code §11.131): You may qualify for this exemption if you were married to a disabled veteran who qualified for an exemption under Tax Code §11.131 at the time of his or her death and: (1) you have not remarried since the death of the disabled veteran and (2) the property was your residence homestead when the disabled veteran died and remains your residence homestead.

Name of Deceased Spouse

Date of Death

Check if you seek to transfer a school tax limitation from your last home pursuant to Tax Code §11.26(h).

Step 5: Attach required documents.

Include with ALL applications (Note: The chief appraiser may not approve an exemption unless the address on the driver’s license or state-issued personal identification certificate corresponds to the address on the applicant’s vehicle registration receipt or utility bill AND the address indicated on the application form.):

1)a copy of the applicant’s driver’s license or state-issued personal identification certificate; and

2)a copy of the applicant’s vehicle registration receipt; or

a)if the applicant does not own a vehicle, an affidavit to that effect signed by the applicant; and

b)a copy of a utility bill in the applicant’s name for the property for which exemption is sought.

Include with an application for a request for an AGE 65 OR OLDER OR DISABLED exemption:

In addition to the information identified above, an applicant for an age 65 or older or disabled exemption who is not specifically identified on a deed or other instrument recorded in the applicable real property records as an owner of the residence homestead must provide an affidavit or other compelling evidence establishing the applicant’s ownership of an interest in the homestead.

Include with an application for a request for a 100% DISABLED VETERANS exemption:

In addition to the information identified above, an applicant for a 100% disabled veterans exemption or the surviving spouse of a disabled veteran who qualified for the 100% disabled veteran’s exemption must provide documentation from the United States Department of Veterans Affairs or its successor indicating that the veteran received 100 percent disability compensation due to a service-connected disability and had a rating of 100 percent disabled or individual unemployability.

Include with applications for MANUFACTURED HOMES:

For a manufactured home to qualify for a residence homestead, applicant must ALSO include:

1)a copy of the statement of ownership and location for the manufactured home issued by the Texas Department of Housing and Community Affairs showing that the applicant is the owner of the manufactured home;

2)a copy of the purchase contract or payment receipt showing that the applicant is the purchaser of the manufactured home; or

3)a sworn affidavit by the applicant indicating that:

a)the applicant is the owner of the manufactured home;

b)the seller of the manufactured home did not provide the applicant with a purchase contract; and

c)the applicant could not locate the seller after making a good faith effort.

Step 6: (Cooperative Housing Residents) Provide statement regarding your right to occupy the property.

Do you have an exclusive right to occupy this unit because you own stock in a cooperative housing corporation?.....

Yes No

Step 7: Read, sign, and date.

By signing this application, you state that the facts in this application are true and correct, that you do not claim a residence homestead exemption on another residence homestead in Texas, and that you do not claim a residence homestead exemption on a residence homestead outside of Texas.

NOTICE REGARDING PENALTIES FOR MAKING OR FILING AN APPLICATION CONTAINING A FALSE STATEMENT: If you make a false statement on this form, you could be found guilty of a Class A misdemeanor or a state jail felony under Section 37.10, Penal Code.

Your signature on this application constitutes a sworn statement that you have read and understand the Notice Regarding Penalties for Making or Filing an Application Containing a False Statement.

sign here â

Authorized Signature

Date

Printed Name

Affidavits: Complete and have notarized, if applicable (see Step 5, above).

NON-OWNERSHIP OF MOTOR VEHICLE AFFIDAVIT

STATE OF TEXAS

COUNTY OF

Before me, the undersigned authority, personally appeared

 

 

 

 

 

 

 

 

 

 

,

who, being by me duly sworn, deposed as follows:

 

 

 

 

 

 

 

 

 

 

 

“My name is

 

 

 

 

 

 

 

. I am over 18 years of age and I am otherwise fully competent

to make this affidavit. I have personal knowledge of the facts contained herein and all of same are true and correct.

 

 

 

 

I do not own a vehicle.

 

 

 

 

 

 

 

 

 

 

 

 

 

Further, Affiant sayeth not.”

 

 

 

 

 

 

 

 

 

 

 

 

 

 

 

 

 

 

 

 

 

 

 

 

 

 

Signature of Affiant

 

 

 

SUBSCRIBED AND SWORN TO before me this, the

 

 

 

 

 

 

 

 

 

 

 

 

 

 

day of

 

 

,

 

 

 

 

 

 

 

 

 

 

 

 

 

 

 

 

 

 

 

 

 

 

 

 

 

Notary Public in and for the State of Texas

 

 

 

 

 

 

 

 

 

 

 

 

My Commission expires:

 

 

 

 

 

 

 

 

 

 

 

 

 

 

 

 

 

 

 

AGE 65 OR OLDER/DISABLED EXEMPTION AFFIDAVIT

 

 

 

 

STATE OF TEXAS

 

 

 

 

 

 

 

 

 

 

 

 

 

COUNTY OF

 

 

 

 

 

 

 

 

 

 

 

 

 

 

Before me, the undersigned authority, personally appeared

 

 

 

 

 

 

 

 

,

who, being by me duly sworn, deposed as follows:

 

 

 

 

 

 

 

 

 

 

 

“My name is

 

 

 

 

 

 

. I am over 18 years of age and I am otherwise fully competent

to make this affidavit. I have personal knowledge of the facts contained herein and all of same are true and correct.

 

 

 

 

I have a

 

percent ownership in the residence homestead identified in the foregoing exemption application.

 

 

 

 

Further, Affiant sayeth not.”

 

 

 

 

 

 

 

 

 

 

 

 

 

 

 

 

 

 

 

 

Signature of Affiant

 

 

 

SUBSCRIBED AND SWORN TO before me this, the

 

 

 

 

 

 

 

 

 

 

 

 

 

 

day of

 

,

 

 

 

 

 

 

 

 

 

 

 

 

 

 

 

 

 

 

 

 

 

 

 

 

Notary Public in and for the State of Texas

 

 

 

 

 

 

 

 

 

 

 

 

My Commission expires:

 

 

 

 

 

 

 

 

 

 

 

 

 

 

 

 

 

 

 

 

 

 

MANUFACTURED HOME AFFIDAVIT

 

 

 

 

STATE OF TEXAS

 

 

 

 

 

 

 

 

 

 

 

 

 

COUNTY OF

 

 

 

 

 

 

 

 

 

 

 

 

 

 

Before me, the undersigned authority, personally appeared

 

 

 

 

 

 

 

 

,

who, being by me duly sworn, deposed as follows:

 

 

 

 

 

 

 

 

 

 

 

“My name is

 

 

 

 

 

 

. I am over 18 years of age and I am otherwise fully competent

to make this affidavit. I have personal knowledge of the facts contained herein and all of same are true and correct.

I am the owner of the manufactured home identified in the foregoing exemption application. The seller of the manufactured home did not provide me with a purchase contract and I could not locate the seller after making a good faith effort.

Further, Affiant sayeth not.”

Signature of Affiant

SUBSCRIBED AND SWORN TO before me this, the

 

 

 

 

 

day of

 

 

,

 

 

 

 

 

 

 

 

 

Notary Public in and for the State of Texas

 

 

 

 

My Commission expires:

 

 

 

Form Information

Fact Name Description
Governing Law The Texas Homestead Exemption is governed by Tax Code §11.13 and §11.131.
Application Purpose This application is used to claim general homestead exemptions for your principal residence.
Application Deadline Applications must be submitted between January 1 and April 30 for the current tax year.
Late Application A late application may be filed within one year after the delinquency date for taxes.
Notification Duty Applicants must notify the chief appraiser when their eligibility for an exemption ends.
New Application Requirement Reapplication may be required if the chief appraiser requests it or if circumstances change.
Required Documentation Applications must include a copy of the driver's license and vehicle registration or utility bill.
Exemption Types Exemptions include general residence, disabled person, age 65 or older, and 100% disabled veterans.
Confidential Information Personal information provided in the application is confidential and not publicly disclosed.

Detailed Guide for Filling Out Texas Homestead Exemption

Completing the Texas Homestead Exemption form involves a series of steps to ensure that all necessary information is provided accurately. Once the form is filled out and submitted, it will be reviewed by the Harris County Appraisal District. If everything is in order, the exemption will be granted, potentially reducing your property tax burden.

  1. State the year for which you are seeking exemption(s), the date you moved in, and your ownership status. Include the following:
    • Year for exemption
    • Date you began occupying the property
    • Ownership status: Yes or No
  2. Provide information regarding all owners of the property. Include:
    • Owner's Name
    • Mailing Address
    • City, State, and ZIP Code
    • Phone number
    • Driver's License, Personal ID Certificate, or Social Security Number
    • Birth Date
    • Percent Ownership in Property
    • Other Owner's Name(s) and Birth Date(s) if applicable
  3. Describe the property for which you are seeking exemption(s). Include:
    • Street Address, City, State, and ZIP Code
    • Legal Description (if known)
    • Appraisal District Account Number (if known)
    • Number of acres used for residential occupancy
    • For a manufactured home, state the make, model, and identification number
  4. Identify exemptions that apply to you and state whether you are transferring a tax ceiling. Check the applicable exemptions and provide any required details.
  5. Attach required documents. Include:
    • A copy of your driver’s license or state-issued personal identification certificate
    • A copy of your vehicle registration receipt or an affidavit if you do not own a vehicle
    • A copy of a utility bill in your name for the property

    Include additional documentation if applying for age 65 or older, disabled, or 100% disabled veterans exemptions.

  6. For Cooperative Housing Residents: Indicate if you have an exclusive right to occupy the unit by answering Yes or No.
  7. Read, sign, and date the application. Your signature confirms that the information provided is true and that you do not claim a residence homestead exemption on another property.

Obtain Answers on Texas Homestead Exemption

  1. What is the Texas Homestead Exemption?

    The Texas Homestead Exemption allows homeowners to reduce the amount of property taxes they owe on their primary residence. This exemption applies to properties that you own and occupy as your principal residence. It can provide significant savings on your property taxes.

  2. Who is eligible to apply for the Homestead Exemption?

    To qualify, you must meet the following criteria:

    • You must own the property as of January 1 of the tax year.
    • You must occupy the property as your principal residence.
    • You and your spouse cannot claim a homestead exemption on any other property.
  3. When should I file my application?

    For most homestead exemptions, the application must be filed between January 1 and April 30 of the year you are seeking the exemption. If you qualify for an exemption due to age (65 or older) or disability, you must apply no later than the first anniversary of your qualification date.

  4. What happens if I miss the application deadline?

    You can file a late application within one year after the delinquency date for the taxes on your homestead. This applies to all exemptions, including those for disabled veterans.

  5. Do I need to reapply every year?

    If your exemption is granted, you typically do not need to reapply annually. However, the chief appraiser may request a new application to confirm your eligibility. You must notify the chief appraiser if your eligibility changes.

  6. What documents do I need to submit with my application?

    At a minimum, you must provide:

    • A copy of your driver's license or state-issued ID.
    • A copy of your vehicle registration or a utility bill in your name for the property.

    Additional documentation may be required based on the type of exemption you are applying for.

  7. What if I live in a manufactured home?

    If you live in a manufactured home, you need to include extra documentation, such as proof of ownership and possibly a purchase contract or affidavit if the seller did not provide a contract.

  8. Are there specific exemptions for seniors or disabled individuals?

    Yes, there are exemptions available for individuals aged 65 or older and for those with disabilities. Each exemption has specific qualifications and may require additional documentation.

  9. What are the penalties for providing false information?

    Providing false information on your application can lead to serious consequences, including being charged with a Class A misdemeanor or a state jail felony. Always ensure that your application is truthful and accurate.

Common mistakes

Filling out the Texas Homestead Exemption form can be a straightforward process, but many people make common mistakes that can lead to delays or denials. One frequent error is failing to provide complete information. Incomplete applications cannot be processed, so it’s essential to double-check that all sections are filled out accurately. This includes not only personal details but also information about the property itself.

Another mistake is not adhering to the application deadlines. Applications must be submitted between January 1 and April 30 for the year you are requesting an exemption. If you miss this window, your application may be denied. Be mindful of these dates, especially if you are applying for an exemption based on age or disability, which have their own specific timelines.

Some applicants neglect to include required documentation. For example, a copy of your driver’s license or state-issued ID, along with proof of residency like a utility bill, is necessary. Without these documents, the chief appraiser may not approve your exemption, so gather everything needed before submitting your application.

People also often forget to notify the chief appraiser when their entitlement to an exemption ends. If your situation changes, such as selling the property or moving out, you must inform the appraisal district. Failing to do so can lead to complications in future applications.

Inaccurate information is another common pitfall. For instance, providing the wrong account number or property address can result in a denial. Always verify that the information matches official documents to ensure accuracy.

Some individuals mistakenly think they do not need to reapply for exemptions once granted. While you typically do not need to reapply annually, the chief appraiser may request a new application to confirm your eligibility. Ignoring such requests can lead to the loss of your exemption.

Misunderstanding the qualifications for different types of exemptions is also prevalent. For example, if you qualify for an age 65 or older exemption, you cannot also receive a disabled person exemption. Be sure to read the qualifications carefully to avoid claiming exemptions incorrectly.

Lastly, applicants sometimes fail to read the entire form and instructions thoroughly. Skipping over important sections can lead to mistakes that may affect the outcome of your application. Taking the time to read and understand each step will help ensure a smoother process.

Documents used along the form

When applying for the Texas Homestead Exemption, several additional forms and documents may be required to ensure a smooth application process. Understanding these documents can help you prepare adequately and avoid delays. Below is a list of commonly used forms that accompany the exemption application.

  • Non-Ownership of Motor Vehicle Affidavit: This affidavit is necessary for applicants who do not own a vehicle. It confirms the applicant's status and must be notarized. This document helps establish residency and is crucial for the exemption process.
  • Age 65 or Older/Disabled Exemption Affidavit: If you are applying for an exemption due to age or disability, this affidavit must be included. It verifies your ownership percentage in the residence homestead and requires notarization, ensuring that all information provided is accurate and complete.
  • Manufactured Home Affidavit: For those applying for a homestead exemption on a manufactured home, this affidavit is essential. It affirms the applicant's ownership of the manufactured home and explains the circumstances regarding the absence of a purchase contract. Notarization is also required for this document.
  • Proof of Identity Documents: Along with the exemption application, you must provide a copy of your driver's license or state-issued ID and vehicle registration receipt. If you do not own a vehicle, an affidavit stating this along with a utility bill in your name is necessary. These documents validate your identity and residency.

Gathering these forms and ensuring they are completed accurately will facilitate the processing of your Texas Homestead Exemption application. Timely submission is critical, so be proactive in collecting the necessary documentation to avoid any complications.

Similar forms

The Texas Homestead Exemption form shares similarities with several other important documents related to property and tax exemptions. Below is a list of four such documents, each accompanied by a brief explanation of how they are similar to the Texas Homestead Exemption form.

  • Property Tax Exemption Application: Like the Texas Homestead Exemption form, this application is used by property owners to claim various exemptions that reduce their property tax burden. Both documents require detailed information about the property and the owner’s eligibility to qualify for the exemption.
  • Disabled Veteran Exemption Application: This application is specifically for veterans who have a service-connected disability. Similar to the Texas Homestead Exemption form, it requires proof of eligibility and documentation regarding the applicant’s military service and disability status to receive a tax exemption.
  • Age 65 or Older Exemption Application: This document is designed for individuals aged 65 or older seeking tax relief. It mirrors the Texas Homestead Exemption form in that both require applicants to provide personal information, proof of age, and details about the property they own and occupy as their principal residence.
  • Surviving Spouse Exemption Application: This application is for surviving spouses of individuals who qualified for certain exemptions. Similar to the Texas Homestead Exemption form, it requires the applicant to demonstrate their relationship to the deceased and provide information about the property to continue receiving the exemption benefits.

Dos and Don'ts

When filling out the Texas Homestead Exemption form, it’s essential to approach the process with care. Here are nine important dos and don’ts to keep in mind:

  • Do ensure that all information is accurate and complete. Incomplete applications cannot be processed.
  • Do file your application between January 1 and April 30 of the tax year for which you are requesting an exemption, unless you qualify for an exemption for age 65 or older or for a disabled person.
  • Do provide all required documentation, such as a copy of your driver’s license or state-issued ID and a utility bill in your name.
  • Do notify the chief appraiser if your entitlement to any exemption ends. Keeping them informed is your responsibility.
  • Do read the instructions carefully and follow the steps outlined in the application to avoid any mistakes.
  • Don't forget to include your mailing address and contact information. This helps ensure that you can be reached if there are questions about your application.
  • Don't submit an application if you already claim a homestead exemption on another property. This could lead to penalties.
  • Don't ignore requests for additional information from the chief appraiser. You must respond within 30 days to avoid denial of your application.
  • Don't sign the application without ensuring that all statements are true and correct. Making false statements can result in serious legal consequences.

Misconceptions

Many people have misunderstandings about the Texas Homestead Exemption form. Here are five common misconceptions:

  • You must reapply every year. Many believe that once they receive a homestead exemption, they need to fill out the application again each year. In fact, if your exemption is granted, you do not need to reapply annually unless the chief appraiser requests a new application to confirm your eligibility.
  • Only homeowners can apply. Some think that only those who own their homes can qualify for the exemption. However, renters who live in cooperative housing and have exclusive rights to occupy their unit may also apply.
  • All exemptions are the same. Many assume that all homestead exemptions are identical. In reality, there are different types, such as the general residence homestead exemption, the disabled person exemption, and the age 65 or older exemption, each with specific qualifications.
  • Late applications are not accepted. A common belief is that if you miss the deadline, you cannot apply for an exemption. This is not entirely true. You can file a late application within one year of the tax delinquency date for certain exemptions, including those for disabled veterans.
  • Documentation is not important. Some individuals think they can submit the application without supporting documents. However, incomplete applications cannot be processed. It is crucial to provide all required information and documentation to avoid delays or denials.

Key takeaways

Key Takeaways for Filling Out the Texas Homestead Exemption Form

  • Ensure you own and occupy the property as your principal residence to qualify for the exemption.
  • Complete the application between January 1 and April 30 for timely processing.
  • Be aware that if you are 65 or older or disabled, you must apply by the first anniversary of qualifying for those exemptions.
  • Provide all required documentation; incomplete applications will not be processed.
  • Notify the chief appraiser if your entitlement to any exemption ends.
  • Keep in mind that you do not need to reapply annually if your exemption has been granted, unless requested by the chief appraiser.
  • File a late application within one year of the tax delinquency date if you miss the deadline.
  • Include necessary attachments, such as a copy of your driver's license and proof of residency, with your application.
  • Understand that providing false information can lead to penalties, including criminal charges.
  • Consult the Texas Comptroller’s website for additional resources and information regarding property tax exemptions.