Homepage Blank Texas 1560 Form
Outline

The Texas 1560 form, officially known as the Certificate of Insurance, serves as a crucial document for contractors working with the Texas Department of Transportation (TxDOT). It is essential for ensuring that the required insurance coverage is in place before any work begins. This form requires detailed information about the contractor, including their legal company name, contact details, and the specifics of their insurance policies. Notably, it mandates Workers' Compensation Insurance, which must be endorsed with a Waiver of Subrogation in favor of TxDOT. Additionally, it outlines the minimum limits for Commercial General Liability and Business Automobile policies, ensuring that contractors maintain adequate coverage to protect against potential liabilities. The form also emphasizes that it does not confer any rights beyond those specified in the underlying insurance policies, making it clear that the terms of those policies take precedence. Agents must complete and submit the form directly to TxDOT, either by fax or mail, ensuring compliance with the state's requirements. This article will delve deeper into the intricacies of the Texas 1560 form, providing guidance on its completion and the importance of maintaining proper insurance coverage for contractors operating in Texas.

Sample - Texas 1560 Form

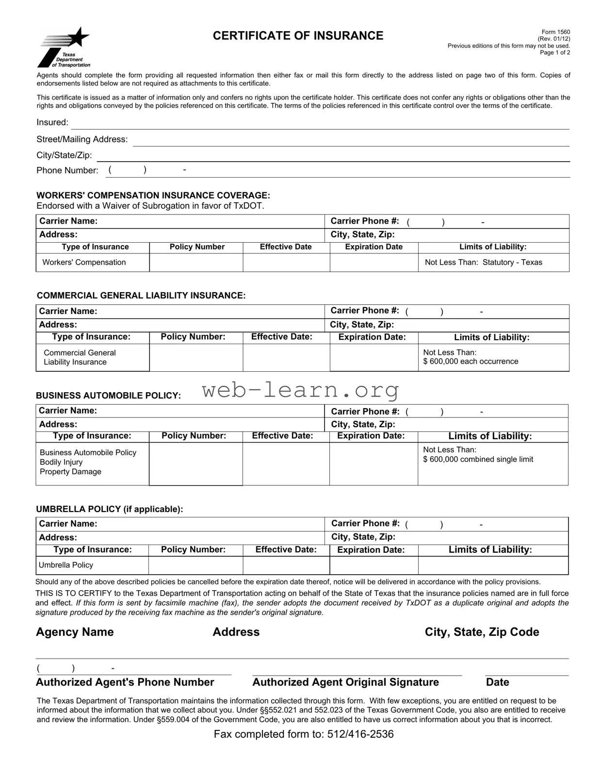
CERTIFICATE OF INSURANCE

Form 1560 (Rev. 01/12)

Previous editions of this form may not be used. Page 1 of 2

Agents should complete the form providing all requested information then either fax or mail this form directly to the address listed on page two of this form. Copies of endorsements listed below are not required as attachments to this certificate.

This certificate is issued as a matter of information only and confers no rights upon the certificate holder. This certificate does not confer any rights or obligations other than the rights and obligations conveyed by the policies referenced on this certificate. The terms of the policies referenced in this certificate control over the terms of the certificate.

Insured:

Street/Mailing Address:

City/State/Zip:

Phone Number: (

)

-

 

 

 

 

 

 

 

 

 

 

 

 

 

 

 

 

WORKERS' COMPENSATION INSURANCE COVERAGE:

 

 

 

 

Endorsed with a Waiver of Subrogation in favor of TxDOT.

 

 

 

 

 

 

 

 

 

 

 

 

 

 

Carrier Name:

 

 

 

 

 

Carrier Phone #: (

)

-

 

 

 

 

 

 

 

 

 

 

 

Address:

 

 

 

 

 

City, State, Zip:

 

 

 

 

 

 

 

 

 

 

 

 

 

Type of Insurance

 

Policy Number

 

Effective Date

Expiration Date

 

Limits of Liability:

 

 

 

 

 

 

 

 

 

Workers' Compensation

 

 

 

 

 

 

Not Less Than: Statutory - Texas

 

 

 

 

 

 

 

 

 

COMMERCIAL GENERAL LIABILITY INSURANCE:

 

 

 

 

 

 

 

 

 

 

 

 

 

 

 

 

Carrier Name:

 

 

 

 

 

Carrier Phone #: (

)

-

 

 

 

 

 

 

 

 

 

 

 

Address:

 

 

 

 

 

City, State, Zip:

 

 

 

 

 

 

 

 

 

 

 

 

 

Type of Insurance:

 

Policy Number:

 

Effective Date:

Expiration Date:

 

Limits of Liability:

 

 

 

 

 

 

 

 

 

Commercial General

 

 

 

 

 

 

Not Less Than:

Liability Insurance

 

 

 

 

 

 

$ 600,000 each occurrence

 

 

 

 

 

 

 

 

 

BUSINESS AUTOMOBILE POLICY:

 

 

 

 

 

 

 

 

 

 

 

 

 

 

 

 

Carrier Name:

 

 

 

 

 

Carrier Phone #: (

)

-

 

Address:

 

 

 

 

 

City, State, Zip:

 

 

 

 

 

 

 

 

 

 

 

 

 

 

Type of Insurance:

 

Policy Number:

 

Effective Date:

Expiration Date:

 

Limits of Liability:

 

Business Automobile Policy

 

 

 

 

 

 

Not Less Than:

 

 

 

 

 

 

 

$ 600,000 combined single limit

 

Bodily Injury

 

 

 

 

 

 

 

 

 

 

 

 

 

 

 

 

Property Damage

 

 

 

 

 

 

 

 

 

 

 

 

 

 

 

 

 

 

UMBRELLA POLICY (if applicable):

 

 

 

 

 

 

 

 

 

 

 

 

 

 

 

 

Carrier Name:

 

 

 

 

 

Carrier Phone #: (

)

-

 

 

 

 

 

 

 

 

 

 

 

Address:

 

 

 

 

 

City, State, Zip:

 

 

 

 

 

 

 

 

 

 

 

 

 

Type of Insurance:

 

Policy Number:

 

Effective Date:

Expiration Date:

 

Limits of Liability:

 

 

 

 

 

 

 

 

 

 

 

Umbrella Policy

 

 

 

 

 

 

 

 

 

 

 

 

 

 

 

 

 

 

 

 

Should any of the above described policies be cancelled before the expiration date thereof, notice will be delivered in accordance with the policy provisions.

THIS IS TO CERTIFY to the Texas Department of Transportation acting on behalf of the State of Texas that the insurance policies named are in full force and effect. If this form is sent by facsimile machine (fax), the sender adopts the document received by TxDOT as a duplicate original and adopts the signature produced by the receiving fax machine as the sender's original signature.

Agency Name

Address

City, State, Zip Code

 

 

 

 

 

 

 

 

(

)

-

 

 

 

 

 

 

 

 

 

Authorized Agent's Phone Number

Authorized Agent Original Signature

 

Date

The Texas Department of Transportation maintains the information collected through this form. With few exceptions, you are entitled on request to be informed about the information that we collect about you. Under §§552.021 and 552.023 of the Texas Government Code, you also are entitled to receive and review the information. Under §559.004 of the Government Code, you are also entitled to have us correct information about you that is incorrect.

Fax completed form to: 512/416-2536

Form 1560 (Rev. 01/12) Page 2 of 2

NOTES TO AGENTS:

Agents must provide all requested information then either fax or mail this form directly to the address listed below.

Pre-printed limits are the minimum required; if higher limits are provided by the policy, enter the higher limit amount and strike-through or cross-out the pre-printed limit.

To avoid work suspension, an updated insurance form must reach the address listed below one business day prior to the expiration date. Insurance must be in force in order to perform any work.

Binder numbers are not acceptable for policy numbers.

The certificate of insurance, once on file with the department, is adequate for subsequent department contracts provided adequate coverage is still in effect. Do not refer to specific projects/contracts on this form.

List the contractor's legal company name, including the DBA (doing business as) name as the insured. If a staff leasing service is providing insurance to the contractor/client company, list the staff leasing service as the insured and show the contractor/client company in parenthesis.

The TxDOT certificate of insurance form is the only acceptable proof of insurance for department contracts.

List the contractor's legal company name, including the DBA (doing business as) name as the insured or list both the contractor and staff leasing service as insured when a staff leasing service is providing insurance.

Over-stamping and/or over-typing entries on the certificate of insurance are not acceptable if such entries change the provisions of the certificate in any manner.

This form may be reproduced.

DO NOT COMPLETE THIS FORM UNLESS THE WORKERS' COMPENSATION POLICY IS ENDORSED WITH A WAIVER OF SUBROGATION IN FAVOR OF TXDOT.

The SIGNATURE of the agent is required.

CERTIFICATE OF INSURANCE REQUIREMENTS:

WORKERS' COMPENSATION INSURANCE:

The contractor is required to have Workers' Compensation Insurance if the contractor has any employees including relatives.

The word STATUTORY, under limits of liability, means that the insurer would pay benefits allowed under the Texas Workers' Compensation Law.

GROUP HEALTH or ACCIDENT INSURANCE is not an acceptable substitute for Workers' Compensation.

COMMERCIAL GENERAL LIABILITY INSURANCE:

MANUFACTURERS' or CONTRACTOR LIABILITY INSURANCE is not an acceptable substitute for Comprehensive General Liability Insurance or Commercial General Liability Insurance.

BUSINESS AUTOMOBILE POLICY:

If coverages are specified separately, they must be at least these amounts:

Bodily Injury

$500,000 each occurrence

 

$100,000 each occurrence

Property Damage

$100,000 for aggregate

PRIVATE AUTOMOBILE LIABILITY INSURANCE is not an acceptable substitute for a Business Automobile Policy.

MAIL ALL CERTIFICATES TO:

Texas Department of Transportation

CST Contract Processing Unit (RA/200 1st Fl.) 125 E. 11th Street

Austin, TX 78701-2483 512/416-2540 (Voice), 512/416-2536 (Fax)

Form Information

Fact Name Description
Form Purpose This form certifies that specified insurance policies are in effect.
Governing Law The form is governed by Texas law, specifically the Texas Workers' Compensation Law.
Submission Method Agents must fax or mail the completed form to the Texas Department of Transportation.
Insurance Coverage Workers' Compensation, Commercial General Liability, and Business Automobile policies are required.
Waiver of Subrogation The Workers' Compensation policy must include a Waiver of Subrogation in favor of TxDOT.
Limits of Liability The minimum liability for Commercial General Liability and Business Automobile policies is $600,000.
Policy Cancellation Notice Notice of cancellation must be delivered according to the provisions of the insurance policy.
Agent's Signature The agent's signature is required on the form to validate the certification.
Mailing Address All certificates must be sent to the CST Contract Processing Unit at TxDOT in Austin, TX.

Detailed Guide for Filling Out Texas 1560

Completing the Texas 1560 form is a straightforward process that requires attention to detail. Once the form is filled out correctly, it needs to be sent to the Texas Department of Transportation. This ensures that the necessary insurance information is on file and that you meet the required obligations.

  1. Obtain the Form: Download the Texas 1560 form from the appropriate source or request a physical copy.
  2. Fill in Insured Information: Enter the legal name of the contractor or business as the insured, along with the street/mailing address, city, state, and zip code. Include a phone number.
  3. Workers' Compensation Insurance: Provide the carrier name, carrier phone number, and address. Fill in the type of insurance, policy number, effective date, expiration date, and limits of liability (not less than statutory for Texas).
  4. Commercial General Liability Insurance: Enter the carrier name, phone number, and address. Complete the type of insurance, policy number, effective date, expiration date, and limits of liability (not less than $600,000 each occurrence).
  5. Business Automobile Policy: Input the carrier name, phone number, and address. Fill in the type of insurance, policy number, effective date, expiration date, and limits of liability (not less than $600,000 combined single limit).
  6. Umbrella Policy (if applicable): Provide the carrier name, phone number, and address. Include the type of insurance, policy number, effective date, expiration date, and limits of liability.
  7. Agent Information: Fill in the agency name, address, city, state, and zip code. Include the authorized agent's phone number.
  8. Signature and Date: The authorized agent must sign and date the form to certify that the information is accurate.
  9. Submit the Form: Fax or mail the completed form to the Texas Department of Transportation at the address listed on the second page of the form.

Obtain Answers on Texas 1560

  1. What is the Texas 1560 form?

    The Texas 1560 form, also known as the Certificate of Insurance, is a document that verifies the insurance coverage of a contractor or business. This form is specifically used for projects involving the Texas Department of Transportation (TxDOT). It ensures that the contractor meets the required insurance standards before beginning work.

  2. Who needs to complete the Texas 1560 form?

    Any contractor or business that intends to perform work for TxDOT must complete this form. This includes contractors with employees, as they are required to have Workers' Compensation Insurance. Even if you are a sole proprietor, you must still provide this documentation if you have employees.

  3. What types of insurance are required on the Texas 1560 form?

    The form requires several types of insurance coverage:

    • Workers' Compensation Insurance
    • Commercial General Liability Insurance
    • Business Automobile Policy
    • Umbrella Policy (if applicable)

    Each type of insurance has specific limits that must be met to ensure compliance with TxDOT's requirements.

  4. How should the Texas 1560 form be submitted?

    Once completed, the form should be either faxed or mailed directly to the address provided on the second page of the form. It's important to ensure that the form reaches TxDOT in a timely manner to avoid any work delays.

  5. What happens if my insurance policy is canceled?

    If any of the insurance policies listed on the Texas 1560 form are canceled before their expiration date, the insurance provider is required to notify TxDOT in accordance with the policy provisions. This helps maintain transparency and ensures that TxDOT is aware of any changes in coverage.

  6. Can I use a different form or document to prove my insurance coverage?

    No, the Texas 1560 form is the only acceptable proof of insurance for contracts with TxDOT. It is crucial to use this specific form to ensure compliance and avoid any potential issues with your contract.

  7. What if I need to make changes to the information on the form?

    Changes to the Texas 1560 form must be made carefully. Over-stamping or over-typing entries that alter the provisions of the certificate in any way is not allowed. If higher insurance limits are required, you can strike through the pre-printed limits and enter the new amounts, but ensure that the changes are clear and do not create confusion.

  8. How can I ensure that my form is completed correctly?

    To complete the Texas 1560 form accurately, follow these guidelines:

    • Provide all requested information, including the legal company name and DBA (doing business as) name.
    • Make sure the Workers' Compensation policy includes a Waiver of Subrogation in favor of TxDOT.
    • Submit the form at least one business day before the expiration date of your current insurance.

    These steps will help you avoid delays and ensure that your insurance coverage is recognized by TxDOT.

Common mistakes

Filling out the Texas 1560 form can be straightforward, but several common mistakes can lead to issues. One mistake is failing to include the complete legal name of the contractor. It is essential to list the contractor's full name, including any "doing business as" (DBA) names. Omitting this information can cause delays in processing.

Another frequent error is not providing accurate contact information. Ensure that the phone number and address are correct. Incomplete or incorrect information may hinder communication and lead to complications.

People often forget to endorse the Workers' Compensation policy with a Waiver of Subrogation in favor of TxDOT. This endorsement is a requirement for the form to be valid. Without it, the form may be rejected.

Many individuals mistakenly use binder numbers as policy numbers. The form specifically states that binder numbers are not acceptable. It is crucial to provide the actual policy number to avoid issues.

Some agents may overlook the need to cross out pre-printed limits if their policy offers higher coverage. The form allows for adjustments, but failing to strike through the minimum limits can lead to confusion regarding coverage amounts.

Another mistake is not submitting the form in a timely manner. The form must reach TxDOT one business day before the expiration date of the insurance. Late submissions can result in work suspension.

People sometimes refer to specific projects or contracts on the form. This is not allowed. The form should remain general and not tied to any particular project to ensure compliance.

Over-stamping or over-typing entries can also be problematic. Any changes that alter the provisions of the certificate are not acceptable. It is best to fill out the form accurately the first time to avoid complications.

Some individuals may confuse different types of insurance. For instance, using Group Health or Accident Insurance as a substitute for Workers' Compensation is incorrect. Each type of insurance has specific requirements that must be met.

Finally, neglecting to include the authorized agent's original signature can invalidate the form. The signature is a crucial element, and without it, the form cannot be processed.

Documents used along the form

The Texas 1560 form, known as the Certificate of Insurance, is essential for contractors working with the Texas Department of Transportation (TxDOT). This form verifies that the required insurance policies are in place, ensuring compliance with state regulations. Alongside the Texas 1560 form, several other documents are frequently utilized to provide a comprehensive view of a contractor's insurance coverage and obligations. Below is a list of related forms and documents that are often required.

  • Workers' Compensation Policy Document: This document outlines the specifics of the workers' compensation insurance coverage, including policy limits, effective dates, and the insurer's obligations. It is crucial for contractors with employees, ensuring they are protected against work-related injuries.
  • Commercial General Liability Policy: This policy provides coverage for claims related to bodily injury and property damage that may arise during the course of business operations. It is essential for contractors to have this document to demonstrate their financial responsibility in case of accidents or damages.
  • Business Automobile Policy: This document covers vehicles used for business purposes. It includes details about coverage limits for bodily injury and property damage, ensuring that contractors are protected while using vehicles for work-related tasks.
  • Umbrella Policy: An umbrella policy provides additional coverage beyond the limits of existing insurance policies. This document is useful for contractors seeking extra protection against large claims that could exceed standard policy limits.
  • Endorsements and Waivers: These documents may include specific provisions that modify the terms of existing insurance policies. For instance, a waiver of subrogation in favor of TxDOT is often required to protect the agency's interests in the event of a claim.

Each of these documents plays a vital role in ensuring that contractors meet the insurance requirements set forth by TxDOT. By maintaining and submitting the necessary forms, contractors can facilitate smooth project execution while safeguarding their interests and those of the state.

Similar forms

The Texas 1560 form, known as the Certificate of Insurance, shares similarities with several other documents. Each of these documents serves a specific purpose related to insurance verification and compliance. Here’s a breakdown of four similar documents:

  • Certificate of Liability Insurance: This document provides proof of liability coverage, detailing the types of insurance held, the policy limits, and the effective dates. Like the Texas 1560, it is often required for contractors to demonstrate compliance with insurance requirements for projects.
  • Proof of Insurance: This general document serves to verify that an individual or business has an active insurance policy. It includes similar information such as policy numbers and coverage limits, ensuring that the insured is protected against potential claims, just like the Texas 1560 form.
  • Endorsement Certificates: These documents modify the terms of an existing insurance policy and may include additional coverage or exclusions. They are similar to the Texas 1560 in that they provide specific details about the insurance coverage, but they focus on changes rather than a summary of existing policies.
  • Insurance Binder: An insurance binder is a temporary document that provides proof of insurance coverage until a formal policy is issued. It outlines the coverage details and is similar to the Texas 1560 in that it confirms the existence of coverage, although it is not a permanent record.

Dos and Don'ts

When filling out the Texas 1560 form, there are several important dos and don'ts to keep in mind. This will help ensure the process goes smoothly and your submission is accepted without issues.

  • Do provide all requested information completely and accurately.
  • Do fax or mail the completed form directly to the address listed on the form.
  • Do ensure that the Workers' Compensation policy is endorsed with a Waiver of Subrogation in favor of TxDOT.
  • Do list the contractor's legal company name, including any DBA (doing business as) names.
  • Don't use binder numbers as policy numbers; they are not acceptable.
  • Don't make changes to the pre-printed limits unless you strike through the old limit and write the new one clearly.

Misconceptions

Understanding the Texas 1560 form can be challenging due to several common misconceptions. Here are five of the most prevalent misunderstandings, along with clarifications to help you navigate this important document.

  • Misconception 1: The Texas 1560 form provides insurance coverage.
  • This form does not provide insurance coverage itself. Instead, it serves as a certificate that verifies the existence of certain insurance policies. The actual coverage is determined by the policies referenced in the form.

  • Misconception 2: You must attach endorsements to the Texas 1560 form.
  • Many people believe that copies of endorsements must be attached to the form. However, the Texas 1560 form explicitly states that these endorsements are not required as attachments.

  • Misconception 3: The certificate grants rights to the certificate holder.
  • Some individuals think that holding the certificate confers rights or obligations. In reality, the certificate is issued for informational purposes only and does not grant any rights beyond those established by the underlying insurance policies.

  • Misconception 4: You can use previous versions of the form.
  • Another common belief is that older versions of the Texas 1560 form are acceptable. This is incorrect. Only the most current version of the form should be used, as previous editions may not be valid.

  • Misconception 5: Any insurance policy can be listed on the Texas 1560 form.
  • It’s important to note that only specific types of insurance policies can be included. Policies must meet the minimum coverage requirements outlined in the form, such as Workers' Compensation and Commercial General Liability Insurance.

Key takeaways

Filling out and using the Texas 1560 form is crucial for ensuring compliance with insurance requirements for contractors. Here are key takeaways to keep in mind:

  • Complete Information: Ensure all requested information is filled out accurately. This includes details about the insured, policy numbers, and coverage limits.
  • Fax or Mail: After completing the form, send it directly to the address provided on the second page. You can use fax or mail for submission.
  • Policy Endorsement: Workers' compensation insurance must include a waiver of subrogation in favor of TxDOT.
  • Minimum Coverage: Adhere to minimum coverage limits specified for workers' compensation, general liability, and automobile policies.
  • Timely Submission: Submit an updated form at least one business day before the current insurance expires to avoid work suspension.
  • No Changes Allowed: Avoid making alterations to the form that change its provisions. Over-stamping or over-typing is not acceptable.
  • Correct Insured Name: List the contractor's legal name, including any DBA. If using a staff leasing service, include both names appropriately.

Following these guidelines will help ensure that the Texas 1560 form is completed correctly and submitted on time, preventing any delays in work authorization.