Homepage Blank St 101 Idaho Form
Outline

The ST 101 Idaho form is a crucial document for businesses and individuals looking to claim exemptions from sales tax in Idaho. This form serves multiple purposes, primarily allowing buyers to certify that their purchases are for resale, exempt use, or fall under specific categories that qualify for tax relief. For instance, businesses purchasing goods for resale must indicate their seller's permit number, while producers can claim exemptions for items directly used in their production processes. Additionally, various organizations, including nonprofit entities and government agencies, can utilize the form to exempt all their purchases from sales tax. The ST 101 also addresses contractor exemptions, enabling construction professionals to acquire materials for projects in non-taxing states without incurring sales tax. Each section of the form requires careful completion, with specific rules governing the eligibility for exemptions. Buyers must read and sign the form, affirming the accuracy of their claims, as any false statements could lead to serious penalties. Understanding the nuances of the ST 101 Idaho form is essential for anyone involved in purchasing goods in the state, ensuring compliance while maximizing potential tax savings.

Sample - St 101 Idaho Form

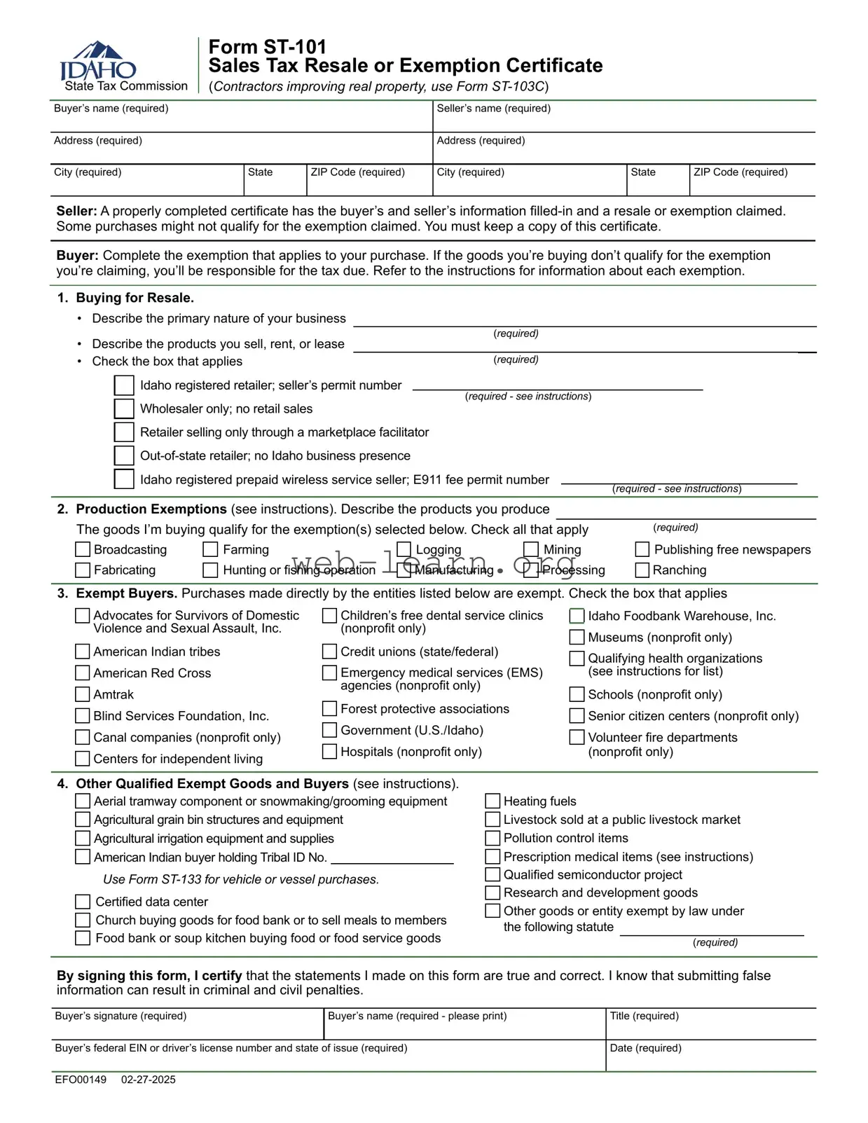
Form ST-101

Sales Tax Resale or Exemption Certificate

(Contractors improving real property, use Form ST-103C)

Buyer’s name (required)

 

 

Seller’s name (required)

 

 

 

 

 

 

 

 

Address (required)

 

 

Address (required)

 

 

 

 

 

 

 

 

City (required)

State

ZIP Code (required)

City (required)

State

ZIP Code (required)

 

 

 

 

 

 

Seller: A properly completed certificate has the buyer’s and seller’s information filled-in and a resale or exemption claimed. Some purchases might not qualify for the exemption claimed. You must keep a copy of this certificate.

Buyer: Complete the exemption that applies to your purchase. If the goods you’re buying don’t qualify for the exemption you’re claiming, you’ll be responsible for the tax due. Refer to the instructions for information about each exemption.

1. Buying for Resale.

• Describe the primary nature of your business

• Describe the products you sell, rent, or lease

 

(required)

 

 

 

 

 

 

 

 

• Check the box that applies

 

 

(required)

 

 

 

 

 

Idaho registered retailer; seller’s permit number

 

 

 

 

 

 

 

 

 

 

 

 

 

 

 

 

Wholesaler only; no retail sales

(required - see instructions)

 

 

 

 

 

 

 

 

 

 

 

 

 

 

 

 

 

 

 

 

 

 

Retailer selling only through a marketplace facilitator

 

 

 

 

 

 

 

 

 

 

 

 

 

 

Out-of-state retailer; no Idaho business presence

 

 

 

 

 

 

 

 

 

 

 

 

 

 

Idaho registered prepaid wireless service seller; E911 fee permit number

 

 

 

 

 

 

 

 

 

 

 

 

 

(required - see instructions)

 

 

 

 

 

 

 

 

 

2.Production Exemptions (see instructions). Describe the products you produce

 

 

 

 

 

 

The goods I’m buying qualify for the exemption(s) selected below. Check all that apply

(required)

Broadcasting

Farming

Logging

Mining

Publishing free newspapers

Fabricating

Hunting or fishing operation

Manufacturing

Processing

Ranching

3.Exempt Buyers. Purchases made directly by the entities listed below are exempt. Check the box that applies

Advocates for Survivors of Domestic Violence and Sexual Assault, Inc.

American Indian tribes

American Red Cross

Amtrak

Blind Services Foundation, Inc.

Canal companies (nonprofit only)

Centers for independent living

Children’s free dental service clinics (nonprofit only)

Credit unions (state/federal)

Emergency medical services (EMS) agencies (nonprofit only)

Forest protective associations Government (U.S./Idaho)

Hospitals (nonprofit only)

Idaho Foodbank Warehouse, Inc.

Museums (nonprofit only)

Qualifying health organizations (see instructions for list)

Schools (nonprofit only)

Senior citizen centers (nonprofit only)

Volunteer fire departments (nonprofit only)

4.Other Qualified Exempt Goods and Buyers (see instructions). Aerial tramway component or snowmaking/grooming equipment Agricultural grain bin structures and equipment

Agricultural irrigation equipment and supplies

American Indian buyer holding Tribal ID No.

Use Form ST-133 for vehicle or vessel purchases.

Certified data center

Church buying goods for food bank or to sell meals to members

Food bank or soup kitchen buying food or food service goods

Heating fuels

Livestock sold at a public livestock market

Pollution control items

Prescription medical items (see instructions)

Qualified semiconductor project

Research and development goods

Other goods or entity exempt by law under the following statute

(required)

By signing this form, I certify that the statements I made on this form are true and correct. I know that submitting false information can result in criminal and civil penalties.

Buyer’s signature (required)

Buyer’s name (required - please print)

Title (required)

 

 

 

Buyer’s federal EIN or driver’s license number and state of issue (required)

Date (required)

 

 

 

EFO00149 02-27-2025

 

 

Form ST-101 — Instructions

Sales Tax Resale or Exemption Certificate

General. To be valid, the certificate must be fully completed and signed. The seller must keep the valid form on file. The seller is responsible for collecting sales tax if the form isn’t valid.

Buyer, if the goods you’re buying don’t qualify for the exemption you’re claiming, you’ll be responsible for the tax due.

Specific Instructions

Section 1 — Buying for Resale

Buyers must have an Idaho seller’s or E911 fee permit number unless they’re:

Wholesalers making no retail sales.

Retailers selling only through marketplace facilitators. (A marketplace facilitator is a person who provides a marketplace for third-party sellers.)

Out-of-state retailers with no Idaho business presence (e.g., physical location, representatives, employees, etc.).

An Idaho seller’s or E911 fee permit number has nine digits, such as 000123456. You can validate a permit number by visiting tax.idaho.gov/validseller or contacting the Tax Commission.

Section 2 — Production Exemptions

Businesses that primarily produce goods for resale don’t need to pay tax on qualifying items they directly and primarily use in the production process. Businesses offering the right to hunt or fish as a taxable activity don’t need to pay tax on qualifying items they directly and primarily use in a hunting or fishing activity. See Idaho Code section 63-3622D.

Loggers (63-3622JJ), broadcasters (63-3622S), and publishers of newspapers (63-3622T) that are free to the public and contain at least 10% informational content (not ads) have a similar exemption.

Qualifying businesses must pay sales tax on the following:

Goods that become improvements to real property (e.g., fence posts)

Goods used in selling or distribution

Janitorial or cleaning equipment and supplies

Maintenance or repair equipment and supplies

Office equipment and supplies

Transportation equipment and supplies

Any licensed motor vehicle, trailer, aircraft, or parts

Recreational vehicle (e.g., snowmobile, ATV, off-highway motorcycle, camper, travel trailer)

Seller: For production exemptions, you can stamp or imprint an exemption statement on the front of the invoice. (See Exemption Statement section below for the required elements of an exemption statement.)

Section 3 — Exempt Buyers

These buyers are exempt from tax on all purchases. See Idaho Code sections 63-3622O and 63-3622Z.

Advocates for Survivors of Domestic Violence and Sexual Assault, Inc.

American Indian tribes. Only tribal entities qualify.

American Red Cross.

Amtrak.

Blind Services Foundation, Inc.

Canal companies. Nonprofit only.

Centers for independent living. To qualify, a center must be a private, nonprofit, nonresidential organization in which at least 51% of the board, management, and staff are persons with disabilities.

The center also must meet all these criteria:

It’s designed and operated within a local community by individuals with disabilities.

It provides a variety of independent living services and programs.

It’s cross-disability.

Children’s free dental service clinics. Nonprofit only.

Credit unions. Both state and federal credit unions qualify. See Idaho Code section 26-2138.

Emergency medical service (EMS) agencies. Nonprofit only.

Forest protective associations.

Government. Only the U.S. government and Idaho state, county, city, and other political subdivisions qualify. Sales to other states and their political subdivisions are taxable.

EIN00064

02-27-2025

Page 1 of 3

Form ST-101 — Instructions (continued)

Hospitals. Only licensed nonprofit hospitals qualify. Nursing homes or similar institutions don’t qualify for the hospital exemption.

Idaho Foodbank Warehouse, Inc.

Museums. Nonprofit only. A museum stores, preserves, and exhibits objects of art, history, science, or educational/cultural value on a permanent basis in a building, portion of a building, or outdoor location which provides museum services to the public on a regular basis.

Qualified health organizations:

American Cancer Society

American Diabetes Association

American Heart Association

Arc, Inc., The

Arthritis Foundation

Camp Rainbow Gold

Children’s Home Society of Idaho

Easter Seals

Family Services Alliance of Southeast Idaho

Idaho Association of Free and Charitable Clinics and its member clinics

Idaho Community Action Agencies

Idaho Cystic Fibrosis Foundation

Idaho Diabetes Youth Programs

Idaho Epilepsy League

Idaho Lung Association, aka American Lung Association of Idaho

Idaho Primary Care Association and its community health centers

Idaho Ronald McDonald House

Idaho Women’s and Children’s Alliance

March of Dimes

Mental Health Association

Muscular Dystrophy Foundation

National Multiple Sclerosis Society

Rocky Mountain Kidney Association

Special Olympics Idaho

United Cerebral Palsy

Schools. Certain public or nonprofit schools qualify. These schools include:

Colleges and universities

Primary, secondary, and charter schools

Auxiliary organizations such as parent-teacher associations, booster clubs, and alumni groups don’t qualify.

Schools primarily teaching subjects like business, dance, theater arts, music, cosmetology, writing, and gymnastics don’t qualify.

Senior citizen centers. Only nonprofit community centers for senior citizens qualify.

Volunteer fire departments. Nonprofit only.

Section 4 — Other Qualified Exempt Goods

and Buyers

If buyers claim an exemption that isn’t listed on this form, they must mark the “Other” box and list the section of law that applies to the exemption. Otherwise, this certificate isn’t valid.

Aerial tramway, snowmaking/grooming equipment. The sale, storage, use, or other consumption of parts, materials, or equipment that will become a component of an aerial passenger tramway are exempt from tax.

Snowgrooming and snowmaking equipment that a downhill ski area owner or operator buys and uses to prepare

and maintain the downhill ski slopes accessed by aerial tramways is exempt. An aerial tramway includes chair lifts, gondolas, T-bar and J-bar lifts, platter lifts, rope tows, and similar devices. See Idaho Code section 63-3622Y.

Agricultural grain bin structures and equipment. All grain bin structures and equipment, including quality control equipment, directly and primarily used in agricultural production are exempt. See Idaho Code subsections 63-3622D(a)(6) and 63-3622D(a)(7).

Agricultural irrigation equipment and supplies. All irrigation equipment and supplies used directly and primarily for agriculture are exempt. See Idaho Code section 63-3622W.

American Indians. Sales to an enrolled American Indian tribal member are exempt if the goods are delivered on the reservation. The buyer’s Tribal Identification Number is required. For sales of vehicles or boats, use Form ST-133, Sales Tax Exemption Certificate - Family or American Indian Sales.

Certified data centers. Only data centers certified with the Tax Commission qualify. Certified data centers can buy the following without paying sales tax:

EIN00064

02-27-2025

Page 2 of 3

Form ST-101 — Instructions (continued)

Eligible server equipment including servers, rack servers, chillers, storage devices, generators, cabling, and enabling software integral to or installed on such equipment

New data center facilities, meaning the building or structural components of a building used primarily as a data center, including equipment, materials, and fixtures

See Idaho Code section 63-3622VV.

Churches. Churches can buy food for meals they sell to members or qualifying goods for their food bank without paying tax. See Idaho Code section 63-3622J.

Food banks and soup kitchens. Food banks and soup kitchens can buy food or other goods used to grow, store, prepare, or serve food exempt from sales tax. The exemption doesn’t include licensed motor vehicles or trailers. See Idaho Code section 63-3622O.

Heating fuels. Heating fuels such as wood, coal, petroleum, propane, and natural gas are exempt when purchased to heat any building, or a building under construction, or for domestic home use such as cooking or water heating. See Idaho Code section 63-3622G.

Seller: For heating fuel, you can stamp or imprint an exemption statement on the front of the invoice. (See Exemption Statement section below for the required elements of an exemption statement.)

Sales of liquid propane in units of 15 gallons or less that are identified in the vendor’s records as cylinder sales are exempt from tax. You don’t need a Form ST-101.

Livestock. Sales of cattle, sheep, mules, horses, pigs, and goats are exempt when sold at a public livestock market. Sales of other animals don’t qualify. See Idaho Code section 63-3622MM.

Pollution control items. The following items qualify: tangible personal property purchased to meet air or water quality standards of a federal or state agency; liners and reagents purchased to meet water quality standards; tangible personal property purchased to meet air or water quality standards and which become an improvement to real property of manufacturing, mining, farming or toxic waste treatment and storage businesses; and “dry-to-

dry transfer systems” used in the dry cleaning industry. This exemption doesn’t apply to items used in road construction, septic or sewer systems, drinking water treatment, or soil erosion prevention. Motor vehicles and buildings don’t qualify. See Idaho Code section 63-3622X.

Prescription medical items. To qualify, the goods must

be prescribed to an individual by a licensed practitioner and be included in Idaho Code section 63-3622N.

Qualified semiconductor projects. Applicants must

submit a qualifying project outline to the Idaho Department of Commerce. Qualifying entities can purchase materials and supplies permanently installed or placed in or on a qualifying project without paying sales tax. A qualifying project includes activities conducted in Idaho to construct, expand, or modernize a facility for fabrication, assembly, testing, advanced packaging, or research and development of semiconductors. See Idaho Code section 63-3622WW.

Research and development (R&D). Purchases of goods

that are primarily used to develop, design, manufacture, process, or fabricate a product or potential product qualify for exemption. See Idaho Code section 63-3622RR.

The Idaho National Laboratory and its contractors can claim an R&D exemption to buy goods directly and primarily used to advance scientific knowledge in areas that don’t have a commercial application. Items that will become a part of real property don’t qualify. See Idaho Code section 63-3622BB.

Exemption Statement

The required elements include the purchaser’s name, business name, address, a federal employer identification number or driver’s license number and state of issue, signature, date, and the reason for and nature of the claimed exemption.

Penalties

A penalty may be imposed for the misuse of an exemption form. If false exempt purchases are repeatedly or intentionally made, a penalty may be assessed at 5% of the sales price or $200, whichever is greater. See Idaho Code subsection 63-3624(i).

Contact us:

In the Boise area: (208) 334-7660 | Toll free: (800) 972-7660

Hearing impaired (TDD) (800) 377-3529

tax.idaho.gov/contact

EIN00064

02-27-2025

Page 3 of 3

Form Information

Fact Name Description
Purpose of Form The ST 101 Idaho form serves as a Sales Tax Resale or Exemption Certificate, allowing buyers to claim exemptions from sales tax on certain purchases.
Governing Law This form is governed by Idaho Code § 63-3622, which outlines the conditions under which sales tax exemptions can be claimed.
Types of Exemptions Exemptions can be claimed for resale, producer exemptions, and various specific buyer categories, including nonprofit organizations and government entities.
Seller's Permit Requirement Buyers must have an Idaho seller's permit number to claim resale exemptions, unless they are wholesalers or out-of-state retailers making limited sales.
Producer Exemptions Businesses that produce goods for resale may buy materials used directly in the production process without paying sales tax.
Exempt Buyers Certain organizations, like food banks and American Indian tribes, qualify as exempt buyers and can purchase goods without incurring sales tax.
Contractor Exemptions Contractors can claim exemptions for materials used in specific projects, such as agricultural irrigation or jobs in nontaxing states.
Validity of Form The ST 101 form is only valid if all required information is complete and accurate. Sellers may retain this form for their records.

Detailed Guide for Filling Out St 101 Idaho

Filling out the ST 101 form for Idaho is a straightforward process that requires attention to detail. This form is necessary for buyers who are claiming a sales tax exemption. Once completed, it should be provided to the seller to ensure that the correct tax treatment is applied to the transaction.

  1. Obtain the Form: Download or print the ST 101 form from the Idaho State Tax Commission website.
  2. Fill in Seller’s Information: Enter the seller’s name, address, city, state, and zip code in the designated fields.
  3. Fill in Buyer’s Information: Provide your name, address, city, state, and zip code in the appropriate sections.
  4. Section 1 - Buying for Resale: Indicate whether you are buying for resale by checking the appropriate box. Provide the primary nature of your business and the types of products you sell, rent, or lease.
  5. Section 2 - Producer Exemptions: If applicable, check the box that applies to your exemption and list the products you produce. Choose from farming, ranching, or manufacturing.
  6. Section 3 - Exempt Buyer: Check the appropriate box if all your purchases are exempt. This could include various organizations like nonprofit hospitals or government entities.
  7. Section 4 - Contractor Exemptions: If claiming an exemption related to a specific job, fill in the invoice, purchase order, or job number, along with the city and state where the job is located, and the project owner’s name. Indicate the type of exempt project.
  8. Section 5 - Other Exempt Goods and Buyers: If applicable, check the box for any other exemptions you may qualify for and provide any required information.
  9. Certification: Read the certification statement carefully. Sign and date the form, including your title if applicable.

Once the ST 101 form is filled out completely, it should be submitted to the seller. The seller will keep this form on file to support the exemption claim. It is important to ensure that all information is accurate and complete, as any errors could lead to complications with tax exemptions.

Obtain Answers on St 101 Idaho

  1. What is the ST 101 Idaho form?

    The ST 101 form, also known as the Sales Tax Resale or Exemption Certificate, is a document used in Idaho to claim exemptions from sales tax. It allows buyers to certify that their purchases are either for resale or for exempt uses, thereby avoiding sales tax on those transactions. This form is essential for businesses that regularly buy goods they plan to sell or use in exempt activities.

  2. Who should use the ST 101 form?

    This form is intended for various types of buyers, including:

    • Retailers purchasing items for resale.
    • Producers who need goods for exempt uses in their production processes.
    • Exempt organizations such as nonprofits, government entities, and certain educational institutions.
    • Contractors working on exempt projects.
  3. What information is required on the ST 101 form?

    When filling out the ST 101 form, buyers must provide specific information, including:

    • The names and addresses of both the buyer and seller.
    • The nature of the buyer's business and the types of products being purchased.
    • Details regarding any applicable exemptions, such as producer exemptions or contractor exemptions.
    • The buyer's signature certifying the accuracy of the information provided.
  4. How does one qualify for a resale exemption?

    To qualify for a resale exemption, the buyer must hold an Idaho seller’s permit number, unless they are a wholesaler or an out-of-state retailer making limited sales in Idaho. This permit number must be included on the form. It’s important to note that this exemption applies only to items that will be resold in the regular course of business, not to personal purchases.

  5. What are some common exemptions listed on the ST 101 form?

    Several exemptions can be claimed using the ST 101 form, including:

    • Goods purchased for resale.
    • Materials used in agricultural irrigation projects.
    • Products used by certain nonprofit organizations.
    • Equipment and supplies used for pollution control.
    • Aircraft purchased by nonresidents for out-of-state use.
  6. What should sellers do with the ST 101 form?

    Sellers must retain the ST 101 form for their records, as it serves as proof that they did not collect sales tax on exempt transactions. It is crucial for sellers to ensure that the form is filled out completely and accurately. If a buyer claims an exemption incorrectly, the seller may still be liable for the sales tax.

  7. What are the consequences of falsifying information on the ST 101 form?

    Falsifying information on the ST 101 form is considered a serious offense. If a buyer knowingly provides false information to evade sales tax, they may face misdemeanor charges. Additional penalties could also apply, depending on the severity of the violation. It is essential for buyers to be truthful and accurate when completing this form to avoid legal repercussions.

Common mistakes

Filling out the ST-101 Idaho form can seem straightforward, but many people make common mistakes that can lead to complications. One frequent error is not providing a valid Idaho seller’s permit number. This number is essential for buyers who are purchasing goods for resale. If the number is incorrect or formatted improperly, the certificate will not be valid. Buyers should ensure that their seller’s permit number follows the correct format, which includes up to nine digits followed by an “S.”

Another mistake involves failing to check the appropriate boxes that apply to their situation. The form has specific sections for different types of exemptions, such as buying for resale or claiming producer exemptions. Skipping this step can lead to confusion and potential tax liability. It’s crucial to read through the options carefully and select the one that accurately reflects the buyer's intent.

Some individuals neglect to provide detailed descriptions of the products being purchased. For instance, when claiming a producer exemption, it's necessary to list the specific products that will be used in the production process. Vague descriptions can result in the rejection of the exemption claim. Clear and concise product descriptions help streamline the process and ensure compliance.

Additionally, buyers often overlook the requirement to sign and date the form. A signature is essential, as it certifies that all information provided is accurate. Without a signature, the form is incomplete and cannot be processed. Buyers should double-check that they have signed and dated the form before submission.

Another common issue arises when buyers claim exemptions that do not apply to their situation. For example, claiming contractor exemptions requires specific conditions to be met. If the project does not qualify under the stated guidelines, the exemption claim may be invalid. Buyers must carefully review the eligibility criteria for each exemption type to avoid misunderstandings.

Some individuals mistakenly believe that all purchases made by exempt organizations are automatically exempt from sales tax. However, this is not the case. Each organization has specific categories of goods that qualify for exemption. Buyers should familiarize themselves with the rules governing their specific organization to ensure compliance and avoid unnecessary tax liabilities.

Another frequent oversight is not keeping copies of the completed form. Buyers should retain a copy for their records, as it serves as proof of the exemption claim. This can be particularly important in the event of an audit or inquiry from tax authorities.

Lastly, individuals sometimes fail to consult the instructions provided on the back of the form. These instructions contain valuable information about the exemptions and the requirements for each category. Ignoring these guidelines can lead to errors and complications in the exemption process. Taking the time to read through the instructions can save buyers from potential headaches down the line.

Documents used along the form

The ST 101 form is a critical document for businesses in Idaho, enabling buyers to claim exemptions from sales tax under specific circumstances. Alongside this form, several other documents often accompany it to facilitate various transactions and ensure compliance with state regulations. Below is a list of related forms and documents that may be utilized in conjunction with the ST 101.

  • ST 102 - Idaho Sales Tax Exemption Certificate: This form is used by purchasers to claim a sales tax exemption on specific purchases that qualify under Idaho law. It provides details about the buyer and the nature of the exempt transaction.
  • ST 103 - Idaho Resale Certificate: Retailers use this certificate to purchase goods intended for resale without paying sales tax. It requires the buyer's seller's permit number and details about the items being purchased.
  • ST 104 - Exempt Use Certificate: This document is for buyers who intend to use purchased items in a manner that qualifies for exemption from sales tax. It outlines the specific use and the buyer’s qualifications for the exemption.
  • ST 105 - Idaho Nonprofit Organization Exemption Certificate: Nonprofit organizations use this form to claim exemption from sales tax on purchases related to their exempt activities. It requires verification of the organization’s status.
  • ST 106 - Idaho Agricultural Exemption Certificate: Farmers and agricultural producers use this form to purchase items exempt from sales tax that are directly related to their farming operations, such as seeds and fertilizers.
  • ST 107 - Idaho Government Exemption Certificate: This certificate is utilized by government entities to claim exemption from sales tax on purchases made for government purposes. It requires the entity's identification and details about the transaction.
  • ST 108 - Idaho Food Bank Exemption Certificate: Food banks use this document to purchase food and related items without paying sales tax. It certifies the buyer’s status as a recognized food bank under state law.

These documents play a vital role in ensuring that buyers can effectively manage their tax obligations while taking advantage of available exemptions. Each form has specific requirements and uses, reflecting the diverse needs of businesses and organizations in Idaho.

Similar forms

  • Form ST-102 - Exemption Certificate for Nonprofit Organizations: Similar to the ST-101, this form is used by nonprofit organizations to claim exemption from sales tax on purchases directly related to their charitable activities.
  • Form ST-103 - Resale Certificate: This document allows businesses to purchase goods tax-free for resale. Like the ST-101, it requires the buyer to indicate their seller's permit number and the nature of their business.
  • Form ST-104 - Exemption Certificate for Government Entities: Government entities use this form to claim exemption from sales tax. It parallels the ST-101 in that it requires identification of the buyer and the purpose of the purchase.
  • Form ST-105 - Exempt Use Certificate: This form is for buyers who will use the purchased goods in a manner that qualifies for exemption. It shares the same principles as the ST-101, focusing on the intended use of the goods.
  • Form ST-106 - Agricultural Exemption Certificate: Farmers and agricultural producers use this form to claim exemptions on certain purchases. It is similar to the ST-101 in that it specifies the type of goods being purchased and the intended use.
  • Form ST-107 - Direct Pay Permit: This permit allows businesses to pay sales tax directly to the state instead of at the point of sale. It aligns with the ST-101 by requiring detailed information about the business and the nature of purchases.
  • Form ST-108 - Exemption Certificate for Educational Institutions: Educational institutions use this form to claim sales tax exemptions on purchases related to their educational mission. It mirrors the ST-101 in focusing on the purpose of the purchase.
  • Form ST-109 - Exemption Certificate for Religious Organizations: This form is specifically for religious organizations to claim exemptions on purchases for their operations. Like the ST-101, it requires the buyer to certify the use of the goods.
  • Form ST-110 - Exemption Certificate for Medical Facilities: Medical facilities utilize this form to claim sales tax exemptions on qualifying medical purchases. It parallels the ST-101 in detailing the exempt nature of the goods and the buyer's information.

Dos and Don'ts

When filling out the ST 101 Idaho form, it’s crucial to follow specific guidelines to ensure accuracy and compliance. Here’s a list of what you should and shouldn’t do:

  • Do provide complete and accurate information in all sections of the form.
  • Do check the appropriate boxes that apply to your situation.
  • Do include your Idaho seller’s permit number if applicable.
  • Do read the instructions carefully to understand the exemptions you are claiming.
  • Don’t leave any fields blank; incomplete forms may be rejected.
  • Don’t use an invalid seller’s permit number; ensure it follows the correct format.
  • Don’t claim exemptions without verifying that you meet the eligibility requirements.
  • Don’t falsify any information; this could lead to legal penalties.

Misconceptions

Understanding the ST-101 Idaho form is essential for businesses and individuals claiming tax exemptions. However, several misconceptions can lead to confusion. Here are eight common misconceptions about the ST-101 form:

  • Only Retailers Can Use the ST-101 Form: Many believe that only retailers can use this form for tax exemptions. In reality, various buyers, including producers and contractors, can also utilize it for exempt purchases.
  • All Purchases Are Automatically Exempt: Some people think that simply filling out the ST-101 form guarantees exemption from sales tax. However, exemptions depend on the specific category and use of the purchased goods.
  • Exemptions Are Unlimited: There is a misconception that all items can be claimed as exempt. Each exemption has specific rules, and not all goods qualify under the categories listed on the form.
  • Any Business Can Claim Exemptions: It is often assumed that any business can claim exemptions. However, only those businesses meeting specific criteria, such as having a seller's permit or being a registered nonprofit, can do so.
  • Exemptions Apply to Services: Some individuals mistakenly believe that services are covered under the ST-101 exemptions. The form is specifically for tangible goods, not services.
  • Once Approved, Exemptions Last Forever: There is a belief that once a buyer is approved for an exemption, they remain exempt indefinitely. In fact, exemptions may change based on the buyer's status or the nature of the purchase.
  • All Exempt Buyers Have the Same Requirements: Many think that all exempt buyers follow the same rules. Different exempt categories, such as nonprofits or government entities, have unique requirements and documentation.
  • Filling Out the Form Is All That Is Needed: Some believe that simply completing the ST-101 form is sufficient. Sellers must also verify that the claimed exemptions are valid and charge tax on any taxable goods.

Awareness of these misconceptions can help ensure proper use of the ST-101 Idaho form and compliance with tax regulations.

Key takeaways

When filling out and using the ST-101 Idaho form, it is essential to understand the following key points:

  • Purpose of the Form: The ST-101 form serves as a Sales Tax Resale or Exemption Certificate, allowing buyers to claim exemptions from sales tax for certain purchases.
  • Complete Information: Ensure that all required fields are filled out completely. Incomplete forms may not be accepted, which can lead to tax liabilities.
  • Types of Exemptions: The form includes various exemptions, such as buying for resale, producer exemptions, and exemptions for specific buyers like nonprofits and government entities. It is crucial to select the correct exemption type.
  • Seller's Responsibility: Sellers must verify the buyer's claimed exemption and are responsible for charging sales tax on any taxable goods that do not qualify for an exemption.
  • Legal Consequences: Falsifying information on the ST-101 form is considered a misdemeanor. Buyers should be aware of the potential legal repercussions of providing inaccurate information.