Homepage Blank Rst Army Form
Outline

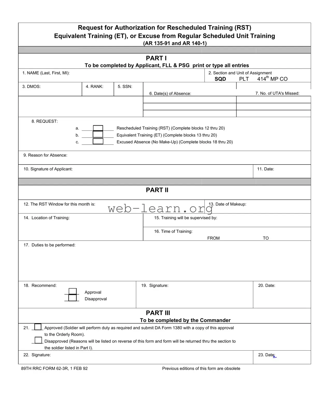
The Request for Authorization for Rescheduled Training (RST), Equivalent Training (ET), or Excuse from Regular Scheduled Unit Training is an essential form used within the military structure to manage training absences. This form serves multiple purposes, allowing soldiers to formally request rescheduled training, seek equivalent training opportunities, or obtain an excused absence from regular scheduled unit training. Each request requires specific information, starting with the soldier's name, rank, and unit assignment. Applicants must also indicate the dates of absence and the number of Unit Training Assemblies (UTAs) missed. The form is divided into several parts, with the first section completed by the soldier, detailing the reason for absence and their signature. The subsequent sections involve planning for rescheduled training, including the training window, date, location, and supervision details. Commanders play a critical role in the final decision-making process, indicating approval or disapproval of the request, along with their signature and date. This structured approach ensures accountability and clarity in managing training schedules and soldier commitments.

Sample - Rst Army Form

Request for Authorization for Rescheduled Training (RST)

Equivalent Training (ET), or Excuse from Regular Scheduled Unit Training

(AR 135-91 and AR 140-1)

PART I

To be completed by Applicant, FLL & PSG print or type all entries

1. NAME (Last, First, MI):

2. Section and Unit of Assignment

SQD

PLT 414th MP CO

3. DMOS:

4. RANK:

5. SSN:

6. Date(s) of Absence:

7. No. of UTA's Missed:

8. REQUEST:

a.

b.

c.

Rescheduled Training (RST) (Complete blocks 12 thru 20) Equivalent Training (ET) (Complete blocks 13 thru 20) Excused Absence (No Make-Up) (Complete blocks 18 thru 20)

9. Reason for Absence:

10. Signature of Applicant:

11. Date:

PART II

12. The RST Window for this month is:

13. Date of Makeup:

14. Location of Training:

15. Training will be supervised by:

16. Time of Training:

FROMTO

17. Duties to be performed:

18. Recommend:

_____ Approval

_____ Disapproval

19. Signature:

20. Date:

PART III

To be completed by the Commander

21._____ Approved (Soldier will perform duty as required and submit DA Form 1380 with a copy of this approval to the Orderly Room).

_____ Disapproved (Reasons will be listed on reverse of this form and form will be returned thru the section to

the soldier listed in Part I).

22. Signature:

 

23. Date:

 

 

 

89TH RRC FORM 62-3R, 1 FEB 92

Previous editions of this form are obsolete

Form Information

Fact Name Description
Form Title Request for Authorization for Rescheduled Training (RST), Equivalent Training (ET), or Excuse from Regular Scheduled Unit Training
Governing Laws AR 135-91 and AR 140-1
Part I Responsibility This section must be completed by the Applicant, FLL, and PSG.
Required Information Includes name, unit assignment, DMOS, rank, SSN, dates of absence, and number of UTAs missed.
Types of Requests Options include Rescheduled Training (RST), Equivalent Training (ET), and Excused Absence.
Part II Purpose This section outlines details for the rescheduled training, including dates, location, and supervision.
Recommendation Section Recommends approval or disapproval of the request.
Part III Completion This part must be filled out by the Commander, indicating approval or disapproval.
Obsolete Editions Previous editions of this form are considered obsolete.

Detailed Guide for Filling Out Rst Army

Completing the RST Army form requires careful attention to detail. Each section must be filled out accurately to ensure that your request is processed smoothly. After submitting the form, it will be reviewed by your commander, who will either approve or disapprove your request based on the information provided.

  1. Begin with PART I. Fill in your NAME (Last, First, MI) in the first box.
  2. Next, indicate your Section and Unit of Assignment (e.g., SQD PLT 414th MP CO).
  3. Enter your DMOS (Duty Military Occupational Specialty).
  4. Provide your RANK.
  5. Fill in your SSN (Social Security Number).
  6. Specify the Date(s) of Absence.
  7. Indicate the No. of UTA's Missed.
  8. In the REQUEST section, choose one of the options:
    • Rescheduled Training (RST) - Complete blocks 12 thru 20
    • Equivalent Training (ET) - Complete blocks 13 thru 20
    • Excused Absence (No Make-Up) - Complete blocks 18 thru 20
  9. Provide a Reason for Absence.
  10. Sign and date the form in the Signature of Applicant and Date fields.
  1. Move to PART II. Fill in the RST Window for this month.
  2. Enter the Date of Makeup.
  3. Specify the Location of Training.
  4. Indicate who will supervise the training.
  5. Fill in the Time of Training (FROM and TO).
  6. Describe the Duties to be performed.
  7. In the Recommend section, select either Approval or Disapproval.
  8. Sign and date the form in the Signature and Date fields.
  1. Finally, PART III is for the Commander. The Commander will check either Approved or Disapproved.
  2. If approved, the soldier will perform duty as required and submit DA Form 1380 with a copy of this approval to the Orderly Room.
  3. If disapproved, reasons will be listed on the reverse side, and the form will be returned through the section to the soldier listed in Part I.
  4. The Commander will then sign and date the form.

Obtain Answers on Rst Army

  1. What is the purpose of the RST Army form?

    The RST Army form is designed to formally request authorization for rescheduled training, equivalent training, or an excuse from regular scheduled unit training. It serves as a mechanism for soldiers to communicate their needs regarding training attendance and ensures that their requests are documented and processed appropriately.

  2. Who is required to complete the RST Army form?

    The form must be completed by the applicant, which typically includes the soldier requesting the rescheduling or excuse. Additionally, the First Line Leader (FLL) and the Platoon Sergeant (PSG) are also involved in the process, ensuring that all necessary information is accurately captured.

  3. What information is needed in Part I of the form?

    Part I requires several critical pieces of information. The applicant must provide their name, unit assignment, duty military occupational specialty (DMOS), rank, and Social Security Number (SSN). Furthermore, the dates of absence, the number of Unit Training Assemblies (UTAs) missed, and the reason for the absence must also be included. This section culminates with the applicant's signature and date, affirming the accuracy of the information provided.

  4. What are the options available for the type of request?

    In Part I, the applicant must select one of three options for their request: Rescheduled Training (RST), Equivalent Training (ET), or Excused Absence (No Make-Up). Each option requires different sections of the form to be completed, allowing for tailored responses based on the soldier's specific circumstances.

  5. What details are required in Part II of the form?

    Part II focuses on the specifics of the rescheduled or equivalent training. It requires the RST window for the month, the date and location of the makeup training, the supervisor overseeing the training, and the time frame for the training. Additionally, it asks for a description of the duties to be performed during this training. The section concludes with a recommendation for approval or disapproval, along with the signature and date of the person completing this part.

  6. How does the approval process work in Part III?

    Part III is designated for the commander’s review and decision. The commander can either approve or disapprove the request. If approved, the soldier is instructed to perform the required duties and submit a DA Form 1380 along with the approval documentation. In the event of disapproval, the commander must provide reasons for the decision, which will be noted on the reverse side of the form before returning it to the soldier.

  7. What happens if the form is disapproved?

    If the request is disapproved, the reasons for this decision will be documented on the reverse side of the form. The completed form will then be returned through the soldier's section, ensuring that the applicant is aware of the outcome and the rationale behind it. This transparency is crucial for maintaining clear communication within the unit.

  8. Is there a specific format for submitting the RST Army form?

    The RST Army form should be filled out clearly and legibly, with all required fields completed. It is important that the form is submitted in a timely manner, following any unit-specific protocols for documentation. Submissions typically occur through the chain of command, ensuring that all relevant parties are informed and involved in the process.

  9. Are there any obsolete versions of the RST Army form?

    Yes, previous editions of the RST Army form are considered obsolete. Users must ensure that they are utilizing the most current version, which is the 89TH RRC FORM 62-3R, dated 1 FEB 92. Using outdated forms could lead to processing delays or complications in the approval of requests.

Common mistakes

Filling out the Request for Authorization for Rescheduled Training (RST) form can be straightforward, but many individuals still make common mistakes that can lead to delays or rejections. One frequent error is failing to provide complete information in the NAME section. It’s essential to include the last name, first name, and middle initial. Omitting any part of this information can cause confusion and may result in the application being returned for correction.

Another common mistake occurs in the Reason for Absence section. Applicants often provide vague explanations or fail to include sufficient details. A clear and specific reason is necessary to justify the request. This section should communicate the circumstances surrounding the absence effectively. Without clarity, commanders may not fully understand the situation, leading to potential disapproval.

Additionally, many individuals neglect to check the REQUEST section thoroughly. This form allows for different types of requests, such as Rescheduled Training, Equivalent Training, or Excused Absence. Failing to complete the appropriate blocks for the chosen request can result in processing delays. Each request type has specific requirements that must be met, so attention to detail is crucial.

Lastly, the signature and date sections are often overlooked. Some applicants forget to sign the form or fail to date it correctly. This oversight can cause significant delays in processing the request. A missing signature or an incorrect date can lead to the form being deemed incomplete, requiring the applicant to start the process over again.

Documents used along the form

The Request for Authorization for Rescheduled Training (RST) form is an essential document for military personnel seeking to adjust their training schedules due to various circumstances. Alongside the RST form, several other forms and documents play a crucial role in the training and attendance management process. Understanding these documents can help streamline procedures and ensure compliance with military regulations.

  • DA Form 1380: This form is used to document training and attendance for soldiers who have missed scheduled training. It captures details about the training performed, including dates and the type of training completed. Soldiers must submit this form alongside the RST form if they are seeking to make up for missed training.
  • AR 135-91: This Army Regulation outlines the policies for attendance and training requirements for Army Reserve members. It provides guidelines on how to request absences and the conditions under which training can be rescheduled or excused. Familiarity with this regulation is vital for understanding the broader context of the RST process.
  • AR 140-1: Similar to AR 135-91, this regulation governs training requirements for Army National Guard members. It details the obligations of soldiers regarding attendance and provides instructions on how to handle absences. This document serves as a reference point for the policies that the RST form adheres to.
  • Unit Training Schedule: This document outlines the training events scheduled for a specific unit over a given period. It includes dates, locations, and types of training planned. Soldiers should consult this schedule to identify training opportunities and understand the implications of their absences.

In summary, the RST form operates within a framework of various supporting documents that facilitate effective training management in the military. Each of these forms serves a distinct purpose, contributing to the overall structure that ensures soldiers meet their training obligations while accommodating individual circumstances.

Similar forms

The Request for Authorization for Rescheduled Training (RST) form shares similarities with several other military and administrative documents. Each of these documents serves specific purposes related to training, absence, or duty assignments. Below is a list of ten documents that are similar to the RST form:

  • DA Form 31: This is a Request and Authority for Leave. Like the RST form, it requires information about the soldier, including name, unit, and dates of absence.
  • DA Form 1380: This is used to record training or duty performed. It complements the RST form by documenting the makeup training that may result from an approved RST request.
  • DA Form 4187: This is a Personnel Action form. It can be used to request changes in duty status, similar to how the RST form requests rescheduling of training.
  • AR 135-91: This regulation outlines the policies for attendance at unit training. It provides the framework that the RST form operates within, ensuring compliance with military standards.
  • AR 140-1: This regulation details the training and service requirements for Reserve Component members. It relates closely to the RST form's purpose of managing training attendance.
  • DA Form 1059: This is a Service School Academic Evaluation Report. It documents training completion and performance, similar to how the RST form tracks rescheduled training.
  • DA Form 3349: This is a Physical Profile form. It may be submitted alongside the RST form if a soldier's absence is due to medical reasons, affecting training participation.
  • DA Form 2166-9: This is used for NCO Evaluation Reports. It can reflect a soldier's performance during training, which may be impacted by absences documented in the RST form.
  • DA Form 250: This is a Report of Completion of Training. It certifies that a soldier has completed required training, which can be relevant when considering rescheduled training requests.
  • DA Form 600-9: This is a Body Fat Content Worksheet. If a soldier's training is affected by fitness evaluations, this form may be used in conjunction with the RST form to address training requirements.

Dos and Don'ts

When filling out the RST Army form, attention to detail is crucial. Here are ten essential dos and don’ts to ensure your submission is accurate and complete.

  • Do print or type all entries clearly to avoid confusion.
  • Do include your full name as it appears in official records.
  • Do specify the exact dates of absence to ensure proper processing.
  • Do select the appropriate request type: RST, ET, or Excused Absence.
  • Do provide a valid reason for your absence; this is critical for approval.
  • Don't leave any fields blank; incomplete forms can lead to delays.
  • Don't use abbreviations or slang; clarity is key.
  • Don't forget to sign and date the form; your signature confirms your request.
  • Don't submit the form without reviewing it for errors.
  • Don't ignore the instructions for the commander’s section; it’s vital for final approval.

By following these guidelines, you can help ensure that your RST Army form is processed smoothly and efficiently.

Misconceptions

Misconceptions about the Request for Authorization for Rescheduled Training (RST) form can lead to confusion among service members. Here are ten common misconceptions explained:

  1. The RST form is only for missed training. Many believe this form is solely for those who miss training. In reality, it can also be used to request equivalent training or to excuse absences without makeup.
  2. Only the applicant can fill out the form. While the applicant completes the initial sections, the form requires input from the First Line Leader (FLL) and Platoon Sergeant (PSG) for a comprehensive review.
  3. All requests for rescheduled training are automatically approved. This is incorrect. Approval is contingent on the commander's review and discretion, based on the reasons provided.
  4. The form can be submitted at any time. There are specific timelines for submitting the RST form, typically outlined in the unit’s training schedule. Late submissions may not be considered.
  5. Missing training does not require a valid reason. A valid reason for absence must be provided on the form. Simply stating “personal reasons” may not suffice.
  6. Training can be rescheduled without supervision. All rescheduled training must be supervised by an authorized individual, as indicated on the form.
  7. Once submitted, the form cannot be changed. Changes can be made, but they must be documented and approved by the appropriate authorities.
  8. Excused absences do not require follow-up. Even if an absence is excused, the service member is responsible for following up with their unit regarding any missed training.
  9. The form is the same for all branches of the military. Different branches may have variations of the form and specific regulations governing its use. It is essential to refer to branch-specific guidelines.
  10. Submitting the form guarantees makeup training. While the form allows for requests, makeup training is not guaranteed and depends on the commander's decision.

Key takeaways

When filling out the RST Army form, it’s important to follow specific guidelines to ensure accuracy and compliance. Here are key takeaways to consider:

  • Complete All Sections: Make sure to fill in all required fields in Part I, including your name, unit, and reason for absence.
  • Be Clear and Concise: Use clear language to describe your reason for absence. This helps in the approval process.
  • Signature Required: Don’t forget to sign the form. Your signature in Part I confirms the information provided is accurate.
  • Understand the Options: Familiarize yourself with the three types of requests: Rescheduled Training (RST), Equivalent Training (ET), and Excused Absence.
  • Provide Dates: Clearly indicate the dates of absence and any makeup training dates in the appropriate sections.
  • Commander’s Approval: Remember that the form must be approved by your commander, who will indicate approval or disapproval in Part III.
  • Follow Up: After submission, follow up to ensure your request is processed and that you receive any necessary feedback.
  • Keep Copies: Always retain a copy of the completed form for your records. This can be helpful for future reference.

By adhering to these takeaways, you can streamline the process of filling out and using the RST Army form effectively.