Homepage Blank Responsible Managing Employee Hawaii Form
Outline

The Responsible Managing Employee (RME) form in Hawaii is a crucial document for individuals seeking to obtain a contractor's license. This form outlines the specific requirements that must be met to qualify as a Responsible Managing Employee, including age, reputation, and experience. Applicants must be at least 18 years old, possess a good reputation for honesty and integrity, and have a minimum of four years of supervisory experience within the last decade. Additionally, they are required to pass an examination relevant to their classification and must be employed by a licensed contracting entity. The process begins with the submission of an application, along with a fee and supporting documents, which must be received by the Board by the 20th of the month prior to their scheduled meeting. The Board reviews applications monthly, notifying applicants of their status—approval, disapproval, or deferral. If approved, the applicant registers with a testing agency to take the necessary exam. Upon passing, the applicant submits further requirements before the Board issues the license. It is also essential for applicants to provide their social security number, as mandated by federal and state laws, to verify their identity and ensure compliance. Failure to meet any of these requirements can result in delays or denial of the license. Understanding these aspects is vital for anyone looking to navigate the licensing process in Hawaii successfully.

Sample - Responsible Managing Employee Hawaii Form

Form Information

Fact Name Details
Age Requirement The applicant must be at least 18 years old to qualify for the Responsible Managing Employee (RME) license.
Reputation Standards Applicants should demonstrate a good reputation for honesty, truthfulness, financial integrity, and fair dealing.
Experience Requirement A minimum of 4 years of supervisory experience within the last 10 years is necessary for eligibility.
Examination Applicants must pass an examination relevant to the appropriate classification for their license.
Employment Condition The applicant must be employed by a licensed contracting entity to obtain the RME license.
Application Deadline All applications and required documents must be submitted to the board by the 20th of the month prior to the scheduled meeting.
Governing Laws The licensing process is governed by Hawaii Revised Statutes §576D-13(j) and §436B-10(4), among others.

Detailed Guide for Filling Out Responsible Managing Employee Hawaii

Filling out the Responsible Managing Employee (RME) form in Hawaii is a crucial step in the licensing process for contractors. It’s essential to ensure that all required information is accurately provided to avoid delays. After submitting your application, you can expect a review by the board, which will ultimately lead to your potential licensing.

  1. Access the Responsible Managing Employee form online.
  2. Complete all three pages of the application. Ensure that you provide all requested information to avoid processing delays.
  3. Include your social security number in the designated section. This is necessary for identity verification and compliance with federal and state laws.
  4. Attach the $50 non-refundable application fee. Make checks payable to Commerce and Consumer Affairs.
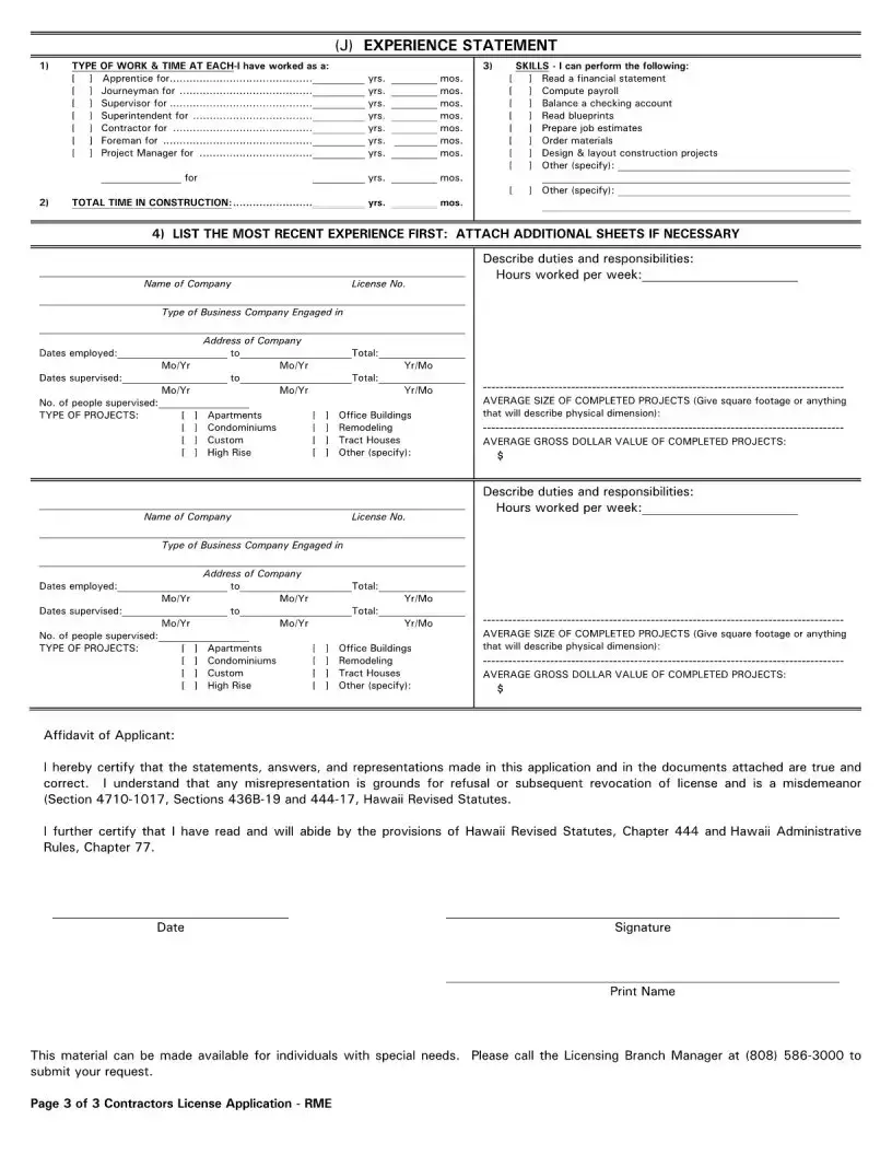
  5. Gather and submit at least three notarized experience certificates that support your supervisory experience. No two certificates should come from the same individual.
  6. If applicable, provide a current credit report from a recognized credit reporting agency, dated within the last six months.
  7. If you are applying for a licensed entity, include a letter confirming your employment as the RME.
  8. For unlicensed entities, submit a separate application designating you as the RME.
  9. Double-check your application to ensure all sections are completed accurately.
  10. Mail the completed application, fee, and all required documents to the Contractors License Board at the designated address.

Obtain Answers on Responsible Managing Employee Hawaii

  1. What are the requirements to become a Responsible Managing Employee (RME) in Hawaii?

    To qualify as an RME, you must meet several criteria:

    • Be at least 18 years old.
    • Have a good reputation for honesty, truthfulness, financial integrity, and fair dealing.
    • Have four years of supervisory experience within the last ten years.
    • Pass an examination in the appropriate classification.
    • Be employed by a licensed contracting entity.
  2. What is the application process for obtaining an RME license?

    The application process involves several steps:

    1. Submit your application, fee, and required documents by the 20th of the month.
    2. The Board reviews applications the following month.
    3. You will be notified of the Board's decision regarding your application.
    4. If approved, register with a testing agency and pay exam fees.
    5. Take the exam the next month.
    6. Upon passing, submit the necessary requirements to receive your license.
    7. The Board will issue your license once all requirements are met.
    8. Maintain your license as required.
  3. What documents are required when submitting the application?

    Your application must include:

    • The completed application form.
    • A $50 non-refundable application fee.
    • Experience certificates (at least three, notarized).
    • A current credit report from a recognized agency.
    • Entity appointment letter if applicable.

    Note that fax copies will not be accepted.

  4. What happens if my application is denied?

    If your application is denied, you may request a hearing. This request must be made in writing and directed to the agency that denied your application. You have 60 days from the notification of denial to submit this request.

  5. Why is my Social Security number required for the application?

    Your Social Security number is needed to verify your identity for licensing purposes. It is mandated by federal and state laws to ensure compliance with licensing regulations.

  6. Are there special requirements for RMEs applying to work with asbestos?

    Yes, RMEs intending to work with asbestos must submit proof of successful completion of a four-day Environmental Protection Agency (EPA) or board-approved asbestos training course taken within the last two years. This can substitute for the experience requirement.

Common mistakes

Filling out the Responsible Managing Employee (RME) form in Hawaii is a critical step for those looking to obtain a contractor's license. However, many applicants make common mistakes that can delay or even derail the process. Understanding these pitfalls can save time and ensure a smoother application experience.

One frequent error is failing to provide a complete social security number. This number is essential for verifying identity and compliance with federal and state laws. If an applicant neglects to include it, their application will be deemed deficient and will not move forward. It’s important to double-check that this information is included before submission.

Another common mistake involves the lack of required experience certificates. Applicants must submit at least three notarized certificates that demonstrate their supervisory experience. Often, individuals forget this step or mistakenly submit certificates from the same person, which is not allowed. Each certificate should come from a different source to meet the requirements.

Some applicants overlook the application fee, which is a non-refundable $50. This fee must accompany the application, and failure to include it can lead to immediate disqualification. It's wise to confirm that the check is made out to the correct entity—Commerce and Consumer Affairs—to avoid any issues.

Additionally, many people do not pay attention to the filing deadline. Applications, along with all supporting documents, must be received by the board by the 20th of the month prior to the scheduled meeting. Missing this deadline can result in having to wait an additional month to be considered.

Another mistake is not providing a current credit report. The report must cover at least the previous five years and should be issued within the last six months. Many applicants either forget this requirement or submit outdated reports, which can stall the application process.

Some individuals also fail to understand the employment requirement. An RME must be employed by a licensed contracting entity. If the entity is not already licensed, a separate application must be submitted, and fees paid. Not clarifying this aspect can lead to confusion and delays.

Moreover, applicants sometimes misinterpret the experience requirements. The form specifies a minimum of four years of full-time supervisory experience within the last ten years. Misunderstanding this timeframe can lead to submitting an application that does not meet the necessary criteria.

Lastly, many applicants neglect to read through all the instructions carefully. Each detail matters, from notarization of documents to ensuring that all forms are filled out completely. Taking the time to review the entire application process can prevent many of these common mistakes.

By being aware of these frequent errors, applicants can take proactive steps to ensure their RME application is complete and compliant. This attention to detail can significantly enhance the likelihood of a successful application outcome.

Documents used along the form

When applying for the Responsible Managing Employee (RME) license in Hawaii, several other forms and documents are often needed. These documents help ensure that applicants meet all necessary requirements for licensure. Below is a list of commonly used forms and documents that accompany the RME application.

  • Application Fee Payment: A non-refundable fee of $50 must be submitted with the application. This payment is essential for processing the application and must be honored by the bank to validate the license.
  • Experience Certificates: Applicants must provide at least three notarized certificates demonstrating supervisory experience. These certificates must come from different individuals and cover a minimum of four years within the last ten years.
  • Credit Report: A current credit report, issued within the last six months, is required. This report should cover at least the previous five years and is used to assess the applicant's financial integrity.
  • Entity Appointment Letter: If the applicant is not currently licensed, a letter confirming the appointment of the RME by the contracting entity must be submitted. This document is crucial for verifying employment.
  • Social Security Number Disclosure: Applicants must provide their social security number on the application. This information is necessary for identity verification and compliance with federal and state laws.

Gathering these documents is an important step in the licensing process. Ensure that everything is complete and accurate to avoid delays. Each document plays a vital role in demonstrating compliance with the requirements set by the Contractors License Board.

Similar forms

The Responsible Managing Employee (RME) form in Hawaii shares similarities with several other important documents in the licensing process. Here’s a breakdown of those documents:

  • Contractor License Application: This application is essential for contractors seeking to operate legally in Hawaii. It requires similar personal information and proof of experience, just like the RME form.
  • Experience Certificates: These certificates validate the supervisory experience of the applicant. They are required for both the RME and contractor license applications, ensuring that applicants meet the necessary experience standards.
  • Credit Report: A current credit report is required for both the RME and contractor license applications. This document helps assess the financial integrity of the applicant.
  • Entity Appointment Form: This form designates the RME for a contracting entity. It is similar to the RME form in that it confirms the employment relationship between the RME and the licensed entity.
  • Asbestos Contractor Application: For those applying to work with asbestos, this application has similar requirements but allows for training in place of experience. It reflects the same emphasis on safety and regulatory compliance as the RME form.
  • State Licensing Board Application: This general application is used for various professions in Hawaii. It shares the need for personal information, experience verification, and fee payment, paralleling the RME form's requirements.
  • Professional License Renewal Application: Similar to the RME, this application must be filed periodically to maintain a license. It requires updated information and proof of continuing education or experience.
  • Business License Application: This document is necessary for any business operating in Hawaii. Like the RME form, it requires details about the business structure and the individuals involved.
  • Occupational License Application: This application is specific to certain professions and shares the requirement of demonstrating qualifications and experience, akin to the RME form.

Understanding these documents can help streamline the licensing process and ensure compliance with Hawaii's regulations.

Dos and Don'ts

When filling out the Responsible Managing Employee (RME) form in Hawaii, there are several important guidelines to follow. Adhering to these can help ensure a smooth application process.

  • Provide accurate information: Ensure all details on the application are correct and complete.
  • Meet age requirements: Confirm that you are at least 18 years old.
  • Submit supporting documents: Include all required certificates and reports, such as experience certificates and a current credit report.
  • Pay the application fee: Attach the non-refundable fee of $50 with your application.
  • Do not submit incomplete applications: Failing to provide all requested information can delay processing.
  • Do not use fax: Fax copies of documents will not be accepted.
  • Avoid procrastination: Submit your application and supporting documents before the 20th of the month prior to the board meeting.
  • Do not forget your social security number: This is essential for your application to be processed.

Following these dos and don'ts can significantly enhance your chances of a successful application. Take the time to review your submission thoroughly before sending it off. This diligence can save you time and stress in the long run.

Misconceptions

Understanding the requirements for the Responsible Managing Employee (RME) form in Hawaii can be tricky. Here are seven common misconceptions that people have about this important document:

  • Anyone can apply for an RME license. Many believe that anyone can fill out the application. However, only individuals who meet specific criteria, such as being at least 18 years old and having supervisory experience, are eligible.
  • Experience can be from any job. Some think that any work experience counts. In reality, applicants must provide proof of supervisory experience specifically related to the construction industry.
  • Submitting a faxed application is acceptable. Many assume that faxing their application is sufficient. However, the board does not accept faxed copies; all documents must be submitted in their original form.
  • Once the application is submitted, the process is automatic. Some individuals expect an automatic approval. The truth is, the board reviews each application, and approval is not guaranteed.
  • Social security numbers are optional. A common misunderstanding is that providing a social security number is optional. In fact, it is mandatory for processing the application and verifying identity.
  • All fees are paid upfront. Many believe that the initial application fee covers all costs. However, additional fees may apply after board approval and exam passage.
  • Experience certificates do not need to be notarized. Some applicants think notarization is unnecessary. However, all experience certificates must be notarized to be considered valid.

By clearing up these misconceptions, individuals can better navigate the process of obtaining their RME license in Hawaii. Understanding the requirements can help ensure a smoother application experience.

Key takeaways

Filling out the Responsible Managing Employee (RME) form for contractor licensing in Hawaii requires careful attention to detail. Here are key takeaways to consider:

  • Age Requirement: Applicants must be at least 18 years old.
  • Reputation: A good reputation for honesty, truthfulness, financial integrity, and fair dealing is essential.
  • Experience: Four years of supervisory experience within the past ten years is required.
  • Examination: Passing an examination in the appropriate classification is necessary for licensure.
  • Employment: The applicant must be employed by a licensed contracting entity to qualify for the RME license.
  • Application Deadline: All applications and supporting documents must be submitted by the 20th of the month prior to the board's meeting.
  • Social Security Number: Providing a social security number is mandatory for identity verification and compliance with federal and state laws.
  • Fees: A non-refundable application fee of $50 is required, and additional fees may apply after board approval and examination.

By keeping these points in mind, applicants can navigate the licensing process more effectively. It is important to ensure that all documents are complete and submitted on time to avoid delays.