Homepage Blank Npma33 Form
Outline

The NPMA-33 form plays a crucial role in the process of inspecting properties for wood-destroying insects, providing essential information to homeowners and potential buyers alike. This inspection report outlines the findings of a visual assessment conducted by a licensed pest control company, detailing the presence or absence of wood-destroying insects such as termites and carpenter ants. Key sections of the form include general information about the property and inspection company, findings from the inspection, recommendations for treatment if necessary, and a note on any obstructions that may have hindered a thorough examination. Importantly, the report clarifies that it is not a guarantee against future infestations or structural integrity issues, emphasizing that any visible evidence of pests may indicate hidden damage. Homeowners are encouraged to maintain their properties and be aware of conditions that could promote infestations. This comprehensive document serves as a vital tool in property transactions, helping to ensure informed decisions regarding pest management and structural safety.

Sample - Npma33 Form

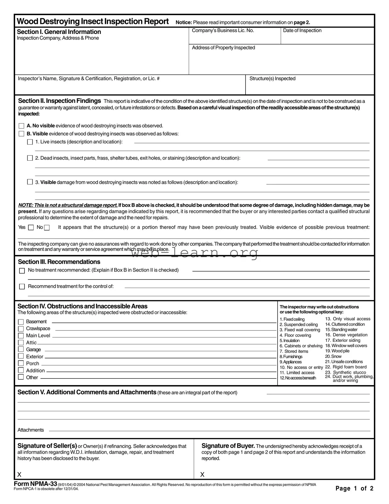
Wood Destroying Insect Inspection Report

Notice: Please read important consumer information on page 2.

Section I. General Information

 

Company’s Business Lic. No.

Date of Inspection

Inspection Company, Address & Phone

 

 

 

 

 

 

 

 

 

 

 

Address of Property Inspected

 

 

 

 

 

 

Inspector’s Name, Signature & Certification, Registration, or Lic. #

 

 

Structure(s) Inspected

 

 

 

 

 

Section II. Inspection Findings This report is indicative of the condition of the above identified structure(s) on the date of inspection and is not to be construed as a guarantee or warranty against latent, concealed, or future infestations or defects. Based on a careful visual inspection of the readily accessible areas of the structure(s) inspected:

A. No visible evidence of wood destroying insects was observed.

B. Visible evidence of wood destroying insects was observed as follows:

1. Live insects (description and location):

2. Dead insects, insect parts, frass, shelter tubes, exit holes, or staining (description and location):

3. Visible damage from wood destroying insects was noted as follows (description and location):

NOTE: This is not a structural damage report. If box B above is checked, it should be understood that some degree of damage, including hidden damage, may be present. If any questions arise regarding damage indicated by this report, it is recommended that the buyer or any interested parties contact a qualified structural professional to determine the extent of damage and the need for repairs.

Yes

 

No

 

It appears that the structure(s) or a portion thereof may have been previously treated. Visible evidence of possible previous treatment:

The inspecting company can give no assurances with regard to work done by other companies. The company that performed the treatment should be contacted for information on treatment and any warranty or service agreement which may be in place.

Section III. Recommendations

No treatment recommended: (Explain if Box B in Section II is checked)

Recommend treatment for the control of:

 

Section IV. Obstructions and Inaccessible Areas

 

 

 

The inspector may write out obstructions

 

The following areas of the structure(s) inspected were obstructed or inaccessible:

 

 

 

or use the following optional key:

 

 

 

Basement

 

 

 

 

 

1.Fixedceiling

13. Only visual access

 

 

 

 

 

 

 

 

 

 

 

 

 

2. Suspended ceiling

14. Cluttered condition

 

 

 

 

 

 

 

 

 

 

 

Crawlspace

 

 

 

 

 

 

 

 

 

 

 

 

 

 

 

3. Fixed wall covering

15. Standing water

 

 

 

 

 

 

 

 

 

 

 

 

 

 

 

 

 

 

 

 

 

Main Level

 

 

 

 

4. Floor covering

16. Dense vegetation

 

 

 

 

 

 

Attic

 

 

 

 

 

 

 

 

 

 

 

5.Insulation

17. Exterior siding

 

 

 

 

 

 

 

 

 

 

 

 

 

 

 

 

 

 

 

 

 

 

 

 

 

 

 

 

 

 

 

 

 

6. Cabinets or shelving

18. Window well covers

 

 

 

Garage

 

 

 

 

 

 

 

 

 

 

 

 

 

 

 

 

 

 

 

 

 

 

 

 

 

 

 

 

 

 

 

 

7. Stored items

19. Wood pile

 

 

 

 

 

 

 

 

 

 

 

 

 

Exterior

 

 

 

 

 

8.Furnishings

20.Snow

 

 

 

Porch

 

 

 

 

 

 

 

 

 

9.Appliances

21. Unsafe conditions

 

 

 

 

 

 

 

 

 

 

 

 

Addition

 

 

 

 

 

 

 

10. No access or entry 22. Rigid foam board

 

 

 

 

 

 

 

 

 

 

 

 

 

 

 

 

 

 

 

 

 

11. Limited access

23. Synthetic stucco

 

 

 

 

 

 

 

 

 

 

 

 

 

 

 

 

 

 

 

 

 

 

 

 

 

 

 

 

 

 

 

 

 

 

 

 

 

Other

 

 

 

 

12.Noaccessbeneath

24. Duct work, plumbing,

 

 

 

 

 

 

 

 

 

and/or wiring

 

 

 

 

 

 

 

 

 

 

 

 

 

 

 

 

 

Section V. Additional Comments and Attachments (these are an integral part of the report)

 

 

 

 

 

 

 

 

 

 

 

 

 

 

 

 

 

 

 

 

 

 

 

 

 

 

 

 

 

 

 

 

 

 

 

 

 

 

 

 

 

 

 

 

 

 

 

 

 

 

 

 

 

 

 

 

 

Attachments

 

 

 

 

 

 

 

 

 

 

 

 

 

 

 

 

 

 

 

 

 

 

 

 

Signature of Seller(s) or Owner(s) if refinancing. Seller acknowledges that

Signature of Buyer. The undersigned hereby acknowledges receipt of a

 

all information regarding W.D.I. infestation, damage, repair, and treatment

copy of both page 1 and page 2 of this report and understands the information

 

history has been disclosed to the buyer.

reported.

 

 

 

X

X

 

 

 

Form NPMA-33(9/01/04) © 2004 National Pest Management Association. All Rights Reserved. No reproduction of this form is permitted without the express permission of NPMA

Page 1 of 2

Form NPCA-1 is obsolete after 12/31/04.

Important Consumer Information Regarding

the Scope and Limitations of the Inspection

Please read this entire page as it is part of this report. This report is not a guarantee or warranty as to the absence of wood destroying insects nor is it a structural integrity report. The inspector’s training and experience do not qualify the inspector in damage evaluation or any other building construction technology and/or repair.

1.About the Inspection: A visual inspection was conducted in the readily accessible areas of the structure(s) indicated (see Page 1) including attics and crawlspaces which permitted entry during the inspection. The inspection included probing and/or sounding of unobstructed and accessible areas to determine the presence or absence of visual evidence of wood destroying insects. The WDI inspection firm is not responsible to repair any damage or treat any infestation at the structure(s) inspected, except as may be provided by separate contract. Also, wood destroying insect infestation and/or damage may exist in concealed or inaccessible areas. The inspection firm cannot guarantee that any wood destroying insect infestation and/or damage disclosed by this inspection represents all of the wood destroying insect infestation and/or damage which may exist as of the date of the inspection.Forpurposesofthisinspection,wooddestroyinginsectsinclude:termites,carpenterants,carpenterbees,and reinfestingwoodboringbeetles.Thisinspectiondoesnotincludemold,mildewornoninsectwooddestroyingorganisms. This report shall be considered invalid for purposes of securing a mortgage and/or settlement of property transfer if not used within ninety (90) days from the date of inspection. This shall not be construed as a 90-day warranty. There is no warranty, express or implied, related to this report unless disclosed as required by state regulations or a written warranty or service agreement is attached.

2.Treatment Recommendation Guidelines Regarding Subterranean Termites: FHA and VA require treatment when any active infestation of subterranean termites is found. If signs of subterranean termites — but no activity — are found in a structure that shows no evidence of having been treated for subterranean termites in the past, then a treatment should be recommended. A treatment may also be recommended for a previously treated structure showing evidence of subterranean termites — but no activity — if there is no documentation of a liquid treatment by a licensed pest control company within the previous five years unless the structure is presently under warranty or covered by a service agreement with a licensed pest control company.

3.Obstructions and Inaccessible Areas: No inspection was made in areas which required the breaking apart or into, dismantling,

removal of any object, including but not limited to: moldings, floor coverings, wall coverings, siding, fixed ceilings, insulation, furniture, appliances, and/or personal possessions; nor were areas inspected which were obstructed or inaccessible for physical access on the date of inspection. Your inspector may write out inaccessible areas or use the key in Section IV. Crawl spaces, attics, and/or other areas may be deemed inaccessible if the opening to the area is not large enough to provide physical access for the inspector or if a ladder was required for access. Crawl spaces (or portions thereof) may also be deemed inaccessible if there is less than 24 inches of clearance from the bottom of the floor joists to the surface below. If any area which has been reported as inaccessible is made accessible, the inspection company may be contacted for another inspection. An additional fee may apply.

4.Consumer Maintenance Advisory Regarding Integrated Pest Management for Prevention of Wood Destroying Insects. Any structure can be attacked by wood destroying insects. Homeowners should be aware of and try to eliminate conditions which promote insect infestation in and around their structure(s). Factors which may lead to wood destroying insect infestation include: earth to wood contact, foam insulation at foundation in contact with soil, faulty grade, improper drainage, firewood against structure(s), insufficient ventilation, moisture, wood debris in crawlspace, wood mulch or ground cover in contact with the structure, tree branches touching structure(s), landscape timbers and wood decay. Should these or other conditions exist, corrective measures should be taken in order to reduce the chances of infestation of wood destroying insects and the need for treatment.

5.Neither the inspecting company nor the inspector has had, presently has, or contemplates having any interest in the property inspected.

Form NPMA-33(9/01/04) © 2004 National Pest Management Association. All Rights Reserved. No reproduction of this form is permitted without the express permission of NPMA

Page 2 of 2

Form NPCA-1 is obsolete after 12/31/04.

 

Form Information

Fact Name Details
Purpose The NPMA-33 form is used for documenting wood destroying insect inspections.
Inspection Type This is a visual inspection of readily accessible areas of the property.
Limitations The report does not guarantee the absence of wood destroying insects or structural integrity.
Consumer Advisory Homeowners are advised to maintain conditions to prevent infestations.
State Regulations The form may be governed by state-specific pest control regulations.
Obstructions Areas requiring dismantling or removal of objects are not inspected.
Validity The report is valid for 90 days from the inspection date for mortgage purposes.
Recommendations Recommendations for treatment are based on findings during the inspection.

Detailed Guide for Filling Out Npma33

To complete the NPMA-33 form, gather all necessary information and follow the steps outlined below. This form is essential for documenting the inspection of wood-destroying insects in a property. Ensure that all sections are filled out accurately to provide a comprehensive report.

  1. Enter the company’s business license number in the designated field.
  2. Fill in the date of the inspection.
  3. Provide the inspection company’s name, address, and phone number.
  4. Specify the address of the property that was inspected.
  5. Write the inspector’s name, signature, and their certification, registration, or license number.
  6. Indicate the structure(s) that were inspected.

Next, document the inspection findings. This includes noting any visible evidence of wood-destroying insects and any damage observed during the inspection.

  1. Check the appropriate box to indicate whether there was visible evidence of wood-destroying insects.
  2. If applicable, describe live insects, dead insects, insect parts, frass, shelter tubes, exit holes, or staining in the space provided.
  3. Document any visible damage from wood-destroying insects, including descriptions and locations.
  4. Note whether it appears that the structure may have been previously treated and provide evidence if available.

Proceed to the recommendations section. This part outlines any suggested treatments based on the findings.

  1. State if no treatment is recommended, explaining if necessary.
  2. If treatment is recommended, specify what type of treatment is suggested.

Next, identify any obstructions or inaccessible areas that may have affected the inspection.

  1. List any areas of the structure that were obstructed or inaccessible during the inspection.

Finally, provide any additional comments or attachments that are integral to the report.

  1. Include any relevant attachments that support the inspection report.
  2. Obtain signatures from the seller(s) or owner(s) if refinancing, as well as the buyer’s signature acknowledging receipt of the report.

Obtain Answers on Npma33

  1. What is the NPMA-33 form?

    The NPMA-33 form is a Wood Destroying Insect Inspection Report. It documents the findings of a visual inspection conducted on a property to identify any evidence of wood destroying insects, such as termites or carpenter ants. This report is essential for home buyers and sellers, as it provides information about the condition of the property regarding pest infestations.

  2. What does the inspection cover?

    The inspection focuses on readily accessible areas of the structure, including attics and crawlspaces. Inspectors look for visible signs of wood destroying insects, including live insects, dead insects, frass, and any damage caused by these pests. However, it’s important to note that the inspection does not guarantee the absence of pests or structural integrity.

  3. What if evidence of wood destroying insects is found?

    If the inspection reveals visible evidence of wood destroying insects, the report will detail the findings, including descriptions and locations. The inspector will recommend treatment options based on the severity of the infestation. Buyers should consult with a qualified structural professional to assess any potential damage and determine necessary repairs.

  4. Are there any limitations to the inspection?

    Yes, the inspection has limitations. It does not cover concealed areas or those that are obstructed, meaning some infestations or damage may go undetected. The inspector cannot guarantee that all wood destroying insect activity has been identified. Additionally, the report is only valid for 90 days from the date of inspection for purposes of securing a mortgage or property transfer.

  5. What should homeowners do to prevent infestations?

    Homeowners can take proactive steps to reduce the risk of wood destroying insect infestations. These include:

    • Maintaining proper drainage and grading around the foundation.
    • Ensuring that there is no earth-to-wood contact.
    • Removing wood debris, firewood, and mulch from direct contact with the structure.
    • Improving ventilation in crawlspaces and attics to reduce moisture.
    • Regularly inspecting the property for signs of pests.

    By addressing these factors, homeowners can help prevent infestations and the need for treatment.

Common mistakes

Filling out the NPMA-33 form can be a straightforward process, but many individuals make common mistakes that can lead to confusion or misinterpretation. One frequent error is failing to provide complete and accurate information in the General Information section. This section requires details such as the inspection company's license number, the date of inspection, and the inspector's name. Omitting any of this information can invalidate the report and complicate future transactions.

Another common mistake occurs in Section II: Inspection Findings. Some individuals mistakenly check the box indicating visible evidence of wood-destroying insects without providing detailed descriptions. This section is crucial because it informs potential buyers of the property's condition. Providing vague descriptions or failing to include specific locations of the findings can lead to misunderstandings about the extent of the infestation or damage.

Additionally, many people overlook the importance of the Obstructions and Inaccessible Areas section. When areas are obstructed or inaccessible, it is essential to note them clearly. If an inspector cannot access certain areas, they cannot provide a comprehensive assessment. Leaving this section blank or providing incomplete information can mislead future inspectors or buyers about the thoroughness of the inspection.

Finally, individuals often neglect to obtain the necessary signatures in the Additional Comments and Attachments section. The signatures of both the seller and buyer are vital for acknowledging receipt of the report and understanding its contents. Without these signatures, the validity of the report may be questioned, leading to potential disputes down the line.

Documents used along the form

The NPMA-33 form, which serves as a Wood Destroying Insect Inspection Report, is often accompanied by several other documents that provide additional context or requirements for property transactions. Understanding these forms can help buyers, sellers, and real estate professionals navigate the complexities of property inspections and pest management. Below is a list of documents commonly used in conjunction with the NPMA-33 form.

  • Purchase Agreement: This document outlines the terms and conditions of the sale between the buyer and seller. It typically includes contingencies related to inspections, which may reference the findings of the NPMA-33 form.
  • Disclosure Statement: Sellers often provide this statement to disclose any known issues with the property, including past infestations or treatments for wood-destroying insects. It ensures transparency and informs potential buyers of the property's history.
  • Inspection Report: A general home inspection report may accompany the NPMA-33 form. This report assesses the overall condition of the property, including structural integrity, which may relate to any damage identified by the NPMA-33.
  • Termite Treatment Agreement: If treatment is recommended based on the NPMA-33 findings, this document outlines the services to be performed by a pest control company. It includes details about the treatment plan and any warranties provided.
  • Warranty Document: This may be issued by a pest control company if treatment has been performed. It guarantees that the property will be protected from future infestations for a specified period.
  • Repair Estimates: If the NPMA-33 report indicates damage, repair estimates may be necessary. These documents provide cost assessments for any recommended repairs to address damage caused by wood-destroying insects.
  • Service Agreement: This document outlines the terms of ongoing pest control services, ensuring that the property remains protected against future infestations after treatment.
  • Local or State Regulations: Depending on the jurisdiction, there may be specific regulations regarding pest inspections and treatments. Familiarity with these regulations can inform both buyers and sellers of their rights and responsibilities.
  • Closing Statement: At the closing of a property transaction, this document summarizes all financial aspects of the sale, including any costs associated with inspections, treatments, or repairs related to wood-destroying insects.

In summary, the NPMA-33 form is a critical component of the property inspection process, particularly concerning wood-destroying insects. Accompanying documents provide essential information that can influence property transactions and ensure that all parties are informed about the condition of the property. Understanding these forms can facilitate a smoother transaction and help mitigate potential issues related to pest management.

Similar forms

  • Home Inspection Report: Similar to the NPMA-33, a home inspection report provides an overview of the condition of a property. It typically covers various structural components, but it does not guarantee the absence of issues, much like how the NPMA-33 addresses wood-destroying insects.

  • Pest Control Treatment Report: This document outlines the treatments performed for pest infestations. Like the NPMA-33, it may include findings from an inspection, but it focuses more on the treatment rather than the inspection itself.

  • Termite Letter: Often required in real estate transactions, this letter certifies whether a property has been inspected for termites. It shares the NPMA-33's purpose of informing buyers about pest conditions, although it may not provide detailed findings.

  • Radon Test Report: This report details radon levels in a property. It shares similarities with the NPMA-33 in that it informs potential buyers of environmental risks, but it focuses on air quality rather than pest infestations.

  • Lead-Based Paint Disclosure: Required for homes built before 1978, this document informs buyers about potential lead hazards. Like the NPMA-33, it aims to protect buyers by disclosing important information about the property.

  • Asbestos Inspection Report: This report identifies the presence of asbestos in a property. It parallels the NPMA-33 in its goal of revealing potential hazards, though it addresses a different type of risk.

  • Roof Inspection Report: This document assesses the condition of a roof. It is similar to the NPMA-33 in that it provides an evaluation of a specific aspect of the property, but it focuses solely on roofing issues.

  • Foundation Inspection Report: This report evaluates the structural integrity of a foundation. Like the NPMA-33, it highlights potential concerns that may require further investigation or repairs.

  • Electrical Inspection Report: This document assesses the electrical systems in a home. Similar to the NPMA-33, it identifies potential safety issues, ensuring that buyers are aware of the condition of the property.

  • Environmental Assessment Report: This report evaluates environmental risks associated with a property, such as contamination. It shares the NPMA-33's objective of informing buyers about potential hazards, albeit in a broader context.

Dos and Don'ts

When filling out the NPMA-33 form, it’s important to follow certain guidelines to ensure accuracy and clarity. Here’s a helpful list of dos and don’ts:

  • Do read the entire form carefully before starting to fill it out.
  • Do provide complete and accurate information in all sections, especially regarding the property inspected.
  • Do include the inspector’s name, signature, and any relevant certification numbers.
  • Do note any visible evidence of wood destroying insects clearly, using detailed descriptions.
  • Do ensure that all required signatures are obtained from both the seller and buyer.
  • Don't leave any sections blank unless they are not applicable.
  • Don't make assumptions about past treatments; always check for documentation.
  • Don't overlook the importance of noting inaccessible areas during the inspection.
  • Don't forget to explain any recommendations clearly, especially if treatment is suggested.
  • Don't use vague language; be specific in your observations and comments.

Misconceptions

The NPMA-33 form, also known as the Wood Destroying Insect Inspection Report, is often misunderstood. Here are ten common misconceptions about this form, along with clarifications.

  1. The NPMA-33 guarantees the absence of wood destroying insects.

    This form does not provide a guarantee or warranty regarding the absence of wood destroying insects. It is merely a report based on a visual inspection conducted on a specific date.

  2. The inspection covers all areas of the property.

    The inspection is limited to readily accessible areas. Obstructed or inaccessible areas are not examined, which means potential infestations may remain undetected.

  3. A clean report means no future infestations are possible.

Understanding these misconceptions can help property owners make informed decisions regarding pest inspections and treatments.

Key takeaways

When filling out and using the NPMA-33 form, it is essential to keep the following key takeaways in mind:

  • Understand the Purpose: The NPMA-33 form serves as a Wood Destroying Insect Inspection Report. It provides an overview of the inspection findings but does not guarantee the absence of wood-destroying insects or structural integrity.
  • Visual Inspection Limitations: The inspection is based on a visual assessment of readily accessible areas. Concealed or inaccessible areas may harbor infestations or damage that the inspector cannot detect.
  • Recommendations Matter: If visible evidence of wood-destroying insects is found, the report will recommend treatment options. Buyers should take these recommendations seriously and consult professionals for any required repairs.
  • Obstructions and Access: Certain areas may be marked as obstructed or inaccessible. Understanding these limitations helps set realistic expectations about the inspection's thoroughness.
  • Consumer Awareness: Homeowners should be proactive in maintaining their properties to prevent infestations. Factors like moisture, wood-to-soil contact, and improper drainage can increase the risk of wood-destroying insect problems.

By keeping these points in mind, individuals can better navigate the process of using the NPMA-33 form and make informed decisions regarding property inspections and pest management.