Homepage Blank Michigan Sworn Form
Outline

The Michigan Sworn form plays a crucial role in the construction industry by ensuring transparency and accountability among contractors, subcontractors, and property owners. This document serves as a sworn statement, where the contractor or subcontractor asserts their status regarding payments due to various laborers and suppliers involved in a project. Specifically, it details the project name and address, along with a comprehensive list of subcontractors and suppliers, including the amounts owed for services rendered. By providing this information, the contractor affirms that all financial obligations are accurately reported and that no additional claims exist beyond those listed. Notably, the form emphasizes the importance of protecting the property owner from potential construction liens, although it also includes a cautionary note about the limitations of its assurances. The legal ramifications of submitting false information are significant, underscoring the necessity for honesty in the completion of this form. Overall, the Michigan Sworn form is an essential tool for maintaining trust and clarity in construction transactions, safeguarding the interests of all parties involved.

Sample - Michigan Sworn Form

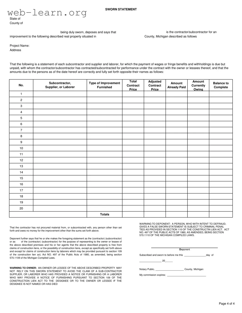
SWORN STATEMENT

 

State of

 

County of

 

being duly sworn, deposes and says that

is the contractor/subcontractor for an

improvement to the following described real property situated in

County, Michigan described as follows

Project Name:

 

Address

 

That the following is a statement of each subcontractor and supplier and laborer, for which the payment of wages or fringe benefits and withholdings is due but unpaid, with whom the contractor/subcontractor has contracted/subcontracted for performance under the contract with the owner or lessees thereof, and that the amounts due to the persons as of the date hereof are correctly and fully set forth opposite their names as follows:

 

Subcontractor,

Type of Improvement

Total

Adjusted

Amount

Amount

Balance to

No.

Contract

Contract

Currently

Supplier, or Laborer

Furnished

Already Paid

Complete

 

Price

Price

Owing

 

 

 

 

 

1

 

 

 

 

 

 

 

 

 

 

 

 

 

 

 

2

 

 

 

 

 

 

 

 

 

 

 

 

 

 

 

3

 

 

 

 

 

 

 

 

 

 

 

 

 

 

 

4

 

 

 

 

 

 

 

 

 

 

 

 

 

 

 

5

 

 

 

 

 

 

 

 

 

 

 

 

 

 

 

6

 

 

 

 

 

 

 

 

 

 

 

 

 

 

 

7

 

 

 

 

 

 

 

 

 

 

 

 

 

 

 

8

 

 

 

 

 

 

 

 

 

 

 

 

 

 

 

9

 

 

 

 

 

 

 

 

 

 

 

 

 

 

 

10

 

 

 

 

 

 

 

 

 

 

 

 

 

 

 

11

 

 

 

 

 

 

 

 

 

 

 

 

 

 

 

12

 

 

 

 

 

 

 

 

 

 

 

 

 

 

 

13

 

 

 

 

 

 

 

 

 

 

 

 

 

 

 

14

 

 

 

 

 

 

 

 

 

 

 

 

 

 

 

15

 

 

 

 

 

 

 

 

 

 

 

 

 

 

 

16

 

 

 

 

 

 

 

 

 

 

 

 

 

 

 

17

 

 

 

 

 

 

 

 

 

 

 

 

 

 

 

18

 

 

 

 

 

 

 

 

 

 

 

 

 

 

 

19

 

 

 

 

 

 

 

 

 

 

 

 

 

 

 

20

 

 

 

 

 

 

 

 

 

 

 

 

 

 

 

 

 

Totals

 

 

 

 

 

 

 

 

 

 

 

 

 

That the contractor has not procured material from, or subcontracted with, any person other than set forth and owes no money for the improvement other than the sums set forth above.

Deponent further says that he or she makes the foregoing statement as the (contractor) (subcontractor)

or as of the (contractor) (subcontractor) for the purpose of representing to the owner or lessee of the above described premises and his or her agents that the above described property is free from claims of construction liens, or the possibility of construction liens, except as specifically set forth above and except for claims of construction liens by laborers which may be provided pursuant to section 109 of the construction lien act, Act NO. 497 of the Public Acts of 1980, as amended, being section 570.1109 of the Michigan Compiled Laws.

WARNING TO OWNER: AN OWNER OR LESSEE OF THE ABOVE DESCRIBED PROPERTY MAY NOT RELY ON THIS SWORN STATEMENT TO AVOID THE CLAIM OF A SUB-CONTRACTOR SUPPLIER, OR LABORER WHO HAS PROVIDED A NOTICE OR FURNISHING OR A LABORER WHO MAY PROVIDE A NOTICE OF FURNISHING PURSUANT TO SECTION 109 OF THE CONSTRUCTION LIEN ACT TO THE DESIGNEE OR TO THE OWNER OR LESSEE IF THE DESIGNEE IS NOT NAMED OR HAS DIED

WARNING TO DEPONENT: A PERSON, WHO WITH INTENT TO DEFRAUD, GIVES A FALSE SWORN STATEMENT IS SUBJECT TO CRIMINAL PENAL TIES AS PROVIDED IN SECTION 110 OF THE CONSTRUCTIN LIEN ACT. ACT NO. 497 OF THE PUBLIC ACTS OF 1980, AS AMENDED, BEING SECTION 570.1110 OF THE MICHIGAN COMPILED LAWS.

 

 

 

Deponent

Subscribed and sworn to before me this

 

day of

 

20 _____

 

 

Notary Public,

 

County, Michigan

My commission expires:

 

 

 

Page 4 of 4

Form Information

Fact Name Description
Purpose The Michigan Sworn Statement is used by contractors and subcontractors to declare the status of payments owed to laborers, subcontractors, and suppliers for work performed on a property.
Governing Law This form is governed by the Construction Lien Act, Act No. 497 of the Public Acts of 1980, specifically Section 570.1109 and Section 570.1110 of the Michigan Compiled Laws.
Warnings The form includes warnings to both the owner and the deponent. Owners should not rely solely on this statement to avoid claims from subcontractors or laborers. Deponents must be aware that providing false information may lead to criminal penalties.
Content Requirements The statement must include details of each subcontractor, supplier, and laborer, along with the amounts due, total adjusted amounts, and balances owed, ensuring accuracy and completeness.

Detailed Guide for Filling Out Michigan Sworn

Filling out the Michigan Sworn form is an important step in ensuring that all parties involved in a construction project are aware of the financial obligations related to subcontractors, suppliers, and laborers. After completing the form, it will be submitted to the appropriate parties, often as part of a contract or payment process.

  1. Begin by entering the State and County at the top of the form where indicated.
  2. In the space provided, write your name as the contractor or subcontractor.
  3. Next, fill in the Project Name and the Address of the property where the improvement is taking place.
  4. List each subcontractor, supplier, or laborer in the designated columns. Include their names and the type of improvement they are associated with.
  5. For each listed party, provide the Total Contract Amount, Adjusted Amount, Amount Already Paid, and Balance Owing.
  6. Calculate the Totals for each column at the bottom of the list.
  7. Confirm that you have not procured materials or subcontracted with anyone else not listed on the form.
  8. Indicate your role by checking either contractor or subcontractor in the designated area.
  9. Read the warnings carefully to understand the implications of providing false information.
  10. Sign the form where it states Deponent.
  11. Have the form notarized by a notary public, ensuring to include the date and the notary's commission expiration date.

Obtain Answers on Michigan Sworn

  1. What is the Michigan Sworn form?

    The Michigan Sworn form is a legal document used in construction projects. It serves as a statement from contractors or subcontractors regarding payments owed to laborers and suppliers. The form aims to ensure that all parties involved in a construction project are aware of any outstanding payments, thereby helping to prevent claims of construction liens.

  2. Who needs to complete the Michigan Sworn form?

    Typically, the contractor or subcontractor responsible for the construction project must complete this form. It is essential for anyone who has contracted or subcontracted for work on a property in Michigan.

  3. What information is required on the form?

    The form requires details about the project, including:

    • Project name
    • Address of the property
    • Names of subcontractors, suppliers, and laborers
    • Type of improvement
    • Total contract amounts
    • Amounts already paid
    • Balances currently owing
  4. What are the implications of providing false information?

    Providing false information on the Michigan Sworn form can lead to serious consequences. If a person intentionally misrepresents facts, they may face criminal penalties under the Construction Lien Act. This serves as a strong deterrent against fraudulent activity.

  5. How does the form protect property owners?

    The Michigan Sworn form helps protect property owners by ensuring that they are informed about any outstanding claims from subcontractors, suppliers, or laborers. By requiring contractors to disclose this information, the form aims to prevent unexpected claims of construction liens against the property.

  6. Can the form be used to avoid all claims from subcontractors?

    No, the form cannot be used to avoid all claims. It specifically warns that property owners cannot rely solely on the sworn statement to avoid claims from subcontractors or laborers who have provided notice of furnishing. This means that additional protections may still be necessary.

  7. What is the role of the notary public in this process?

    A notary public must witness the signing of the Michigan Sworn form. Their role is to verify the identity of the person signing the document and to ensure that the statement is made under oath. This adds an extra layer of authenticity to the sworn statement.

  8. What should be done if there are discrepancies in payments?

    If discrepancies arise regarding payments owed, it is crucial to address them promptly. Parties should communicate directly to resolve any issues. If necessary, legal advice may be sought to ensure compliance with the Construction Lien Act and to protect rights under the law.

  9. How can one obtain a Michigan Sworn form?

    The Michigan Sworn form can typically be obtained from legal stationery stores, online legal resources, or through local government offices. It is important to ensure that the most current version of the form is used to comply with state regulations.

Common mistakes

When filling out the Michigan Sworn form, one common mistake is failing to provide accurate information about the contractor or subcontractor. It is essential to ensure that the names listed are correct and match the legal documents. Any discrepancies can lead to confusion and potential legal issues down the line. Double-checking this information can save time and prevent complications.

Another frequent error occurs in the section detailing subcontractors, suppliers, and laborers. People often forget to list all individuals or entities that have worked on the project. Omitting any names can create problems, especially if claims arise later. It is crucial to include everyone involved and to ensure that their respective amounts due are accurately recorded. This transparency helps maintain trust and clarity among all parties involved.

Additionally, many individuals overlook the importance of providing the correct amounts in the financial sections. Each total and adjusted amount must be precise. If figures are miscalculated or entered incorrectly, it can lead to disputes over payments. Taking the time to review these numbers thoroughly can prevent misunderstandings and ensure that all parties are on the same page.

Lastly, people often fail to understand the legal implications of the sworn statement. This document serves as a declaration of truth, and any false information can result in serious consequences. It is vital to read the warnings carefully and to comprehend the responsibilities that come with signing the form. Understanding these aspects will help ensure that the document is filled out correctly and responsibly.

Documents used along the form

The Michigan Sworn form is often used in conjunction with several other documents to ensure compliance and clarity in construction-related matters. Below is a list of forms that may accompany the Michigan Sworn form, each serving a specific purpose in the construction process.

  • Construction Lien Waiver: This document is used by contractors or subcontractors to waive their right to file a lien against a property for unpaid work. It helps protect property owners from potential claims.
  • Notice of Furnishing: This notice is provided by subcontractors or suppliers to inform property owners that they have supplied labor or materials for a project. It establishes a record of their involvement and potential claims.
  • Contractor's Affidavit: This affidavit confirms that the contractor has paid all subcontractors and suppliers for their work. It assures the owner that there are no outstanding debts related to the project.
  • Subcontract Agreement: This is a formal agreement between a contractor and a subcontractor outlining the scope of work, payment terms, and responsibilities. It is essential for clarifying roles in a project.
  • Change Order: A change order documents any modifications to the original construction contract. It may include changes in scope, pricing, or timelines and must be agreed upon by all parties involved.
  • Payment Application: This document is submitted by contractors to request payment for work completed. It details the work done, the amount due, and any previous payments received.
  • Project Schedule: A project schedule outlines the timeline for the completion of various phases of the construction project. It helps all parties stay on track and manage expectations.
  • Final Release of Lien: This document is issued at the end of a project to confirm that all payments have been made and that there are no outstanding liens against the property.
  • Certificate of Insurance: This certificate proves that the contractor has the necessary insurance coverage for the project. It protects both the contractor and the property owner from potential liabilities.

Using these documents together with the Michigan Sworn form can help ensure that all parties involved in a construction project are protected and informed. Each form plays a vital role in maintaining transparency and accountability throughout the process.

Similar forms

The Michigan Sworn form serves a specific purpose in construction and contracting, but there are several other documents that share similarities with it. Here’s a list of nine documents that are comparable, along with a brief explanation of how they relate to the Michigan Sworn form:

  • Affidavit of Payment: This document confirms that all payments to subcontractors and suppliers have been made. Like the Michigan Sworn form, it aims to assure the property owner that there are no outstanding claims against the property.
  • Notice of Intent to Lien: This document is filed by a contractor or subcontractor to inform the property owner of their intention to file a lien if payment is not received. Similar to the Michigan Sworn form, it addresses potential claims against the property.
  • Construction Lien Waiver: This document is used to waive the right to file a lien for work completed. It parallels the Michigan Sworn form by providing assurance that certain financial obligations have been settled.
  • Subcontractor Agreement: This contract outlines the terms between a contractor and a subcontractor. Both documents share the goal of clarifying financial responsibilities in a construction project.
  • Supplier Agreement: Similar to the subcontractor agreement, this document establishes the terms between a contractor and a supplier. It also addresses payment responsibilities, much like the Michigan Sworn form.
  • Certificate of Insurance: This document provides proof of insurance coverage for a construction project. While it serves a different purpose, it ensures that financial liabilities are covered, akin to the assurances provided in the Michigan Sworn form.
  • Final Payment Application: This document requests final payment for completed work. It is similar in that it summarizes financial transactions related to the project and confirms outstanding amounts.
  • Change Order: This document modifies the original contract terms, often affecting payment amounts. Like the Michigan Sworn form, it is essential for maintaining clear financial records throughout a project.
  • Project Completion Certificate: This document certifies that a project has been completed according to the contract terms. It aligns with the Michigan Sworn form by ensuring that all parties are aware of the project's financial status upon completion.

Dos and Don'ts

When filling out the Michigan Sworn form, it is essential to follow specific guidelines to ensure accuracy and compliance. Here are seven things you should and shouldn't do:

  • Do provide accurate information about the contractor or subcontractor.
  • Don't leave any required fields blank; all sections must be completed.
  • Do list all subcontractors, suppliers, and laborers involved in the project.
  • Don't include any individuals or entities not directly related to the project.
  • Do double-check the total amounts for accuracy before submission.
  • Don't submit the form without having it notarized; a notary's signature is required.
  • Do keep a copy of the completed form for your records.

Following these guidelines will help ensure that your submission is correct and complete, minimizing potential issues down the line.

Misconceptions

  • Misconception 1: The Michigan Sworn form guarantees payment to all subcontractors and suppliers.

    This form does not guarantee payment. Instead, it serves as a declaration by the contractor or subcontractor that they have disclosed all outstanding debts related to the project. Owners should still verify payment status independently.

  • Misconception 2: Submitting the Michigan Sworn form is optional for contractors.

    In many cases, submitting this form is a requirement. It is often necessary to protect the property owner from potential liens. Failing to provide it may expose the owner to claims from unpaid subcontractors or suppliers.

  • Misconception 3: The Michigan Sworn form protects the owner from all lien claims.

    While the form does provide some level of protection, it does not eliminate all risks. Owners should be cautious, as certain claims may still arise, particularly from laborers who have provided notice under specific provisions of the law.

  • Misconception 4: The form can be completed by anyone involved in the project.

    Only the contractor or subcontractor directly responsible for the work should complete the form. This ensures accuracy and accountability, as they are the ones who have the necessary information regarding payments and obligations.

Key takeaways

  • Purpose of the Form: The Michigan Sworn form serves to provide a verified statement from contractors or subcontractors regarding payments due to laborers, suppliers, and subcontractors involved in a construction project.
  • Accurate Information: It is essential to ensure that all information filled in the form, including names and amounts owed, is accurate and complete to avoid potential legal issues.
  • Signature Requirement: The form must be signed and sworn by the contractor or subcontractor, affirming the truthfulness of the information provided.
  • Notary Public: A notary public must witness the signing of the form, adding a layer of verification to the statements made.
  • Liens and Claims: The form indicates that the property is free from construction liens, except for those specifically mentioned, which helps protect the owner from unexpected claims.
  • Warnings: The form includes warnings about the implications of providing false information, which can lead to criminal penalties.
  • Owner's Reliance: Owners or lessees cannot solely rely on this sworn statement to avoid claims from subcontractors or suppliers who have properly notified them.
  • Record Keeping: Keeping a copy of the completed form is advisable for both contractors and property owners for future reference and to ensure compliance with legal obligations.