Homepage Blank Michigan Property Transfer Affidavit 2766 Form
Outline

The Michigan Property Transfer Affidavit 2766 form plays a crucial role in the real estate transaction process within the state of Michigan. This form is primarily used to report the transfer of property ownership to the local tax assessor, ensuring that the property records are updated accurately. It captures essential information, including the names of the buyer and seller, the property address, and the sale price. Furthermore, the affidavit includes details regarding the nature of the transfer, such as whether it is a sale, gift, or inheritance. By completing this form, parties involved in the transaction help to maintain transparency and compliance with state regulations. Additionally, the timely submission of the Property Transfer Affidavit can affect property tax assessments, making it an important document for both buyers and sellers. Understanding its components and requirements is vital for anyone navigating the complexities of property transactions in Michigan.

Sample - Michigan Property Transfer Affidavit 2766 Form

 

 

 

 

 

 

 

 

 

 

 

 

Reset Form

 

 

 

 

 

 

 

 

 

 

 

 

 

 

 

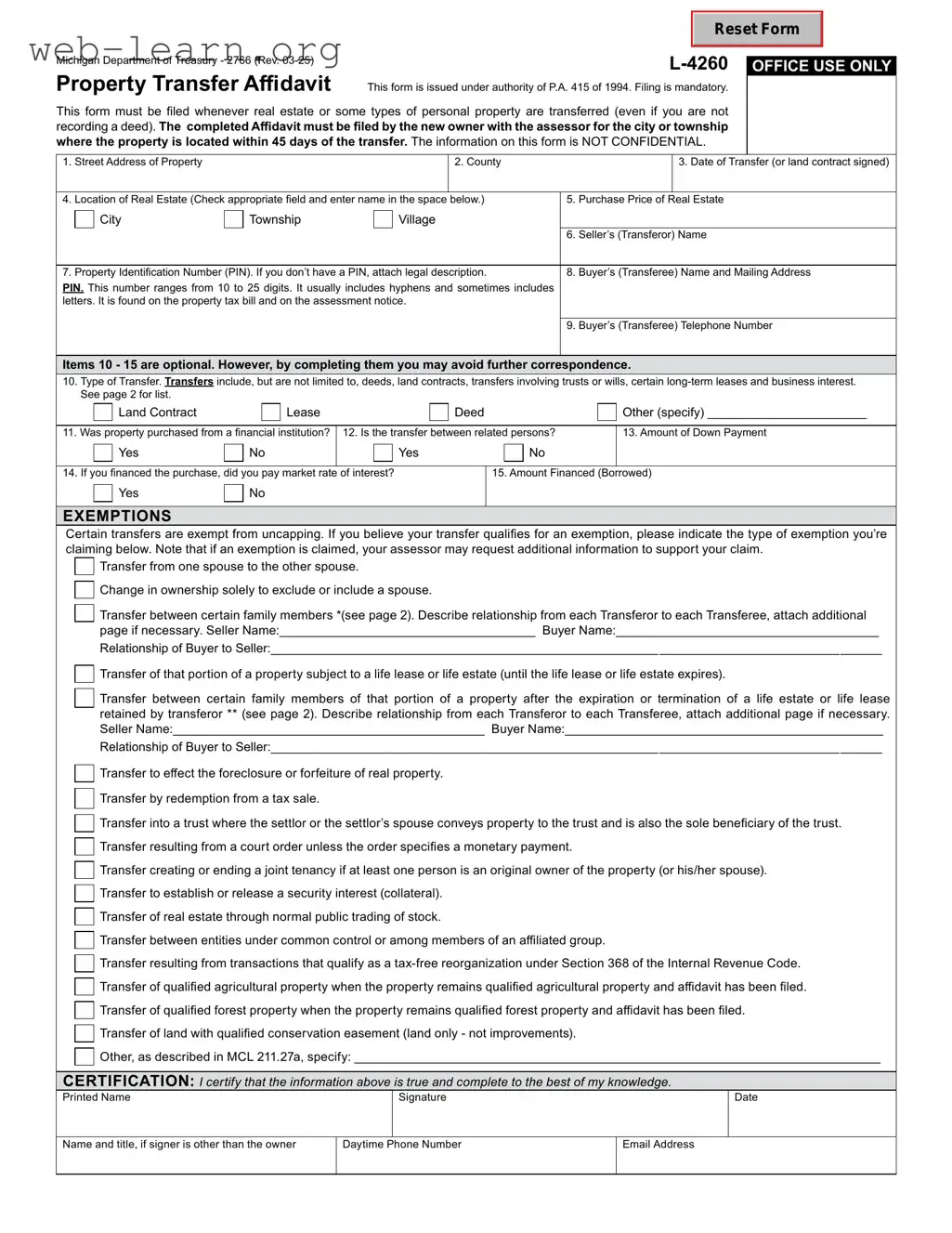
Michigan Department of Treasury - 2766 (Rev. 03-25)

 

 

 

 

 

L-4260

OFFICE USE ONLY

 

 

 

 

 

 

 

 

 

 

Property Transfer Affidavit

This form is issued under authority of P.A. 415 of 1994. Filing is mandatory.

 

 

 

 

This form must be filed whenever real estate or some types of personal property are transferred (even if you are not

 

 

recording a deed). The completed Affidavit must be filed by the new owner with the assessor for the city or township

 

 

where the property is located within 45 days of the transfer. The information on this form is NOT CONFIDENTIAL.

 

 

 

 

 

 

 

 

 

 

 

 

 

 

 

 

 

1. Street Address of Property

 

 

 

 

 

2. County

 

 

3. Date of Transfer (or land contract signed)

 

 

 

 

 

 

 

 

 

 

 

 

 

 

4. Location of Real Estate (Check appropriate field and enter name in the space

below.)

5.

Purchase Price of

Real Estate

 

 

 

 

City

 

Township

 

 

Village

 

 

 

 

 

 

 

 

 

 

 

 

 

 

 

 

 

 

 

 

 

 

 

 

 

 

6.

Seller’s (Transferor) Name

 

 

 

 

 

 

 

 

 

 

 

 

 

 

 

 

7. Property Identification Number (PIN). If you don’t have a PIN, attach legal description.

8.

Buyer’s (Transferee) Name and Mailing Address

PIN. This number ranges from 10 to 25 digits. It usually includes hyphens and sometimes includes

 

 

 

 

 

 

letters. It is found on the property tax bill and on the assessment notice.

 

 

 

 

 

 

 

 

 

 

 

 

 

 

 

 

 

 

 

 

 

 

 

 

 

 

 

 

 

 

9.

Buyer’s (Transferee) Telephone Number

 

 

 

 

 

 

 

 

 

 

 

 

 

 

 

Items 10 - 15 are optional. However, by completing them you may avoid further correspondence.

10.Type of Transfer. Transfers include, but are not limited to, deeds, land contracts, transfers involving trusts or wills, certain long-term leases and business interest.

See page 2 for list.

Land Contract

Lease

Deed

Other (specify) _______________________

11. Was property purchased from a financial institution?

12. Is the transfer between related persons?

13. Amount of Down Payment

 

 

Yes

 

No

 

 

Yes

 

 

No

 

 

 

 

 

 

 

 

 

 

 

 

 

14. If you financed the purchase, did you pay market rate

of interest?

15. Amount Financed (Borrowed)

 

 

Yes

 

No

 

 

 

 

 

 

 

 

 

 

 

 

 

 

 

 

 

EXEMPTIONS

Certain transfers are exempt from uncapping. If you believe your transfer qualifies for an exemption, please indicate the type of exemption you’re claiming below. Note that if an exemption is claimed, your assessor may request additional information to support your claim.

Transfer from one spouse to the other spouse.

Change in ownership solely to exclude or include a spouse.

Transfer between certain family members *(see page 2). Describe relationship from each Transferor to each Transferee, attach additional page if necessary. Seller Name:_____________________________________ Buyer Name:______________________________________

Relationship of Buyer to Seller:________________________________________________________________________________________

Transfer of that portion of a property subject to a life lease or life estate (until the life lease or life estate expires).

Transfer between certain family members of that portion of a property after the expiration or termination of a life estate or life lease retained by transferor ** (see page 2). Describe relationship from each Transferor to each Transferee, attach additional page if necessary. Seller Name:_____________________________________________ Buyer Name:______________________________________________

Relationship of Buyer to Seller:________________________________________________________________________________________

Transfer to effect the foreclosure or forfeiture of real property.

Transfer by redemption from a tax sale.

Transfer into a trust where the settlor or the settlor’s spouse conveys property to the trust and is also the sole beneficiary of the trust.

Transfer resulting from a court order unless the order specifies a monetary payment.

Transfer creating or ending a joint tenancy if at least one person is an original owner of the property (or his/her spouse).

Transfer to establish or release a security interest (collateral).

Transfer of real estate through normal public trading of stock.

Transfer between entities under common control or among members of an affiliated group.

Transfer resulting from transactions that qualify as a tax-free reorganization under Section 368 of the Internal Revenue Code.

Transfer of qualified agricultural property when the property remains qualified agricultural property and affidavit has been filed. Transfer of qualified forest property when the property remains qualified forest property and affidavit has been filed.

Transfer of land with qualified conservation easement (land only - not improvements).

Other, as described in MCL 211.27a, specify: ____________________________________________________________________________

CERTIFICATION: I certify that the information above is true and complete to the best of my knowledge.

Printed Name

Signature

Date

Name and title, if signer is other than the owner

Daytime Phone Number

Email Address

2766, Page 2

Instructions:

This form must be filed when there is a transfer of real property or one of the following types of personal property:

Buildings on leased land.

Leasehold improvements, as defined in MCL Section 211.8(h).

Leasehold estates, as defined in MCL Section 211.8(i) and (j).

Transfer of ownership means the conveyance of title to or a present interest in property, including the beneficial use of the property. For complete descriptions of qualifying transfers, please refer to MCL Section 211.27a(6)(a-j).

Excerpts from Michigan Compiled Laws (MCL), Chapter 211

**Section 211.27a(7)(d): Beginning December 31, 2014, a transfer of that portion of residential real property that had been subject to a life estate or life lease retained by the transferor resulting from expiration or termination of that life estate or life lease, if the transferee is the transferor’s or transferor’s spouse’s mother, father, brother, sister, son, daughter, adopted son, adopted daughter, grandson, or granddaughter and the residential real property is not used for any commercial purpose following the transfer. Upon request by the department of treasury or the assessor, the transferee shall furnish proof within 30 days that the transferee meets the requirements of this subdivision. If a transferee fails to comply with a request by the department of treasury or assessor under this subdivision, that transferee is subject to a fine of $200.00.

*Section 211.27a(7)(u): Beginning December 31, 2014, a transfer of residential real property if the transferee is the transferor’s or the transferor’s spouse’s mother, father, brother, sister, son, daughter, adopted son, adopted daughter, grandson, or granddaughter and the residential real property is not used for any commercial purpose following the conveyance. Upon request by the department of treasury or the assessor, the transferee shall furnish proof within 30 days that the transferee meets the requirements of this subparagraph. If a transferee fails to comply with a request by the department of treasury or assessor under this subparagraph, that transferee is subject to a fine of $200.00.

Section 211.27a(10): “... the buyer, grantee, or other transferee of the property shall notify the appropriate assessing office in the local unit of government in which the property is located of the transfer of ownership of the property within 45 days of the transfer of ownership, on a form prescribed by the state tax commission that states the parties to the transfer, the date of the transfer, the actual consideration for the transfer, and the property’s parcel identification number or legal description.”

Section 211.27(6): “Except as otherwise provided in subsection (7), the purchase price paid in a transfer of property is not the presumptive true cash value of the property transferred. In determining the true cash value of transferred property, an assessing officer shall assess that property using the same valuation method used to value all other property of that same classification in the assessing jurisdiction.”

Penalties:

Section 211.27b(1): “If the buyer, grantee, or other transferee in the immediately preceding transfer of ownership of property does not notify the appropriate assessing office as required by section 27a(10), the property’s taxable value shall be adjusted under section 27a(3) and, subject to subsection (9), all of the following must be levied:

(a)Any additional taxes that would have been levied if the transfer of ownership had been recorded as required under this act from the date of transfer.

(b)Interest and penalty from the date the tax would have been originally levied.

(c)For property classified under section 34c as either industrial real property or commercial real property, a penalty in the following amount:

(i)Except as otherwise provided in subparagraph (ii), if the sale price of the property transferred is $100,000,000.00 or less, $20.00 per day for each separate failure beginning after the 45 days have elapsed, up to a maximum of $1,000.00.

(ii)If the sale price of the property transferred is more than $100,000,000.00, $20,000.00 after the 45 days have elapsed.

(d)For real property other than real property classified under section 34c as industrial real property or commercial real property, a penalty of $5.00 per day for each separate failure beginning after the 45 days have elapsed, up to a maximum of one of the following, as applicable:

(i)For property owned and occupied as a principal residence, $200.00. As used in subparagraph, “principal residence” means that term as defined in section 7dd.

(ii)For all other property, $4000.00

Form Information

Fact Name Description
Purpose The Michigan Property Transfer Affidavit 2766 form is used to report the transfer of property ownership to local assessors.
Governing Law This form is governed by the Michigan Compiled Laws, specifically MCL 211.27a.
Filing Deadline The affidavit must be filed within 45 days of the property transfer to ensure accurate property tax assessments.
Who Files The seller or the buyer can file the affidavit, but it is often the responsibility of the seller.
Information Required The form requires details such as the property address, the names of the buyer and seller, and the sale price.

Detailed Guide for Filling Out Michigan Property Transfer Affidavit 2766

Filling out the Michigan Property Transfer Affidavit 2766 form is a straightforward process. This form is essential for property transactions in Michigan, ensuring that the transfer is recorded accurately. Follow these steps to complete the form correctly.

  1. Obtain a copy of the Michigan Property Transfer Affidavit 2766 form. You can find it online or at your local county clerk's office.
  2. Begin with the Property Information section. Enter the property address, including city, state, and zip code.
  3. Fill in the Parcel Number. This number can be found on your property tax statement or through your local assessor's office.
  4. In the Transferor Information section, provide the name(s) of the current owner(s) of the property.
  5. Next, complete the Transferee Information section. Include the name(s) of the new owner(s) and their contact information.
  6. Indicate the type of transfer. This could be a sale, gift, or other types of transfer. Be clear and specific.
  7. In the Consideration section, state the amount paid for the property or the value of the gift.
  8. Sign and date the form at the bottom. Ensure that all parties involved in the transfer have signed where required.
  9. Submit the completed form to the appropriate county office, typically the county clerk or register of deeds.

After completing these steps, the form will be processed by the local authorities. Keep a copy for your records, as it may be needed for future reference.

Obtain Answers on Michigan Property Transfer Affidavit 2766

  1. What is the Michigan Property Transfer Affidavit 2766 form?

    The Michigan Property Transfer Affidavit 2766 form is a document used to report the transfer of property ownership in the state of Michigan. It provides essential information about the property, including its location, the names of the buyer and seller, and the sale price. This form is crucial for ensuring that the local tax assessor has accurate data for property tax assessments.

  2. Who needs to file the Property Transfer Affidavit?

    Typically, the buyer or seller of the property is responsible for filing the Property Transfer Affidavit. It is required whenever there is a change in ownership, such as a sale, gift, or inheritance. The form must be submitted to the local tax assessor's office within 45 days of the transfer to ensure proper assessment of property taxes.

  3. What information is required on the form?

    The Property Transfer Affidavit requires several key pieces of information:

    • The property address and legal description.
    • The names and addresses of the buyer and seller.
    • The sale price or the value of the property being transferred.
    • The date of the transfer.
    • Any applicable exemptions or special circumstances related to the transfer.

    Providing accurate information is essential, as it affects property tax assessments and potential exemptions.

  4. What happens if the form is not filed?

    If the Property Transfer Affidavit is not filed within the required 45 days, the local tax assessor may not have the correct information to assess property taxes accurately. This can lead to complications, such as penalties or incorrect tax bills. In some cases, the property may not be eligible for certain tax exemptions, which could result in higher taxes than necessary.

  5. Where can I obtain the Property Transfer Affidavit form?

    The Michigan Property Transfer Affidavit 2766 form can typically be obtained from your local county assessor's office or downloaded from the Michigan Department of Treasury's website. Many counties also provide the form online, making it easy to access and complete. If you have any questions while filling it out, don’t hesitate to reach out to your local assessor for assistance.

Common mistakes

Filling out the Michigan Property Transfer Affidavit 2766 form can be a straightforward process, but many individuals make common mistakes that can lead to complications. One frequent error is failing to provide complete information about the property. This includes not including the correct property address or omitting details such as the parcel number. Accurate information is crucial for the transfer process to proceed smoothly.

Another common mistake is not signing the form. A signature is a necessary part of the affidavit, and without it, the document is considered incomplete. Some individuals may overlook this step, thinking that filling out the form is sufficient. Always double-check to ensure that all required signatures are present.

People often forget to date the affidavit. A date is essential as it indicates when the transfer took place. Without this information, there can be confusion regarding the timeline of ownership, which could lead to disputes or delays in processing the transfer.

Inaccurate valuation of the property is another issue. The affidavit requires the property’s value to be reported, and underestimating or overestimating can have financial implications. It is important to base the reported value on a recent appraisal or a fair market assessment to avoid potential penalties or issues with tax assessments.

Some individuals fail to understand the difference between a transfer and a sale. This misunderstanding can lead to incorrect information being provided on the form. Whether the property is being sold or transferred as a gift, the details should reflect the nature of the transaction accurately.

Additionally, not providing the necessary supporting documents can hinder the process. Certain transactions may require additional paperwork, such as a deed or proof of identity. Omitting these documents can delay the transfer and create additional headaches.

Lastly, individuals sometimes neglect to consult with a professional before submitting the affidavit. Seeking guidance can help clarify any uncertainties and ensure that the form is completed correctly. Taking the time to review the form with a legal consultant can prevent many of the mistakes mentioned above.

Documents used along the form

When transferring property in Michigan, several documents may accompany the Michigan Property Transfer Affidavit 2766 form to ensure a smooth transaction. Understanding these forms can help streamline the process and clarify your responsibilities as a property owner or buyer.

  • Warranty Deed: This document serves as a legal instrument that conveys ownership of real estate from one party to another. It guarantees that the seller holds clear title to the property and has the right to sell it.
  • Quit Claim Deed: A quit claim deed transfers whatever interest the seller has in a property without guaranteeing that the title is clear. It is often used between family members or in situations where the seller is not sure of their ownership rights.
  • Property Transfer Tax Form (Form 2766): This form is used to report the transfer of property and calculate any applicable taxes. It must be filed with the local taxing authority to ensure compliance with state tax laws.
  • Affidavit of Value: This document provides an official statement regarding the value of the property being transferred. It is often used to justify the sale price for tax assessment purposes.
  • Title Insurance Policy: A title insurance policy protects the buyer and lender from any issues related to the title of the property. It ensures that the property is free from liens or claims that could affect ownership.

Familiarizing yourself with these accompanying documents can enhance your understanding of the property transfer process in Michigan. Each form plays a vital role in ensuring that your property transaction is legally sound and that your rights are protected.

Similar forms

  • Real Property Transfer Tax Affidavit - This document is used to report the sale of property and calculate the transfer tax owed. Like the Michigan Property Transfer Affidavit, it ensures proper tax assessment during property transfers.
  • Quit Claim Deed - A quit claim deed transfers ownership without guaranteeing the title. Similar to the Property Transfer Affidavit, it formalizes the change in ownership but does not address tax implications.
  • Warranty Deed - This deed guarantees that the grantor has clear title to the property. It works alongside the Property Transfer Affidavit to provide a comprehensive record of ownership transfer.
  • Affidavit of Title - This document certifies the seller's ownership and the absence of liens. It is often used in conjunction with the Property Transfer Affidavit to confirm the seller's rights.
  • Title Insurance Policy - This policy protects against future claims on the property. While the Property Transfer Affidavit documents the transfer, title insurance offers security against title defects.
  • Property Deed - A property deed is a legal document that conveys real estate ownership. Similar to the Property Transfer Affidavit, it is essential for recording ownership changes.
  • Sales Contract - This agreement outlines the terms of a property sale. It serves as the foundation for the Property Transfer Affidavit by detailing the buyer and seller's obligations.
  • Closing Statement - This document summarizes the financial aspects of a real estate transaction. It complements the Property Transfer Affidavit by providing a detailed account of the sale's costs and proceeds.
  • Escrow Agreement - An escrow agreement involves a third party holding funds during the transaction. It ensures that all parties fulfill their obligations, similar to how the Property Transfer Affidavit formalizes the transfer process.
  • Certificate of Occupancy - This certificate verifies that a property meets building codes and is safe for occupancy. It is often needed after a transfer, ensuring that the property is suitable for its new owner.

Dos and Don'ts

When filling out the Michigan Property Transfer Affidavit 2766 form, it's crucial to approach the process with care. Here’s a list of things to do and avoid to ensure your submission is accurate and effective.

  • Do read the instructions carefully before starting. Understanding the requirements can save you time and prevent mistakes.
  • Do provide accurate information. Double-check names, addresses, and property details to avoid any discrepancies.
  • Do sign and date the affidavit. An unsigned form may be considered invalid.
  • Do keep a copy of the completed form for your records. This can be helpful for future reference or in case of any disputes.
  • Don't leave any required fields blank. Incomplete forms may be rejected or delayed.
  • Don't use abbreviations or shorthand. Clarity is key, so write out all information fully.
  • Don't submit the form without verifying all information is correct. Errors can lead to complications down the line.

Misconceptions

When dealing with the Michigan Property Transfer Affidavit 2766 form, several misconceptions can lead to confusion. Understanding the facts can help ensure a smoother process. Here are five common misconceptions:

  • Misconception 1: The form is only needed for sales transactions.
  • This is not true. The Property Transfer Affidavit is required for various types of property transfers, including gifts and inheritances, not just sales.

  • Misconception 2: Only the seller needs to complete the form.
  • Both the buyer and seller may have responsibilities regarding the form. It’s essential that all parties involved understand their obligations.

  • Misconception 3: The form does not affect property taxes.
  • In reality, the information provided in the affidavit can impact property tax assessments. Accurate reporting is crucial to ensure fair taxation.

  • Misconception 4: The form can be submitted at any time after the transfer.
  • There are deadlines for submitting the affidavit. It typically must be filed within 45 days of the transfer to avoid penalties.

  • Misconception 5: The form is the same for all counties in Michigan.
  • While the basic requirements are consistent, some counties may have additional local rules or variations. Always check with your local assessor’s office for specific instructions.

Key takeaways

Filling out and using the Michigan Property Transfer Affidavit 2766 form is an important step in the property transfer process. Here are some key takeaways to consider:

  • Purpose of the Form: The affidavit is used to report changes in property ownership and helps ensure accurate property tax assessments.
  • Timeliness: Submit the form within 45 days of the property transfer to avoid penalties or issues with property tax assessments.
  • Accurate Information: Provide complete and accurate details about the property and the transfer to prevent delays or complications.
  • Signature Requirement: The form must be signed by the seller or transferor, confirming the accuracy of the information provided.
  • Local Requirements: Check with your local assessor's office for any additional requirements or specific procedures related to the form.