Homepage Blank Michigan Dch 0654 Form
Outline

The Michigan DCH 0654 form serves as a crucial notification tool for any firm engaged in lead-based paint abatement activities within the state. It mandates that contractors inform the Michigan Department of Community Health (MDCH) of their planned lead abatement work at least three business days before starting. This requirement, outlined in the Michigan Lead Abatement Act of 1998, ensures that the state can monitor and regulate lead abatement efforts effectively. The form collects essential information, including the notification date, project start and end dates, contractor details, and the scope of work. Incomplete submissions will not be accepted, emphasizing the importance of thoroughness in the application process. Additionally, any changes to the project schedule must be communicated through a revision on the form, submitted at least 24 hours in advance. The form also captures details about the building type, occupancy status, and specific lead assessment methods being employed. By adhering to these guidelines, contractors not only comply with state regulations but also contribute to public health and safety by ensuring that lead hazards are managed properly.

Sample - Michigan Dch 0654 Form

MAIL OR FAX TO:
MDCH - Healthy Homes Section
P.O. Box 30195
Lansing, MI 48909
Attn: Compliance Officer
FAX: 517-335-8800

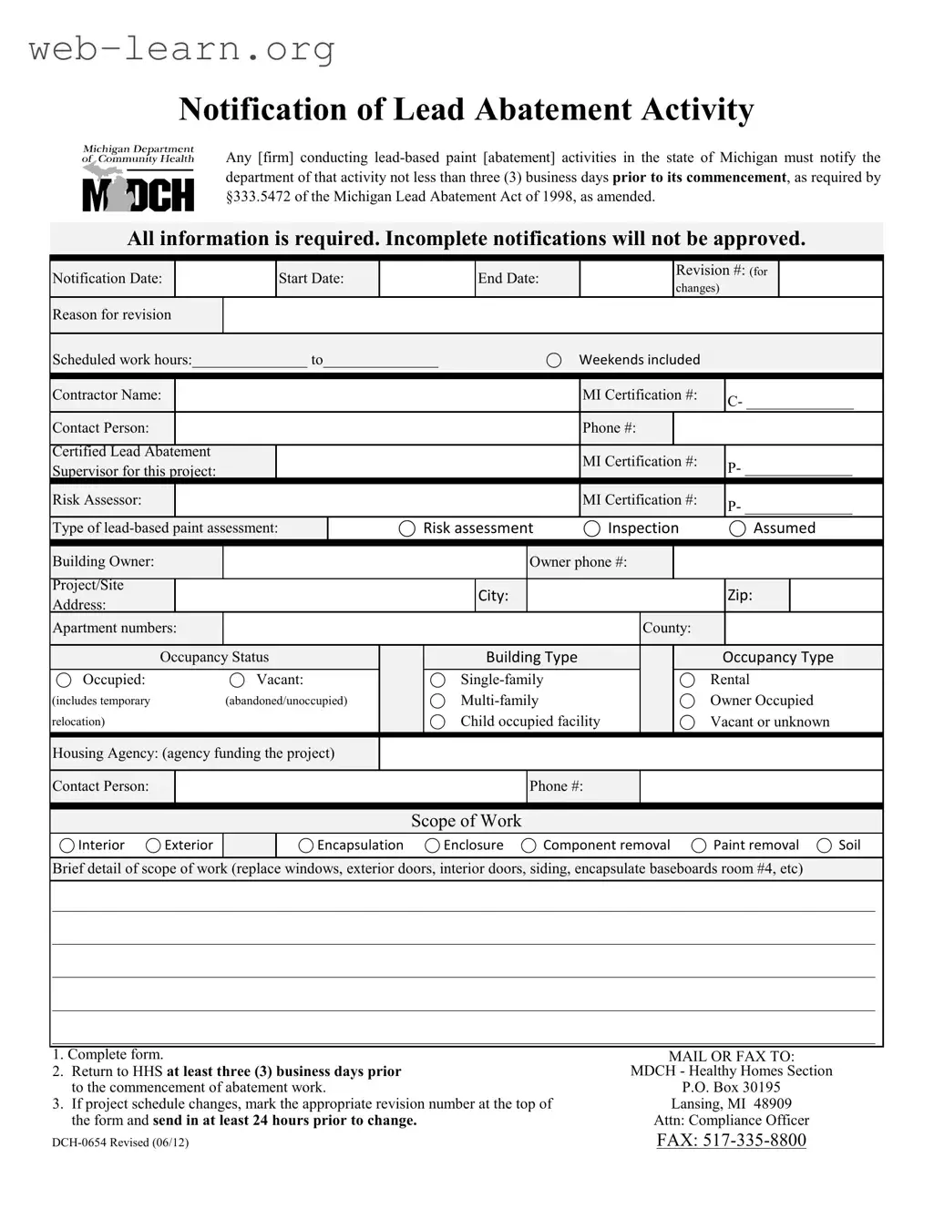
Notification of Lead Abatement Activity

Any [firm] conducting lead-based paint [abatement] activities in the state of Michigan must notify the department of that activity not less than three (3) business days prior to its commencement, as required by §333.5472 of the Michigan Lead Abatement Act of 1998, as amended.

All information is required. Incomplete notifications will not be approved.

 

 

 

 

 

 

 

 

 

 

 

 

 

 

 

 

 

Notification Date:

 

 

Start Date:

 

 

End Date:

 

 

 

Revision #: (for

 

 

 

 

 

 

 

 

 

changes)

 

 

 

 

 

 

 

 

 

 

 

 

 

 

 

 

 

 

Reason for revision

 

 

 

 

 

 

 

 

 

 

 

 

 

 

 

 

 

 

 

 

 

 

 

 

 

 

 

 

 

 

 

Scheduled work hours:_______________ to_______________

Weekends included

 

 

 

 

 

 

 

 

 

 

 

 

 

 

 

 

 

 

 

 

 

 

 

 

 

 

 

 

 

 

 

 

 

Contractor Name:

 

 

 

 

 

 

 

 

 

MI Certification #:

C- ______________

 

 

 

 

 

 

 

 

 

 

 

 

 

 

Contact Person:

 

 

 

 

 

 

 

 

 

Phone #:

 

 

 

 

 

 

 

 

 

 

 

 

 

 

 

 

 

 

 

 

 

 

Certified Lead Abatement

 

 

 

 

 

 

 

 

MI Certification #:

 

 

 

Supervisor for this project:

 

 

 

 

 

 

 

 

P- ______________

 

 

 

 

 

 

 

 

 

 

 

 

 

 

 

 

 

 

 

 

 

 

 

 

 

 

 

Risk Assessor:

 

 

 

 

 

 

 

 

 

MI Certification #:

P- ______________

 

 

 

 

 

 

 

 

 

 

 

 

 

 

Type of lead-based paint assessment:

 

Risk assessment

 

Inspection

 

Assumed

 

 

 

 

 

 

 

 

 

 

 

 

 

 

 

Building Owner:

 

 

 

 

 

 

Owner phone #:

 

 

 

 

 

 

 

 

 

 

 

 

 

 

 

 

 

 

 

 

 

 

Project/Site

 

 

 

 

 

 

City:

 

 

 

 

 

 

Zip:

 

Address:

 

 

 

 

 

 

 

 

 

 

 

 

 

 

 

 

 

 

 

 

 

 

 

 

 

 

 

 

 

Apartment numbers:

 

 

 

 

 

 

 

 

 

County:

 

 

 

 

 

 

 

 

 

 

 

 

 

 

 

 

 

 

 

Occupancy Status

 

 

Building Type

 

 

 

 

Occupancy Type

Occupied:

Vacant:

 

Single-family

 

 

 

 

Rental

(includes temporary

(abandoned/unoccupied)

 

Multi-family

 

 

 

 

Owner Occupied

relocation)

 

 

 

 

Child occupied facility

 

 

Vacant or unknown

 

 

 

 

 

 

 

 

 

 

 

 

 

 

 

 

 

Housing Agency: (agency funding the project)

Contact Person:

Phone #:

Scope of Work

Interior Exterior

Encapsulation Enclosure Component removal Paint removal Soil

Brief detail of scope of work (replace windows, exterior doors, interior doors, siding, encapsulate baseboards room #4, etc)

___________________________________________________________________________________________________________

___________________________________________________________________________________________________________

___________________________________________________________________________________________________________

___________________________________________________________________________________________________________

___________________________________________________________________________________________________________

1. Complete form.

2. Return to HHS at least three (3) business days prior to the commencement of abatement work.

3. If project schedule changes, mark the appropriate revision number at the top of the form and send in at least 24 hours prior to change.

DCH-0654 Revised (06/12)

Form Information

Fact Name Details
Form Purpose This form is used to notify the Michigan Department of Community Health about lead abatement activities.
Notification Requirement Firms must notify the department at least three business days before starting lead abatement work.
Governing Law The form is governed by §333.5472 of the Michigan Lead Abatement Act of 1998, as amended.
Incomplete Notifications Notifications that are incomplete will not be approved, which could delay the project.
Contact Information Notifications must include detailed contact information for the contractor and project supervisor.
Scope of Work Details about the scope of work must be provided, including specific activities like paint removal or encapsulation.
Submission Method The completed form can be mailed or faxed to the Healthy Homes Section in Lansing, Michigan.

Detailed Guide for Filling Out Michigan Dch 0654

To successfully notify the Michigan Department of Community Health about lead abatement activities, follow the outlined steps carefully. Ensure that all required information is filled out completely, as incomplete forms will not be approved. After submission, you will need to monitor any changes to your project schedule and provide updates as necessary.

  1. Obtain the Michigan DCH 0654 form.
  2. Fill in the Notification Date, Start Date, and End Date of the abatement activity.
  3. If applicable, indicate the Revision # for any changes.
  4. Provide the Scheduled work hours, including whether weekends are included.
  5. Enter the Contractor Name and their MI Certification #.
  6. Fill in the Contact Person and their Phone #.
  7. Provide the Certified Lead Abatement MI Certification # and the Supervisor for this project.
  8. List the Risk Assessor and their MI Certification #.
  9. Select the Type of lead-based paint assessment (Risk assessment, Inspection, or Assumed).
  10. Fill in the Building Owner and their Owner phone #.
  11. Provide the Project/Site City, Zip, Address, and Apt numbers.
  12. Indicate the County and Occupancy Status (Occupied, Vacant, etc.).
  13. Select the Building Type and Occupancy Type.
  14. Fill in the Housing Agency and the Contact Person with their Phone #.
  15. Specify the Scope of Work by selecting the relevant options (Interior, Exterior, etc.).
  16. Provide a brief detail of the scope of work in the designated space.
  17. Review the form for completeness and accuracy.
  18. Submit the completed form to the Healthy Homes Section at the address provided or via fax.
  19. Ensure submission occurs at least three (3) business days prior to the start of abatement work.
  20. If the project schedule changes, update the Revision # and submit the form at least 24 hours prior to the change.

Obtain Answers on Michigan Dch 0654

  1. What is the Michigan DCH 0654 form?

    The Michigan DCH 0654 form is a notification document required for any firm conducting lead-based paint abatement activities in Michigan. It informs the state’s Healthy Homes Section about the planned lead abatement work, ensuring compliance with the Michigan Lead Abatement Act.

  2. Who needs to fill out the DCH 0654 form?

    Any contractor or firm that plans to conduct lead abatement activities in Michigan must complete and submit this form. This includes activities such as inspections, risk assessments, and actual abatement work.

  3. When must the form be submitted?

    The form must be submitted at least three (3) business days before the start of any lead abatement activity. This allows the Healthy Homes Section to review the notification and ensure compliance with state regulations.

  4. What information is required on the form?

    The form requires various details, including:

    • Notification date
    • Start and end dates of the project
    • Contractor and supervisor names along with their certification numbers
    • Scope of work
    • Occupancy status and type of building

    Incomplete forms will not be approved, so it is crucial to provide all requested information.

  5. What if there are changes to the project schedule?

    If the project schedule changes, the contractor must indicate the revision number at the top of the form and submit it at least 24 hours before the change occurs. This keeps the Healthy Homes Section informed of any updates.

  6. How should the form be submitted?

    The completed form can be mailed or faxed to the Michigan Department of Community Health's Healthy Homes Section. The mailing address is:

    MDCH - Healthy Homes Section
    P.O. Box 30195
    Lansing, MI 48909
    Attn: Compliance Officer

    The fax number is 517-335-8800.

  7. What happens if the form is submitted late?

    If the form is submitted less than three business days before the start of the abatement work, the notification may not be approved. This could lead to delays in the project or potential penalties for non-compliance.

  8. Are there any penalties for not complying with the notification requirement?

    Yes, failing to notify the Healthy Homes Section as required can result in penalties. These may include fines or other enforcement actions, depending on the severity of the violation.

  9. Where can I find more information about lead abatement in Michigan?

    For more information, you can visit the Michigan Department of Community Health's website or contact the Healthy Homes Section directly. They can provide guidance and answer any additional questions you may have about lead abatement activities.

Common mistakes

Filling out the Michigan DCH 0654 form correctly is crucial for compliance with state regulations regarding lead abatement activities. One common mistake is failing to provide all required information. Each section of the form must be completed; otherwise, the notification will be deemed incomplete and will not be approved.

Another frequent error is not submitting the form at least three business days before the start of the abatement work. This deadline is essential for compliance. If the form is submitted late, it can lead to delays in the project and potential penalties.

People often overlook the revision number section. If there are changes to the project schedule, it is necessary to indicate the revision number at the top of the form. Failing to do so can result in confusion and miscommunication with the department.

Providing incorrect or outdated contact information is another common issue. Ensure that the contractor's name, phone number, and MI certification numbers are accurate. Incorrect information can hinder communication and delay the approval process.

Many individuals neglect to specify the type of lead-based paint assessment being conducted. Whether it is a risk assessment, inspection, or assumed, this information is critical for proper classification of the project.

Some people also forget to include details about the scope of work. Simply checking boxes is not sufficient. A brief description of the work being performed, such as "replace windows" or "encapsulate baseboards," must be included for clarity.

Another mistake is not indicating the occupancy status of the building. This includes whether the property is occupied, vacant, or a child-occupied facility. This information helps the department assess the potential risks involved.

Failing to mention the housing agency funding the project can also lead to complications. If applicable, include the agency's name and contact person to ensure proper processing of the notification.

Some individuals mistakenly think that weekends are automatically included in the scheduled work hours. It is important to explicitly check the box for weekends if they are part of the plan, as this affects the timeline of the project.

Lastly, not reviewing the form for accuracy before submission can lead to multiple issues. Double-checking all entries helps prevent errors that could delay the approval process or result in non-compliance with state regulations.

Documents used along the form

The Michigan DCH 0654 form is an essential document for notifying the state about lead abatement activities. Along with this form, several other documents are often required to ensure compliance with state regulations. Below is a list of additional forms and documents that may be necessary in conjunction with the DCH 0654.

  • Lead Abatement Work Plan: This document outlines the specific procedures and methods that will be used during the lead abatement process. It includes safety measures, timelines, and details about the work environment.
  • Lead-Safe Certification: Contractors must provide proof of lead-safe practices. This certification demonstrates that the contractor is trained in lead-safe work practices to protect occupants and workers during abatement activities.
  • Risk Assessment Report: A risk assessment report evaluates the presence of lead-based paint and potential hazards in the property. This document helps inform the scope of work needed for safe abatement.
  • Notification of Lead Hazard Reduction: This form notifies the local health department and relevant authorities about the lead hazard reduction activities planned or completed at the site. It ensures that local agencies are aware of ongoing efforts to mitigate lead risks.
  • Post-Abatement Clearance Report: After the abatement work is completed, this report verifies that the area has been tested for lead and meets safety standards. It is crucial for ensuring that the property is safe for re-occupancy.

In summary, these documents play a vital role in the lead abatement process in Michigan. They ensure that all necessary precautions are taken and that compliance with state regulations is maintained throughout the project. Properly completing and submitting these forms can significantly impact the safety and legality of the abatement activities.

Similar forms

The Michigan DCH 0654 form serves as a notification for lead abatement activities. It shares similarities with several other documents related to environmental health and safety. Here are four documents that are comparable to the DCH 0654 form:

  • Lead-Based Paint Notification Form: This form is also used to notify relevant authorities about lead-based paint activities. Like the DCH 0654, it requires detailed project information and must be submitted before work begins.
  • Environmental Assessment Report: This document outlines the findings of an environmental assessment. Similar to the DCH 0654, it includes specifics about the location and scope of work, ensuring that all parties are informed about potential hazards.
  • Hazardous Waste Manifest: This form is used to track hazardous waste from its point of origin to disposal. It parallels the DCH 0654 in that both documents require precise details about the project and the materials involved to ensure compliance with safety regulations.
  • Construction Notification Form: This form notifies local authorities about upcoming construction projects. Like the DCH 0654, it mandates advance notice and provides critical information about the work being performed, including timelines and contractor details.

Dos and Don'ts

When filling out the Michigan DCH 0654 form, it is crucial to follow specific guidelines to ensure compliance and avoid delays. Here are ten things to do and not do during this process:

  • Do complete all sections of the form accurately.
  • Do submit the form at least three business days before starting any lead abatement activities.
  • Do provide a detailed description of the scope of work.
  • Do include the correct contact information for all parties involved.
  • Do indicate if the project will include work on weekends.
  • Don't leave any required fields blank.
  • Don't forget to update the form with a revision number if there are any changes to the project schedule.
  • Don't submit the form after the three-day deadline.
  • Don't provide incomplete or vague descriptions of the work to be performed.
  • Don't assume that verbal notifications are sufficient; always provide written notification.

By adhering to these guidelines, individuals and firms can ensure a smoother process in notifying the Michigan Department of Community Health about lead abatement activities.

Misconceptions

Misconceptions about the Michigan DCH 0654 form can lead to confusion and delays in lead abatement projects. Here are five common misunderstandings:

  • Only large firms need to file the form. Many believe that only large contractors are required to submit the DCH 0654 form. In reality, any firm conducting lead-based paint activities, regardless of size, must notify the department.
  • Notifications can be submitted at any time. Some people think they can send in notifications whenever they want. However, the law requires that notifications be submitted at least three business days before starting any abatement work.
  • Incomplete forms will still be accepted. It is a common belief that minor omissions on the form won’t matter. Unfortunately, incomplete notifications will not be approved, which can delay projects.
  • Changes to the project schedule do not need to be reported. Many assume that once the form is submitted, any changes are unimportant. In fact, if the project schedule changes, it is necessary to update the form and submit a revision at least 24 hours before the change.
  • Only certain types of projects require this form. Some individuals think that the DCH 0654 is only for specific types of lead abatement projects. However, any lead-based paint activities, regardless of type, require notification.

Understanding these misconceptions can help ensure compliance and smooth execution of lead abatement activities in Michigan.

Key takeaways

Filling out and using the Michigan DCH 0654 form requires attention to detail and adherence to specific guidelines. Here are key takeaways to ensure compliance and efficiency:

  • Notification Requirement: Any firm conducting lead-based paint abatement activities must notify the Michigan Department of Community Health at least three business days before starting work.
  • Complete Information: All sections of the form must be filled out completely. Incomplete forms will not be approved, which can delay your project.
  • Revision Process: If there are changes to the project schedule, you must indicate the revision number at the top of the form and submit it at least 24 hours before the change takes effect.
  • Contact Details: Ensure that the contractor's name, MI certification number, and contact person's phone number are clearly provided for easy communication.
  • Scope of Work: Clearly outline the scope of work, including details such as replacing windows or encapsulating baseboards. This helps in understanding the extent of the project.
  • Occupancy Status: Indicate whether the building is occupied, vacant, or a child-occupied facility. This information is crucial for safety and compliance.
  • Submit via Mail or Fax: Send the completed form to the Healthy Homes Section via mail or fax. Ensure that you have the correct address and fax number.
  • Keep Records: Maintain a copy of the submitted form for your records. This can be useful for reference and in case of any inquiries.

By following these guidelines, firms can ensure a smooth process when notifying the state about lead abatement activities, thereby promoting safety and compliance with Michigan regulations.