Homepage Blank Michigan 632 Form
Outline

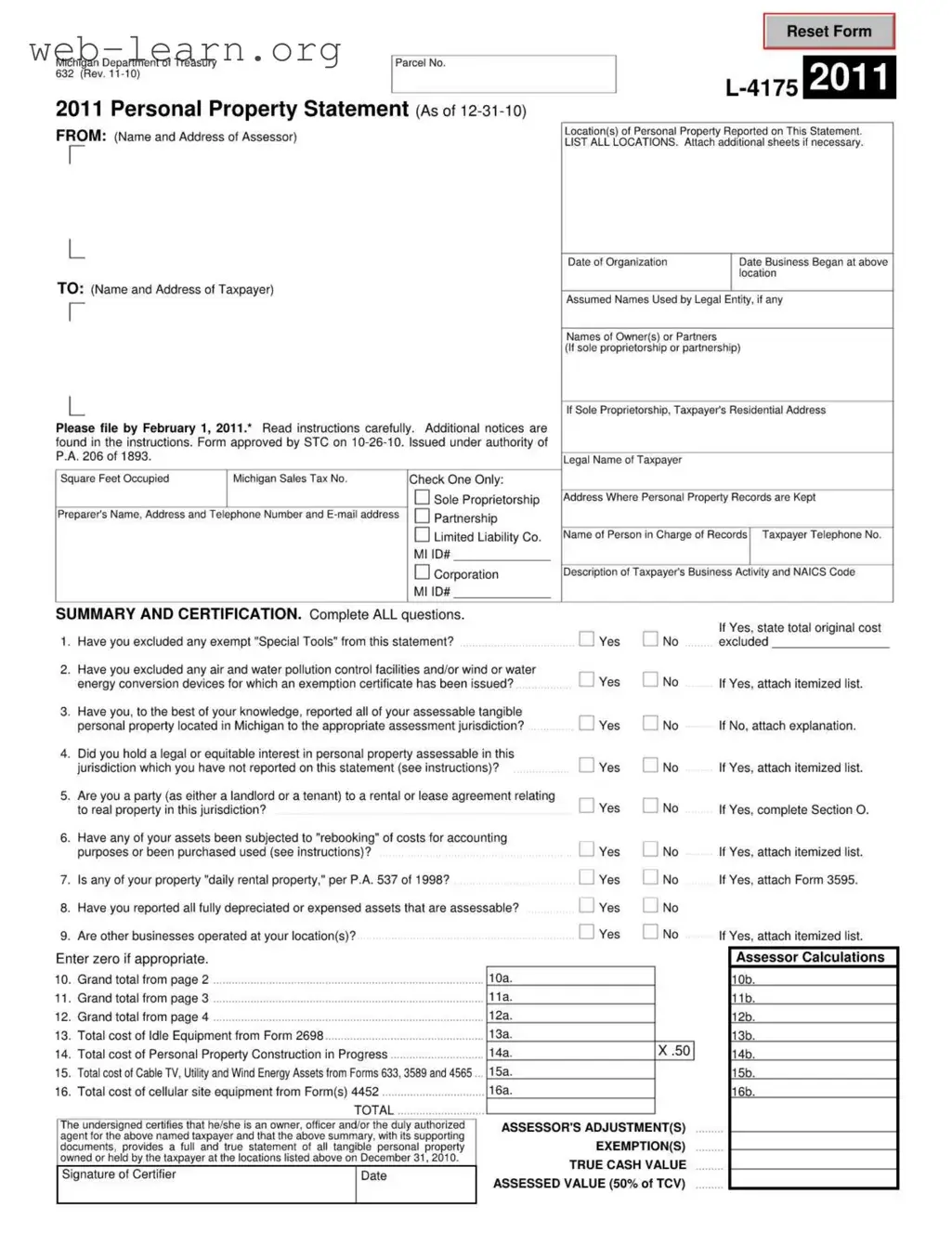
The Michigan 632 form is an essential document for businesses operating in the state, specifically designed for reporting personal property. This form, officially titled the Personal Property Statement, must be completed and submitted annually to the local assessor. It captures crucial details about the taxpayer, including their name, address, and the nature of their business. The form requires a comprehensive listing of all assessable tangible personal property owned or held by the taxpayer as of December 31 of the previous year. Taxpayers must provide information about the locations of their property, the type of business activity they engage in, and any assumed names used by the legal entity. Additionally, the form includes a series of questions aimed at ensuring compliance with Michigan tax laws, such as whether any exempt items have been excluded from the statement. Filing is time-sensitive, with a deadline typically set for February 1 each year. The Michigan Department of Treasury oversees this process, providing guidelines and instructions to help taxpayers accurately complete the form. Understanding the requirements of the Michigan 632 form is vital for maintaining compliance and avoiding potential penalties.

Sample - Michigan 632 Form

Form Information

Fact Name Details
Purpose of Form The Michigan 632 form is used to report personal property owned by businesses as of December 31 of the previous year.
Filing Deadline The form must be filed by February 1, 2011, to avoid penalties.
Governing Law This form is issued under the authority of Public Act 206 of 1893, which governs property tax assessments in Michigan.
Certification Requirement The taxpayer or authorized agent must certify the accuracy of the information provided on the form.

Detailed Guide for Filling Out Michigan 632

Completing the Michigan 632 form requires careful attention to detail. This form is essential for reporting personal property to the appropriate tax authorities. Once you have filled it out, you will need to submit it by the specified deadline to ensure compliance with state regulations.

  1. Gather necessary information: Collect all relevant details about your business, including the names of owners or partners, business activity, and locations of personal property.
  2. Fill in assessor information: At the top of the form, enter the name and address of the assessor, as well as the parcel number.
  3. Provide taxpayer details: Include the name and address of the taxpayer, along with any assumed names used by the legal entity.
  4. Indicate business structure: Check the appropriate box to indicate whether the business is a sole proprietorship, partnership, limited liability company, or corporation.
  5. Enter business dates: Fill in the date of organization and the date the business began at the specified location.
  6. Describe business activity: Write a brief description of the business activity along with the corresponding NAICS code.
  7. Complete the summary and certification section: Answer all questions regarding exemptions, reported property, and other relevant inquiries. Attach any necessary itemized lists or explanations as required.
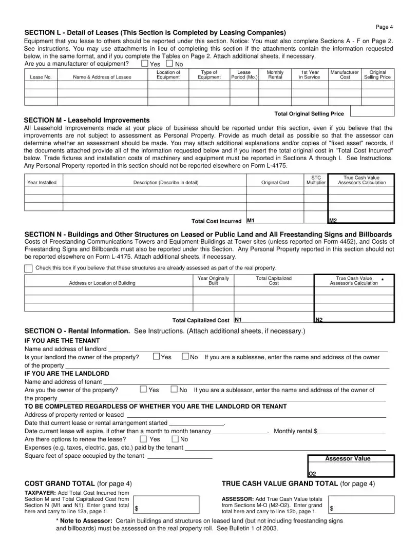
  8. Report assessable personal property: Enter details about all tangible personal property in your possession, including fully depreciated and expensed assets, in the designated sections (A through N).
  9. Calculate totals: Ensure that you accurately calculate the grand totals from each section of the form.
  10. Sign and date the form: The certifier must sign the form, certifying the accuracy of the information provided.
  11. Submit the form: Send the completed form to the appropriate tax authority by the deadline, which is February 1, 2011, for this reporting period.

Obtain Answers on Michigan 632

  1. What is the Michigan 632 form?

    The Michigan 632 form, also known as the Personal Property Statement, is a document required by the Michigan Department of Treasury. It is used by businesses to report their tangible personal property to the local assessor. This form must be filed annually by February 1st for the previous tax year. It provides detailed information about the business's assets, including their location, type, and value.

  2. Who needs to file the Michigan 632 form?

    Any business entity that owns or possesses tangible personal property in Michigan must file this form. This includes sole proprietorships, partnerships, limited liability companies, and corporations. If your business has assessable personal property, such as equipment, machinery, or furniture, you are required to report it using this form. Even if your property is fully depreciated, it still needs to be included.

  3. What information is required on the Michigan 632 form?

    The form requires various details, including:

    • Name and address of the taxpayer
    • Location of the personal property
    • Description of the business activity
    • List of all tangible personal property owned or possessed
    • Any exemptions claimed, such as for special tools or pollution control facilities

    Additionally, you must certify that the information provided is accurate and complete. This includes reporting any "move-ins" of used property and ensuring that all assessable assets are accounted for.

  4. What happens if I fail to file the Michigan 632 form?

    Failing to file the Michigan 632 form by the deadline can result in penalties. The local assessor may impose a penalty based on the value of the unreported property. Furthermore, if the form is not submitted, the assessor may estimate your property value, which could lead to higher taxes. It is crucial to adhere to the filing requirements to avoid these potential issues.

Common mistakes

Filling out the Michigan 632 form can be a straightforward process, but many individuals make common mistakes that can lead to complications. One frequent error is failing to report all assessable tangible personal property. Taxpayers must ensure they include every item that qualifies, including fully depreciated assets. Omitting any property can result in penalties or disputes with the assessor.

Another mistake is not adhering to the instructions regarding exemptions. Taxpayers often overlook exempt "Special Tools" or fail to report air and water pollution control facilities. Properly identifying and excluding these items is crucial to avoid over-reporting and unnecessary taxes.

Many individuals also neglect to provide complete and accurate information about their business activities. The form requires a description of the taxpayer's business activity and the corresponding NAICS code. Incomplete or inaccurate descriptions can lead to misunderstandings and potential issues with tax assessments.

Additionally, some taxpayers do not attach necessary supporting documents when required. For instance, if there are "move-ins" of used property, it is essential to complete and attach Form 3966. Failing to provide these documents can delay processing and may lead to incorrect assessments.

Lastly, failing to double-check calculations is a common oversight. It is vital to ensure that totals from all sections are accurate and that all arithmetic is correct. Errors in calculations can lead to incorrect tax liabilities, which can be difficult to rectify later on.

Documents used along the form

When filing the Michigan 632 form, several other documents may be required to ensure a complete and accurate submission. These documents help clarify your business's personal property status and assist in the assessment process. Below is a list of commonly used forms that can accompany the Michigan 632 form.

  • Form 3966: Taxpayer Report of Personal Property "Move-Ins" - This form is necessary if you have acquired used property that was not assessed in your jurisdiction during the previous year. It helps track any personal property that has moved into your area.
  • Form 2698: Idle Equipment Report - If you have equipment that is not currently in use, this form allows you to report its value. This can help in determining any potential exemptions for idle assets.
  • Form 3595: Personal Property Exemption Application - Use this form to apply for exemptions on certain types of personal property. It is essential for ensuring that you are not overtaxed on assets that qualify for exemption.
  • Form 633: Utility Personal Property Statement - If your business involves utility assets, this form is required to report their value accurately. It ensures that utility property is assessed correctly.
  • Form 4452: Cellular Site Equipment Statement - This form is specific for businesses that operate cellular sites. It provides details on equipment used in cellular communications, which may be subject to different assessment criteria.
  • Form 4565: Wind Energy Systems Personal Property Statement - If your business involves wind energy systems, this form is necessary to report the associated personal property. It ensures compliance with specific tax regulations for renewable energy assets.

Understanding these forms can significantly ease the process of filing your Michigan 632 form. Each document serves a unique purpose, helping to clarify your business's personal property situation and ensuring compliance with state regulations. Being thorough and accurate in your reporting can save you time and potential issues in the future.

Similar forms

The Michigan 632 form, which is the Personal Property Statement, shares similarities with several other documents used in various legal and financial contexts. Below is a list of documents that are comparable to the Michigan 632 form, along with a brief explanation of how they are similar.

  • IRS Form 4562: This form is used to report depreciation and amortization of assets. Like the Michigan 632 form, it requires detailed information about tangible personal property owned by a business.
  • Michigan Form 5730: This is the Personal Property Tax Exemption Claim form. It is similar in that it also deals with personal property and requires a declaration of ownership and usage.
  • IRS Form 1040 Schedule C: This schedule is used by sole proprietors to report income and expenses. It requires a listing of business assets, akin to the asset reporting in the Michigan 632 form.
  • Michigan Form L-4176: This is the Personal Property Statement for exempt property. It is similar in purpose, focusing on the declaration of personal property for tax purposes.
  • IRS Form 8829: This form is used to claim expenses for business use of a home. It includes reporting personal property used in the business, paralleling the asset reporting required in the Michigan 632 form.
  • Michigan Form 2698: This form is for reporting idle equipment. Similar to the Michigan 632 form, it requires detailed reporting of specific types of personal property.
  • IRS Form 1065: This is the U.S. Return of Partnership Income. It requires reporting of partnership assets and liabilities, similar to the asset declarations in the Michigan 632 form.
  • State Sales Tax Exemption Certificate: This document allows businesses to claim exemptions on certain purchases. It often requires a declaration of property similar to what is found in the Michigan 632 form.
  • Michigan Form 3589: This is the Michigan Business Tax Annual Return. It includes reporting on business assets and property, much like the Michigan 632 form.
  • IRS Form 1120: This is the U.S. Corporation Income Tax Return. It requires reporting of corporate assets, similar to the reporting requirements in the Michigan 632 form.

Dos and Don'ts

When filling out the Michigan 632 form, attention to detail is crucial. Here are five important things to keep in mind to ensure your submission is accurate and complete.

  • Do read the instructions carefully. Understanding the guidelines will help you avoid common mistakes.
  • Do provide all required information. Ensure that every section is filled out completely to prevent delays.
  • Do double-check your calculations. Accuracy in reporting values is essential for proper assessment.
  • Do attach additional sheets if necessary. If you have more information than fits in the provided space, include extra documentation.
  • Do submit your form by the deadline. Timely filing is critical to avoid penalties.

Conversely, there are also things you should avoid when completing this form. Keeping these in mind can save you time and frustration.

  • Don't leave any sections blank. Incomplete forms may be returned or delayed.
  • Don't ignore the exemption questions. Failing to report exempt items can lead to issues with your assessment.
  • Don't guess on values. Providing inaccurate information can result in penalties or incorrect assessments.
  • Don't forget to sign the form. A missing signature can render your submission invalid.
  • Don't submit without reviewing. A final check can catch errors that might have been overlooked.

By following these guidelines, you can navigate the Michigan 632 form process with confidence. Taking the time to be thorough will help ensure your personal property statement is processed smoothly.

Misconceptions

Misconceptions about the Michigan 632 form can lead to confusion and potential errors in reporting personal property. Here are nine common misconceptions clarified:

  1. The Michigan 632 form is only for corporations. This form is applicable to various business entities, including sole proprietorships, partnerships, and limited liability companies.
  2. All personal property must be reported on the same page. The form has multiple sections, and different types of personal property should be reported in their designated sections as outlined in the instructions.
  3. Exempt property does not need to be reported at all. Even exempt property may need to be listed, especially if it has been excluded from the taxable assessment.
  4. Fully depreciated assets do not need to be reported. All assessable tangible personal property, including fully depreciated assets, must be reported on the form.
  5. Only new acquisitions need to be reported. Used property that qualifies as a "move-in" must also be reported, along with any property mistakenly omitted in previous filings.
  6. The form is optional for small businesses. Filing the Michigan 632 form is mandatory for all businesses that own or possess assessable personal property as of December 31.
  7. There is no penalty for late filing. Late submissions can result in penalties and interest, making timely filing crucial.
  8. Assessor adjustments are final and cannot be contested. Taxpayers have the right to appeal assessor adjustments if they believe there has been an error.
  9. All questions on the form are optional. Completing all questions is essential for accurate reporting and compliance with tax regulations.

Understanding these misconceptions is vital for accurate and compliant reporting on the Michigan 632 form. Ensure you read the instructions carefully and seek assistance if needed.

Key takeaways

Key Takeaways for Filling Out and Using the Michigan 632 Form:

  • Ensure you provide accurate and complete information about your personal property, including all locations where it is reported.
  • File the form by the deadline of February 1, 2011, to avoid potential penalties or issues with your assessment.
  • Carefully read the instructions to determine which sections apply to your specific situation, especially regarding exemptions and reporting requirements.
  • Include all assessable tangible personal property, even if it is fully depreciated or expensed, as this is crucial for accurate reporting.
  • If you have "move-ins" of used property, you must complete Form 3966 in addition to the Michigan 632 form.
  • Provide detailed descriptions and original costs for all property, including leased items and property not owned by you but in your possession.