Homepage Blank Mhd 1023 Texas Form
Outline

The Mhd 1023 Texas form serves as a crucial document for individuals and entities involved in the sale or transfer of manufactured homes within the state. This application is specifically designed to obtain a Statement of Ownership and Location, which is necessary for establishing legal ownership and ensuring compliance with state regulations. Timeliness is essential; submitting this application more than sixty days after the sale may incur a fee of up to $100, and late applications could face processing delays until the fee is paid. The form is divided into several blocks, each requiring specific information. For instance, Block 1 identifies the type of transaction, whether it involves personal or real property, and includes details about the manufacturer and handling preferences. Home information, including model, date of manufacture, and size, is captured in Block 2. Additionally, the form requires the physical location of the home, ownership details, and any existing liens. Special provisions for right of survivorship and the election of personal or real property status are also included. Furthermore, it allows for designating the home for non-residential use or salvage. The final sections require signatures from all parties involved, ensuring that the application is duly authorized. Completing the Mhd 1023 form accurately is essential for a smooth transaction process and to avoid potential legal complications.

Sample - Mhd 1023 Texas Form

Form Information

Fact Name Details
Purpose This form is used to apply for a Statement of Ownership and Location for manufactured homes in Texas.
Filing Deadline Applications must be submitted within 60 days of the sale to avoid a late fee of up to $100.
Processing Time Regular handling processes applications within 15 working days; priority handling is available for an additional fee and processes within 5 working days.
Required Information Home information, ownership details, and location must be provided in the application.
Fees A Texas Seal may be required for homes without HUD labels, costing $35 per section.
Right of Survivorship Joint owners can opt for right of survivorship, ensuring ownership passes to the surviving owner upon death.
Property Election Applicants can choose to treat the home as personal or real property, affecting how ownership is recorded.
Liens Information about any liens on the home must be disclosed in the application.
Governing Law The application is governed by Texas Property Code, specifically §1201.213 of the Standards Act.

Detailed Guide for Filling Out Mhd 1023 Texas

Filling out the Mhd 1023 Texas form is a critical step in the process of obtaining a Statement of Ownership and Location for a manufactured home. To ensure a smooth submission, it is essential to follow the outlined steps carefully.

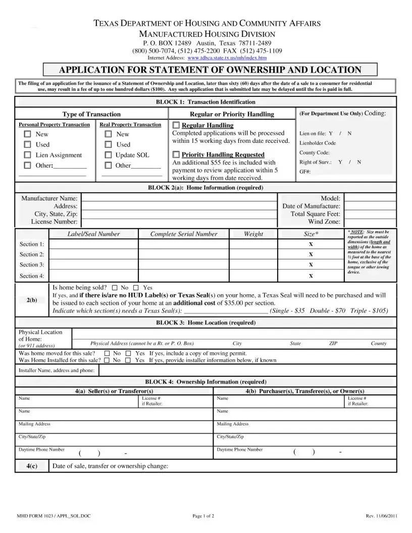
  1. Begin by identifying the type of transaction in BLOCK 1. Choose between personal property and real property transactions. Fill in the manufacturer name, address, city, state, zip, and license number.
  2. In BLOCK 2(a), provide the home information. Include the model, date of manufacture, total square feet, wind zone, label/seal number, complete serial number, and weight. Specify the size of the home and indicate whether it is being sold.
  3. If applicable, in BLOCK 2(b), indicate if a Texas Seal is needed and specify the sections requiring it.
  4. In BLOCK 3, fill in the physical location of the home. Provide the complete physical address, including city, state, zip, and county. Indicate if the home was moved for this sale and if it was installed for this sale.
  5. In BLOCK 4, enter the ownership information. List the names, mailing addresses, and phone numbers of the seller(s) and purchaser(s). Include the date of sale or transfer.
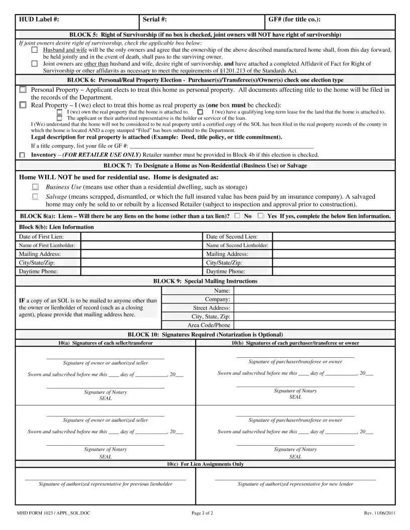
  6. In BLOCK 5, if applicable, check the box for right of survivorship if joint owners wish to have this provision.
  7. In BLOCK 6, select the personal or real property election. Indicate if the home is treated as personal property or real property and provide the necessary details.
  8. In BLOCK 7, indicate whether the home is designated for non-residential use or as salvage.
  9. In BLOCK 8, answer whether there are any liens on the home. If yes, provide the lien information in the subsequent fields.
  10. In BLOCK 9, provide any special mailing instructions if a copy of the SOL needs to be sent to someone other than the owner or lienholder.
  11. Finally, in BLOCK 10, ensure that all required signatures are obtained from sellers, purchasers, and authorized representatives. Notarization is optional but may be beneficial.

Obtain Answers on Mhd 1023 Texas

  1. What is the Mhd 1023 Texas form?

    The Mhd 1023 Texas form is an application used to obtain a Statement of Ownership and Location for manufactured homes in Texas. This form is required when a manufactured home is sold or transferred, and it helps establish the ownership and location of the home.

  2. What happens if I submit the application late?

    If the application is submitted later than sixty (60) days after the sale date, a fee of up to one hundred dollars ($100) may apply. The processing of late applications will be delayed until the fee is paid in full.

  3. What information is required in the application?

    The application requires several key pieces of information, including:

    • Type of transaction (personal property or real property)
    • Home information (model, date of manufacture, dimensions, etc.)
    • Physical location of the home
    • Ownership information of both seller and purchaser
    • Liens, if any

  4. What is the difference between treating the home as personal property versus real property?

    When treating the home as personal property, all documents affecting the title will be filed with the Department. If the home is treated as real property, it must be attached to land that the owner owns or has a long-term lease for. A certified copy of the Statement of Ownership and Location must then be filed in the county's real property records.

  5. What if my home does not have HUD labels or Texas seals?

    If your home lacks HUD labels or Texas seals, you will need to purchase a Texas seal. The cost is $35 per section of the home. This is necessary for homes being sold without the required labels or seals.

  6. Are there any special instructions for mailing the Statement of Ownership and Location?

    If you need a copy of the Statement of Ownership and Location sent to someone other than the owner or lienholder, you must provide that person's mailing address in the application. This ensures that the document reaches the correct party.

  7. Is notarization required for the signatures on the form?

    Notarization is optional for the signatures on the Mhd 1023 Texas form. However, having the signatures notarized can add an extra layer of verification to the transaction.

Common mistakes

When filling out the MHD 1023 Texas form, one common mistake is failing to submit the application within the required timeframe. The form states that applications must be filed within sixty days of the sale. If submitted late, a fee of up to $100 may apply, and processing could be delayed until payment is received. This can cause unnecessary complications and delays in obtaining ownership documentation.

Another frequent error is incomplete information in BLOCK 1 regarding the type of transaction. Applicants often overlook specifying whether the transaction is for personal or real property. This detail is crucial, as it affects how the application is processed and the associated legal implications. Providing clear and accurate information helps streamline the process.

Many applicants also struggle with BLOCK 2(a), which requires detailed home information. Missing or incorrect details about the model, date of manufacture, or serial numbers can lead to significant issues. It's essential to double-check these entries for accuracy, as they are critical for identifying the home in question.

In BLOCK 3, applicants sometimes provide a P.O. Box instead of a physical address. The form explicitly states that a physical location is required. Using a P.O. Box can result in rejection of the application, causing further delays and complications.

Another mistake occurs in BLOCK 4, where ownership information is provided. Applicants often forget to include all sellers and purchasers or fail to provide complete contact information. This oversight can lead to confusion about ownership and may complicate future transactions or legal matters.

Lastly, many individuals neglect to check the appropriate box for the right of survivorship in BLOCK 5. If joint owners do not indicate their desire for this right, it may not be granted. This can have serious implications for estate planning and the transfer of ownership upon death. Taking the time to understand and complete this section correctly is vital.

Documents used along the form

The Mhd 1023 Texas form is essential for the application of a Statement of Ownership and Location for manufactured homes. Alongside this form, several other documents are often utilized to ensure a smooth transaction. Below are four key forms that complement the Mhd 1023.

  • Moving Permit: This document is required if the home is being relocated for the sale. It provides proof that the home has been authorized for transport, ensuring compliance with local regulations.
  • Affidavit of Fact for Right of Survivorship: If joint owners wish to establish the right of survivorship, this affidavit must be completed and attached. It outlines the agreement between owners regarding the transfer of ownership upon death.
  • Legal Description of Real Property: For those electing to treat the home as real property, a legal description must accompany the application. This can include documents like a deed or title policy that clearly defines the property’s boundaries.
  • Special Mailing Instructions Form: If a copy of the Statement of Ownership and Location needs to be sent to someone other than the owner or lienholder, this form provides the necessary mailing details to ensure proper delivery.

Each of these documents plays a vital role in the overall process of transferring ownership and ensuring compliance with Texas regulations. Having them prepared and ready can significantly streamline the transaction, making it easier for everyone involved.

Similar forms

The Mhd 1023 Texas form is essential for documenting ownership and location details of manufactured homes. It bears similarities to several other important documents related to property transactions. Below are four documents that share common features with the Mhd 1023 form:

  • Title Application Form: Like the Mhd 1023, a title application form is used to establish ownership of a vehicle or property. Both documents require detailed information about the item in question, including identification numbers and ownership history, ensuring a clear chain of title.
  • Property Transfer Deed: This document formalizes the transfer of property ownership from one party to another. Similar to the Mhd 1023, it includes essential details such as the names of the parties involved, the property description, and any conditions of the transfer, ensuring that the new owner is recognized legally.
  • Bill of Sale: A bill of sale is often used in transactions involving personal property, including manufactured homes. It serves as proof of purchase and includes information about the buyer, seller, and item details, much like the Mhd 1023, which documents the transaction specifics and ownership change.
  • Affidavit of Fact: This document is used to affirm certain facts regarding ownership or property status. In the context of the Mhd 1023, an affidavit may be required to establish rights of survivorship or other ownership claims, paralleling the need for verification and legal acknowledgment present in both documents.

Dos and Don'ts

When filling out the Mhd 1023 Texas form, there are several important guidelines to keep in mind. Following these can help ensure your application is processed smoothly and efficiently.

  • Do double-check all information for accuracy before submitting the form.
  • Don't leave any required fields blank; incomplete applications may be delayed.
  • Do include a copy of the moving permit if the home was moved for the sale.
  • Don't forget to pay the application fee on time to avoid additional charges.
  • Do specify whether the home is being treated as personal or real property.
  • Don't assume that electronic submissions are acceptable unless specified in the instructions.
  • Do provide complete and accurate lienholder information if applicable.
  • Don't neglect to check the right of survivorship box if applicable to joint owners.
  • Do sign and date the application where required to validate your submission.

Misconceptions

Understanding the Mhd 1023 Texas form is essential for anyone involved in the sale or ownership of manufactured homes. However, several misconceptions can lead to confusion. Here are eight common misunderstandings about this form:

  • It’s only for new homes. Many believe that the Mhd 1023 form is only necessary for new manufactured homes. In reality, it applies to both new and used homes, ensuring proper ownership documentation for all transactions.
  • Late applications incur no penalties. Some think that submitting the application after the 60-day window is harmless. However, late submissions may result in a fee of up to $100 and can delay processing until the fee is paid.
  • All homes automatically receive a Texas Seal. There is a misconception that every manufactured home comes with a Texas Seal. If a home lacks HUD labels or Texas seals, the owner must purchase a Texas Seal at an additional cost.
  • Only homeowners need to fill out the form. It’s a common belief that only the current homeowner needs to submit the form. In fact, both sellers and buyers must provide their information to ensure a clear transfer of ownership.
  • Right of survivorship is automatic. Many assume that joint ownership automatically includes the right of survivorship. This is not the case; owners must specifically indicate their desire for this right on the form.
  • Priority handling guarantees approval. There’s a misconception that paying for priority handling will ensure the application is approved. While it speeds up processing, it does not guarantee that the application will be accepted.
  • Liens are not a concern for new buyers. Some buyers think that if they are purchasing a new home, liens won’t affect them. This is misleading; any liens on the home must be disclosed, regardless of the home’s age.
  • Notarization is mandatory. It’s often believed that notarization of signatures is required for the Mhd 1023 form. However, notarization is optional and depends on the specific circumstances of the transaction.

By addressing these misconceptions, individuals can better navigate the complexities of the Mhd 1023 Texas form. Being informed leads to smoother transactions and helps avoid unnecessary complications.

Key takeaways

Key Takeaways for Filling Out the Mhd 1023 Texas Form:

  • Submit the application within 60 days of sale to avoid a late fee of up to $100.
  • Choose the correct type of transaction—personal property or real property—based on your situation.
  • Provide complete home information, including model, date of manufacture, and dimensions.
  • Include accurate ownership details for both sellers and buyers, ensuring all names and contact information are correct.
  • Indicate if the home is being sold or moved, and attach necessary permits if applicable.
  • Signatures from all parties involved are required, and notarization is optional but recommended for added authenticity.