Homepage Blank Ld 0274 Form
Outline

The LD 0274 form is a crucial document for individuals seeking to file a claim against the California Department of Transportation for amounts of $10,000 or less. This form serves as a formal request for compensation due to personal injury, property damage, or other losses resulting from incidents involving Caltrans. It is essential to provide accurate personal information, including your name, contact details, and a clear description of the incident, such as the time, date, and location. Completing the form accurately is vital, as any missing information could delay processing. Claimants must also specify the nature of the injury or damage sustained and the amount being claimed, supported by relevant estimates or receipts. Additionally, the form includes important notices regarding privacy and the rights of individuals to access their personal information. Understanding the requirements and adhering to the guidelines outlined in the LD 0274 form can significantly streamline the claims process, ensuring that individuals receive the assistance they need in a timely manner.

Sample - Ld 0274 Form

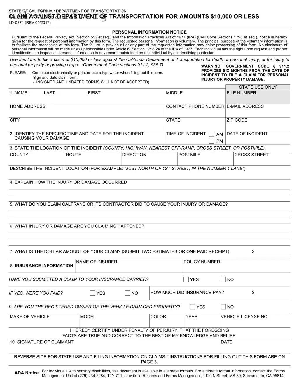
STATE OF CALIFORNIA • DEPARTMENT OF TRANSPORTATION

CLAIM AGAINST DEPARTMENT OF TRANSPORTATION FOR AMOUNTS $10,000 OR LESS

LD-0274 (REV 05/2017)

PERSONAL INFORMATION NOTICE

Pursuant to the Federal Privacy Act (Section 552 et seq.) and the Information Practices Act of 1977 (IPA) (Civil Code Sections 1798 et seq.), notice is hereby given for the request of personal information by this form. The requested personal information is voluntary. The principal purpose of the voluntary information is to facilitate the processing of this form. The failure to provide all or any part of the requested information may delay processing of this form. No disclosure of personal information will be made unless permissible under Article 6, Section 1798.24 of the IPA of 1977. Each individual has the right upon request and proper identification, to inspect all personal information in any record maintained on the individual by an identifying particular.

Use this form to file a claim of $10,000 or less against the California Department of Transportation for death or personal injury, or for injury to

personal property or growing crops. (Government Code sections 911.2, 935.7)

WARNING: GOVERNMENT CODE § 911.2

PLEASE:

Complete electronically or print or use a typewriter when filling out this form.

PROVIDES SIX MONTHS FROM THE DATE OF

INCIDENT TO FILE A CLAIM FOR PERSONAL

 

Sign and date claim form.

 

 

 

INJURY OR PROPERTY DAMAGE.

 

(UNSIGNED AND UNDATED FORMS WILL NOT BE ACCEPTED)

 

 

 

 

 

 

 

 

 

STATE USE ONLY

 

 

 

 

 

1. NAME:

LAST

FIRST

MIDDLE

 

FILE NUMBER

 

 

 

 

HOME ADDRESS

 

CONTACT PHONE NUMBER

E-MAIL ADDRESS

 

 

 

 

 

 

CITY

 

 

STATE

 

ZIP CODE

 

 

 

 

2. IDENTIFY THE SPECIFIC TIME AND DATE FOR THE INCIDENT

TIME OF INCIDENT

AM

DATE OF INCIDENT

CAUSING YOUR DAMAGE

 

 

PM

 

 

 

 

 

 

3.STATE THE LOCATION OF THE INCIDENT (COUNTY, HIGHWAY, NEAREST OFF-RAMP, CROSS STREET, OR POSTMILE).

COUNTY

ROUTE

DIRECTION

POSTMILE

CROSS STREET

DESCRIBE THE INCIDENT LOCATION (FOR EXAMPLE: "JUST NORTH OF 1ST STREET, IN THE NUMBER 1 LANE")

4.EXPLAIN HOW THE INJURY OR DAMAGE OCCURRED

5.WHAT DO YOU CLAIM CALTRANS OR ITS CONTRACTOR DID TO CAUSE YOUR INJURY OR DAMAGE?

6.WHAT INJURY OR DAMAGE ARE YOU CLAIMING HAPPENED?

7. WHAT IS THE DOLLAR AMOUNT OF YOUR CLAIM? (SUBMIT TWO ESTIMATES OR ONE PAID RECEIPT)

$

 

 

 

 

 

 

 

 

 

 

 

 

 

8. INSURANCE INFORMATION

NAME OF INSURER

POLICY NUMBER

 

 

 

 

 

 

 

 

 

 

 

YES

NO

 

 

YES

NO

HOW MUCH DID INSURANCE PAY?

$

YES

NO

MAKE OF VEHICLE

MODEL

COLOR

YEAR

VEHICLE LICENSE NO.

10. SIGNATURE OF CLAIMANT

DATE

ADA Notice

For individuals with sensory disabilities, this document is available in alternate formats. For alternate format information, contact the Forms

 

Management Unit at (279) 234-2284, TTY 711, or write to Records and Forms Management, 1120 N Street, MS-89, Sacramento, CA 95814.

STATE OF CALIFORNIA • DEPARTMENT OF TRANSPORTATION

CLAIM AGAINST DEPARTMENT OF TRANSPORTATION FOR AMOUNTS $10,000 OR LESS

LD-0274 (REV 05/2017)

FOR STATE USE ONLY (BELOW)

DATE CLAIM RECEIVED

REVIEWED BY: DISTRICT CLAIMS OFFICER

 

AMOUNT APPROVED $

 

 

 

 

 

 

 

 

 

 

 

 

 

 

 

 

 

 

 

STATE

TORT FUND/

CONTRACTOR

DENIED

RESPONSIBILITY

CONTRACT CONTINGENCY

RESPONSIBILTY

DENIAL DATE

 

 

 

 

 

 

 

 

DISTRICT

LOCATION CODING

COUNTYROUTE

POSTMILE

COST CODING

DEPARTMENT

FUND

 

UNIT

OBJECT

PROJECT NUMBER

 

PHASE

 

 

 

 

 

 

 

 

 

 

 

 

 

 

 

 

 

 

 

ITEM

 

 

CHAPTER

STATUTES

 

FISCAL YEAR

SCHEDULE NUMBER

 

 

 

 

 

 

 

 

 

 

 

 

 

ACCOUNTING OFFICER SIGNATURE

 

DATE

 

 

 

 

 

 

 

 

 

 

FOR CLAIMS TEN THOUSAND DOLLARS ($10,000) OR LESS

Select District

Address

FOR CLAIMS OVER TEN THOUSAND DOLLARS ($10,000)

You must file a claim with the Government Claims Program in West Sacramento, California.

If you have any questions about claims of more than ten thousand dollars ($10,000), contact:

Government Claims Program

Office of Risk and Insurance Management

Department of General Services

P.O. Box 989052, MS 414

West Sacramento, CA 95798-9052

Phone: 1-800-955-0045

E-mail: [email protected]

Website: http://www.dgs.ca.gov/orim/Programs/GovernmentClaims.aspx

The fact that this brief statement of the initial procedure to be followed in submitting a claim against the State of California, or against any of the State of California's subdivisions, departments, divisions, agencies, officers, employees, agents, or directors, has been furnished to you or that an investigation of any claim is undertaken is not to be taken as an admission of liability in any respect on the part of the State of California, or by any of the State of California's subdivisions, departments, divisions, agencies, officers, employees, agents, or directors, nor is the fact that this informational statement has been furnished to you to be construed as a waiver of any requirements imposed by the law or of any defense which may be available to the State of California or to any of the State of California's subdivisions, departments, divisions, agencies, officers, employees, agents, or directors, in connection with any claim that may be filed.

ADA Notice

For individuals with sensory disabilities, this document is available in alternate formats. For alternate format information, contact the Forms

 

Management Unit at (279) 234-2284, TTY 711, or write to Records and Forms Management, 1120 N Street, MS-89, Sacramento, CA 95814.

STATE OF CALIFORNIA • DEPARTMENT OF TRANSPORTATION

CLAIM AGAINST DEPARTMENT OF TRANSPORTATION FOR AMOUNTS $10,000 OR LESS

LD-0274 (REV 05/2017)

INSTRUCTIONS FOR FORM LD-0274

Please note that failure to complete all sections of the claim form may delay the processing of your claim or result in the return of your claim.

1.Claimant's Name and Contact Information: State the full name, mailing address, e-mail address, and contact telephone number(s) of the person or entity claiming property damage, personal injury, or other loss.

2.Date and Time When the Injury/Damage First Occurred: State the exact month, day, year, and time of the incident giving rise to the claim.

3.Location of Incident: Specify the county, highway number, direction of travel, post mile, nearest exit(s), cross-streets, and any additional information indicating where the incident giving rise to the claim occurred. Providing a map is optional, but advised. The more information you provide, the easier it is for us to assist you. You should also attach a copy of the police report (if one exists) of the incident.

4.How Your Injury/Damage Occurred: Provide complete details about what happened to cause your injury/damages. If you need more space, you may attach additional pages.

5.What Do You Claim Caltrans or Its Contractor Did to Cause Your Injury or Damage? State in detail all facts in support of your claim. Identify all persons or entities involved and why you believe Caltrans or its contractor is liable. If applicable, provide the name of the Caltrans employee or contractor, and the State of California vehicle license plate/ID number. If you need more space, you may attach additional pages.

6.What Injury or Damage Are You Claiming Happened? Specify the exact injury or damage for which you are claiming, including all alleged injuries, property damage, and/or loss. If you need more space, you may attach additional pages. You can attach photographs and any additional supporting documents. If you do, be sure the photographs show the damage and its size relative to the vehicle. More than one photograph provides more information to assist the evaluation of your claim.

7.What Is the Dollar Amount of Your Claim? State the total dollar amount for which you are claiming. Leaving the dollar amount blank will result in your claim being deemed incomplete, and your claim will be returned without further action. Please submit two (2) written estimates and/or one (1) paid receipt for all damages claimed. If you are submitting proof of payment, copies of credit card statements or copies of the front and back of cancelled checks are required. Invoices will not be accepted as actual proof of payment. All invoices must list the claimant's name and vehicle license plate number, vendor's letterhead, and an itemized list of repairs. Caltrans will not accept quotes retrieved from the internet.

8.Insurance Information: State the name of your insurer and policy number. If you have been reimbursed by your insurance company, you may not be eligible for compensation.

9.Are You the Registered Owner of the Vehicle/Damaged Property? Only the registered owner may file a claim for damage to a vehicle or property. Be sure to provide all vehicle information, including a copy of the vehicle's registration.

10.Signature of Claimant: Please sign and date the claim form. Caltrans does not accept claim forms without an original signature. Faxed or photocopied claim forms will not be accepted.

Mailing Completed Form: The completed form must be mailed to the District Claims Office assigned to the county in which your injury/ damages occurred. To determine the proper District Claims Office to which you should mail your completed form, you can use the map on the website and click on the county. The website map will show the District Claims Office responsible for that county, including its address and telephone number. You can then use the drop down menu on page 2 of this form to automatically fill in the address for the appropriate District Claims Office. If you have any questions about the location where your injury/damages occurred, you can contact any District Claims Office.

If your claim is over ten thousand dollars ($10,000.00), you must file a different form with the Government Claims Program WITHIN 6 MONTHS OF THE DATE OF INCIDENT. A claim form may be obtained by contacting the Government Claims Program at:

Government Claims Program

Office of Risk and Insurance Management Department of General Services

P.O. Box 989052, MS 414

West Sacramento, CA 95798-9052 Phone: 1-800-955-0045

E-mail: [email protected]

The claim form may also be downloaded from the Government Claims Program website at:

http://www.dgs.ca.gov/orim/Programs/GovernmentClaims.aspx

The fact that this brief statement of the initial procedure to be followed in submitting a claim against the State of California, or against any of the State of California's subdivisions, departments, divisions, agencies, officers, employees, agents, or directors, has been furnished to you or that an investigation of any claim is undertaken is not to be taken as an admission of liability in any respect on the part of the State of California, or by any of the State of California's subdivisions, departments, divisions, agencies, officers, employees, agents, or directors, nor is the fact that this informational statement has been furnished to you to be construed as a waiver of any requirements imposed by the law or of any defense which may be available to the State of California or to any of the State of California's subdivisions, departments, divisions, agencies, officers, employees, agents, or directors, in connection with any claim that may be filed.

ADA Notice

For individuals with sensory disabilities, this document is available in alternate formats. For alternate format information, contact the Forms

 

Management Unit at (279) 234-2284, TTY 711, or write to Records and Forms Management, 1120 N Street, MS-89, Sacramento, CA 95814.

Form Information

Fact Name Fact Description
Form Purpose This form is used to file claims of $10,000 or less against the California Department of Transportation for personal injury or property damage.
Governing Law The form is governed by California Government Code sections 911.2 and 935.7.
Privacy Notice Personal information requested is voluntary and protected under the Federal Privacy Act and the Information Practices Act of 1977.
Filing Deadline Claims must be filed within six months from the date of the incident to be considered valid.
Submission Requirements The form must be signed and dated. Unsigned or undated forms will not be accepted.
Insurance Information Claimants must provide details about any insurance coverage related to the claim, including the insurer's name and policy number.
Alternate Formats The document is available in alternate formats for individuals with sensory disabilities. Contact information is provided for assistance.

Detailed Guide for Filling Out Ld 0274

Filling out the LD-0274 form is a necessary step for individuals wishing to file a claim against the California Department of Transportation for amounts of $10,000 or less. Completing this form accurately is crucial, as any missing information may delay processing or result in the claim being returned. Below are the steps to guide you through the process of filling out the form.

  1. Claimant's Information: Write your full name, including last, first, and middle names. Provide your home address, contact phone number, and email address. Ensure that all details are accurate.
  2. Date and Time of Incident: Indicate the specific time and date when the incident occurred. Be precise, noting AM or PM as necessary.
  3. Location of Incident: Describe the location of the incident. Include details such as the county, highway number, nearest off-ramp, cross street, or postmile. A clear description helps in understanding where the incident took place.
  4. Details of the Incident: Explain how the injury or damage occurred. Provide as much detail as possible to clarify the circumstances surrounding the incident.
  5. Claim Against Caltrans: State what actions or negligence by Caltrans or its contractor you believe caused your injury or damage. Include any relevant facts and the names of individuals involved, if applicable.
  6. Description of Injury or Damage: Specify the injuries or damages you are claiming. This should encompass all alleged injuries, property damage, or losses incurred as a result of the incident.
  7. Dollar Amount of Claim: Clearly state the total dollar amount you are claiming. Remember to submit two estimates or one paid receipt to support your claim.
  8. Insurance Information: If applicable, provide details about your insurance, including the insurer's name and policy number. Indicate how much your insurance paid, if any.
  9. Signature and Date: Sign and date the form. An unsigned or undated form will not be accepted, so ensure this step is completed.

After filling out the form, review it carefully to ensure all sections are complete and accurate. Once confirmed, submit the form to the appropriate department. Keep a copy for your records. Following these steps will help facilitate the processing of your claim.

Obtain Answers on Ld 0274

  1. What is the purpose of the LD 0274 form?

    The LD 0274 form is designed for individuals wishing to file a claim against the California Department of Transportation (Caltrans) for amounts of $10,000 or less. This could be due to personal injury, property damage, or damage to growing crops. It serves as an official document to report incidents and seek compensation, ensuring that all necessary information is collected for processing the claim efficiently.

  2. What information do I need to provide on the form?

    When filling out the LD 0274 form, you will need to provide several key pieces of information:

    • Your full name, contact information, and home address.
    • The exact date and time of the incident.
    • A detailed description of the incident location, including county, highway, and any nearby landmarks.
    • An explanation of how the injury or damage occurred.
    • The specific actions or negligence of Caltrans or its contractors that you believe caused your injury or damage.
    • The exact nature of the injury or damage you are claiming.
    • The total dollar amount of your claim, supported by estimates or receipts.

    Completing all sections thoroughly is crucial, as missing information may delay processing or result in the return of your claim.

  3. How long do I have to file a claim?

    According to Government Code § 911.2, you have a period of six months from the date of the incident to file your claim for personal injury or property damage. It is essential to adhere to this timeline to ensure your claim is considered valid. Missing this deadline could result in the denial of your claim.

  4. What happens if my claim is denied?

    If your claim is denied, you will receive a notification outlining the reasons for the denial. It is important to review this information carefully. You may have the option to appeal the decision or provide additional information to support your claim. Consulting with a legal expert may also be beneficial to understand your rights and options moving forward.

  5. Is my personal information protected when I submit this form?

    Yes, your personal information is protected under the Federal Privacy Act and the Information Practices Act of 1977. The information you provide is voluntary and is primarily used to process your claim. However, be aware that failure to provide complete information may delay processing. The California Department of Transportation will not disclose your personal information unless permitted under applicable laws.

Common mistakes

When filling out the LD-0274 form, individuals often make several common mistakes that can delay the processing of their claims. Understanding these errors can help ensure a smoother submission process.

One frequent mistake is providing incomplete personal information. Claimants should include their full name, mailing address, email address, and contact phone number. Omitting any of this information can lead to complications. Without complete details, the Department of Transportation may struggle to contact the claimant for further information or clarification.

Another common error involves the date and time of the incident. It is essential to state the exact month, day, year, and time when the injury or damage occurred. Vague descriptions or estimates can result in the claim being rejected or delayed. Accuracy in this section is crucial for establishing the timeline of events.

Claimants often fail to provide a precise location of the incident. The form requires specific details such as the county, highway number, direction of travel, and any relevant cross-streets. A lack of clarity in this area can hinder the investigation and processing of the claim.

Additionally, some individuals do not thoroughly explain how the injury or damage occurred. Providing a detailed account of the events leading up to the incident is vital. This explanation should include all relevant facts and, if necessary, additional pages can be attached to ensure clarity.

Another mistake involves the claim amount. Claimants must specify the total dollar amount they are claiming. Leaving this section blank will deem the claim incomplete. To support their claim, individuals should submit two written estimates or one paid receipt for damages.

Lastly, signatures and dates are often overlooked. An unsigned or undated form will not be accepted. It is important for claimants to review the form carefully before submission to ensure all required sections are completed and signed appropriately.

Documents used along the form

When filing a claim against the California Department of Transportation using the LD 0274 form, several additional documents may be required to support the claim. Each of these documents serves a specific purpose in the claims process and can facilitate the evaluation of the claim. Below is a list of five commonly used forms and documents that may accompany the LD 0274 form.

  • Police Report: This document provides an official account of the incident, including details about the location, time, and circumstances. It can be critical in establishing the facts surrounding the claim.
  • Photographs: Visual evidence of the damage or injury can greatly enhance a claim. Photographs should clearly depict the extent of the damage and any relevant details that support the claimant's account.
  • Estimates or Receipts: Claimants are typically required to submit two written estimates or one paid receipt for the damages claimed. This documentation helps establish the monetary value of the claim.
  • Witness Statements: If there were any witnesses to the incident, their statements can provide additional perspectives and corroborate the claimant's account of events.
  • Insurance Information: Details about any insurance coverage related to the claim, including the name of the insurer and policy number, should be included. This information is essential for understanding any potential coverage that may apply.

Providing these documents along with the LD 0274 form can help ensure that the claim is processed efficiently and effectively. Each piece of information adds to the overall understanding of the incident and supports the claimant's position.

Similar forms

  • Form LD-0275: Similar to the LD-0274, this form is used for claims against the California Department of Transportation but for amounts over $10,000. Both forms require personal information and details about the incident.
  • Form LD-0276: This form addresses claims related to property damage caused by state vehicles. Like the LD-0274, it necessitates specifics about the incident and the damages incurred.
  • Form LD-0277: Used for claims involving personal injury from state property, this form shares the same structure as the LD-0274, requiring detailed descriptions of the incident and injuries.
  • Form LD-0278: This form is for claims against contractors working for the state. It parallels the LD-0274 in requesting personal information and incident details.
  • Form LD-0279: For claims regarding damage to crops, this document is similar to the LD-0274 in that it focuses on the specifics of the incident and the damages claimed.
  • Form LD-0280: This form is utilized for claims involving wrongful death against state entities. It mirrors the LD-0274 in its requirement for detailed incident descriptions and personal information.
  • Form LD-0281: This form is for claims related to damages from natural disasters impacting state property. It shares similarities with the LD-0274 in its structure and required information.
  • Form LD-0282: Designed for claims involving environmental damage caused by state actions, this form is akin to the LD-0274, focusing on the nature of the claim and personal details.
  • Form LD-0283: Used for claims related to damages from state-sponsored events, it resembles the LD-0274 in its demand for thorough incident reporting and claimant information.
  • Form LD-0284: This form addresses claims for damages caused by construction activities on state highways. Like the LD-0274, it requires detailed incident descriptions and supporting documentation.

Dos and Don'ts

When filling out the LD 0274 form, it's important to follow specific guidelines to ensure your claim is processed smoothly. Here’s a list of things you should and shouldn’t do:

  • Do complete the form electronically or use a typewriter for clarity.
  • Do provide all requested personal information to avoid delays.
  • Do sign and date the form; unsigned or undated forms will not be accepted.
  • Do attach supporting documents, like police reports or photographs, if available.
  • Do submit two estimates or one paid receipt for the damages you are claiming.
  • Don't leave any sections blank; incomplete forms may be returned.
  • Don't submit your claim after the six-month deadline from the date of the incident.
  • Don't provide vague descriptions; be as detailed as possible about the incident.
  • Don't forget to include your contact information; it’s crucial for follow-up.
  • Don't assume your claim will be processed without proper documentation.

Misconceptions

Understanding the Ld 0274 form is crucial for anyone looking to file a claim against the California Department of Transportation. However, several misconceptions often lead to confusion. Here are four common misunderstandings:

  • The form can be submitted without a signature. Some individuals believe that an unsigned form is acceptable. However, this is not the case. An unsigned and undated form will not be accepted, which means your claim could be delayed or denied.
  • Claims can be filed at any time after an incident. Many people think they can file a claim whenever they want. In reality, California law mandates that claims for personal injury or property damage must be filed within six months from the date of the incident. Missing this deadline can result in losing your right to seek compensation.
  • Providing personal information is optional. While the form indicates that personal information is voluntary, omitting essential details can hinder the processing of your claim. It's important to provide complete and accurate information to avoid unnecessary delays.
  • Only serious injuries qualify for a claim. Some believe that only significant injuries or damages can be claimed. However, the Ld 0274 form is designed for claims of $10,000 or less, which can include minor injuries or property damage. Every claim is valid, regardless of the perceived severity.

By addressing these misconceptions, individuals can navigate the claims process with greater confidence and clarity. Understanding the requirements and limitations of the Ld 0274 form will ultimately help in seeking the compensation deserved.

Key takeaways

Filling out the LD-0274 form correctly is crucial for ensuring your claim against the California Department of Transportation is processed efficiently. Here are some key takeaways to keep in mind:

  • Provide Complete Information: Fill out every section of the form. Incomplete forms may delay processing or result in rejection.
  • Timeliness is Essential: You have six months from the date of the incident to file your claim. Make sure to submit your form within this timeframe to avoid losing your right to compensation.
  • Be Specific About the Incident: Clearly state the date, time, and location of the incident. Providing detailed descriptions helps the reviewing officer understand your claim better.
  • Document Your Claim: Include supporting documents such as photographs of the damage and police reports if available. These can strengthen your case.
  • Sign and Date: Remember to sign and date your claim form. Unsigned or undated forms will not be accepted, which could delay your claim.