Homepage Blank Job Briefing Form
Outline

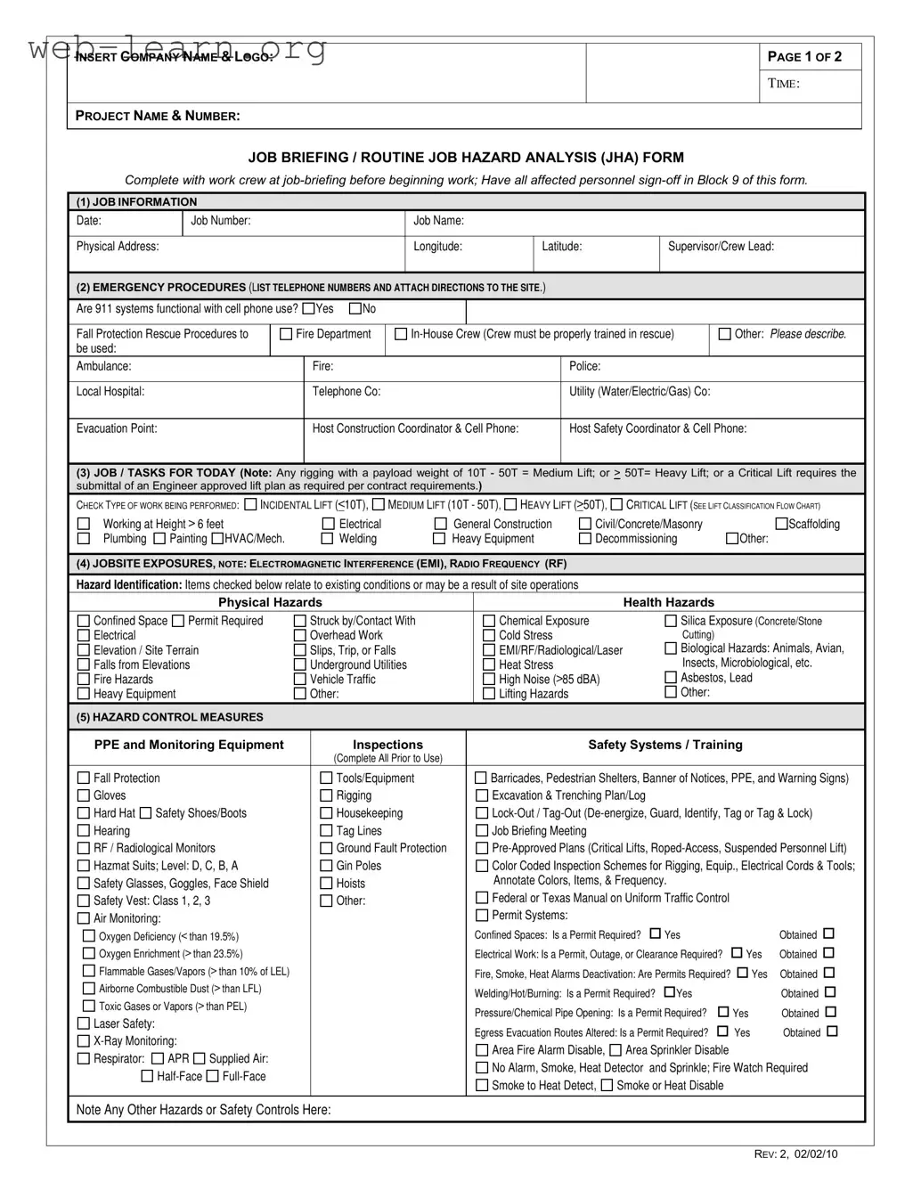
The Job Briefing form serves as a crucial tool for ensuring safety and clarity before commencing any work on a project. It provides a structured approach to discussing essential job information, including the project name, number, and the specific tasks to be performed. Before starting work, it is vital for all crew members to gather and review this form together, facilitating a comprehensive understanding of the day’s objectives and potential hazards. The form highlights emergency procedures, including key telephone numbers and evacuation points, ensuring that everyone is prepared for unexpected situations. It also outlines job site exposures, identifying various physical and health hazards that could arise during the workday. Additionally, the form emphasizes the importance of hazard control measures, detailing the necessary personal protective equipment (PPE) and monitoring equipment required for the job. By documenting this information, the Job Briefing form not only enhances communication among team members but also reinforces a culture of safety, helping to prevent accidents and promote a proactive approach to risk management.

Sample - Job Briefing Form

INSERT COMPANY NAME & LOGO:

PROJECT NAME & NUMBER:

PAGE 1 OF 2

TIME:

JOB BRIEFING / ROUTINE JOB HAZARD ANALYSIS (JHA) FORM

Complete with work crew at job-briefing before beginning work; Have all affected personnel sign-off in Block 9 of this form.

(1) JOB INFORMATION

Date:

Job Number:

Job Name:

 

 

 

Physical Address:

 

Longitude:

 

 

 

Latitude:

Supervisor/Crew Lead:

(2)EMERGENCY PROCEDURES (LIST TELEPHONE NUMBERS AND ATTACH DIRECTIONS TO THE SITE.)

Are 911 systems functional with cell phone use?

Yes

No

 

 

 

 

 

 

 

 

 

 

 

Fall Protection Rescue Procedures to

Fire Department

In-House Crew (Crew must be properly trained in rescue)

 

Other: PLEASE DESCRIBE.

be used:

 

 

 

 

 

 

 

Ambulance:

 

Fire:

 

 

Police:

 

 

 

 

 

 

 

Local Hospital:

 

Telephone Co:

 

Utility (Water/Electric/Gas) Co:

 

Evacuation Point:

Host Construction Coordinator & Cell Phone:

Host Safety Coordinator & Cell Phone:

(3)JOB / TASKS FOR TODAY (Note: Any rigging with a payload weight of 10T - 50T = Medium Lift; or > 50T= Heavy Lift; or a Critical Lift requires the submittal of an Engineer approved lift plan as required per contract requirements.)

CHECK TYPE OF WORK BEING PERFORMED:

INCIDENTAL LIFT (<10T),

MEDIUM LIFT (10T - 50T),

HEAVY LIFT (>50T),

CRITICAL LIFT (SEE LIFT CLASSIFICATION FLOW CHART)

Working at Height > 6 feet

Plumbing Painting HVAC/Mech.

Electrical Welding

General Construction Heavy Equipment

Civil/Concrete/Masonry Decommissioning

Scaffolding

Other:

(4) JOBSITE EXPOSURES, NOTE: ELECTROMAGNETIC INTERFERENCE (EMI), RADIO FREQUENCY (RF)

HAZARD IDENTIFICATION: Items checked below relate to existing conditions or may be a result of site operations

 

 

Physical Hazards

 

Health Hazards

 

 

 

 

 

 

 

 

Confined Space

Permit Required

Struck by/Contact With

Chemical Exposure

Silica Exposure (Concrete/Stone

 

Electrical

 

Overhead Work

Cold Stress

Cutting)

 

Elevation / Site Terrain

Slips, Trip, or Falls

EMI/RF/Radiological/Laser

Biological Hazards: Animals, Avian,

 

Falls from Elevations

Underground Utilities

Heat Stress

Insects, Microbiological, etc.

 

Fire Hazards

 

Vehicle Traffic

High Noise (>85 dBA)

Asbestos, Lead

 

Heavy Equipment

 

Other:

Lifting Hazards

Other:

 

 

 

 

 

 

 

(5) HAZARD CONTROL MEASURES

 

 

 

 

 

 

 

 

 

 

 

PPE and Monitoring Equipment

Inspections

Safety Systems / Training

 

 

 

 

 

(Complete All Prior to Use)

 

 

 

 

 

Fall Protection

 

Tools/Equipment

Barricades, Pedestrian Shelters, Banner of Notices, PPE, and Warning Signs)

Gloves

 

 

Rigging

Excavation & Trenching Plan/Log

 

 

 

Hard Hat

Safety Shoes/Boots

Housekeeping

Lock-Out / Tag-Out (De-energize, Guard, Identify, Tag or Tag & Lock)

 

Hearing

 

 

Tag Lines

Job Briefing Meeting

 

 

 

 

RF / Radiological Monitors

Ground Fault Protection

Pre-Approved Plans (Critical Lifts, Roped-Access, Suspended Personnel Lift)

Hazmat Suits; Level: D, C, B, A

Gin Poles

Color Coded Inspection Schemes for Rigging, Equip., Electrical Cords & Tools;

Safety Glasses, Goggles, Face Shield

Hoists

Annotate Colors, Items, & Frequency.

 

 

 

 

 

 

 

 

Safety Vest: Class 1, 2, 3

Other:

Federal or Texas Manual on Uniform Traffic Control

 

 

 

 

 

 

 

Air Monitoring:

 

 

Permit Systems:

 

 

 

 

 

 

 

 

 

 

 

Oxygen Deficiency (< than 19.5%)

 

Confined Spaces: Is a Permit Required? Yes

 

Obtained

Oxygen Enrichment (> than 23.5%)

 

Electrical Work: Is a Permit, Outage, or Clearance Required? Yes

Obtained

Flammable Gases/Vapors (> than 10% of LEL)

 

Fire, Smoke, Heat Alarms Deactivation: Are Permits Required? Yes

Obtained

Airborne Combustible Dust (> than LFL)

 

Welding/Hot/Burning: Is a Permit Required? Yes

 

Obtained

 

 

 

 

 

Toxic Gases or Vapors (> than PEL)

 

Pressure/Chemical Pipe Opening: Is a Permit Required?

Yes

Obtained

Laser Safety:

 

 

 

 

 

 

Egress Evacuation Routes Altered: Is a Permit Required?

Yes

Obtained

X-Ray Monitoring:

 

 

 

 

Area Fire Alarm Disable,

Area Sprinkler Disable

 

 

Respirator:

APR

Supplied Air:

 

 

 

 

No Alarm, Smoke, Heat Detector and Sprinkle; Fire Watch Required

 

 

Half-Face

Full-Face

 

 

 

 

Smoke to Heat Detect,

Smoke or Heat Disable

 

 

 

 

 

 

 

 

 

 

 

 

 

 

 

 

 

Note Any Other Hazards or Safety Controls Here:

REV: 2, 02/02/10

INSERT COMPANY NAME & LOGO:

PROJECT NAME & NUMBER:

PAGE 2 OF 2

TIME:

JOB BRIEFING / ROUTINE JOB HAZARD ANALYSIS (JHA) FORM

(6)COMPLETE FOR CIVIL WORK (PLEASE NOTE: ENGINEER APPROVED TRENCHING PLAN REQUIRED FOR TRENCHES > 5’)

NOT APPLICABLE

NOTE: Notify and confirm proper procedures, mitigation and/or protective steps taken with your company’s designated Safety Representative & Site Manager before

entering: any trench or any general excavation that is greater than 5’ deep; or any Confined Space.

1. Describe type and depth of excavations

Type A Soil/Rock

Type B Soil/Rock

Type C Soil/Rock:

Dig-Tess / One Call

2. Cave-in / Engulfment control measures to be used if excavation will be greater than 5 feet and personnel are entering the trench.

Shoring

Trench

Shield/Box

Ladder in Trench > 5 Feet & Every 25’ Sump Pump LOTO:

3.Describe elevation/site terrain/environmental concerns or hazards:

4.Describe hazards with site/vehicle access (High Traffic, Heavy Haul, Boom Cranes, and Storage of Materials/HazMat:

5.Describe the type of electrical or gas concerns or hazards (e.g. Electrical/Gas/Fiber Optic Lines):

Sloping

Benching

(7) FALL PROTECTION & USING SUSPENDED PERSONNEL PLATFORM (Complete for Working at Heights and Roped-Access)

NOT APPLICABLE

Type of Elevated Work & Height:

 

 

Type of Tower or Building:

 

 

 

Describe the fall protection system to be used when working aloft.

Lifeline

Personal Fall Arrest

Safety Monitor

Qualified Climber

Safety Net

Ladder Safety Device

Roped Access (Requires Roped Access JHA):

 

 

 

 

 

Fall protection to be used.

Full Body Harness

One Lanyard

Two Lanyards (100%)

Rope Grab

Cable Grab

Retractable Lifeline

Ascenders/Descenders

Anchorage Points, Belay, & Straps:

 

 

 

 

 

 

Ropes

Has each employee inspected his or her fall protection equipment?

 

Yes

No

 

 

 

Hoisting Equipment to be used: < 20’ Encroachment of Power Lines,

Yes

No; If yes, ID Voltage _______KV; De-energize/Test/Ground Lines

Yes

Suspended Personnel Platform/basket

Forklift Platform

Crane/Boom/Aerial Truck

Scissor/Snorkel Lift

Gin Pole

Roped Access

Suspended Personnel Platform Checklist and/or Critical Lift Plan Completed?

Yes

No

 

 

 

 

 

 

 

 

 

 

 

No

 

(8) REVIEWS AND SIGNATURES

 

 

 

 

 

 

 

 

 

 

 

 

 

 

 

 

 

 

 

GC Superintendent /Foreman

 

 

Lower-tier Subcontractor Supervisor

 

 

 

 

 

 

 

 

 

 

Name

Signature/Date

 

Name

Signature/Date

 

 

 

 

 

 

 

 

 

 

 

 

 

 

 

 

 

 

 

 

 

 

(9)PROJECT PERSONNEL ACKNOWLEDGEMENT (ALL AFFECTED PERSONNEL SIGN AFTER JOB BRIEFING)

Name:

Company:

CPR / First Aid

Name:

Company:

 

Yes

 

Yes

 

Yes

Yes

Yes

Yes

Yes

Yes

Yes

Yes

Yes

Yes

REV: 2, 02/02/10

Form Information

Fact Name Description
Job Briefing Requirement The Job Briefing form must be completed with the work crew before starting any work on site.
Emergency Procedures Emergency contact numbers and directions to the site should be listed on the form.
Jobsite Exposures Identifying potential hazards such as physical and health hazards is crucial for safety.
Governing Law This form is governed by OSHA regulations and state-specific safety laws.

Detailed Guide for Filling Out Job Briefing

Completing the Job Briefing form is an essential step before starting any work. This form helps ensure that all necessary information is gathered and that everyone involved understands their roles and responsibilities, as well as the hazards they may encounter. Follow the steps below to fill out the form accurately.

  1. Insert Company Name & Logo: Write the name of your company and attach the company logo at the top of the form.
  2. Project Information: Fill in the project name and number. Include the date, job number, job name, physical address, longitude, latitude, and the supervisor or crew lead’s name.
  3. Emergency Procedures: List emergency telephone numbers and attach directions to the job site. Indicate whether 911 systems are functional with cell phone use. Describe any additional emergency procedures that may be necessary.
  4. Job/Tasks for Today: Check the type of work being performed, such as plumbing, electrical, or heavy equipment operation. Be sure to note if any lifting is involved and the corresponding weight classification.
  5. Jobsite Exposures: Identify potential hazards at the job site by checking the appropriate boxes for physical and health hazards. Include any specific concerns such as confined spaces or high noise levels.
  6. Hazard Control Measures: List the personal protective equipment (PPE) and monitoring equipment that will be used. Ensure all safety systems and training are completed prior to use.
  7. Civil Work Information: If applicable, describe the type and depth of excavations. Include cave-in control measures and any environmental concerns related to the site.
  8. Fall Protection: If working at heights, describe the fall protection system that will be in place. Ensure each employee has inspected their fall protection equipment.
  9. Reviews and Signatures: Obtain signatures from the general contractor superintendent or foreman and the lower-tier subcontractor supervisor, along with the date.
  10. Project Personnel Acknowledgement: Have all affected personnel sign in the designated area after the job briefing is completed.

Once the form is filled out, it should be reviewed by the supervisor and shared with all team members to ensure everyone is on the same page before work begins.

Obtain Answers on Job Briefing

  1. What is the purpose of the Job Briefing form?

    The Job Briefing form is designed to ensure that all crew members are aware of the tasks, hazards, and safety measures before starting work. It promotes communication and safety awareness among team members, reducing the risk of accidents.

  2. Who needs to complete the Job Briefing form?

    The form must be completed by the supervisor or crew lead in collaboration with all affected personnel. Each team member should sign off in Block 9 to acknowledge their understanding of the job briefing.

  3. What information is required in the Job Information section?

    This section includes details such as the date, job number, job name, physical address, longitude, latitude, and the name of the supervisor or crew lead. Accurate information is crucial for tracking and safety purposes.

  4. What emergency procedures should be listed?

    Emergency procedures must include telephone numbers for emergency services, directions to the site, and any specific rescue procedures. It is essential to confirm the functionality of 911 systems, especially with cell phone use.

  5. How should job tasks be categorized?

    Job tasks should be categorized based on the type of work being performed, such as incidental lifts, medium lifts, heavy lifts, or critical lifts. This classification helps determine the necessary precautions and planning required for each task.

  6. What types of jobsite exposures should be noted?

    Jobsite exposures include physical and health hazards, such as slips, trips, falls, chemical exposure, and electrical hazards. Identifying these exposures is vital for implementing appropriate safety measures.

  7. What hazard control measures should be included?

    Hazard control measures can include personal protective equipment (PPE), safety systems, and training. Examples are fall protection, hard hats, gloves, and lock-out/tag-out procedures. These measures help mitigate risks associated with the job.

  8. What is required for civil work?

    For civil work, an engineer-approved trenching plan is necessary for trenches deeper than 5 feet. The form should detail the type of soil, cave-in control measures, and any hazards related to site access and utilities.

  9. What fall protection measures are necessary when working at heights?

    When working at heights, a fall protection system must be in place. This may include full body harnesses, lanyards, and safety nets. Employees should inspect their fall protection equipment before use to ensure safety.

  10. What is the significance of the acknowledgment section?

    The acknowledgment section is critical as it requires all affected personnel to sign after the job briefing. This confirms that each team member understands the hazards and safety measures discussed, fostering accountability and safety compliance.

Common mistakes

Filling out the Job Briefing form is crucial for ensuring safety and compliance on any project. However, mistakes can happen, and certain common errors can lead to significant issues. One frequent mistake is failing to include all necessary information. Each section of the form is designed to gather specific details about the job, from the project name to emergency procedures. Omitting even a single piece of information can create confusion later, especially in emergency situations where quick access to details is vital.

Another common error is not having all affected personnel sign off in Block 9. This step is essential because it ensures that everyone involved is aware of the hazards and procedures associated with the job. Without these signatures, accountability can become murky, and it may be unclear who has been briefed on safety measures. This oversight can lead to misunderstandings and potentially dangerous situations on-site.

People often rush through the hazard identification section as well. This part of the form requires careful consideration of various physical and health hazards that may be present. Skipping over this section or failing to check all applicable hazards can leave workers unprepared for potential risks. It is crucial to take the time to thoroughly assess the job site and identify all relevant hazards before proceeding.

Another mistake involves inadequate documentation of emergency procedures. The form asks for emergency contact numbers and directions to the site, which are essential in case of an incident. Failing to provide clear and accurate information can delay response times and exacerbate emergencies. It’s important to ensure that this section is completed thoughtfully, with all necessary details included.

Lastly, neglecting to review the form before submission can lead to errors that could have been easily caught. A quick review allows the team to verify that all sections are complete and accurate. Taking this extra step can prevent miscommunication and ensure that everyone is on the same page regarding safety protocols. By avoiding these common mistakes, teams can enhance safety and efficiency on the job site.

Documents used along the form

When preparing for a job, it is crucial to have all necessary documentation in order to ensure safety and compliance. The Job Briefing form is just one of several important documents that help outline the tasks, hazards, and procedures involved in a project. Below is a list of other forms and documents that are often used alongside the Job Briefing form.

  • Routine Job Hazard Analysis (JHA): This document identifies potential hazards associated with specific tasks and outlines control measures to mitigate risks. It serves as a crucial tool for ensuring worker safety on site.
  • Emergency Action Plan: This plan outlines the procedures to follow in case of emergencies, including evacuation routes, communication methods, and responsibilities. It ensures that everyone knows how to respond to various emergency situations.
  • Personal Protective Equipment (PPE) Assessment: This assessment identifies the necessary protective gear required for specific tasks. It ensures that workers are equipped with the right PPE to minimize exposure to hazards.
  • Safety Data Sheets (SDS): SDS provide detailed information about hazardous materials used on site. They include handling instructions, health hazards, and emergency measures, ensuring that workers are informed about the substances they may encounter.
  • Site-Specific Safety Plan: This plan outlines safety procedures tailored to the unique conditions of a job site. It includes details on site hazards, safety protocols, and emergency contacts, helping to create a safer work environment.
  • Tool and Equipment Inspection Checklist: This checklist ensures that all tools and equipment are inspected for safety and functionality before use. Regular inspections help prevent accidents and equipment failures on the job site.
  • Confined Space Entry Permit: This permit is required for any work conducted in confined spaces. It ensures that proper safety measures are in place, including monitoring for hazardous atmospheres and ensuring that rescue procedures are established.
  • Hot Work Permit: This permit is necessary for any work involving open flames or sparks. It outlines safety precautions to prevent fires and ensures that the area is prepared for hot work activities.
  • Training Records: These records document the safety training that workers have completed. Keeping accurate training records helps ensure that all personnel are qualified and prepared for their specific job tasks.

Using these documents in conjunction with the Job Briefing form helps create a comprehensive safety plan for any project. Proper preparation not only enhances safety but also fosters a culture of accountability and awareness among all team members.

Similar forms

  • Job Safety Analysis (JSA): Similar to the Job Briefing form, a JSA outlines the hazards associated with specific tasks and the necessary precautions to mitigate those risks. Both documents aim to enhance safety awareness among workers before commencing tasks.
  • Pre-Job Safety Meeting Agenda: This document serves as a guide for discussing safety topics before starting work. Like the Job Briefing form, it emphasizes the importance of communication and planning to ensure a safe work environment.
  • Incident Report Form: While the Incident Report documents accidents after they occur, it shares a common goal with the Job Briefing form: to improve safety practices. Both forms highlight the need for awareness and preventive measures.
  • Safety Data Sheet (SDS): An SDS provides detailed information about hazardous materials on-site. Similar to the Job Briefing form, it informs workers about potential hazards and necessary safety measures related to specific substances.
  • Toolbox Talk Checklist: This checklist is used during informal safety meetings to discuss specific safety topics. Like the Job Briefing form, it encourages team engagement and emphasizes the importance of safety in daily operations.
  • Work Permit: A work permit outlines specific safety requirements for particular tasks, especially high-risk activities. Both documents aim to ensure that workers are aware of and comply with safety protocols before starting work.
  • Emergency Response Plan: This plan outlines procedures for responding to emergencies. Similar to the Job Briefing form, it prepares workers for potential hazards and ensures they know how to react in crisis situations.
  • Equipment Inspection Checklist: This checklist ensures that tools and equipment are safe for use. Like the Job Briefing form, it focuses on preventing accidents by ensuring that all necessary precautions are taken before work begins.
  • Confined Space Entry Permit: This permit is required for work in confined spaces and details safety measures to protect workers. It aligns with the Job Briefing form’s focus on identifying hazards and ensuring safety protocols are followed.
  • Personal Protective Equipment (PPE) Assessment: This assessment identifies the necessary PPE for specific tasks. Similar to the Job Briefing form, it emphasizes the importance of using appropriate safety gear to minimize risks on the job site.

Dos and Don'ts

When filling out the Job Briefing form, there are several important practices to keep in mind. Here is a list of things to do and things to avoid.

  • Do ensure that all required fields are completed accurately.
  • Do have all affected personnel sign off in Block 9 after the job briefing.
  • Do double-check emergency procedures and contact numbers before submission.
  • Do clearly describe the job tasks and any associated hazards.
  • Do review and confirm safety measures with the designated Safety Representative.
  • Don't leave any sections blank unless they are marked as not applicable.
  • Don't rush through the form; take time to ensure accuracy.
  • Don't forget to include details about the type of work being performed.
  • Don't ignore the need for permits if required for specific tasks.
  • Don't overlook the importance of documenting any hazards or safety controls.

Following these guidelines can help ensure that the Job Briefing form is completed correctly and that safety is prioritized on the job site.

Misconceptions

Here are eight common misconceptions about the Job Briefing form:

  • It is optional to complete the form. Many believe that the Job Briefing form is just a suggestion. In reality, it is essential for ensuring safety and compliance before starting any job.
  • Only the supervisor needs to sign the form. Some think that only the supervisor’s signature is necessary. However, all affected personnel must sign off to acknowledge their understanding of the job and safety procedures.
  • Emergency procedures are not necessary for every job. This form emphasizes the importance of emergency procedures for all jobs, regardless of size or complexity. Every job site can present unexpected risks.
  • Job Briefing forms are only for high-risk jobs. Many assume that these forms are only required for hazardous tasks. In truth, they are important for all jobs to promote a culture of safety.
  • Once completed, the form does not need to be revisited. Some believe that the Job Briefing form is a one-time task. In fact, it should be revisited and updated as job conditions change or new hazards are identified.
  • The form is only for documentation purposes. While documentation is important, the primary purpose of the Job Briefing form is to facilitate communication and ensure everyone is aware of potential hazards and safety measures.
  • Hazard control measures are optional. Some individuals think that they can skip hazard control measures if they feel confident. However, these measures are critical for minimizing risks and ensuring safety on the job site.
  • Only one person needs to conduct the briefing. There is a misconception that one person can handle the entire briefing. In reality, all crew members should participate in the discussion to ensure everyone understands their roles and responsibilities.

Key takeaways

Filling out and utilizing the Job Briefing form is crucial for ensuring safety and efficiency on the job site. Here are some key takeaways to keep in mind:

  • Complete the Form Thoroughly: Ensure that all sections of the Job Briefing form are filled out completely. This includes job information, emergency procedures, and details about the tasks for the day.
  • Involve the Entire Crew: Conduct the job briefing with the entire work crew present. Every affected personnel should understand the job requirements and safety measures before work begins.
  • Emergency Procedures Are Vital: Clearly list emergency contact numbers and procedures. This information should be readily accessible to everyone on the crew, as it can save lives in critical situations.
  • Identify Job Hazards: Take the time to identify and discuss potential hazards associated with the job tasks. This includes both physical and health hazards that may arise during work.
  • Control Measures Must Be Established: Outline specific hazard control measures that will be implemented. This includes personal protective equipment (PPE) and any necessary safety systems or training.
  • Signatures Are Required: Ensure that all personnel acknowledge their understanding of the briefing by signing the form. This step is essential for accountability and reinforces the importance of safety practices.

By following these guidelines, the Job Briefing form can serve as an effective tool in promoting safety and awareness on the job site.