Homepage Blank Indiana State 415 23 Form
Outline

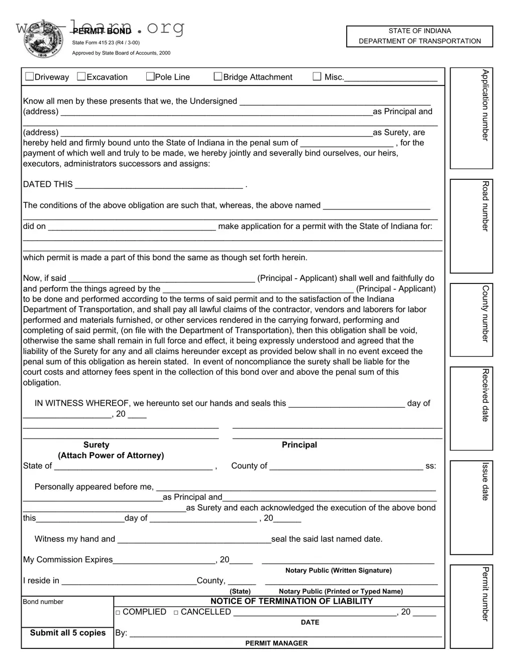
The Indiana State 415 23 form, also known as the Permit Bond, plays a crucial role in ensuring that individuals or companies comply with state regulations when undertaking specific projects. This form is primarily used in the context of applications for permits related to driveway excavation, pole line installations, and bridge attachments, among other miscellaneous projects. When filling out the form, the applicant, referred to as the Principal, must provide their name and address, along with the Surety, who guarantees the obligations of the Principal. The bond amount is specified, and it binds both parties to fulfill the terms of the permit to the satisfaction of the Indiana Department of Transportation. If the Principal fails to meet these obligations, the Surety is responsible for covering any claims related to labor, materials, or services rendered. The form includes sections for notarization and must be submitted in multiple copies. This structure ensures that all parties are held accountable, protecting the interests of the state and those involved in the project.

Sample - Indiana State 415 23 Form

PERMIT BOND

State Form 415 23 (R4 / 3-00)

Approved by State Board of Accounts, 2000

STATE OF INDIANA

DEPARTMENT OF TRANSPORTATION

Driveway

Excavation

Pole Line

Bridge Attachment

Misc.____________________

Know all men by these presents that we, the Undersigned _________________________________________

(address) ___________________________________________________________________as Principal and

_________________________________________________________________________________________

(address) ___________________________________________________________________as Surety, are

hereby held and firmly bound unto the State of Indiana in the penal sum of ____________________ , for the

payment of which well and truly to be made, we hereby jointly and severally bind ourselves, our heirs, executors, administrators successors and assigns:

DATED THIS ____________________________________ .

The conditions of the above obligation are such that, whereas, the above named _______________________

_________________________________________________________________________________________

did on ____________________________________ make application for a permit with the State of Indiana for:

__________________________________________________________________________________________

__________________________________________________________________________________________

which permit is made a part of this bond the same as though set forth herein.

Now, if said ________________________________________ (Principal - Applicant) shall well and faithfully do

and perform the things agreed by the _________________________________________ (Principal - Applicant)

to be done and performed according to the terms of said permit and to the satisfaction of the Indiana Department of Transportation, and shall pay all lawful claims of the contractor, vendors and laborers for labor performed and materials furnished, or other services rendered in the carrying forward, performing and completing of said permit, (on file with the Department of Transportation), then this obligation shall be void, otherwise the same shall remain in full force and effect, it being expressly understood and agreed that the liability of the Surety for any and all claims hereunder except as provided below shall in no event exceed the penal sum of this obligation as herein stated. In event of noncompliance the surety shall be liable for the court costs and attorney fees spent in the collection of this bond over and above the penal sum of this obligation.

IN WITNESS WHEREOF, we hereunto set our hands and seals this _________________________ day of

___________________, 20 ____

 

__________________________________________

_____________________________________________

__________________________________________

_____________________________________________

Surety

Principal

(Attach Power of Attorney)

 

State of __________________________________ ,

County of _________________________________ ss:

Personally appeared before me, ____________________________________________________________

______________________________as Principal and______________________________________________

___________________________________as Surety and each acknowledged the execution of the above bond

this___________________day of _______________________ , 20______

Witness my hand and _________________________________seal the said last named date.

My Commission Expires______________________, 20_____

_____________________________________

 

 

Notary Public (Written Signature)

I reside in _____________________________County, ______

_____________________________________

 

(State)

Notary Public (Printed or Typed Name)

Bond number

NOTICE OF TERMINATION OF LIABILITY

COMPLIED CANCELLED ___________________________________, 20 _____

DATE

Submit all 5 copies By: ___________________________________________________________________

PERMIT MANAGER

Application number

Road number

County number Received date

Issue date

Permit number

Form Information

Fact Name Description
Form Title The form is officially titled "Permit Bond State Form 415 23."
Approval This form was approved by the State Board of Accounts in 2000.
Governing Law The form is governed by Indiana state law regarding permits and bonds.
Purpose The form serves as a bond for various activities, including driveway excavation and bridge attachments.
Principal and Surety The bond requires a Principal (the applicant) and a Surety (the guarantor).
Liability The Surety is liable for claims related to the permit, up to the penal sum stated in the bond.
Noncompliance Consequences If the Principal does not comply with the terms, the Surety must cover court costs and attorney fees.
Notary Requirement The form must be notarized, confirming the identities of the Principal and Surety.

Detailed Guide for Filling Out Indiana State 415 23

Filling out the Indiana State 415 23 form requires careful attention to detail. This form is important for ensuring compliance with state regulations. After completing the form, it must be submitted along with any required attachments to the appropriate authorities.

  1. Obtain the form: Download the Indiana State 415 23 form from the official Indiana Department of Transportation website or request a physical copy from the relevant office.
  2. Fill in the Principal's information: In the first blank, write the name of the Principal (the applicant). Then, provide the Principal's address in the following space.
  3. Provide Surety details: Write the name of the Surety (the bonding company) in the designated area. Fill in the Surety's address as well.
  4. Enter the penal sum: In the space labeled "penal sum," write the amount for which the bond is being issued.
  5. Date the form: Fill in the date when the bond is being executed.
  6. Describe the permit application: In the section provided, clearly describe the purpose of the permit for which the bond is being issued.
  7. Principal's signature: The Principal must sign and date the form in the designated area.
  8. Surety's signature: The Surety must also sign and date the form. Ensure to attach the Power of Attorney if required.
  9. Notary acknowledgment: Take the completed form to a notary public. The notary will need to witness the signatures and complete the acknowledgment section.
  10. Complete additional sections: Fill out any additional information required, such as the bond number, application number, road number, county number, received date, issue date, and permit number.
  11. Submit copies: Make sure to submit all five copies of the completed form to the appropriate permit manager.

Obtain Answers on Indiana State 415 23

  1. What is the Indiana State 415 23 form?

    The Indiana State 415 23 form is a permit bond required by the Indiana Department of Transportation. It serves as a guarantee that the principal (the applicant) will fulfill the obligations outlined in their permit application, such as performing work related to driveway excavation, pole line installation, or other projects. The bond ensures that all lawful claims from contractors, vendors, and laborers will be satisfied.

  2. Who needs to fill out this form?

    This form must be filled out by individuals or entities applying for a permit from the Indiana Department of Transportation. If you are planning to conduct activities that fall under the jurisdiction of this department, such as construction or excavation, you will need to complete this form as part of your application process.

  3. What information is required on the form?

    The form requires several key pieces of information, including:

    • The name and address of the principal (the applicant).
    • The name and address of the surety (the entity providing the bond).
    • The specific nature of the permit being applied for.
    • The penal sum of the bond, which is the maximum amount the surety will be liable for.
    • The date of execution and signatures of both the principal and surety.
  4. What happens if the principal does not comply with the permit terms?

    If the principal fails to comply with the terms of the permit, the surety is obligated to cover any lawful claims up to the penal sum stated in the bond. Additionally, the surety may also be responsible for court costs and attorney fees incurred during the collection of the bond beyond the penal sum.

  5. How many copies of the form need to be submitted?

    A total of five copies of the Indiana State 415 23 form must be submitted. This ensures that all parties involved, including the Indiana Department of Transportation, have the necessary documentation for their records.

  6. Is notarization required for this form?

    Yes, the Indiana State 415 23 form must be notarized. The signatures of both the principal and the surety need to be acknowledged by a notary public, who will also provide their commission expiration date. This adds an extra layer of validity to the bond.

  7. What should I do if I need to cancel the bond?

    If you need to cancel the bond, you must indicate this on the form in the designated area for “Notice of Termination of Liability.” Ensure that you complete this section accurately and submit it to the appropriate authorities to formally terminate the bond.

Common mistakes

Filling out the Indiana State 415 23 form can be a straightforward process, but several common mistakes can lead to delays or complications. One frequent error occurs when individuals fail to provide complete and accurate information in the designated fields. Each section must be filled out thoroughly, as incomplete submissions may result in the application being rejected.

Another mistake is neglecting to include the correct penal sum. This figure represents the amount of money for which the surety is liable. Misstating this amount can create confusion and may affect the bond's validity. It is essential to verify that this figure matches the requirements of the specific permit being applied for.

People often overlook the importance of signatures. Both the Principal and the Surety must sign the form. Without these signatures, the bond is not legally binding. Additionally, the form requires a notary public’s acknowledgment. Failing to have the document notarized can invalidate the bond, causing further complications in the application process.

Another common error is related to the selection of the type of permit. The form allows for multiple permit types, such as driveway excavation or bridge attachment. Misidentifying the permit type can lead to processing delays or even denial of the application. It is crucial to ensure that the chosen permit aligns with the intended project.

Individuals sometimes forget to attach the necessary documentation, such as the Power of Attorney. This document is essential for the Surety to act on behalf of the Principal. Without it, the Surety may not be recognized, and the bond could be deemed ineffective.

Additionally, applicants frequently neglect to check the expiration date of the notary's commission. If the notary's commission has expired at the time of signing, it can render the notarization invalid. It is advisable to confirm that the notary is authorized to perform their duties at the time of the bond's execution.

Another mistake involves not submitting all required copies of the form. The Indiana State 415 23 form requires multiple copies to be submitted to the appropriate authorities. Failing to provide the correct number of copies can result in delays in processing the application.

Lastly, individuals may overlook the importance of reviewing the completed form for any typographical errors. Simple mistakes, such as misspelled names or incorrect addresses, can lead to significant issues down the line. A thorough review can help catch these errors before submission.

Documents used along the form

The Indiana State Form 415 23 is a Permit Bond used primarily for projects that require permits from the Indiana Department of Transportation. Several other forms and documents are often utilized in conjunction with this bond to ensure compliance and facilitate the permitting process. Below is a list of these documents, each with a brief description.

  • Application for Permit: This document is submitted by the applicant to request permission for specific activities such as driveway excavations or bridge attachments. It outlines the nature of the work and relevant details necessary for approval.
  • Certificate of Insurance: This document verifies that the applicant holds adequate insurance coverage for the project. It protects against potential liabilities arising from accidents or damages during the execution of the permitted work.
  • Performance Bond: Similar to the Permit Bond, this document guarantees that the contractor will fulfill their obligations as outlined in the contract. It provides financial assurance to the project owner and is often required for larger projects.
  • Notice of Commencement: This form is filed to officially announce the start of construction activities. It provides necessary information to local authorities and can help prevent disputes regarding the timeline of the project.
  • Change Order: If modifications to the original project scope are necessary, a Change Order is used to document these changes. It ensures that all parties are aware of the adjustments and agree to the new terms.
  • Final Inspection Report: Upon completion of the project, this report is generated to confirm that all work has been performed according to the approved plans and specifications. It serves as a record that the project meets all regulatory requirements.

These documents collectively support the permitting process, ensuring that all legal and regulatory obligations are met. Proper completion and submission of each form are essential for the smooth operation of construction and related activities in Indiana.

Similar forms

The Indiana State Form 415 23 is a permit bond used in various situations related to construction and excavation. Several other documents serve similar purposes in ensuring compliance and protecting parties involved in construction or service agreements. Here are eight documents that share similarities with the Indiana State 415 23 form:

  • Performance Bond: This document guarantees that a contractor will complete a project according to the contract terms. Like the 415 23 form, it protects the project owner from financial loss if the contractor fails to fulfill their obligations.
  • Payment Bond: This bond ensures that subcontractors and suppliers are paid for their work. Similar to the 415 23 form, it secures payment obligations and helps prevent liens on the property.
  • Construction Permit Application: This form is required before beginning construction. It outlines the proposed work and ensures compliance with local regulations, much like the permit application referenced in the 415 23 form.
  • Surety Bond: A surety bond involves three parties: the principal, the obligee, and the surety. It guarantees that the principal will meet their obligations, similar to the assurances provided in the 415 23 form.
  • Indemnity Agreement: This agreement protects one party from losses or damages caused by another party. It serves a similar protective purpose as the obligations outlined in the 415 23 form.
  • Liability Insurance Certificate: This document shows proof of insurance coverage for potential claims. It functions similarly to the bond by providing financial security against claims arising from the project.
  • Notice of Commencement: This document officially starts a construction project and notifies all parties involved. It parallels the initiation of obligations found in the 415 23 form.
  • Contractor Agreement: This is a formal contract between a property owner and a contractor. It outlines the scope of work and obligations, similar to the commitments made by the principal in the 415 23 form.

Dos and Don'ts

When filling out the Indiana State Form 415 23, it is essential to approach the task with care and attention to detail. Here are five important dos and don'ts to consider:

  • Do ensure that all fields are completed accurately. Incomplete forms can lead to delays or rejections.
  • Do double-check the addresses provided for both the Principal and Surety. Accuracy is crucial for legal validity.
  • Do attach the necessary documentation, such as the Power of Attorney for the Surety, to avoid any complications.
  • Do keep a copy of the completed form for your records. This will be helpful for future reference.
  • Do submit all five copies of the form as required. This ensures that all relevant parties receive their necessary documentation.
  • Don't rush through the form. Taking your time can prevent mistakes that may be costly later.
  • Don't leave any sections blank. Each part of the form serves a purpose and should be filled out completely.
  • Don't forget to date and sign the form. An unsigned form may not be considered valid.
  • Don't overlook the importance of the Notary Public's signature. This step is crucial for the legitimacy of the bond.
  • Don't submit the form without reviewing it thoroughly. Errors can lead to complications in processing your permit.

By following these guidelines, you can navigate the process of completing the Indiana State Form 415 23 with greater confidence and clarity.

Misconceptions

  • Misconception 1: The Indiana State 415 23 form is only for large construction projects.
  • This form applies to a variety of activities, including smaller projects like driveway excavations and utility pole installations. It is not limited to large-scale construction.

  • Misconception 2: Only licensed contractors can submit the form.
  • While having a licensed contractor can be beneficial, individuals can also apply for permits using this form. The key is ensuring compliance with local regulations.

  • Misconception 3: The bond amount is fixed and cannot be changed.
  • The penal sum of the bond can vary based on the scope of the project. It is determined during the application process and can be adjusted as necessary.

  • Misconception 4: The surety is automatically liable for all claims.
  • The surety's liability is limited to the penal sum stated in the bond. Additional costs, such as attorney fees, may be covered in specific circumstances.

  • Misconception 5: Once the bond is submitted, there are no further obligations.
  • Submitting the bond does not end the obligations. The principal must fulfill all terms of the permit to avoid penalties or claims against the bond.

  • Misconception 6: The Indiana Department of Transportation does not review the bond.
  • The Department reviews the bond as part of the permit application process to ensure compliance with state regulations and standards.

  • Misconception 7: The form is only required for public projects.
  • This form is also necessary for private projects that may impact public infrastructure or require permits from the state.

  • Misconception 8: A notary public is not needed for the bond.
  • A notary public must witness the signing of the bond to ensure its validity. This step is crucial for legal enforcement.

Key takeaways

When filling out and using the Indiana State 415 23 form, there are several important considerations to keep in mind:

  • Principal and Surety Information: Clearly provide the names and addresses of both the principal (the applicant) and the surety. This information is crucial for establishing the parties involved in the bond.
  • Penal Sum: Specify the penal sum for which the bond is issued. This amount represents the maximum liability of the surety and must be clearly stated.
  • Permit Details: Include comprehensive details about the permit application. This includes the type of permit and any relevant descriptions to ensure clarity.
  • Conditions of Obligation: Understand that the bond remains in effect until the principal fulfills all obligations under the permit. Noncompliance can lead to legal consequences.
  • Notarization Requirement: Ensure that the form is notarized. The signatures of both the principal and surety must be acknowledged by a notary public to validate the bond.
  • Submission Instructions: Submit all required copies of the completed form to the appropriate permit manager. Follow the submission guidelines carefully to avoid delays.