Homepage Blank Indiana State 104 Form
Outline

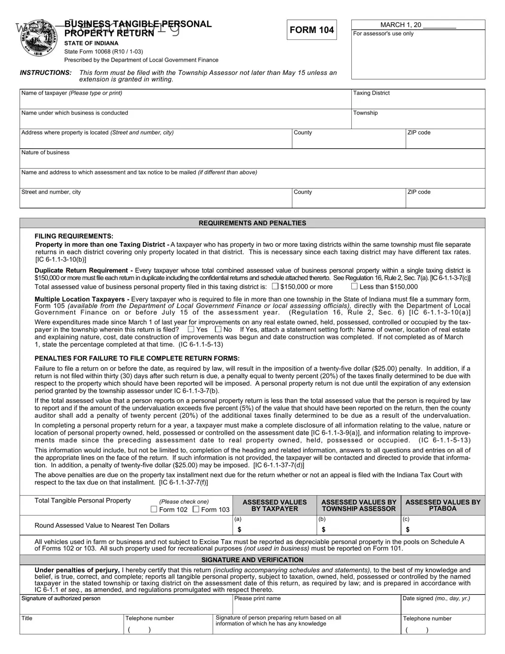
The Indiana State 104 form, formally known as the Business Tangible Personal Property Return, serves as a crucial document for business owners in Indiana. This form must be submitted to the Township Assessor by May 15 each year, unless an extension is granted. It captures essential information about a business's tangible personal property, including its assessed value, nature of the business, and the specific taxing district in which the property is located. For those with property in multiple taxing districts, separate returns are required, ensuring compliance with varying tax rates. The form also mandates that businesses with a total assessed value of $150,000 or more file their returns in duplicate. Notably, any improvements made to real estate since the last assessment must be reported, along with detailed descriptions of the expenditures. Failure to file the form on time can lead to significant penalties, including a flat fee and additional charges based on the value of the property not reported. Understanding the nuances of this form is essential for business owners to navigate the complexities of property tax compliance in Indiana.

Sample - Indiana State 104 Form

BUSINESS TANGIBLE PERSONAL

FORM 104

PROPERTY RETURN

 

 

 

STATE OF INDIANA

State Form 10068 (R10 / 1-03)

Prescribed by the Department of Local Government Finance

INSTRUCTIONS: This form must be filed with the Township Assessor not later than May 15 unless an extension is granted in writing.

MARCH 1, 20 _________

For assessor's use only

Name of taxpayer (Please type or print)

 

Taxing District

 

 

 

 

Name under which business is conducted

 

Township

 

 

 

 

Address where property is located (Street and number, city)

County

 

ZIP code

 

 

 

 

Nature of business

 

 

 

 

 

 

 

Name and address to which assessment and tax notice to be mailed (if different than above)

 

 

 

 

 

 

 

Street and number, city

County

 

ZIP code

 

 

 

 

REQUIREMENTS AND PENALTIES

FILING REQUIREMENTS:

Property in more than one Taxing District - A taxpayer who has property in two or more taxing districts within the same township must file separate returns in each district covering only property located in that district. This is necessary since each taxing district may have different tax rates. [IC 6-1.1-3-10(b)]

Duplicate Return Requirement - Every taxpayer whose total combined assessed value of business personal property within a single taxing district is $150,000 or more must file each return in duplicate including the confidential returns and schedule attached thererto. See Regulation 16, Rule 2, Sec. 7(a). [IC 6-1.1-3-7(c)]

Total assessed value of business personal property filed in this taxing district is:

$150,000 or more

Less than $150,000

Multiple Location Taxpayers - Every taxpayer who is required to file in more than one township in the State of Indiana must file a summary form, Form 105 (available from the Department of Local Government Finance or local assessing officials), directly with the Department of Local Government Finance on or before July 15 of the assessment year. (Regulation 16, Rule 2, Sec. 6) [IC 6-1.1-3-10(a)]

Were expenditures made since March 1 of last year for improvements on any real estate owned, held, possessed, controlled or occupied by the tax- payer in the township wherein this return is filed? Yes No If Yes, attach a statement setting forth: Name of owner, location of real estate and explaining nature, cost, date construction of improvements was begun and date construction was completed. If not completed as of March 1, state the percentage completed at that time. (IC 6-1.1-5-13)

PENALTIES FOR FAILURE TO FILE COMPLETE RETURN FORMS:

Failure to file a return on or before the date, as required by law, will result in the imposition of a twenty-five dollar ($25.00) penalty. In addition, if a return is not filed within thirty (30) days after such return is due, a penalty equal to twenty percent (20%) of the taxes finally determined to be due with respect to the property which should have been reported will be imposed. A personal property return is not due until the expiration of any extension period granted by the township assessor under IC 6-1.1-3-7(b).

If the total assessed value that a person reports on a personal property return is less than the total assessed value that the person is required by law to report and if the amount of the undervaluation exceeds five percent (5%) of the value that should have been reported on the return, then the county auditor shall add a penalty of twenty percent (20%) of the additional taxes finally determined to be due as a result of the undervaluation.

In completing a personal property return for a year, a taxpayer must make a complete disclosure of all information relating to the value, nature or location of personal property owned, held, possessed or controlled on the assessment date [IC 6-1.1-3-9(a)], and information relating to improve- ments made since the preceding assessment date to real property owned, held, possessed or occupied. (IC 6-1.1-5-13)

This information would include, but not be limited to, completion of the heading and related information, answers to all questions and entries on all of the appropriate lines on the face of the return. If such information is not provided, the taxpayer will be contacted and directed to provide that informa- tion. In addition, a penalty of twenty-five dollar ($25.00) may be imposed. [IC 6-1.1-37-7(d)]

The above penalties are due on the property tax installment next due for the return whether or not an appeal is filed with the Indiana Tax Court with respect to the tax due on that installment. [IC 6-1.1-37-7(f)]

Total Tangible Personal Property

(Please check one)

 

ASSESSED VALUES

ASSESSED VALUES BY

ASSESSED VALUES BY

 

Form 102

Form 103

 

BY TAXPAYER

TOWNSHIP ASSESSOR

PTABOA

 

 

 

(a)

 

(b)

(c)

Round Assessed Value to Nearest Ten Dollars

 

$

 

$

$

 

 

 

 

 

 

 

 

 

 

 

All vehicles used in farm or business and not subject to Excise Tax must be reported as depreciable personal property in the pools on Schedule A of Forms 102 or 103. All such property used for recreational purposes (not used in business) must be reported on Form 101.

SIGNATURE AND VERIFICATION

Under penalties of perjury, I hereby certify that this return (including accompanying schedules and statements), to the best of my knowledge and belief, is true, correct, and complete; reports all tangible personal property, subject to taxation, owned, held, possessed or controlled by the named taxpayer in the stated township or taxing district on the assessment date of this return, as required by law; and is prepared in accordance with IC 6-1.1 et seq., as amended, and regulations promulgated with respect thereto.

Signature of authorized person

 

 

 

Please print name

Date signed (mo., day, yr.)

 

 

 

 

 

Title

Telephone number

Signature of person preparing return based on all

Telephone number

 

(

)

information of which he has any knowledge

 

 

 

 

 

(

)

Form Information

Fact Name Details
Form Purpose The Indiana State Form 104 is used to report business tangible personal property for taxation purposes.
Filing Deadline Taxpayers must file the form with the Township Assessor by May 15, unless a written extension is granted.
Multiple Districts If a taxpayer has property in more than one taxing district, separate returns must be filed for each district.
Duplicate Returns Taxpayers with a combined assessed value of $150,000 or more must file returns in duplicate, including any confidential schedules.
Improvement Reporting Taxpayers must report any improvements made to real estate since March 1 of the previous year, including details of the improvements.
Penalties for Late Filing A $25 penalty applies for late filings. Additional penalties may be imposed for undervaluation or failure to provide complete information.
Governing Laws The form is governed by Indiana Code IC 6-1.1-3-10, IC 6-1.1-3-7, and IC 6-1.1-5-13, among others.

Detailed Guide for Filling Out Indiana State 104

Completing the Indiana State 104 form is a crucial step for business owners to ensure compliance with local tax regulations. Follow these steps carefully to fill out the form accurately and submit it on time.

  1. Obtain the Indiana State 104 form from the Department of Local Government Finance or your local assessor's office.
  2. Enter the date of assessment as March 1 of the assessment year in the designated space.
  3. Provide the name of the taxpayer. This should be typed or printed clearly.
  4. Indicate the taxing district where your business operates.
  5. Fill in the name under which your business is conducted.
  6. Complete the address where the property is located, including street number, city, county, and ZIP code.
  7. List the nature of your business in the appropriate section.
  8. If different from the business address, provide the name and address for the assessment and tax notice to be mailed.
  9. Determine if your business has property in more than one taxing district. If so, ensure to file separate returns for each district.
  10. Check the box indicating whether your total assessed value of business personal property is $150,000 or more, or less than $150,000.
  11. If applicable, answer whether any improvements were made to real estate since March 1 of the previous year. If yes, attach a detailed statement with the required information.
  12. Complete the section regarding the total tangible personal property assessed values. Round to the nearest ten dollars.
  13. Sign and date the form, certifying that the information provided is true and correct.
  14. If someone else prepared the return, that person must also sign and provide their contact information.

After completing the form, submit it to the Township Assessor by May 15, unless you have obtained an extension in writing. Ensure that you keep a copy for your records. This will help you avoid penalties and ensure that your business remains compliant with state tax laws.

Obtain Answers on Indiana State 104

  1. What is the Indiana State 104 form?

    The Indiana State 104 form, also known as the Business Tangible Personal Property Return, is a document that businesses in Indiana must file to report their tangible personal property to the local tax assessor. This form is essential for determining the property tax owed by a business based on the assessed value of its personal property.

  2. Who needs to file the Indiana State 104 form?

    Any business that owns, holds, possesses, or controls tangible personal property in Indiana is required to file this form. This includes businesses with property located in multiple taxing districts, as separate returns must be filed for each district where property is held.

  3. When is the Indiana State 104 form due?

    The form must be filed with the Township Assessor by May 15 of each year. If a business needs more time, it can request a written extension. It's important to adhere to this deadline to avoid penalties.

  4. What are the penalties for failing to file the form on time?

    If the form is not filed by the deadline, a penalty of $25 will be imposed. Additionally, if the return is not filed within 30 days after the due date, a penalty equal to 20% of the taxes owed may be added. Businesses must be diligent in meeting their filing obligations to avoid these penalties.

  5. What if a business has property in more than one taxing district?

    A business with property in multiple taxing districts must file separate returns for each district. Each return should only cover the property located within that specific district, as different districts may have varying tax rates.

  6. What should be included in the form?

    When completing the Indiana State 104 form, businesses must disclose all tangible personal property owned, held, possessed, or controlled as of the assessment date. This includes reporting any improvements made to real estate since the last assessment date. Accurate and complete information is crucial to avoid penalties.

  7. What happens if the assessed value reported is incorrect?

    If a business reports an assessed value that is less than what is required by law, and the undervaluation exceeds 5%, a penalty of 20% of the additional taxes owed will be assessed. This emphasizes the importance of accurate reporting.

  8. How do businesses file the form if they have multiple locations?

    Businesses operating in more than one township must file a summary form, known as Form 105, with the Department of Local Government Finance by July 15 of the assessment year. This form consolidates the information from all locations and ensures compliance with state regulations.

  9. What is the significance of the signature on the form?

    The signature on the Indiana State 104 form certifies that the information provided is true, correct, and complete. This declaration is made under penalties of perjury, highlighting the legal responsibility of the signer to ensure the accuracy of the submitted information.

  10. Where can businesses obtain assistance with the Indiana State 104 form?

    Businesses can seek assistance from local assessing officials or the Department of Local Government Finance. Resources and guidance are available to help ensure that the form is completed correctly and filed on time.

Common mistakes

Filling out the Indiana State 104 form can be straightforward, but many people make common mistakes that can lead to penalties or delays. One significant error is failing to file the form by the deadline. The form must be submitted to the Township Assessor by May 15 unless an extension is granted. Missing this deadline can result in a $25 penalty, which can escalate if the return is not filed within 30 days of the due date.

Another frequent mistake is not understanding the requirement to file separate returns if property is located in more than one taxing district. Taxpayers must submit individual returns for each district where their property is situated. This ensures that each area’s different tax rates are applied correctly. Ignoring this rule can lead to complications and potential penalties.

Many taxpayers also overlook the need to report improvements made to real estate. If any enhancements were made since March 1 of the previous year, a statement detailing the nature, cost, and completion status of those improvements must be attached. Failure to provide this information can lead to additional penalties, as it is essential for an accurate assessment of the property.

Lastly, some individuals do not complete all sections of the form, which can cause delays and additional penalties. It is crucial to answer all questions and provide complete information regarding the nature and location of the personal property. Incomplete submissions will result in the taxpayer being contacted for further information, and a $25 penalty may be imposed for failure to file a complete return. Taking the time to carefully fill out the form can help avoid these issues.

Documents used along the form

The Indiana State 104 form is an essential document for reporting business tangible personal property. Several other forms and documents are often used in conjunction with it to ensure compliance with state regulations. Below is a list of these related documents, each serving a specific purpose in the assessment and taxation process.

  • Form 105: This summary form is required for taxpayers with property in multiple townships. It must be submitted directly to the Department of Local Government Finance by July 15 of the assessment year.
  • Form 102: This form is used for reporting the assessed values of business personal property. It includes detailed schedules for various types of assets, allowing for accurate valuation.
  • Form 103: Similar to Form 102, this form is also used to report assessed values. It may be required for specific categories of property or for different reporting circumstances.
  • Form 101: This form is used to report recreational property that is not utilized for business purposes. It ensures that all types of property are accounted for in the assessment process.
  • Extension Request Form: Taxpayers may use this form to request an extension for filing the 104 form. It must be submitted in writing to the township assessor before the original deadline.
  • Property Improvement Statement: If improvements have been made to real estate owned by the taxpayer, a statement detailing the nature, cost, and completion status of these improvements must be attached to the 104 form.

Understanding these additional forms and documents is crucial for ensuring compliance with Indiana's property tax laws. Properly completing and submitting all necessary paperwork can help avoid penalties and ensure accurate property assessments.

Similar forms

The Indiana State Form 104 is a key document for reporting tangible personal property for tax purposes. Several other forms serve similar functions in different contexts. Here’s a list of nine documents that share similarities with the Indiana State 104 form:

  • Form 101: This form is used for reporting personal property not used in business, such as recreational vehicles. Like Form 104, it requires accurate reporting of assets for tax assessment.
  • Form 102: This document is for reporting business personal property valued at less than $150,000. It serves a similar purpose as Form 104 but is tailored for lower-value assets.
  • Form 103: Similar to Form 102, this form is for businesses with personal property valued at $150,000 or more. It requires more detailed reporting, akin to the requirements of Form 104.
  • Form 105: Used by taxpayers with property in multiple townships, this summary form consolidates information for filing purposes. It complements Form 104 when a taxpayer has to file in more than one district.
  • Form 106: This form is for reporting exempt personal property. Like Form 104, it requires disclosure of property details but focuses on items that qualify for tax exemption.
  • Form 107: This document is used to report property owned by a partnership. It has similarities to Form 104 in that it deals with the assessment of personal property, but is specific to partnerships.
  • Form 109: This form is for reporting property owned by corporations. It also shares the same objective of accurate property assessment for taxation as Form 104.
  • Form 110: This document is for reporting property owned by trusts. Like Form 104, it requires detailed information about assets for tax assessment purposes.
  • Form 111: This form is used for reporting property owned by estates. It similarly focuses on ensuring accurate reporting of assets for tax purposes, paralleling the goals of Form 104.

Each of these forms plays a critical role in the property tax system, ensuring that all property is accurately reported and assessed for taxation.

Dos and Don'ts

When filling out the Indiana State 104 form, there are important guidelines to follow. Here are four things you should and shouldn't do:

  • Do: File the form with the Township Assessor by May 15, unless you have a written extension.
  • Do: Ensure that all information is complete and accurate, including the name of the taxpayer and property details.
  • Do: File separate returns for property located in different taxing districts within the same township.
  • Do: Attach any required statements regarding improvements made to real estate since the last assessment date.
  • Don't: Forget to file in duplicate if your total assessed value is $150,000 or more.
  • Don't: Leave any questions unanswered on the form; incomplete returns may lead to penalties.
  • Don't: Assume that penalties won't apply; late submissions can incur significant fees.
  • Don't: Delay filing if you have property in multiple townships; submit a summary form by July 15.

Misconceptions

  • Misconception 1: The Indiana State 104 form is optional for all businesses.

    This is not true. Filing the Indiana State 104 form is mandatory for businesses that own tangible personal property. Failure to file can result in penalties.

  • Misconception 2: Only businesses with high property values need to file.

    Every business that owns tangible personal property must file the form, regardless of the total assessed value. This includes businesses with property valued below $150,000.

  • Misconception 3: Filing late has no consequences.

    This is incorrect. Late filings incur penalties. A $25 penalty applies for late submissions, along with potential additional penalties based on the taxes owed.

  • Misconception 4: You can file the form anytime during the year.

    The form must be filed by May 15 each year unless an extension is granted in writing. Missing this deadline can lead to penalties.

Key takeaways

Filing the Indiana State 104 form is an important process for business owners. Here are key takeaways to keep in mind:

  • Deadline for Filing: Submit the form to the Township Assessor by May 15. Extensions can be granted in writing.
  • Separate Returns: If your property is located in more than one taxing district, file separate returns for each district. Each district may have different tax rates.
  • Duplicate Returns: If the total assessed value of your business personal property is $150,000 or more in a single taxing district, file your return in duplicate.
  • Multiple Locations: Taxpayers with properties in multiple townships must file a summary form (Form 105) with the Department of Local Government Finance by July 15.
  • Penalties for Late Filing: Failing to file on time can result in a $25 penalty, and additional penalties may apply if the return is not filed within 30 days.
  • Complete Disclosure Required: Ensure all information regarding the value and nature of your personal property is accurately reported to avoid penalties.

Understanding these points can help ensure compliance and avoid unnecessary penalties when filing the Indiana State 104 form.