Homepage Blank Illinois Sworn Statement Form
Outline

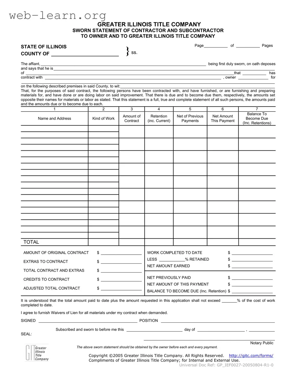
The Illinois Sworn Statement form serves as a crucial document in the construction industry, ensuring transparency and accountability between contractors, subcontractors, and property owners. This form requires the affiant, typically a contractor or subcontractor, to affirm under oath their role in a specific construction project, detailing the contractual obligations involved. It outlines the financial aspects of the project, including amounts due for labor and materials, thereby providing a comprehensive overview of the payments made and those still outstanding. Each section of the form is meticulously designed to capture essential information, such as the names and addresses of individuals or entities involved, the nature of the work performed, and the financial details pertinent to the contract. Additionally, it stipulates the necessity for Waivers of Lien, which protect owners from potential claims against their property. By mandating that this sworn statement be obtained prior to each payment, the form plays a pivotal role in safeguarding all parties’ interests and ensuring that financial transactions align with the progress of the work completed.

Sample - Illinois Sworn Statement Form

GREATER ILLINOIS TITLE COMPANY

SWORN STATEMENT OF CONTRACTOR AND SUBCONTRACTOR

TO OWNER AND TO GREATER ILLINOIS TITLE COMPANY

STATE OF ILLINOIS

} ss.

COUNTY OF _________________________

Page___________ of ___________ Pages

The affiant, _____________________________________________________________________________ being first duly sworn, on oath deposes

and says that he is _______________________________________________________________________________________________________

of _________________________________________________________________________________________________that ___________ has

contract with __________________________________________________________________________________ , owner ______________ for

______________________________________________________________________________________________________________________

on the following described premises in said County, to wit:________________________________________________________________________

That, for the purposes of said contract, the following persons have been contracted with, and have furnished, or are furnishing and preparing materials for, and have done or are doing labor on said improvement. That there is due and to become due them, respectively, the amounts set opposite their names for materials or labor as stated. That this statement is a full, true and complete statement of all such persons, the amounts paid

and the amounts due or to become due to each.

 

 

 

 

 

 

1

2

3

4

5

6

7

 

 

 

Amount of

Retention

Net of Previous

Net Amount

Balance To

 

Name and Address

Kind of Work

Become Due

 

Contract

(inc. Current)

Payments

This Payment

 

 

 

(Inc. Retentions)

 

 

 

 

 

 

 

TOTAL

 

 

 

 

AMOUNT OF ORIGINAL CONTRACT

$ ___________________ WORK COMPLETED TO DATE

$ ___________________

EXTRAS TO CONTRACT

$ ___________________

LESS ____________% RETAINED

$ ___________________

NET AMOUNT EARNED

$ ___________________

TOTAL CONTRACT AND EXTRAS

$ ___________________

 

 

 

NET PREVIOUSLY PAID

$ ___________________

CREDITS TO CONTRACT

$ ___________________

NET AMOUNT OF THIS PAYMENT

$ ___________________

ADJUSTED TOTAL CONTRACT

$ ___________________

BALANCE TO BECOME DUE (Inc. Retention) $ ___________________

 

 

It is understood that the total amount paid to date plus the amount requested in this application shall not exceed _______% of the cost of work

completed to date.

I agree to furnish Waivers of Lien for all materials under my contract when demanded.

SIGNED ______________________________________________ POSITION _____________________________________________________

Subscribed and sworn to before me this __________________________ day of ______________________ , ____________

SEAL:

_____________________________________________________________

Notary Public

The above sworn statement should be obtained by the owner before each and every payment.

Copyright ©2005 Greater Illinois Title Company. All Rights Reserved. http://gitc.com/forms/

Compliments of Greater Illinois Title Company; for Internal and External Use.

Universal Doc Ref: GP_IEF0027-20050804-R1-0

Form Information

Fact Name Description
Purpose The Illinois Sworn Statement form is used to document payments due to contractors and subcontractors for work completed on a project.
Governing Law This form is governed by the Illinois Mechanics Lien Act (770 ILCS 60).
Affiant Requirements The affiant must be a contractor or subcontractor involved in the project.
Notarization The form must be notarized to ensure its authenticity and legal standing.
Payment Documentation It requires a detailed account of all individuals and entities owed money for labor or materials.
Retention Amount The form includes a section to specify any retention amounts withheld from payments.
Waivers of Lien Contractors must agree to provide Waivers of Lien upon request to release claims against the property.
Payment Limits The total amount requested cannot exceed a certain percentage of the work completed to date.
Owner Responsibility It is the owner's responsibility to obtain this sworn statement before making any payments.
Form Updates The form is copyrighted and should be used as provided by Greater Illinois Title Company.

Detailed Guide for Filling Out Illinois Sworn Statement

Completing the Illinois Sworn Statement form is an important step in ensuring that all parties involved in a construction project are protected. This document serves to confirm the work completed and the payments due to contractors and subcontractors. Follow the steps below to accurately fill out the form.

  1. Begin by entering the name of the affiant (the person making the statement) at the top of the form.
  2. Provide the affiant's title or position in the company.
  3. Fill in the name of the company that the affiant represents.
  4. Enter the name of the owner of the property associated with the contract.
  5. Describe the work being performed under the contract, including any specific details about the project.
  6. List the names and addresses of all contractors and subcontractors involved in the project.
  7. For each contractor or subcontractor, specify the kind of work they are doing.
  8. Indicate the amounts due for materials or labor next to each name.
  9. Fill in the total amount of the original contract at the designated line.
  10. Record the total work completed to date and any extras to the contract.
  11. Calculate and enter the percentage retained from the total amount.
  12. Determine and write down the net amount earned and the total contract and extras.
  13. Provide the net previously paid and any credits to the contract.
  14. Finally, fill in the net amount of this payment and the adjusted total contract.
  15. Complete the balance to become due, including any retention amounts.
  16. Sign the form where indicated and print the affiant's name beneath the signature.
  17. Have the form notarized by a notary public, who will complete the necessary section at the bottom.

Obtain Answers on Illinois Sworn Statement

  1. What is the purpose of the Illinois Sworn Statement form?

    The Illinois Sworn Statement form serves as a declaration by contractors and subcontractors regarding the work completed and payments due. It ensures transparency in financial transactions between contractors, subcontractors, and property owners. This form helps protect the interests of all parties by documenting who has been paid and what amounts are still outstanding.

  2. Who needs to complete the Sworn Statement?

    The contractor and any subcontractors involved in the project must complete the Sworn Statement. Each party must list their respective contributions and the amounts owed for their work or materials. This ensures that everyone involved in the project is accounted for and that payments are made fairly.

  3. When should the Sworn Statement be submitted?

    The Sworn Statement should be obtained by the property owner before making any payments to the contractor. It is advisable to submit this form before each payment to ensure that all parties are aware of the financial status of the project and to confirm that no liens are placed on the property.

  4. What information is required on the form?

    The form requires detailed information, including:

    • The names and addresses of all contractors and subcontractors.
    • The type of work performed by each party.
    • The amounts due for materials and labor.
    • Any retention amounts and net amounts earned.
    • The total contract amount and any extras.

    Providing accurate information is crucial for the integrity of the document.

  5. What happens if the Sworn Statement is not submitted?

    Failure to submit the Sworn Statement can lead to complications. The property owner may be at risk of making payments without knowing the full financial picture, which could result in disputes or even liens against the property. It is essential to obtain this document to safeguard against potential legal issues and ensure all parties are compensated appropriately.

Common mistakes

Filling out the Illinois Sworn Statement form can be straightforward, but mistakes can happen. One common error is failing to provide complete information about the contractor or subcontractor. It’s essential to fill in all sections accurately, including names, addresses, and roles. Missing or incorrect details can delay payments and create confusion.

Another mistake is not including the correct contract information. The form requires specific details about the contract, such as the owner’s name and the type of work being done. Omitting this information can lead to complications when processing payments.

People often forget to calculate the amounts correctly. Each section requires precise figures for amounts due, amounts paid, and any retentions. Double-checking these numbers can help avoid discrepancies that could lead to payment issues.

Some individuals neglect to sign the form or forget to have it notarized. A signature is crucial for the document’s validity. Additionally, without a notary, the statement may not be accepted, causing unnecessary delays.

Another common oversight is not updating the form with the latest information. If there are changes to the contract or payment amounts, these should be reflected in the sworn statement. Failing to do so can result in incorrect payments or disputes.

Many people also overlook the requirement to provide Waivers of Lien. The form states that waivers must be furnished upon demand. Not having these ready can hold up payments and complicate the process.

Additionally, some individuals may misinterpret the retention percentage. It’s important to understand how much can be retained and ensure that this percentage is accurately reflected in the totals. Miscalculating retention can lead to financial issues later on.

Lastly, it’s vital to remember that the sworn statement should be obtained before each payment. Some may assume one statement is sufficient for multiple payments, but this is not the case. Each payment requires its own sworn statement to ensure compliance and clarity.

Documents used along the form

The Illinois Sworn Statement form is essential for contractors and subcontractors to provide transparency regarding payments and work completed. Alongside this form, several other documents are commonly used to ensure compliance and protect the interests of all parties involved. Below are four key forms that often accompany the Illinois Sworn Statement.

  • Waiver of Lien: This document is used to confirm that a contractor or subcontractor has received payment for their work and materials. By signing this waiver, they relinquish their right to place a lien on the property for the amount paid, providing assurance to the owner that no future claims will arise for that payment.
  • Contract Agreement: This is the foundational document that outlines the terms and conditions of the project between the owner and the contractor. It details the scope of work, payment terms, deadlines, and responsibilities of each party, serving as a reference throughout the project's duration.
  • Change Order: When modifications to the original contract are necessary, a change order is used to document these changes. It outlines any adjustments in scope, cost, or timeline and must be agreed upon by both the owner and the contractor to ensure clarity and mutual understanding.
  • Payment Application: This form is submitted by contractors to request payment for completed work. It details the work performed, the costs incurred, and the amount due. This application is critical for tracking financial progress and ensuring that payments align with project milestones.

Using these documents in conjunction with the Illinois Sworn Statement helps maintain clear communication and accountability among all parties involved in a construction project. Proper documentation not only protects the rights of contractors and subcontractors but also assures property owners that their investments are secure.

Similar forms

The Illinois Sworn Statement form shares similarities with several other documents commonly used in construction and contracting. Each of these documents serves to affirm the accuracy of information regarding payments and work performed. Below are four documents that are similar to the Illinois Sworn Statement:

  • Mechanic's Lien Waiver: This document is used to confirm that a contractor or subcontractor has received payment for work completed. Like the Sworn Statement, it protects the owner from future claims by ensuring that all parties have been compensated.
  • Certificate of Payment: This document certifies that a contractor has completed a specific portion of the work and is entitled to payment. Similar to the Sworn Statement, it details the amounts due and ensures transparency in the payment process.
  • Affidavit of Payment: This affidavit is often submitted to confirm that all subcontractors and suppliers have been paid for their work. Much like the Sworn Statement, it provides assurance to the property owner regarding the financial obligations of the contractor.
  • Change Order: A change order outlines modifications to the original contract, including adjustments to costs and timelines. It parallels the Sworn Statement by documenting changes and ensuring that all parties agree to the revised terms before proceeding with additional work.

Dos and Don'ts

When filling out the Illinois Sworn Statement form, it is essential to follow certain guidelines to ensure accuracy and compliance. Below is a list of things you should and shouldn't do:

  • Do provide accurate and complete information about the contractor and subcontractor.
  • Do clearly state the amounts due for labor and materials.
  • Do ensure that the statement reflects the current status of the contract.
  • Do sign the document in front of a notary public.
  • Do obtain waivers of lien when requested.
  • Don't leave any sections of the form blank; all fields must be filled out.
  • Don't use vague language; be specific about the work completed.
  • Don't forget to date the document and include the correct day and year.
  • Don't submit the form without verifying all calculations for accuracy.
  • Don't overlook the requirement to obtain this sworn statement before each payment.

Misconceptions

Here are five common misconceptions about the Illinois Sworn Statement form:

  • Misconception 1: The form is optional for contractors.
  • This is false. The Illinois Sworn Statement is required for contractors and subcontractors to ensure that all parties involved in a project are compensated fairly. It protects the owner from potential liens by confirming payments made.

  • Misconception 2: Only the contractor needs to sign the form.
  • In reality, both the contractor and subcontractors must provide their information and signatures. This ensures transparency regarding who has been paid and who is still owed money.

  • Misconception 3: The form only needs to be submitted once.
  • This is incorrect. The sworn statement must be submitted before each payment to the contractor. This practice helps maintain accurate records throughout the project.

  • Misconception 4: The sworn statement guarantees payment.
  • While the form outlines amounts due, it does not guarantee payment. It is a declaration of amounts owed and serves as a protective measure for all parties involved.

  • Misconception 5: The owner can skip obtaining the sworn statement if they trust the contractor.
  • This is not advisable. Even with trust, obtaining the sworn statement is crucial. It protects the owner from potential claims and ensures all financial obligations are documented.

Key takeaways

Here are some key takeaways about filling out and using the Illinois Sworn Statement form:

  • The form is used to provide a sworn statement from contractors and subcontractors to the owner and Greater Illinois Title Company.
  • It must be completed accurately, detailing all persons contracted for labor or materials related to the project.
  • Each contractor or subcontractor's name, address, and the amount due for their work must be included.
  • The total amount of the original contract and any extras must be clearly stated.
  • Retention amounts, or percentages withheld, should be calculated and noted.
  • It is important to ensure that the total amount requested does not exceed the agreed percentage of work completed.
  • The statement must be signed by the affiant and notarized to be valid.
  • Waivers of Lien for all materials should be provided when requested by the owner.
  • The owner should obtain this sworn statement before making any payments to ensure all parties are accounted for.