Homepage Blank Idaho 75 Form
Outline

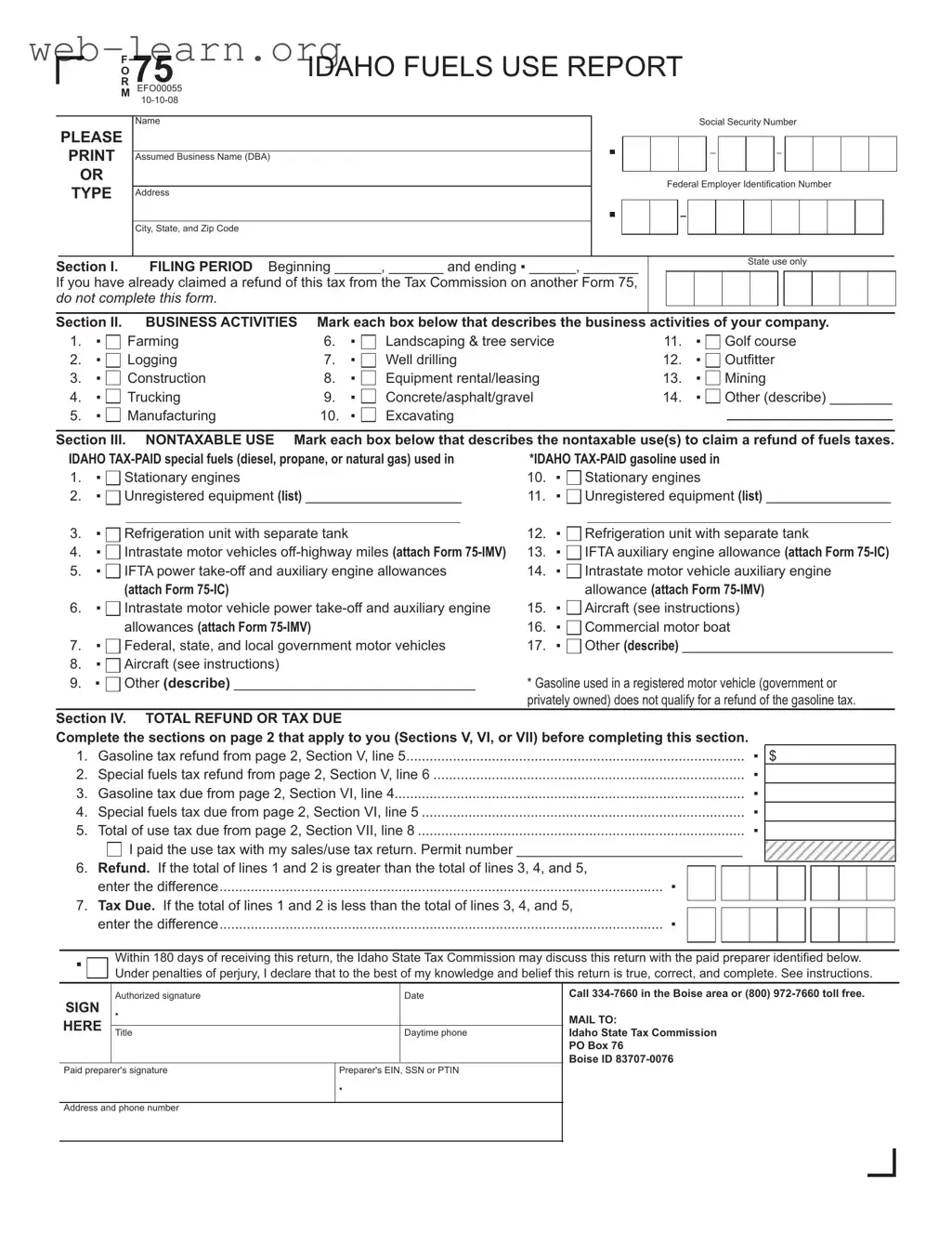
The Idaho 75 form, officially known as the Idaho Fuels Use Report, is an essential document for individuals and businesses that utilize fuel for nontaxable purposes in the state of Idaho. This form is primarily used to claim refunds on Idaho tax-paid gasoline and special fuels, such as diesel, propane, and natural gas. It requires detailed information about the filer, including their name, business name, and address, as well as the specific filing period for which the claim is made. Sections within the form allow users to indicate their business activities, such as farming, construction, or trucking, and to specify the nontaxable uses of fuel for which they are seeking a refund. The form also includes calculations for total refunds or taxes due, which must be completed accurately to ensure compliance with state regulations. Additionally, filers must maintain proper records to support their claims, as incomplete submissions may be returned for correction. Understanding the requirements and processes associated with the Idaho 75 form is crucial for anyone looking to navigate fuel tax refunds effectively.

Sample - Idaho 75 Form

 

 

RO

75

IDAHO FUELS USE REPORT

 

 

 

 

 

 

 

 

 

 

 

 

 

 

 

 

 

 

 

 

 

 

 

F

EFO00055

 

 

 

 

 

 

 

 

 

 

 

 

 

 

 

 

 

 

 

 

 

 

 

 

 

 

 

 

 

 

 

 

 

 

 

 

 

 

 

M

 

 

 

 

 

 

 

 

 

 

 

 

 

 

 

 

 

 

 

 

 

 

 

 

 

 

 

 

 

 

 

 

 

 

 

 

 

 

 

 

 

 

10-10-08

 

 

 

 

 

 

 

 

 

 

 

 

 

 

 

 

 

 

 

 

 

 

 

 

 

 

 

 

 

 

 

 

 

 

 

 

 

 

 

 

 

 

 

 

 

 

 

 

 

 

 

 

 

 

 

 

 

 

 

 

Social Security Number

 

 

 

 

 

Name

 

 

 

 

 

 

 

 

 

 

 

 

 

 

 

 

 

 

PLEASE

 

 

 

 

 

 

 

 

 

 

 

 

 

 

 

 

 

 

 

 

 

 

 

 

 

 

 

 

 

 

 

 

 

 

 

 

 

 

 

 

 

 

 

 

 

 

 

 

 

 

 

 

 

 

 

 

 

 

 

 

 

 

 

 

 

 

 

 

 

 

 

 

 

 

 

 

 

 

 

 

 

 

PRINT

 

 

 

 

 

 

 

 

 

 

 

 

 

 

 

 

 

 

 

 

 

 

 

 

 

 

 

 

 

 

 

 

 

 

 

 

 

 

 

Assumed Business Name (DBA)

 

 

 

 

 

 

 

 

 

 

 

 

 

 

 

 

 

 

 

 

 

 

 

 

 

 

 

 

 

 

 

 

 

 

 

 

 

 

OR

 

 

 

 

 

 

 

 

 

 

 

 

 

 

 

 

 

 

 

 

 

 

 

 

 

 

 

 

 

 

 

 

 

 

 

 

 

 

 

 

 

 

 

 

 

 

 

 

 

 

 

 

 

 

 

 

 

Federal Employer Identiication Number

 

TyPE

 

 

 

 

 

 

 

 

 

 

 

 

 

 

 

 

 

 

 

Address

 

 

 

 

 

 

 

 

 

 

 

 

 

 

 

 

 

 

 

 

 

 

 

 

 

 

 

 

 

 

 

 

 

 

 

 

 

 

 

 

 

 

 

 

 

 

 

 

 

 

 

 

 

 

 

 

 

 

 

 

 

 

 

 

 

 

 

 

 

 

 

 

 

 

 

 

 

 

 

 

 

 

 

 

 

 

 

 

 

 

 

 

 

 

 

 

 

 

 

 

 

 

 

 

 

 

 

 

 

 

 

 

 

 

 

 

 

 

 

 

 

 

 

 

 

 

 

 

 

 

 

 

 

 

 

 

 

 

 

 

 

 

 

 

City, State, and Zip Code

 

 

 

 

 

 

 

 

 

 

 

 

 

 

 

 

 

 

 

 

 

 

 

 

 

 

 

 

 

 

 

 

 

 

 

 

 

 

 

 

 

 

 

 

 

 

 

 

 

 

 

 

 

 

 

 

 

 

 

 

 

 

 

 

 

 

 

 

 

 

 

 

 

 

 

 

 

 

 

 

Section I.

 

 

FILING PERIOD Beginning ______, _______ and ending ▪ ______, _______

 

 

 

 

 

 

 

 

 

 

 

State use only

If you have already claimed a refund of this tax from the Tax Commission on another Form 75,

 

 

 

 

 

 

 

 

 

 

 

 

 

 

 

 

 

 

 

 

 

 

 

 

 

do not complete this form.

 

 

 

 

 

 

 

 

 

 

 

 

 

 

 

 

 

 

 

 

 

 

 

 

 

 

 

 

 

 

 

 

 

 

 

 

 

 

 

 

 

 

 

 

 

 

 

 

 

 

 

 

 

 

 

 

 

 

 

 

 

 

 

 

 

 

 

 

 

 

 

 

 

 

 

 

 

 

 

 

Section II.

 

 

BUSINESS ACTIVITIES Mark each box below that describes the business activities of your company.

1.

 

Farming

6.

Landscaping & tree service

 

11.

 

 

Golf course

2.

 

Logging

7.

Well drilling

 

 

12.

 

 

Outitter

3.

 

Construction

8.

Equipment rental/leasing

 

13.

 

 

Mining

4.

 

Trucking

9.

Concrete/asphalt/gravel

 

14.

 

 

Other (describe) ________

5.

 

Manufacturing

10.

Excavating

 

 

 

 

 

 

 

 

 

 

 

 

 

 

 

 

 

 

 

 

 

 

 

 

 

 

 

 

 

 

 

 

 

 

 

 

 

 

 

 

 

 

 

 

 

 

 

 

 

 

 

 

 

 

 

 

 

 

 

 

 

 

 

 

 

 

 

 

 

 

 

 

 

 

 

 

 

 

 

 

 

 

 

 

 

 

 

 

 

 

 

 

 

 

 

 

 

 

 

 

 

 

 

Section III.

NONTAXABLE USE

Mark each box below that describes the nontaxable use(s) to claim a refund of fuels taxes.

 

Idaho TaX-PaId special fuels (diesel, propane, or natural gas) used in

*Idaho TaX-PaId gasoline used in

 

 

 

 

 

 

 

 

 

 

 

 

 

 

 

 

1.

Stationary engines

 

 

 

 

10.

Stationary engines

 

 

 

 

 

 

 

 

 

 

 

 

 

 

 

 

2.

Unregistered equipment (list) ____________________

11.

Unregistered equipment (list) ________________

 

 

 

 

 

 

 

 

 

 

 

 

 

 

 

 

 

 

 

 

 

 

 

 

 

 

 

 

 

 

 

 

 

 

 

 

 

 

 

 

 

 

3.

Refrigeration unit with separate tank

 

 

 

12.

Refrigeration unit with separate tank

4.

Intrastate motor vehicles off-highway miles (attach Form 75-IMV)

13.

IFTA auxiliary engine allowance (attach Form 75-IC)

5.

IFTA power take-off and auxiliary engine allowances

14.

Intrastate motor vehicle auxiliary engine

 

 

 

(attach Form 75-IC)

 

 

 

 

 

 

allowance (attach Form 75-IMV)

6.

Intrastate motor vehicle power take-off and auxiliary engine

15.

Aircraft (see instructions)

 

 

 

allowances (attach Form 75-IMV)

 

 

 

16.

Commercial motor boat

7.

Federal, state, and local government motor vehicles

17.

Other (describe) ___________________________

8. Aircraft (see instructions)

9. ▪

Other (describe) _______________________________

* Gasoline used in a registered motor vehicle (government or

 

 

privately owned) does not qualify for a refund of the gasoline tax.

Section IV. TOTAL REFUND OR TAX DUE

Complete the sections on page 2 that apply to you (Sections V, VI, or VII) before completing this section.

1.

Gasoline tax refund from page 2, Section V, line 5

 

 

 

$

 

 

 

 

 

2.

Special fuels tax refund from page 2, Section V, line 6

 

 

 

 

 

 

 

 

 

3.

Gasoline tax due from page 2, Section VI, line 4

 

 

 

 

 

 

 

 

 

4.

Special fuels tax due from page 2, Section VI, line 5

 

 

 

 

 

 

 

 

 

5.

....................................................................................Total of use tax due from page 2, Section VII, line 8

 

 

 

 

 

 

 

 

 

 

I paid the use tax with my sales/use tax return. Permit number _____________________________

 

 

 

 

 

 

6.

Refund. If the total of lines 1 and 2 is greater than the total of lines 3, 4, and 5,

 

 

 

 

 

 

 

 

 

 

 

 

 

 

 

 

 

 

 

 

 

 

 

 

 

 

 

 

 

 

 

enter the difference

 

 

 

 

 

 

 

 

 

 

7.

Tax Due. If the total of lines 1 and 2 is less than the total of lines 3, 4, and 5,

 

 

 

 

 

 

 

 

 

 

 

 

 

 

 

 

 

 

 

 

 

 

 

 

 

 

 

 

 

 

 

enter the difference

 

 

 

 

 

 

 

 

 

 

 

 

 

 

 

 

 

 

 

 

 

 

 

.

Within 180 days of receiving this return, the Idaho State Tax Commission may discuss this return with the paid preparer identiied below. Under penalties of perjury, I declare that to the best of my knowledge and belief this return is true, correct, and complete. See instructions.

 

Authorized signature

 

Date

SIGN

 

 

HERE

 

 

 

Title

 

Daytime phone

 

 

 

 

Paid preparer's signature

Preparer's EIN, SSN or PTIN

 

 

 

 

 

 

Address and phone number

 

 

 

 

 

 

Call 334-7660 in the Boise area or (800) 972-7660 toll free.

MAIL TO:

Idaho State Tax Commission

PO Box 76

Boise ID 83707-0076

EFO00055 10-10-08

 

 

 

 

 

Form 75 Page 2

 

 

 

A

B**

C**

D

E

F

G

Section V. FUELS TAX REFUND

 

Gasoline

Av Gas

Jet Fuel

Undyed Diesel*

Propane

Nat Gas

Totals

 

 

 

 

 

 

 

 

 

 

1.

Total tax-paid gallons purchased

 

 

 

 

 

 

 

 

 

from all sources (whole gallons) ....

 

 

 

 

 

 

2.

Total nontaxable gallons

 

 

 

 

 

 

 

 

 

(whole gallons)

 

 

 

 

 

 

 

3.

Tax rate

.25

.07

.06

.25

.181

.197

 

4.Fuels tax refund .............................

5.Gasoline tax refund. Add line 4, columns A, B & C. Enter here and on page 1, Section IV, line 1 ................................

6.Special fuels tax refund. Add line 4, columns D, E & F. Enter here and on page 1, Section IV, line 2 ..........................

 

 

 

A

B**

C**

D

E

F

G

Section VI. FUELS TAX DUE

 

Gasoline

Av Gas

Jet Fuel

Undyed Diesel*

Propane

Nat Gas

Totals

 

 

 

 

 

 

 

 

 

 

1.

Taxable gallons

 

 

 

 

 

 

 

 

 

(whole gallons)

 

 

 

 

 

 

 

2.

Tax rate

.25

.07

.06

.25

.181

.197

 

3.Fuels tax due .................................

4.Gasoline tax due. Add line 3, columns A, B & C. Enter here and on page 1, Section IV, line 3 ..................................

5.Special fuels tax due. Add line 3, columns D, E & F. Enter here and on page 1, Section IV, line 4.............................

 

 

 

A

B**

C**

D

E

F

G

Section VII. USE TAX DUE

 

Gasoline

Av Gas

Jet Fuel

Undyed Diesel*

Propane

Nat Gas

Totals

 

 

 

 

 

 

 

 

 

 

 

1.

Number of gallons from

 

 

 

 

 

 

 

 

 

 

Section V, line 2

 

 

 

 

 

 

 

 

2.

Average price per gallon

 

 

 

 

 

 

 

 

 

 

(carry 4 decimal places x.xxxx)

 

 

 

 

 

 

 

 

3.

Less state fuels tax/gallon

 

 

 

 

 

 

 

 

 

4.

Less federal fuels tax/gallon

 

 

 

 

 

 

 

 

5.

The base cost per gallon

 

 

 

 

 

 

 

 

 

 

(line 2 less 3 & 4)

 

 

 

 

 

 

 

 

 

6.

Total amount subject to use tax

 

 

 

 

 

 

 

 

 

 

(multiply line 1 by line 5)

 

 

 

 

 

 

 

 

 

7.

Use tax due

 

 

 

 

 

 

 

 

 

 

(multiply line 6 by 6%)

 

 

 

 

 

 

 

 

 

8.

Use tax due. Add line 7, columns A through F. Enter here and on page 1, Section IV, line 5

 

 

 

 

* Includes Biodiesel and Biodiesel Blends

** Rate change for Av Gas and Jet Fuel effective July 1, 2008.

EFO00055p3 10-10-08

Instructions for Idaho Form 75

Use this form for fuel purchased ON OR AFTER July 1, 2008.

WHO MAy FILE

Any person or entity that has purchased 50 gallons or more of Idaho tax-paid gasoline or any quantity of Idaho tax-paid special fuels (diesel, biodiesel, biodiesel blends, propane, or natural gas) and used the fuel for a nontaxable purpose may ile for a refund.

Only the inal user (consumer) of the fuel may ile Form 75.

Any refund or tax due to a partnership or corporation must be reported by the business. It may not be applied to the individual returns iled by partners or shareholders.

Any refund or tax due to a sole proprietorship must be reported by that individual.

You may claim a refund or report fuels tax due in one of the following ways: a) monthly, b) quarterly, c) annually, or

d)alternate period (any period greater than one month but not more than one year.)

If you ile the claim with your Idaho income tax return,

report the amount of the tax due or refund amount on the proper line of your income tax return, and attach a Form 75 to your return.

NOTE: Do not claim a refund for tax-paid fuel on your Idaho income tax return if you have previously

claimed a refund for the same tax-paid fuel on a separate Form 75 iled during the year.

You may claim a refund of Idaho fuels tax if:

You buy fuel with Idaho fuels tax included and use the fuel for a nontaxable purpose. This includes using the fuel: in unregistered equipment; to operate a stationary engine; in a refrigeration unit or other auxiliary equipment that has a supply tank separate from the main supply tank of the motor vehicle; or for home heating purposes.

You ile reports under the International Fuel Tax Agreement (IFTA) or operate an intrastate motor vehicle and use fuel from the main supply tank of a registered motor vehicle to operate power take-off equipment (special fuels only) or auxiliary engines (special fuels and gasoline). IFTA licensees must submit a copy of their IFTA report and Form 75-IC worksheet. Intrastate motor vehicle operators must complete and attach the Idaho Fuels Tax Refund Worksheet, Form 75-IMV. The allowances are listed in the Idaho Fuels Tax Administrative Rules, on the Form 75-IC worksheet, and on the Form 75-IMV worksheet. For more information, visit the Idaho State Tax Commission's Web site at tax.idaho.gov/ ifta.htm.

You operate an intrastate motor vehicle and use special fuels on nontaxable roads. You must complete and attach the Idaho Fuels Tax Refund Worksheet, Form 75-IMV.

You use special fuels in a motor vehicle owned and operated or leased and operated by an agency of the federal government or the state of Idaho, including its political subdivisions (local government).

You buy gasoline or special fuels with Idaho motor fuels tax included and use the fuel in an aircraft. You may only claim a refund of the difference between the Idaho motor fuels tax rate and the aviation gasoline or jet fuel tax rate. See the section titled Aircraft Fuels Tax Refund.

you may not claim a refund of Idaho fuels tax for:

Gasoline used in registered motor vehicles.

Gasoline or special fuels used in recreational vehicles or noncommercial motorboats.

Gasoline purchased from an Indian-owned retail outlet.*

Special fuels purchased from certain Indian-owned retail outlets.*

You owe Idaho fuels tax if you purchased gasoline, special fuels, or aircraft fuel, and:

You did not pay the Idaho fuels tax at the pump (including gasoline purchased from Indian-owned retail outlets and special fuel purchased from certain Indian-owned retail outlets*), and

You used the fuel for a taxable purpose in Idaho.

*For information about Indian-owned retail outlets, see the "Fuel Purchased on Idaho Indian Rerservations" page at tax.idaho.gov (click on "Motor Fuels" then scroll down to the "Fuel Consumers" section).

RECORDKEEPING REQUIREMENTS

You must keep records that support your fuels tax refund claim. These records include all motor fuels receipts showing the total gallons of tax-paid fuel purchased, and the number of gallons of tax-paid fuel used in each type of equipment both taxable and nontaxable. You waive all rights to the refund if you don't keep the required records.

AIRCRAFT FUELS TAX REFUND

If you have paid the aviation gasoline tax or the jet fuel tax, no additional tax or refund is due.

Gasoline. If you buy gasoline and pay Idaho gasoline tax, then use the gasoline in an aircraft, you are entitled to a refund of the difference between the gasoline tax rate and the aviation gasoline tax rate.

Diesel. If you buy undyed diesel fuel and pay the Idaho diesel fuel tax, then use the tax-paid diesel fuel in an

EFO00055p4 10-10-08

Instructions for Idaho Form 75 - page 2

aircraft, you are entitled to a refund of the difference between the diesel fuel tax rate and the jet fuel tax rate.

Complete Section V FUELS TAX REFUND to compute

the refund amount for the gasoline and/or diesel fuel tax

and Section VI FUELS TAX DUE to compute the aviation

gasoline and/or jet fuel tax due.

AIRCRAFT FUELS TAX DUE

Complete Section VI FUELS TAX DUE of this form to compute the aircraft fuels tax due if the Idaho fuels tax has not been paid on the diesel, gasoline, or other fuels used in your aircraft. You must report the tax due at the jet fuel or aviation gasoline tax rate.

USE TAX DUE

Use tax does not apply when the fuel purchased would qualify for the production, manufacturing,

farming, or other exemptions.

When fuel is not subject to motor fuels tax, it is subject to sales tax unless a sales tax exemption applies. If sales tax was not collected on its purchase, the purchaser owes use tax.

Use tax is a tax on goods that are put to use in Idaho. If sales tax has not been paid on goods that are used (or stored for later use), the person who uses or stores the goods in Idaho owes a use tax (unless the goods are held for resale or some other exemption applies).

The sale of motor fuel is exempt from sales and use tax if the fuel is subject to motor fuel tax or if the motor fuel tax is paid when the fuel is purchased. However, when a refund of the motor fuel tax is obtained, the value of the fuel less the state and federal taxes, if applicable, becomes subject to use tax. (See Speciic Line 4

Instructions for Section VII to determine if federal taxes are deductible.)

If you owe use tax, you must report it on your Idaho income tax return, Idaho sales or use tax return, or Form 75 by completing Section VII USE TAX DUE.

DETAILED INSTRUCTIONS

TAXPAyER INFORMATION

Enter name, assumed business name (DBA) (the name under which you are doing business), address, and Social Security number (SSN) or federal Employer Identiication Number (EIN).

If you are reporting as an individual or sole proprietor and

not as an S corporation, corporation, partnership, estate, or trust, you must use your SSN. DO NOT USE AN EIN.

yOU MUST PROVIDE THE INFORMATION REQUESTED FOR SECTIONS I, II, AND III TO RECEIVE A FUELS TAX REFUND. IF A FORM IS NOT COMPLETE, WE MAy RETURN IT TO yOU FOR CORRECTION.

FILING PERIOD

Section I. Enter the appropriate beginning and ending date for the iling period.

BUSINESS ACTIVITIES

Section II. Mark each box that describes the business activities of your company. If your company’s business activities are not described by any of the listed categories, mark the “Other” box and describe your company’s business activities.

NONTAXABLE USE

Section III. Mark each box that describes the nontaxable use(s) to claim a refund of fuels taxes. For unregistered equipment, list the type of equipment in the space next to the boxes. Attach additional pages if needed. If you have nontaxable use of fuel that is not described by any of the listed categories, mark the “Other” box and describe your nontaxable use.

ROUNDING AMOUNTS

Except for lines 2, 3, 4, and 5 of Section VII, round the amounts on this report to the whole gallon or dollar. Reduce amounts less than .50 to the whole gallon or dollar. Increase amounts of .50 or more to the next whole gallon or dollar.

FUELS TAX REFUND

If you use Idaho tax-paid fuel from a bulk storage tank for a nontaxable purpose, you must complete the

IDAHO FUELS TAX REFUND WORKSHEET.

Section V. Line 1. Enter the number of Idaho tax-paid gallons of fuel, from all sources, used during the iling period in the appropriate column by fuel type.

Line 2. Enter the number of Idaho tax-paid gallons of fuel used for a nontaxable purpose during the iling period in the appropriate column by fuel type. You must support your refund claim with documentation. See recordkeeping requirements section.

Line 4. Multiply line 2 by line 3 for each fuel type.

FUELS TAX DUE

Section VI. Line 1. Enter the number of untaxed gallons of fuel used for a taxable purpose during the iling period in the appropriate fuel type column. Round to the nearest whole gallon.

Line 3. Multiply line 1 by line 2 for each fuel type.

USE TAX DUE

Complete Section VII to report fuel USED on or after October 1, 2006, at 6%.

SPECIFIC LINE INSTRUCTIONS FOR SECTION VII You must separately calculate and report the USE TAX

EFO00055p5 10-10-08

Instructions for Idaho Form 75 - page 3

DUE in Section VII if you are reporting use tax and the fuel use falls under two or more of the following situations:

Use qualiies for a federal tax refund.

Use does not qualify for a federal tax refund.

You are reporting dyed diesel fuel.

Make a copy of page 2 of the Form 75 for each additional calculation. Total the USE TAX DUE from each page 2 and include in the total for Section IV, line 5 of the Form 75.

Line 1. In the appropriate fuel type column, enter the number of gallons of fuel from Section V, line 2, or the number of gallons of untaxed fuel, that do not qualify for a sales tax exemption.

Line 2. To compute the average price per gallon, irst add the total cost of fuel for each fuel type purchased during the refund period. Next, divide that total by the number of gallons on line 1 in the same column. The computation must be carried to 4 decimal places (x.xxxx).

Line 3. Do not use line 3 for dyed diesel fuel because the state fuels tax is not included in the price of dyed diesel fuel.

Line 4. Enter the federal tax rate for each fuel type if:

You purchased fuel that included the federal tax in the price, and

You are eligible to receive a refund of the federal tax on that fuel.

For example:

Federal refundable use. You may use line 4 if you are a contractor who purchased undyed diesel fuel, paid the federal tax, and used the fuel in a backhoe. If you have questions about federal nontaxable uses of fuel, please contact the Internal Revenue Service (IRS).

Federal nonrefundable use. Do not use line 4 if you use undyed diesel fuel in a registered motor vehicle for which a refund of the federal tax is not allowed.

Dyed diesel fuel. Do not use line 4 for dyed diesel fuel because the federal fuels tax is not included in the price of dyed diesel fuel.

Note: Line 4 is for calculation purposes only. You must make federal tax refund claims to the IRS.

Federal Tax raTes (as oF 7/1/2008)

 

av

Jet

Undyed

 

Com Nat

liq Nat

Gasoline

Gas

Fuel

diesel

Propane

Gas

Gas

 

 

 

 

 

 

 

.184

.194

.219

.244

.183

$.183*

.243

 

 

 

 

 

 

 

*Per thousand cubic feet. One thousand cubic feet equals 10 therms/gallons.

TOTAL REFUND OR TAX DUE

Section IV. Complete lines 1 through 7. (If the box for line 5 is checked, enter 0 on that line.)

If you are iling this Form 75 with your Idaho income

tax return, enter amounts from the following lines on your tax return.

Section IV, line 1 on the Gasoline tax refund line.

Section IV, line 2 on the Special fuels tax refund line.

Section IV, the total of lines 3 and 4 on the Special fuels tax due line.

Section IV, line 5 on the Sales/use tax due line.

SIGNATURE

You must sign Form 75 if you ile it separately from your income tax return. An unsigned form will delay your

refund.

Form Information

Fact Name Description
Purpose The Idaho 75 form, also known as the Idaho Fuels Use Report, is used to claim refunds for fuel taxes paid on certain non-taxable uses of fuel in Idaho.
Filing Eligibility Any individual or entity that has purchased 50 gallons or more of Idaho tax-paid gasoline or any quantity of Idaho tax-paid special fuels can file this form for a refund.
Filing Period The form must be completed for fuel purchased on or after July 1, 2008, and includes specific beginning and ending dates for the filing period.
Non-Taxable Uses Users can claim refunds for various non-taxable uses of fuel, including stationary engines, unregistered equipment, and government vehicles.
Refund Calculation Refunds are calculated based on the total gallons of tax-paid fuel used for non-taxable purposes, with specific lines for different fuel types.
Governing Law The Idaho 75 form is governed by the Idaho Code, specifically under Title 63, Chapter 24, which addresses fuel taxes and refunds.

Detailed Guide for Filling Out Idaho 75

Filling out the Idaho 75 form requires careful attention to detail. Each section must be completed accurately to ensure the correct processing of your fuel tax refund or tax due. Below are the steps to guide you through the process.

  1. Begin by entering your Social Security Number or Federal Employer Identification Number at the top of the form.
  2. Print your Name and Assumed Business Name (DBA) in the designated areas.
  3. Fill in your Address, including City, State, and Zip Code.
  4. In Section I, specify the Filing Period by entering the Beginning and Ending dates.
  5. In Section II, mark each box that describes your Business Activities.
  6. Move to Section III and check the boxes that apply to your Nontaxable Use of fuel. If applicable, list any unregistered equipment.
  7. Proceed to Section IV to calculate your Total Refund or Tax Due. Complete the relevant sections on page 2 before finalizing this section.
  8. For Section V, enter the total tax-paid gallons purchased for each fuel type.
  9. In Section V, line 2, note the total nontaxable gallons for each fuel type.
  10. Calculate the Fuels Tax Refund in Section V by multiplying the nontaxable gallons by the tax rate for each fuel type.
  11. In Section VI, report the Fuels Tax Due by entering the taxable gallons used for each fuel type.
  12. Complete Section VII to report any Use Tax Due based on the gallons used and the average price per gallon.
  13. Finally, sign and date the form at the bottom, providing your title and daytime phone number.
  14. Mail the completed form to the Idaho State Tax Commission at the address provided.

Obtain Answers on Idaho 75

  1. What is the Idaho 75 form?

    The Idaho 75 form, also known as the Fuels Use Report, is used to claim refunds for Idaho tax-paid fuel used for nontaxable purposes. It applies to individuals or businesses that purchase Idaho tax-paid gasoline or special fuels and use them in ways that do not incur taxes.

  2. Who is eligible to file the Idaho 75 form?

    Any person or entity that has purchased 50 gallons or more of Idaho tax-paid gasoline or any quantity of Idaho tax-paid special fuels can file this form. Only the final user of the fuel may submit the form. Refunds for partnerships or corporations must be reported by the business, while sole proprietors report individually.

  3. What types of business activities qualify for filing?

    Section II of the form allows you to mark the business activities that apply to you. These include farming, logging, construction, trucking, manufacturing, and more. If your activity is not listed, you can describe it in the "Other" section.

  4. What are nontaxable uses of fuel?

    Nontaxable uses include fuel used in stationary engines, unregistered equipment, refrigeration units, and for home heating. You must mark the relevant boxes in Section III to claim these uses. If your use does not fit any category, you can describe it in the "Other" section.

  5. How do I calculate the total refund or tax due?

    In Section IV, you will complete lines 1 through 7 to determine the total refund or tax due. This includes calculating gasoline and special fuels tax refunds and reporting any taxes owed. Ensure all relevant sections on page 2 are completed before finalizing this section.

  6. What records do I need to keep?

    You must maintain records that support your claim for a fuels tax refund. This includes receipts for all motor fuels purchased and documentation showing how many gallons were used for taxable versus nontaxable purposes. Failure to keep these records may result in waiving your right to a refund.

  7. Can I file the Idaho 75 form with my income tax return?

    Yes, you can file the Idaho 75 form along with your Idaho income tax return. However, you must report the refund amount on the appropriate lines of your tax return and ensure that you do not claim a refund for the same tax-paid fuel on multiple forms.

  8. What happens if my form is incomplete?

    If your Idaho 75 form is incomplete, it may be returned for correction. To avoid delays, ensure that all required sections, including taxpayer information and business activities, are fully completed.

  9. Where do I mail the Idaho 75 form?

    You should mail the completed Idaho 75 form to the Idaho State Tax Commission at PO Box 76, Boise, ID 83707-0076. Ensure that you send it to the correct address to avoid any processing delays.

Common mistakes

Completing the Idaho 75 form can be a straightforward process, but several common mistakes can lead to delays or complications. One frequent error occurs in Section I, where individuals often neglect to enter the correct beginning and ending dates for the filing period. This information is crucial for determining eligibility for a refund. If these dates are missing or incorrect, the form may be returned for correction, causing unnecessary delays.

Another common mistake is failing to accurately mark the appropriate business activities in Section II. Each box that describes the business activities must be checked. If a business does not fit neatly into the provided categories, it is essential to select the "Other" option and provide a clear description. Omitting this step can lead to confusion and may affect the processing of the refund claim.

In Section III, applicants often overlook the requirement to list unregistered equipment used for nontaxable purposes. Providing this information is critical for claiming a refund of fuels taxes. Additionally, individuals sometimes forget to attach necessary documentation or additional pages when needed. This oversight can result in the form being returned or delayed.

Finally, many people struggle with the calculations in Section IV. Errors in totaling the refund amounts or miscalculating the tax due can create significant issues. It is vital to double-check all figures and ensure that they align with the amounts reported in previous sections. Taking the time to review these calculations can prevent unnecessary complications and expedite the processing of the form.

Documents used along the form

The Idaho 75 form is commonly used for reporting fuel use and claiming refunds on fuel taxes. Several other forms and documents may accompany it during the filing process. Below is a list of related forms that are often utilized alongside the Idaho 75 form.

  • Form 75-IMV: This form is used to report nontaxable use of fuel in intrastate motor vehicles. It helps claim refunds for fuel used on non-taxable roads.
  • Form 75-IC: This form is for reporting auxiliary engine allowances under the International Fuel Tax Agreement (IFTA). It is required for those claiming refunds related to power take-off and auxiliary engines.
  • Idaho Fuels Tax Refund Worksheet: This worksheet assists in calculating the amount of fuel tax refund being claimed. It is necessary to support the claims made on the Idaho 75 form.
  • Idaho Sales/Use Tax Return: This form is used to report any use tax due on fuel that was not subject to sales tax when purchased. It is essential for ensuring compliance with Idaho tax laws.
  • Idaho Income Tax Return: If filing for a refund along with an income tax return, this document must be completed. It includes reporting any fuel tax refunds on the appropriate lines.
  • Form W-9: This form is used to provide taxpayer identification information to the Idaho State Tax Commission. It is important for verifying the identity of the person or entity filing the Idaho 75 form.

Using these additional forms can help ensure that the filing process is complete and accurate. Each form serves a specific purpose, aiding in the proper reporting of fuel use and tax obligations.

Similar forms

The Idaho 75 form, known as the Idaho Fuels Use Report, serves a specific purpose in reporting fuel usage and claiming refunds for certain taxes. It shares similarities with several other documents used for similar reporting and refund purposes. Here are four documents that are comparable to the Idaho 75 form:

  • IRS Form 8849: This form is used to claim a refund of certain federal excise taxes, including those on fuels. Like the Idaho 75, it requires detailed reporting of fuel usage and the calculation of refunds based on specific criteria.
  • IFTA Quarterly Fuel Tax Report: This report is submitted by motor carriers to report fuel use and calculate taxes owed under the International Fuel Tax Agreement (IFTA). Both documents require tracking fuel purchases and usage, with the goal of ensuring compliance and potential refunds.
  • State Fuel Tax Refund Application: Many states have their own forms for claiming refunds on state fuel taxes, similar to the Idaho 75. These forms typically require similar information about fuel types, usage, and refund calculations.
  • Form 2290 (Heavy Highway Vehicle Use Tax Return): This IRS form is used to report and pay taxes on heavy vehicles. While it focuses on a different tax, both forms require detailed vehicle and fuel usage information, linking them through their purpose of tax compliance and reporting.

Dos and Don'ts

When filling out the Idaho 75 form, keep the following guidelines in mind:

  • Do provide your Social Security Number or Federal Employer Identification Number accurately.
  • Do use clear and legible handwriting when filling out the form.
  • Do ensure that you complete Sections I, II, and III to qualify for a fuels tax refund.
  • Do mark each applicable box that describes your business activities and nontaxable uses of fuel.
  • Do keep all receipts and records that support your refund claim for at least three years.
  • Do double-check your calculations in Sections V, VI, and VII for accuracy.
  • Do sign and date the form if filing separately from your income tax return.
  • Do mail the completed form to the correct address: Idaho State Tax Commission, PO Box 76, Boise, ID 83707-0076.
  • Don't submit the form if you have already claimed a refund on another Form 75 for the same tax.
  • Don't leave any required fields blank, as this may lead to delays in processing your refund.

Misconceptions

Understanding the Idaho 75 form is crucial for anyone involved in fuel-related business activities in Idaho. However, there are several misconceptions that can lead to confusion and potential errors in filing. Below is a list of common misconceptions about the Idaho 75 form, along with explanations to clarify these misunderstandings.

  • Only large businesses need to file the Idaho 75 form. Many believe that only large companies are eligible to file this form. In reality, any individual or entity that purchases 50 gallons or more of Idaho tax-paid gasoline or any quantity of special fuels can file for a refund.
  • The Idaho 75 form is only for tax refunds. While the primary purpose of the Idaho 75 form is to claim refunds for nontaxable fuel uses, it is also used to report tax due on taxable fuel uses. Both aspects are crucial for compliance.
  • All fuel purchases qualify for a refund. This is not true. Refunds can only be claimed for fuel used in nontaxable purposes. Gasoline used in registered motor vehicles does not qualify for a refund.
  • Filing the Idaho 75 form is optional. Some individuals think that filing the form is optional if they do not owe taxes. However, if you are eligible for a refund, it is essential to file the form to recover any overpaid taxes.
  • You can claim refunds for fuel purchased from any source. This misconception overlooks that refunds can only be claimed for Idaho tax-paid fuel. Fuel purchased from certain Indian-owned retail outlets may not qualify.
  • Recordkeeping is not necessary. Many believe that they can file without keeping records. In fact, it is vital to maintain all receipts and documentation related to fuel purchases to support any claims made on the Idaho 75 form.
  • There is no deadline for filing the Idaho 75 form. It is important to note that there is a deadline. Claims must be filed within a specific time frame, typically within 180 days of the end of the filing period.
  • Individuals can file on behalf of businesses. While individuals can file for sole proprietorships, partnerships and corporations must report any refunds or taxes due through their business entity, not on personal tax returns.
  • All fuel types are treated the same on the form. Different fuel types have different tax rates and rules. It is crucial to accurately report each type of fuel used and understand the specific requirements for each.

Being aware of these misconceptions can help ensure that you file the Idaho 75 form correctly and maximize any potential refunds. Proper understanding and compliance with the rules are essential to avoid penalties and ensure you receive the benefits you are entitled to.

Key takeaways

Understanding the Idaho 75 form is crucial for individuals and businesses seeking refunds on fuel taxes. Here are five key takeaways:

  • Eligibility for Refunds: Only the final user of the fuel can file for a refund. This applies to those who have purchased 50 gallons or more of Idaho tax-paid gasoline or any quantity of special fuels used for nontaxable purposes.
  • Filing Period: Be sure to enter the correct beginning and ending dates for the filing period in Section I. This ensures your claim is processed accurately.
  • Business Activities: In Section II, mark all relevant boxes that describe your business activities. If your activities are not listed, use the "Other" option and provide a description.
  • Nontaxable Uses: Section III requires you to identify nontaxable uses of fuel. You must list any unregistered equipment or other specific uses to qualify for a refund.
  • Recordkeeping is Essential: Maintain thorough records of all fuel purchases and usage. Inadequate documentation can lead to the denial of your refund claim.