Homepage Blank Georgia Notification Form
Outline

The Georgia Notification Form for Asbestos Renovation, Encapsulation, or Demolition is a critical document designed to ensure compliance with state regulations regarding asbestos management. This form serves multiple purposes, including notifying the Environmental Protection Division (EPD) of planned asbestos-related activities and providing essential project details. It requires users to specify the type of notice—whether original or a revision—and to categorize the project accurately, such as renovation, demolition, or encapsulation. Detailed site information is essential, including the project name, address, building size, and age. The form also mandates the inclusion of contractor details, both for asbestos abatement and demolition, ensuring that qualified personnel are involved in the project. Furthermore, it addresses the presence of asbestos-containing materials (ACM), requiring information on inspections and the type of ACM being handled. Work schedules must be outlined, including start and end dates for abatement and demolition activities, and the form includes a section for calculating any applicable fees based on the amount and type of ACM. Finally, the form emphasizes the importance of accurate information and certification, holding project stakeholders accountable for compliance with federal and state regulations. Completing this form accurately is not just a bureaucratic requirement; it is a fundamental step in safeguarding public health and the environment during asbestos-related projects.

Sample - Georgia Notification Form

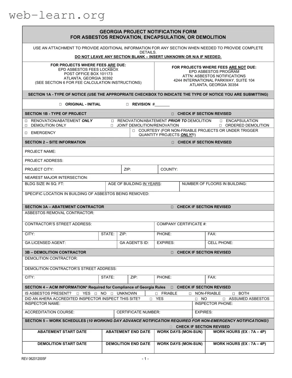
GEORGIA PROJECT NOTIFICATION FORM

FOR ASBESTOS RENOVATION, ENCAPSULATION, OR DEMOLITION

USE AN ATTACHMENT TO PROVIDE ADDITIONAL INFORMATION FOR ANY SECTION WHEN NEEDED TO PROVIDE COMPLETE

DETAILS.

DO NOT LEAVE ANY SECTION BLANK – INSERT UNKNOWN OR N/A IF NEEDED.

FOR PROJECTS WHERE FEES ARE DUE:

EPD ASBESTOS FEES LOCKBOX

POST OFFICE BOX 101173

ATLANTA, GEORGIA 30392

(SEE SECTION 6 FOR FEE CALCULATION INSTRUCTIONS)

FOR PROJECTS WHERE FEES ARE NOT DUE:

EPD ASBESTOS PROGRAM

ATTN: ASBESTOS NOTIFICATIONS

4244 INTERNATIONAL PARKWAY, SUITE 104

ATLANTA, GEORGIA 30354

SECTION 1A - TYPE OF NOTICE (USE THE APPROPRIATE CHECKBOX TO INDICATE THE TYPE OF NOTICE YOU ARE SUBMITTING)

 

 

ORIGINAL - INITIAL

 

 

REVISION #_______

 

 

 

 

 

 

 

 

 

 

 

 

 

 

 

 

 

SECTION 1B - TYPE OF PROJECT

 

 

 

 

 

 

฀ CHECK IF SECTION REVISED

 

 

 

 

 

 

 

 

 

 

 

 

 

 

 

RENOVATION/ABATEMENT ONLY

RENOVATION/ABATEMENT PRIOR TO DEMOLITION

ENCAPSULATION

 

DEMOLITION ONLY

JOINT DEMOLITION/RENOVATION

 

 

ORDERED DEMOLITION

 

EMERGENCY

 

 

 

 

 

 

COURTESY (FOR NON-FRIABLE PROJECTS OR UNDER TRIGGER

 

 

 

 

 

 

 

QUANTITY PROJECTS ONLY!!!)

 

 

 

 

 

 

 

 

 

 

 

 

 

 

SECTION 2 – SITE INFORMATION

 

 

 

 

 

 

฀ CHECK IF SECTION REVISED

 

 

 

 

 

 

 

 

 

 

 

 

 

 

 

 

PROJECT NAME:

 

 

 

 

 

 

 

 

 

 

 

 

 

 

 

 

 

 

 

 

 

 

 

 

 

 

 

 

 

PROJECT ADDRESS:

 

 

 

 

 

 

 

 

 

 

 

 

 

 

 

 

 

 

 

 

 

 

 

 

 

 

 

 

PROJECT CITY:

 

 

 

 

ZIP:

 

 

COUNTY:

 

 

 

 

 

 

 

 

 

 

 

 

 

 

 

 

 

 

 

NEAREST MAJOR INTERSECTION:

 

 

 

 

 

 

 

 

 

 

 

 

 

 

 

 

 

 

 

 

 

BLDG SIZE IN SQ. FT:

 

 

AGE OF BUILDING IN YEARS:

NUMBER OF FLOORS IN BUILDING:

 

 

 

 

 

 

 

 

 

 

 

 

SPECIFIC LOCATION IN BUILDING OF ASBESTOS BEING REMOVED:

 

 

 

 

 

 

 

 

 

 

 

 

 

 

 

 

 

 

SECTION 3A – ABATEMENT CONTRACTOR

 

 

 

 

 

 

฀ CHECK IF SECTION REVISED

 

 

 

 

 

 

 

 

 

 

 

 

 

 

 

ASBESTOS REMOVAL CONTRACTOR:

 

 

 

 

 

 

 

 

 

 

 

 

 

 

 

 

 

 

 

 

 

 

 

 

CONTRACTOR’S STREET ADDRESS:

 

 

 

 

 

COMPANY CERTIFICATE #:

 

 

 

 

 

 

 

 

 

 

 

 

 

 

CITY:

 

STATE:

ZIP:

 

PHONE:

 

FAX:

 

 

 

 

 

 

 

 

 

 

 

GA LICENSED AGENT:

 

GA AGENT’S ID:

EXPIRES:

 

CELL PHONE:

 

 

 

 

 

 

 

 

 

 

 

3B – DEMOLITION CONTRACTOR

 

 

 

 

 

 

฀ CHECK IF SECTION REVISED

 

 

 

 

 

 

 

 

 

 

 

 

 

 

DEMOLITION CONTRACTOR:

 

 

 

 

 

 

 

 

 

 

 

DEMOLITION CONTRACTOR’S STREET ADDRESS:

CITY:

STATE:

ZIP:

PHONE:

FAX:

SECTION 4 – ACM INFORMATION* Required for Compliance of Georgia Rules

฀ CHECK IF SECTION REVISED

IS ASBESTOS PRESENT? YES

NO UNKNOWN

 

FRIABLE

NON-FRIABLE

BOTH

DID AN AHERA ACCREDITED INSPECTOR INSPECT THIS SITE?

YES

 

 

NO

 

ASSUMED ASBESTOS

INSPECTOR NAME:

 

 

 

 

 

 

INSPECTOR PHONE:

 

 

 

 

 

 

 

 

ACCREDITATION COURSE:

 

CERTIFICATE NUMBER:

 

 

EXPIRES:

 

 

 

 

 

SECTION 5 – WORK SCHEDULES (10 WORKING DAY ADVANCE NOTIFICATION REQUIRED FOR NON-EMERGENCY NOTIFICATIONS!)

 

 

 

 

 

฀ CHECK IF SECTION REVISED

ABATEMENT START DATE

ABATEMENT END DATE

WORK DAYS (MON-SUN)

WORK HOURS (EX : 7A – 4P)

DEMOLITION START DATE

DEMOLITION END DATE

WORK DAYS (MON-SUN)

WORK HOURS (EX : 7A – 4P)

REV 062012005F

- 1 -

SECTION 6 – ACM AMOUNTS, TYPE CODES, AND FEE CALCULATION

฀ CHECK IF SECTION REVISED

FIRST, LOCATE THE MATERIAL TO BE REMOVED IN COLUMN A. COLUMN B SHOWS THE USUAL NESHAP CATEGORY FOR THE

MATERIAL. COLUMN C SHOWS THE CATEGORY THE MATERIAL WILL LIKELY BECOME DURING ABATEMENT, AND THAT IS THE CODE THAT SHOULD BE USED FOR COMPLETING THIS FORM. NOW, ENTER THE SQ. FT AND/OR L.F. AMOUNTS OF ACM TO BE ABATED DURING THIS PROJECT UNDER THE CORRECT HEADING ACCORDING TO TYPE IN COLUMN D, E, AND/OR F. THEN, LOCATE THE CORRESPONDING TYPE CODE(S) FOR THE MATERIAL(S) IN COLUMN G AND ENTER THE CODES IN THE SPACES PROVIDED BEFORE PROCEEDING TO THE FEE CALCULATION SECTION.

 

Column A

 

 

 

Column B

 

Column C

 

SF OR LF AMOUNT TO BE ABATED

 

Column

 

 

 

 

 

 

 

DURING PROJECT

 

 

 

G

 

 

 

 

 

 

 

 

 

 

 

 

 

 

 

 

 

 

 

 

 

 

 

 

USUAL NESHAP CATEGORY

 

WILL

 

 

 

 

 

 

 

 

 

 

 

 

 

 

 

 

 

 

 

 

 

 

 

LIKELY

 

Column D

 

 

Column E

 

Column F

 

ACM

 

ACM TYPE

 

Category

 

Category

 

 

 

 

BECOME

 

 

 

 

 

TYPE

 

 

 

RACM

 

 

Category I

 

 

Category 2

 

RACM

 

 

 

 

 

 

1

2

 

 

 

 

 

WHEN

 

 

 

 

 

 

 

 

CODE

 

 

 

 

 

 

 

 

 

 

 

 

 

ABATED

 

 

 

 

 

 

 

 

 

 

 

ASBESTOS ASPHALT SHINGLES

 

 

 

 

 

 

 

 

 

1 OR RACM

 

 

 

 

 

 

 

 

 

AAS

 

ASBESTOS CEMENT (TRANSITE) PANELS

 

 

 

 

 

 

 

 

 

2 OR RACM

 

 

 

 

 

 

 

 

 

ACP

 

ASBESTOS CEMENT (TRANSITE) ROOFING

 

 

 

 

 

 

 

 

RACM

 

 

 

 

 

 

 

 

ACR

 

ASBESTOS CEMENT (TRANSITE) SIDING SHINGLES

 

 

 

 

 

 

 

 

 

RACM

 

 

 

 

 

 

 

 

 

ACS

 

ASBESTOS FLASHING

 

 

 

 

 

 

 

1

 

 

 

 

 

 

 

 

 

AF

 

ASBESTOS GASKET

 

 

 

 

 

 

 

 

 

1 OR RACM

 

 

 

 

 

 

 

 

 

AG

 

BOILER INSULATION

 

 

 

 

 

 

 

 

 

RACM

 

 

 

 

 

 

 

 

 

BI

 

BUILT-UP ROOFING

 

 

 

 

 

 

 

 

 

 

1 OR RACM

 

 

 

 

 

 

 

 

BUR

 

COVE (BASEBOARD) MOLDING MASTIC

 

 

 

 

 

 

 

 

1

 

 

 

 

 

 

 

 

 

CM

 

CEILING PLASTER

 

 

 

 

 

 

 

 

 

 

RACM

 

 

 

 

 

 

 

 

 

CP

 

CEILING TILE

 

 

 

 

 

 

 

 

 

RACM

 

 

 

 

 

 

 

 

 

CT

 

DUCT SEAM MASTIC

 

 

 

 

 

 

 

 

 

 

1

 

 

 

 

 

 

 

 

DSM

 

DUCT VIBRATION DAMPENERS

 

 

 

 

 

 

 

 

1 OR RACM

 

 

 

 

 

 

 

 

DVD

 

EXTERIOR (OUTSIDE) DUCT INSULATION

 

 

 

 

 

 

 

 

 

RACM

 

 

 

 

 

 

 

 

 

EDI

 

FELT DUCT TAPE

 

 

 

 

 

 

 

 

 

RACM

 

 

 

 

 

 

 

 

 

FDT

 

FLOOR MASTIC

 

 

 

 

 

 

 

 

 

 

1

 

 

 

 

 

 

 

 

 

FM

 

FIREPROOFING

 

 

 

 

 

 

 

 

 

RACM

 

 

 

 

 

 

 

 

 

FP

 

FIREPROOFING AND OVERSPRAY

 

 

 

 

 

 

 

 

 

 

RACM

 

 

 

 

 

 

 

 

 

FPO

 

FLOOR TILE

 

 

 

 

 

 

 

 

 

1 OR RACM

 

 

 

 

 

 

 

 

 

FT

 

FLOOR TILE AND MASTIC

 

 

 

 

 

 

 

 

 

 

1 OR RACM

 

 

 

 

 

 

 

 

 

FTM

 

INTERIOR (INSIDE) DUCT INSULATION

 

 

 

 

 

 

 

 

RACM

 

 

 

 

 

 

 

 

 

IDI

 

JOINT COMPOUND ONLY

 

 

 

 

 

 

 

 

 

 

RACM

 

 

 

 

 

 

 

 

 

JC

 

LIGHT WEIGHT CONCRETE

 

 

 

 

 

 

 

 

RACM

 

 

 

 

 

 

 

 

LWC

 

OTHER: FLOOR LEVELING COMPOUND, CAULKING,

 

 

 

 

 

 

 

 

 

2 OR RACM

 

 

 

 

 

 

 

 

OTR

 

ETC.

 

 

 

 

 

 

 

 

 

 

 

 

 

 

 

 

 

 

 

 

 

 

 

 

 

 

 

 

 

 

 

 

 

 

 

 

 

 

 

 

 

 

 

 

PIPE INSULATION STRAIGHT RUNS

 

 

 

 

 

 

 

 

RACM

 

 

 

 

 

 

 

 

 

PI

 

PIPE INSULATION ELBOWS AND FITTINGS

 

 

 

 

 

 

 

 

 

 

RACM

 

 

 

 

 

 

 

 

 

PIE

 

RESILIENT FLOOR COVERINGS (SHEET FLOORING;

 

 

 

 

 

 

 

1 OR RACM

 

 

 

 

 

 

 

 

 

RFC

 

LINOLEUM)

 

 

 

 

 

 

 

 

 

 

 

 

 

 

 

 

 

 

 

 

 

 

 

 

 

 

 

 

 

 

 

 

 

 

 

 

 

 

 

 

 

ROOF MASTICS AND COATINGS

 

 

 

 

 

 

 

 

 

1

 

 

 

 

 

 

 

 

RMC

 

ROOFING SILVER COATING

 

 

 

 

 

 

 

 

 

1 OR RACM

 

 

 

 

 

 

 

 

RSC

 

TEXTURED CEILING

 

 

 

 

 

 

 

 

 

 

RACM

 

 

 

 

 

 

 

 

 

TC

 

TEXTURED CEILING PLASTER

 

 

 

 

 

 

 

 

 

RACM

 

 

 

 

 

 

 

 

 

TCP

 

TANK INSULATION

 

 

 

 

 

 

 

 

 

 

RACM

 

 

 

 

 

 

 

 

 

TI

 

WALL BOARD AND JOINT COMPOUND

 

 

 

 

 

 

 

 

 

RACM

 

 

 

 

 

 

 

 

WBJC

 

WINDOW GLAZING

 

 

 

 

 

 

 

 

 

1 OR RACM

 

 

 

 

 

 

 

 

 

WG

 

WALL PLASTER

 

 

 

 

 

 

 

 

 

RACM

 

 

 

 

 

 

 

 

 

WP

 

Row G: Enter the ACM Type Codes from Col. G for each Category Below.

 

 

 

 

 

 

Category 1

 

 

Category 2

 

RACM

 

 

 

 

Category 1: ____________________________________________________________________________

 

Total

 

 

Total

 

Total

 

 

 

 

Category 2: ____________________________________________________________________________

 

 

 

 

 

 

 

 

 

 

 

RACM: ________________________________________________________________________________

________

 

________

 

________

 

 

 

 

 

 

 

 

 

 

CALCULATING FEES

 

 

 

 

 

 

 

 

 

 

 

 

 

Row H. IS THIS A RESIDENTIAL PROJECT

YES

 

 

(USE TOTAL FROM COLUMN F (RACM) TO COMPLETE THIS SECTION)

 

 

 

 

 

 

 

 

 

 

RESIDENTIAL FEE SCHEDULE: $0.10 PER LF/SF

 

 

RESIDENTIAL PROJECT

 

 

 

TOTAL FEES DUE AND PAYABLE NOW

 

OF FRIABLE ACM WITH MINIMUM FEE: $25 -

 

 

COLUMN F (RACM) TOTAL

 

X $0.10

 

H (B) $_____________________

 

 

 

 

MAXIMUM FEE: $50 PER RESIDENCE/ DWELLING

 

 

H (A). ___________SF/LF

 

EQUALS

(NOT TO BE LESS THAN $25 OR MORE THAN $50 PER

 

UNIT.

 

 

 

 

 

 

 

 

 

 

 

 

 

 

 

UNIT)

 

 

 

 

 

Row I. IS THIS A NON-RESIDENTIAL PROJECT

฀ YES

(USE TOTAL FROM COLUMN F (RACM) TO COMPLETE THIS SECTION)

 

 

 

 

 

 

 

 

 

 

 

 

 

 

 

 

 

 

 

 

 

 

 

 

NON-RESIDENTIAL FEE SCHEDULE: $0.10 PER

LF/SF OF FRIABLE ACM WITH MINIMUM FEE: $25 -

MAXIMUM FEE: $1,000 PER FACILITY.

NON-RESIDENTIAL PROJECT COLUMN F (RACM) TOTAL

I (A). ___________SF/LF

X$0.10

EQUALS

TOTAL FEES DUE AND PAYABLE NOW

I (B) $_____________________

(NOT TO BE LESS THAN $25 OR MORE THAN $1,000)

 

CHECK NUMBER ____________ FOR THE AMOUNT SHOWN IN THE TOTAL FEES DUE ABOVE.

 

 

REV 062012005F

- 2 -

SECTION 7 - WASTE TRANSPORTER, DISPOSAL SITE, AND BUILDING OWNER INFORMATION

฀ CHECK IF SECTION REVISED

WASTE TRANSPORTERTRANSPORTER CONTACT PERSON: NAME

TRANSPORTER’S MAILING ADDRESS:

CITY:

STATE:

ZIP:

PHONE:

FAX:

 

 

 

 

 

All Detached Non-Friable and Friable ACM Must Go To an ACM Permitted Landfill.

DISPOSAL SITE

 

 

 

 

DI SPOSAL SI TE COUNTY:

 

NAME:

 

 

 

 

 

 

 

 

 

 

DISPOSAL SITE ADDRESS:

 

 

 

 

 

 

 

 

 

 

 

 

 

 

 

 

 

 

 

 

CITY:

STATE:

 

ZIP:

 

 

PHONE:

 

FAX:

 

 

 

 

 

 

 

PROJECT OWNER

 

 

 

OWNER’S REPRESENTATIVE:

 

NAME:

 

 

 

 

 

 

 

 

 

 

OWNER’S STREET ADDRESS:

 

 

 

 

 

 

 

 

 

 

 

 

 

 

 

 

 

 

 

 

 

OWNER’S MAILING ADDRESS (IF DIFFERENT):

 

 

 

 

 

 

 

 

 

 

 

 

 

 

 

 

 

 

 

CITY:

STATE:

 

ZIP:

 

 

PHONE:

 

FAX:

 

 

 

 

 

SECTION 8 - WORK METHODS: METHOD OF DEMOLITION AND/OR RENOVATION ACTIVITY (DESCRIPTION OF WORK PRACTICES,

ENGINEERING CONTROLS, AND CLEARANCE METHODS)

 

฀ CHECK IF SECTION REVISED

 

 

 

 

 

 

 

 

 

 

 

 

 

 

 

 

SECTION 9 - ADDITIONAL PROJECT INFORMATION

 

฀ CHECK IF SECTION REVISED

 

WILL ASBESTOS REMAIN IN THE PROJECT AREA?

NO

 

YES

UNKNOWN

 

EXPLAIN ‘YES’ OR ‘UNKNOWN’:

 

 

 

 

 

 

 

 

 

 

 

 

 

 

 

 

IF NO ASBESTOS IS PRESENT, WAS THIS PROJECT PREVIOUSLY ABATED?

NO

YES

UNKNOWN

PRIOR ABATEMENT COMPANY:

 

 

 

 

 

 

 

YEAR ABATED:

 

 

 

 

 

 

 

 

 

 

 

 

PRIOR COMPANY CONTACT PERSON:

 

 

 

 

 

 

 

PHONE:

 

 

 

 

 

 

 

 

 

 

 

 

 

CERTIFICATION OF INFORMATION AND ACKNOWLEDGEMENT

฀ CHECK IF SECTION REVISED

I, THE UNDERSIGNED, CERTIFY THAT AN INDIVIDUAL TRAINED IN THE PROVISIONS OF FEDERAL REGULATIONS (NESHAP/40 CFR PART 61 SUBPART M) WILL BE

ON THE PROJECT SITE DURING DEMOLITION AND/OR RENOVATION ACTIVITIES DESCRIBED IN THE NOTIFICATION. EVIDENCE THAT THIS PERSON AND ALL OTHER PROJECT PERSONNEL HAVE ACCOMPLISHED APPROPRIATE TRAINING AND TRAINING CERTIFICATES WILL BE AVAILABLE FOR INSPECTION DURING NORMAL BUSINESS HOURS AND ANYTIME REGULATED ACTIVITIES ARE BEING CONDUCTED ON SITE.

I FURTHERMORE UNDERSTAND THAT I AM RESPONSIBLE FOR THE ACCURACY AND COMPLETENESS OF THE INFORMATION SUBMITTED WITH THIS

NOTIFICATION AND I SHALL PROMPTLY SUBMIT REVISIONS, SUPPORTING DOCUMENTS, AND PROJECT FEES.

PRINTED NAME:

SIGNATURE:

PHONE:

DATE:

REPRESENTING: OWNER

ABATEMENT CONTRACTOR DEMOLITION CONTRACTOR OTHER _________________

COMPANY NAME IF “OTHER” CHECKED:

ADDRESS IF “OTHER” CHECKED:

REFER TO THE DETAILED INSTRUCTIONS WHEN IN DOUBT ABOUT PROPER COMPLETION OF ANY SECTION.

NEVER LEAVE BLANK SPACES – INSERT ‘N/A’ OR ‘UNKNOWN’ FOR ANY BLANK WHERE YOU DO NOT HAVE THE INFORMATION REQUESTED.

PRINT RESPONSES NEATLY AND LEGIBLY.

ALWAYS KEEP A COPY OF THIS FORM FOR YOUR RECORDS, AND PROVIDE COPIES TO ALL OTHER INVOLVED PARTIES.

EPD NO LONGER ACCEPTS ‘FAX ONLY DOCUMENTS’. SUBMIT THE ENTIRE FORM VIA MAIL.

NEVER SUBMIT PROJECTS WHERE FEES ARE DUE WITHOUT ATTACHING THE REQUIRED FEE CHECK OR MONEY ORDER.

NOTIFICATIONS WITH FEES MUST BE MAILED TO THE EPD ASBESTOS FEES POST OFFICE ADDRESS. NOTIFICATIONS WITHOUT FEES SHOULD BE MAILED DIRECTLY TO THE EPD OFFICE ADDRESS.

(ADDRESSES ARE ON THE FIRST PAGE.)

DO NOT SUBMIT ‘TWO-SIDED’ PHOTO COPIES.

If a Project Notification is submitted by someone other than the asbestos abatement or demolition contractor - such as the Consultant or Owner,

A REVISED NOTIFICATION MUST BE SUBMITTED BY THE CONTRACTOR TO WHOM THE PROJECT IS AWARDED BEFORE WORK BEGINS. THE CONTRACTOR MUST SIGN THE CERTIFICATION OF THE REVISED NOTIFICATION FORM.

IT IS YOUR RESPONSIBILITY TO SUBMIT THIS FORM ACCURATELY AND COMPLETLY AND INCLUDE BY ALL

APPLICABLE FEES.

REV 062012005F

- 3 -

SUMMARY INSTRUCTIONS FOR COMPLETING THE GEORGIA EPD

PROJECT NOTIFICATION FOR ASBESTOS RENOVATION, ENCAPSULATION, OR DEMOLITION PROJECTS

Complete the following Sections and provide the information requested according to the type of project being performed.

To Be Completed For Demolition Work (No fees due for Demolition Projects.)

Section 1AVType of Notice

Section 1BVType of Project

Section 2 - Site Information

Section 3B - Demolition Contractor

Section 4 - ACM Information Asbestos Inspection Required for Compliance of Georgia Rules.

Section 5 - Work Schedules for Demolition

Section 6 - ACM Amounts & Type Codes

All ACM which already is or will become friable must be removed before demolition; only non-friable ACM may be remaining during the demolition and it must ALL be collected, packaged, labeled, transported and disposed as ACM Waste).

If all ACMs have been removed from the project site, Page 2 is not required.

Section 7 - Waste Transporter and Disposal Site of Demolition Waste, and Building Owner (All Required) Section 8 - Work Methods

Section 9 - Additional Project Information

Certification of Information and Acknowledgement (No fees due for Demolition Projects.)

To Be Completed For Asbestos Removal and Encapsulation Projects (Fees due for Abatement Projects.)

Section 1A - Type of Notice

Section 1B - Type of Project

Section 2 - Site information

Section 3A - Abatement Contractor

Section 4 - ACM Information Asbestos Inspection Required for Compliance of Georgia Rules.

Section 5 - Work Schedules for Abatement and Encapsulation Projects.

Section 6 - ACM Amounts, Type Codes, and Fee Calculation

Section 7 - Waste Transporter, Disposal Site, and Building Owner Information

Section 8 - Work Methods

Certification of Information and Acknowledgment

To Be Completed for A Revision To A Prior Notification

Section 1A Type of Notice

Section(s) All Sections, In Which the Prior Information Has Changed or Needs To Be Updated.

Check the Revision Box In Each of The Revised Sections and Update the Information.

Certification of Information and Acknowledgment

DETAILED INSTRUCTIONS ARE AVAILABLE FOR FILLING OUT EACH OF THESE SECTIONS.

REV 062012005F

- 4 -

Form Information

Fact Name Details
Form Purpose This form is used to notify the Georgia Environmental Protection Division (EPD) about asbestos renovation, encapsulation, or demolition projects.
Governing Law The form is governed by the Georgia Rules for Asbestos, which comply with federal regulations under NESHAP (40 CFR Part 61 Subpart M).
Submission Requirements All sections must be completed. If information is unknown, use 'N/A' or 'UNKNOWN' instead of leaving blanks.
Fee Payment Fees are required for abatement projects and must be sent to the EPD Asbestos Fees Lockbox. Demolition projects do not require fees.
Notification Timeline A 10-working day advance notification is required for non-emergency projects.
Emergency Projects For emergency projects, immediate notification is required, and a letter explaining the situation must be included.
Inspection Requirement An AHERA accredited inspector must inspect the site to confirm the presence of asbestos before project initiation.
Record Keeping Keep a copy of the submitted form for your records and provide copies to all involved parties.

Detailed Guide for Filling Out Georgia Notification

Completing the Georgia Notification Form is an essential step in ensuring compliance with asbestos regulations. This guide provides a clear outline of the steps to fill out the form accurately. Follow each step carefully to ensure that all necessary information is provided and that nothing is left blank.

  1. Type of Notice: In Section 1A, check the appropriate box to indicate whether this is an original submission or a revision. If it is a revision, include the revision number.
  2. Type of Project: In Section 1B, select the type of project you are undertaking by checking the relevant box. Options include renovation, demolition, or encapsulation.
  3. Site Information: Fill out Section 2 with the project name, address, city, zip code, county, nearest major intersection, building size, age of the building, number of floors, and specific location of asbestos being removed.
  4. Abatement Contractor: In Section 3A, provide the name and address of the asbestos removal contractor, along with their contact information and license details.
  5. Demolition Contractor: If applicable, fill out Section 3B with the demolition contractor’s information, including their address and contact details.
  6. ACM Information: In Section 4, answer whether asbestos is present. If yes, indicate if it is friable or non-friable. Provide details about the inspector who inspected the site.
  7. Work Schedules: Section 5 requires you to provide the start and end dates for abatement and demolition, along with the workdays and hours.
  8. ACM Amounts and Fee Calculation: In Section 6, list the amounts of asbestos-containing materials (ACM) to be abated. Use the provided columns to classify the materials and calculate any applicable fees.
  9. Waste Transporter and Disposal Site: Fill out Section 7 with the waste transporter's information and the disposal site details, ensuring all required fields are completed.
  10. Work Methods: Describe the methods of demolition or renovation in Section 8, including work practices and engineering controls.
  11. Additional Project Information: In Section 9, indicate whether asbestos will remain on-site and provide any necessary explanations.
  12. Certification: Finally, sign and date the certification section, providing your printed name and the role you represent (owner, contractor, etc.).

After completing the form, ensure that you have provided all necessary attachments and that no sections are left blank. It is important to keep a copy for your records. Once everything is in order, submit the form to the appropriate address based on whether fees are due or not. Following these steps will help ensure that your notification is processed smoothly.

Obtain Answers on Georgia Notification

  1. What is the purpose of the Georgia Notification Form?

    The Georgia Notification Form is used to inform the Environmental Protection Division (EPD) about projects involving the renovation, encapsulation, or demolition of structures containing asbestos. This notification is crucial for ensuring that proper safety measures are in place to protect workers and the public from potential asbestos exposure.

  2. Who is required to submit this form?

    Any contractor or individual planning to undertake renovation, encapsulation, or demolition work that involves asbestos must submit this form. This includes abatement contractors, demolition contractors, and even property owners who are managing these types of projects. It is essential that the form is completed accurately to avoid any delays or penalties.

  3. What information is needed in the form?

    The form requires various details, including:

    • Type of notice (original or revision)
    • Type of project (renovation, demolition, etc.)
    • Site information (address, size, age of the building)
    • Contractor details (both abatement and demolition contractors)
    • Asbestos information (presence and type of asbestos)
    • Work schedules and methods
    • Waste transporter and disposal site information

    Each section must be filled out completely, and if any information is not available, you should indicate that by using "N/A" or "unknown."

  4. What are the fees associated with submitting the form?

    Fees vary depending on the type of project. For residential projects, the fee is $0.10 per square foot or linear foot of friable asbestos, with a minimum fee of $25 and a maximum of $50 per residence. For non-residential projects, the fee is similarly calculated but can go up to $1,000 per facility. It's important to check the specific section of the form for detailed fee calculation instructions.

  5. How far in advance must the notification be submitted?

    For non-emergency projects, the notification must be submitted at least 10 working days before the scheduled start of the abatement or demolition work. This allows the EPD to process the notification and ensure that all safety measures are in place. Emergency projects, however, have different requirements and must be reported within 24 hours of the emergency situation.

  6. What happens if I need to make changes after submitting the form?

    If there are any changes to the project after the original notification has been submitted, a revised notification must be submitted. You should check the revision box on the form, indicate the changes clearly, and resubmit the form with the updated information. This ensures that the EPD has the most current details about the project.

  7. Where should I send the completed form?

    The destination for your completed form depends on whether fees are due. If fees are required, send the form to the EPD Asbestos Fees Lockbox at P.O. Box 101173, Atlanta, Georgia 30392. If no fees are due, mail it directly to the EPD Asbestos Program at 4244 International Parkway, Suite 104, Atlanta, Georgia 30354. Always ensure that you keep a copy for your records.

Common mistakes

Completing the Georgia Notification Form for asbestos renovation, encapsulation, or demolition can be a complex process. Mistakes during this process can lead to delays or complications. Here are eight common errors that individuals often make when filling out this form.

One frequent mistake is leaving sections blank. The form explicitly states that no section should be left unfilled. If certain information is unknown, individuals should write "unknown" or "N/A" instead. Failing to do so can result in the form being rejected or delayed.

Another common error is selecting the wrong type of project in Section 1B. It is crucial to accurately indicate whether the project involves renovation, demolition, or encapsulation. Misidentifying the project type can lead to improper fee calculations and regulatory complications.

Inaccurate site information is also a significant issue. Individuals sometimes provide incomplete addresses or fail to specify the exact location of the asbestos. This information is essential for regulatory authorities to assess the project correctly and ensure compliance.

People often overlook the requirement for an AHERA accredited inspector's signature in Section 4. This section must confirm that an inspection has been conducted and that the inspector’s details are provided. Neglecting this can raise questions about the legitimacy of the project.

Moreover, individuals frequently miscalculate fees due in Section 6. It is important to follow the fee calculation instructions carefully. Errors in calculating fees can lead to unnecessary delays in processing the notification.

Another mistake involves not submitting the form to the correct address. Notifications that require fees must be sent to the EPD Asbestos Fees Lockbox, while those without fees should go to the EPD office. Sending the form to the wrong address can result in processing delays.

Some individuals also fail to keep copies of the submitted form. Keeping a copy is essential for record-keeping and can help resolve any disputes or questions that arise later.

Finally, not signing or dating the certification section is a common oversight. This section is crucial as it confirms that the information provided is accurate and complete. Without a signature, the form may be deemed invalid.

By being aware of these common mistakes, individuals can improve their chances of submitting a complete and accurate Georgia Notification Form, facilitating a smoother process for asbestos-related projects.

Documents used along the form

The Georgia Notification Form for asbestos-related projects is a crucial document that ensures compliance with state regulations regarding the handling of asbestos. Along with this form, several other documents are often required to provide a comprehensive overview of the project and ensure that all parties involved are informed and compliant with the necessary regulations. Below is a list of additional forms and documents commonly used in conjunction with the Georgia Notification Form.

  • Asbestos Inspection Report: This report details the findings of an inspection conducted by an accredited inspector. It identifies the presence and condition of asbestos-containing materials (ACM) in the building, which is essential for determining the appropriate course of action during renovation or demolition.
  • Abatement Plan: This document outlines the specific procedures and methods that will be used during the asbestos removal process. It includes safety measures, work practices, and engineering controls to minimize the risk of asbestos exposure to workers and the public.
  • Waste Disposal Agreement: This agreement is a contract between the project owner and the disposal site. It ensures that all asbestos waste will be transported and disposed of in compliance with state and federal regulations, preventing illegal dumping and environmental contamination.
  • Contractor Licenses: Copies of the licenses for both the abatement and demolition contractors must be submitted. These documents verify that the contractors are certified and authorized to handle asbestos-related work, ensuring compliance with legal requirements.
  • Emergency Response Plan: For projects classified as emergency situations, this plan outlines the steps to be taken in the event of an unforeseen incident. It includes contact information for emergency personnel and procedures to follow to mitigate health and safety risks.
  • Notification of Completion: Once the asbestos work is completed, this document serves as a formal notification to the relevant authorities. It confirms that all work has been conducted according to regulations and that the site is safe for occupancy.

Each of these documents plays a significant role in the overall process of managing asbestos-related projects in Georgia. They ensure that all necessary precautions are taken to protect the health and safety of workers and the public, while also complying with legal requirements. Proper documentation is not just a regulatory formality; it is essential for the successful and safe completion of any project involving asbestos.

Similar forms

  • Asbestos Abatement Notification Form: This document is specifically designed for notifying relevant authorities about the planned removal of asbestos. Similar to the Georgia Notification Form, it requires details on the project, including the type of work, site information, and contractor details. Both forms emphasize the importance of compliance with safety regulations and provide a structured format for reporting necessary information.
  • Environmental Impact Assessment (EIA): An EIA assesses the potential environmental effects of a proposed project. Like the Georgia Notification Form, it requires detailed information about the project site, potential hazards, and mitigation strategies. Both documents aim to ensure that projects are conducted safely and responsibly, protecting public health and the environment.
  • Building Permit Application: This application is necessary for obtaining permission to undertake construction or renovation projects. Similar to the Georgia Notification Form, it collects essential information about the project, including its scope, location, and contractors involved. Both documents serve to inform authorities and ensure compliance with local regulations.
  • Hazardous Waste Manifest: This document tracks the transportation of hazardous waste from its point of origin to its disposal site. Like the Georgia Notification Form, it includes critical information about the materials being handled, ensuring that all parties are aware of potential hazards and comply with regulations governing hazardous materials.
  • Demolition Notification Form: Required for notifying authorities about planned demolition activities, this form is akin to the Georgia Notification Form. It gathers information on the project type, site specifics, and contractors involved. Both forms highlight the need for safety measures and proper handling of materials, especially when hazardous substances are present.
  • Construction Safety Plan: This document outlines safety protocols and procedures for construction projects. Similar to the Georgia Notification Form, it requires detailed information about the work being performed, potential hazards, and safety measures in place. Both documents aim to ensure the safety of workers and the surrounding community during project execution.

Dos and Don'ts

When filling out the Georgia Notification form for asbestos renovation, encapsulation, or demolition, it is essential to follow certain guidelines to ensure compliance and accuracy. Below are five key do's and don'ts to consider.

  • Do provide complete information in every section. If you do not have specific details, use "N/A" or "unknown" as appropriate.
  • Don't leave any section blank. This could lead to delays or rejection of your notification.
  • Do print your responses clearly and legibly. This helps avoid misunderstandings and errors in processing.
  • Don't submit two-sided photocopies of the form. Always provide single-sided copies to ensure clarity.
  • Do keep a copy of the completed form for your records and distribute copies to all relevant parties involved in the project.

Adhering to these guidelines can facilitate a smoother process and help maintain compliance with regulations.

Misconceptions

Misconception 1: The Georgia Notification form is only necessary for demolition projects.

This is incorrect. The form is required for various types of projects, including renovation, encapsulation, and abatement. Any work involving asbestos must be reported, regardless of whether it involves demolition.

Misconception 2: If asbestos is not present, the form does not need to be submitted.

Even if asbestos is confirmed absent, the notification must still be filed if the project involves any potential disturbance of materials that could contain asbestos. This ensures compliance and maintains a record of the project.

Misconception 3: All sections of the form can be left blank if information is unknown.

Leaving sections blank can lead to delays or rejections. Instead, insert "N/A" or "unknown" where applicable. This practice helps ensure that the form is processed without issues.

Misconception 4: The form can be submitted via fax or email.

This is false. The Georgia EPD requires that the entire form be mailed. Submissions must be sent to the appropriate address based on whether fees are due, and faxed documents are no longer accepted.

Key takeaways

When filling out the Georgia Notification Form for asbestos projects, keep the following key points in mind:

  • Complete Every Section: It’s crucial not to leave any section blank. If you don’t have information for a particular section, write “N/A” or “UNKNOWN.” This helps ensure your submission is processed without delays.
  • Know Your Fees: If your project requires fees, make sure to calculate them correctly based on the amount of asbestos being removed. For residential projects, fees start at $25, while non-residential projects can go up to $1,000.
  • Submit to the Correct Address: Depending on whether your project has fees or not, you must send the form to different addresses. Always double-check to ensure your submission reaches the right place.
  • Keep Records: Always maintain a copy of the completed form for your records. Sharing copies with all involved parties can prevent misunderstandings and ensure everyone is on the same page.